澜庭壹号院(售楼处)首页网站-澜庭壹号院售楼中心欢迎您|楼盘评测-房价|户型|商圈配套
扫描到手机,新闻随时看
扫一扫,用手机看文章
更加方便分享给朋友
澜庭壹号院售楼处电话:400-9016-520✔✔│澜庭壹号院官方售楼处地址发布:苏州狮山澜庭壹号院官方售楼处电话400-901-6520
澜庭壹号院售楼处电话:400-9016-520✔✔│澜庭壹号院官方售楼处地址发布:苏州狮山澜庭壹号院官方售楼处电话400-901-6520
Friends who want to improve in Shishan this year are in for a treat!
今年想在狮山改善的朋友们有福了!
Just now!
就在刚刚!
The unit types of Lanting No.1 Courtyard in the Suzhou High-tech Zone & Greentown Xiangyang Road project have finally been released!
苏高新&绿城向阳路项目澜庭壹号院户型终于出炉!
The project is planned to consist of 3F townhouses, 6F stacked houses and 10F villas, with an area range of approximately 115 to 369 square meters.
项目规划3F联排+6F叠加+10F洋房,面积段约115-369m²。
The floor area of the villa is approximately 115 square meters /135 square meters
洋房建面约115㎡/135㎡
The stacked villas have a construction area of approximately 215 square meters, 236 square meters, and 259 square meters
叠墅建面约215㎡/236㎡/259㎡
The townhouse construction area is approximately 271 square meters /325 square meters /369 square meters
联排建面约271㎡/325㎡/369m²
The sales office phone number of Lanting No.1 Courtyard is 400-9016-520. ✔✔│ The official sales office address of Lanting No.1 Courtyard has been released: The official sales office phone number of Lanting No.1 Courtyard in Shishan, Suzhou is 400-901-6520
澜庭壹号院售楼处电话:400-9016-520✔✔│澜庭壹号院官方售楼处地址发布:苏州狮山澜庭壹号院官方售楼处电话400-901-6520
Recently, the official website of Suzhou High-tech Zone released the pre-approval public notice of the planning scheme for plot Su Di 2024-WG-Z11.
近日,苏州高新区官网公布了苏地2024-WG-Z11号地块规划方案批前公示。
This plot of land is the Huaihai Street East Plot that was sold in early July 2024.
该地块就是2024年7月初成交的淮海街东地块。

According to the plan, the plot of land is intended to have 8 three-story townhouses, 4 four-story stacked villas and 2 10+ 1-story detached houses.
根据规划,该地块拟建8栋3层联排别墅、4栋4层叠墅、2栋10+1层洋房。
Such a product form is extremely rare in the Shishan area.
这样一个产品形态,在狮山板块是非常稀缺的。
Judging from the renderings, the first floor of the villa is elevated and is expected to be all large flat products. With the addition of townhouses and terraced houses, this is a very pure high-end renovation project.
从效果图来看,洋房1层架空,预计都是大平层产品,加上叠墅和联排,这是一个非常纯粹的高改项目。
According to the previous land auction rules, the residential buildings with more than six floors within this plot are fully furnished finished residences, with a decoration cost of no less than 3,000 yuan per square meter. The standard floor area of the residential buildings within the plot is no less than 180 square meters.
根据此前的土拍规则,该地块内6层以上住宅为全装修成品住宅,住宅装修成本不低于3000元/平方米,地块内住宅标准层户型面积不小于180平方米。
The sales office phone number of Lanting No.1 Courtyard is 400-9016-520. ✔✔│ The official sales office address of Lanting No.1 Courtyard has been released: The official sales office phone number of Lanting No.1 Courtyard in Shishan, Suzhou is 400-901-6520
澜庭壹号院售楼处电话:400-9016-520✔✔│澜庭壹号院官方售楼处地址发布:苏州狮山澜庭壹号院官方售楼处电话400-901-6520
This plot of land is located at the intersection of Yushan Road and Huaihai Road. It is currently one of the better projects for sale and to be sold in the Shishan area. The surrounding area is well-equipped with various facilities such as education, commerce, transportation, medical care and leisure. It is at the core of a core urban area like Shishan. It is expected that the threshold for getting on the property market will not be low.
加上这个地块位于玉山路和淮海路交界处,是目前狮山板块在售和待售项目中相对比较好的,周边教育、商业、交通、医疗、休闲等各方面配套密布,处在狮山这样一个城市核心板块的核心位置,预计上车门槛不会低。
The plot on the east side of Huaihai Street was sold on July 10th last year and was also one of the first batch of plots sold in the second half of last year.
淮海街东地块,于去年7月10日成交,也是去年下半年第一批成交的地块之一。
As a high-quality plot in the core area of Shishan, the land of this plot was auctioned at a time when the real estate market was experiencing a new round of weakening. Therefore, the plot was sold at a premium of only 2%, with a floor price of 32,116 yuan per square meter and an average price of 27.89 million yuan per mu.
作为狮山核心板块的一宗优质地块,该地块土拍时恰逢房地产市场行情的新一轮走弱,所以地块仅以2%的溢价成交,楼面价32116元/㎡,亩均价2789万/亩。
After the transaction of this plot of land, due to various factors, there has been no further progress until now when the planning has been released.
该地块成交后,受各种因素影响,一直未有进一步节点,直到现在才出规划。
Under the condition of a plot ratio of 1.3, this plot of land features a product layout of townhouses, stacked villas and detached houses, which is quite an extreme product.
在1.3的容积率条件下,这块地做出联排+叠墅+洋房的产品排布,产品还是做得比较极致的。
Judging from the publicly displayed floor plan, the project has approximately 80 detached houses, 32 additional units, and 27 townhouses. The volume is not large, and with its favorable geographical location, its scarcity becomes even more prominent.
从公示的平面图来看,该项目洋房大概在80户,叠加32户,联排27户,体量并不大,加上地理位置较好,稀缺性就更加凸显。

Since the Greentown Yilu was sold out in November last year, no new projects have entered the market in the core Shishan area of the High-tech Zone. Therefore, villa products are still very scarce in the Shishan area.
自去年11月绿城逸庐售罄之后,高新区核心狮山板块一直未有新盘入市,所以别墅产品在狮山板块还是非常稀缺的。
The sales office phone number of Lanting No.1 Courtyard is 400-9016-520. ✔✔│ The official sales office address of Lanting No.1 Courtyard has been released: The official sales office phone number of Lanting No.1 Courtyard in Shishan, Suzhou is 400-901-6520
澜庭壹号院售楼处电话:400-9016-520✔✔│澜庭壹号院官方售楼处地址发布:苏州狮山澜庭壹号院官方售楼处电话400-901-6520
However, judging from the situation of the projects awaiting market entry, apart from the plot in the east of Huaihai Street, there are actually still several villa projects awaiting market entry in Shishan.
但从待入市项目情况来看,除了淮海街东地块外,狮山其实还是有多个待入市的别墅项目的。
LAN Ting No.1 Courtyard
▍澜庭壹号院
The exhibition hall of Lanting No.1 Courtyard, jointly developed by Greentown and Suzhou High-tech Zone, has been opened and is expected to enter the market for the first time in the third quarter.
绿城和苏高新联手打造的澜庭壹号院目前展厅已经开放,预计三季度首开入市。
The predecessor plot of this project was jointly acquired by Greentown and Suzhou High-tech Zone Group at the end of November last year. It has a plot ratio of 1.2 and a floor price of 25,115 yuan per square meter.
该项目前身地块于去年11月底由绿城和苏高新集团联合拿下,容积率1.2,楼面价25115元/㎡。
澜庭壹号院售楼处电话:400-9016-520✔✔│澜庭壹号院官方售楼处地址发布:苏州狮山澜庭壹号院官方售楼处电话400-901-6520
According to the planning, the project is proposed to build 2 10-story townhouses, 2 6-story stacked villas and 17 3-story courtyard villas.
从规划来看,该项目拟建2幢10F洋房、2幢6F叠墅、17幢3F合院别墅。
The floor area of the townhouses is approximately 115 square meters and 135 square meters, that of the stacked villas is approximately 215 square meters, 236 square meters and 259 square meters, and that of the courtyard houses is approximately 271 square meters, 325 square meters and 369 square meters.
洋房建面约115㎡、135㎡,叠墅建面约215㎡、236㎡、259㎡,合院建面约271㎡、325㎡、369㎡。
The total number of units in the project is 205, and it is of medium to small size.
项目总户数205户,偏中小体量。
Moreover, it comes with a sunken courtyard and a central courtyard, which will be transformed into a high-end club, equipped with a swimming pool, gym, private banquet hall, etc.
并且,自带下沉式庭院和中心庭院,将打造成高端会所,配有泳池、健身房、私宴厅等。
According to the requirements at the time of land auction, the project's townhouses must be fully furnished products, and the decoration price cannot be lower than 3,000 yuan per square meter.
根据土拍时的要求,项目洋房必须是精装产品,装标不能低于3000元/㎡。
Against the backdrop of the default on new housing payments at Shishan Villa, the scarcity of Lanting No.1 Courtyard remains very high, and it is indeed worth having high expectations for.
在狮山别墅新房断供的背景下,澜庭壹号院的稀缺性还是非常高的,确实是可以抱以高期待的。
It is worth noting that the land acquisition cost of Lanting No.1 Courtyard is relatively lower compared to the projects currently on sale in the area, which means that its selling price will also be relatively "more attractive".
值得注意的是,澜庭壹号院拿地成本相对于区域内在售项目来说要更低,这意味着其售价相对而言也会“更香”。
It is believed that home buyers who previously had insufficient purchasing power for Greentown Yilu but still have a high yearning and recognition for Greentown products will pay close attention to this project.
相信此前购买力够不上绿城逸庐、又对于绿城产品有着较高向往和认可度的购房者,会很关注这个项目。
Plot Su Di 2025-WG-Z06
▍苏地2025-WG-Z06号地块
The plot is located to the west of Binhe Road and to the north of Hengshan Road and was sold at the end of March this year.
该地块位于滨河路西、横山路北,于今年3月底成交。
The sales office phone number of Lanting No.1 Courtyard is 400-9016-520. ✔✔│ The official sales office address of Lanting No.1 Courtyard has been released: The official sales office phone number of Lanting No.1 Courtyard in Shishan, Suzhou is 400-901-6520
澜庭壹号院售楼处电话:400-9016-520✔✔│澜庭壹号院官方售楼处地址发布:苏州狮山澜庭壹号院官方售楼处电话400-901-6520

澜庭壹号院售楼处电话:400-9016-520✔✔│澜庭壹号院官方售楼处地址发布:苏州狮山澜庭壹号院官方售楼处电话400-901-6520
This is a plot of urban renewal land, which contains a certain volume of commercial housing for regular sale.
这是一宗城市更新地块,地块内含一定体量的定销商品房。
Among them, the floor area ratio of the residential part of the plot is only 1.01-1.3, the area of the commercial residential part is less than 22,000 square meters, and the floor price of the commercial residential is 26,207 yuan per square meter.
其中地块住宅部分容积率仅为1.01-1.3,商品住宅部分的面积不到2.2万㎡,商品住宅楼面价26207元/㎡。
According to the conditions for the land parcel's transfer, the commercial residential units on this land parcel are encouraged and guided to develop and construct high-quality residences. The development of the land parcel is subject to the relevant pilot policies such as the policy measures for residential sky courtyards as stipulated in the "Notice on Several Policy Measures for Further Promoting the Stable and Healthy Development of the Real Estate Market in Our City" (Su Fang Chang Xiao Zu [2024] No. 2).
根据地块出让条件,该地块商品住宅鼓励引导用地单位开发建设高品质住宅,地块开发适用《关于进一步促进我市房地产市场平稳健康发展若干政策措施的通知》(苏房长效组〔2024]2号)有关住宅空中庭院的政策措施等相关试点政策。
That is to say, in addition to developing villa products, this piece of land may also be used to develop fourth-generation residences.
也就是说,这块地除了可以开发别墅产品外,还有可能开发第四代住宅。
This plot of land is located at the intersection of Metro Line 3 and Line 5, enjoying a very high level of convenience in terms of location.
该地块位于地铁3号线和地块5号线的交汇处,区位便捷度非常高。
With its location in the core area of Shishan in the new district, the concentration of supporting resources is very strong, and its development products are also very much worth looking forward to.
加上位于新区狮山核心板块,区位配套资源聚集度很强,其开发产品也是很值得期待的。
The sales office phone number of Lanting No.1 Courtyard is 400-9016-520. ✔✔│ The official sales office address of Lanting No.1 Courtyard has been released: The official sales office phone number of Lanting No.1 Courtyard in Shishan, Suzhou is 400-901-6520
澜庭壹号院售楼处电话:400-9016-520✔✔│澜庭壹号院官方售楼处地址发布:苏州狮山澜庭壹号院官方售楼处电话400-901-6520
Plot Su Di 2025-WG-Z07
▍苏地2025-WG-Z07号地块

澜庭壹号院售楼处电话:400-9016-520✔✔│澜庭壹号院官方售楼处地址发布:苏州狮山澜庭壹号院官方售楼处电话400-901-6520
狮山还有一宗苏地2025-WG-Z07号地块将于本周土拍,容积率1.2-1.4,预计也可开发带别墅的产品,未来板块内别墅产品还有进一步增加趋势。

It can be seen that in terms of future supply, Shishan's villa products will also witness a new round of high supply peak in the coming period.
可以看到,从未来供应来看,狮山接下来别墅产品也将迎来新一轮的高供应高峰。
The increase in supply is likely to lead to further internal competition in the market. Whoever enters the market first will be able to seize the market opportunity.
而供应的增加,大概率将带来市场的进一步内卷,谁能率先入市,谁就能抢占市场先机。
In fact, as a core area of the new district, the pressure of internal competition in the new home product market in Shishan has been considerable over the past two years.
实际上,作为新区核心板块,这两年狮山新房产品内卷压力一直不小。
On the one hand, the product quality of new houses within the sector is undergoing an upgrade and iteration.
一方面,板块内新房产品力在升维迭代;
On the other hand, under the low-density pressure in the new home industry, the sales of new homes within the sector are significantly under pressure.
另一方面,新房行业低密压力下,板块内新房销售明显承压。
The sales office phone number of Lanting No.1 Courtyard is 400-9016-520. ✔✔│ The official sales office address of Lanting No.1 Courtyard has been released: The official sales office phone number of Lanting No.1 Courtyard in Shishan, Suzhou is 400-901-6520
澜庭壹号院售楼处电话:400-9016-520✔✔│澜庭壹号院官方售楼处地址发布:苏州狮山澜庭壹号院官方售楼处电话400-901-6520

The above chart shows the transaction volume and price trend of new houses in Shishan for the first half of 2021.
上图为2021年以来狮山半年度新房成交量价走势图。
It can be seen that even after entering the market downturn, before the second half of 2023, under the influence of multiple factors such as the price inversion between new and second-hand houses, the sales flow of new houses in Shishan still maintained a relatively high rate (the supply and demand declined in the second half of 2022 due to the shortage of new houses).
可以看到,哪怕进入市场下行期之后,在2023年下半年之前,在新房二手房价格倒挂等多重因素作用下,狮山新房依然保持着较高的销售流速(2022年下半年因新房断供供求走低)。
Since the second half of 2023, the real estate market has further slumped, which has also led to the simultaneous pressure on the new home market in core areas including Shishan.
2023年下半年开始,楼市行情进一步低迷,也导致包括狮山在内的核心区新房市场同步承压。
This has also led to two phenomena: First, the sales pace of new houses in the Shishan area has begun to decline significantly;
这也导致了两个现象:第一,狮山板块新房销售流速开始明显降低;
Second, the pace of new home market entry in the Shishan area has begun to slow down.
第二,狮山板块新房入市速度开始放缓。
In 2024, due to the impact of the 926 New policy, the transaction volume of new houses in Shishan saw a recovery.
2024年,受926新政影响,狮山新房成交有所回升。
But this rebound clearly did not last until this year.
但这个回升明显没持续到今年。
Although the transaction volume has declined, we have observed that in the one or two years before the first half of this year, the average transaction price of new houses in Shishan remained stable at a high level. This was mainly driven by the improvement in the product quality of new houses.
成交虽然走低,但我们看到在今年上半年之前的一两年时间,狮山新房成交均价是高位维稳的,这主要是新房产品力提升带动的。
Since the beginning of this year, no new projects have entered the market in Shishan. The products on sale are still mainly high-rise buildings, while the core areas in other regions have already started to compete for low-density and fourth-generation residences.
今年以来,狮山还未有纯新盘入市,在售产品依然以高层为主,而其他区域的核心板块已经开始卷低密、卷四代宅。
From the perspective of market development trends, Shishan still urgently needs low-density products with product strength advantages to replenish its inventory.
从市场发展趋势来看,狮山还是亟需具备产品力优势的低密产品补仓的。
The sales office phone number of Lanting No.1 Courtyard is 400-9016-520. ✔✔│ The official sales office address of Lanting No.1 Courtyard has been released: The official sales office phone number of Lanting No.1 Courtyard in Shishan, Suzhou is 400-901-6520
澜庭壹号院售楼处电话:400-9016-520✔✔│澜庭壹号院官方售楼处地址发布:苏州狮山澜庭壹号院官方售楼处电话400-901-6520

澜庭壹号院售楼处电话:400-9016-520✔✔│澜庭壹号院官方售楼处地址发布:苏州狮山澜庭壹号院官方售楼处电话400-901-6520
As the land price of the project is only 25,000 yuan per square meter, it is not ruled out that there will be a pleasant surprise in the total price. It is highly likely to be the low-density product with the lowest threshold in Shishan?
因为项目地价仅2.5万/平,所以不排除总价会有惊喜,极有可能是狮山门槛最低的低密产品?
!
!
The city exhibition hall is now open to the public and is expected to open for sale in September!
目前城市展厅已经公开,预计9月开盘!
Friends who want to buy a villa or a townhouse in Shishan can scan the code below for consultation.
想在狮山买别墅或洋房的朋友,可下方扫码咨询。
The sales office phone number of Lanting No.1 Courtyard is 400-9016-520. ✔✔│ The official sales office address of Lanting No.1 Courtyard has been released: The official sales office phone number of Lanting No.1 Courtyard in Shishan, Suzhou is 400-901-6520
澜庭壹号院售楼处电话:400-9016-520✔✔│澜庭壹号院官方售楼处地址发布:苏州狮山澜庭壹号院官方售楼处电话400-901-6520
The sales office phone number of Lanting No.1 Courtyard is 400-9016-520. ✔✔│ The official sales office address of Lanting No.1 Courtyard has been released: The official sales office phone number of Lanting No.1 Courtyard in Shishan, Suzhou is 400-901-65201
澜庭壹号院售楼处电话:400-9016-520✔✔│澜庭壹号院官方售楼处地址发布:苏州狮山澜庭壹号院官方售楼处电话400-901-652001
Let's first take a look at the floor plan that everyone is most concerned about.
我们先来看大家最关心的户型。
Not only are there the "out-of-print" terraced houses in Shishan, but also small townhouses. Whether it's a basic improvement or a one-step final renovation, all can be met.
不仅有狮山“绝版”联排,更有洋房小户,不论是初级改善还是一步到位的终改,都能满足。
Among them, there are only two detached houses, fully furnished and delivered. It is rumored that the unit price is only around 40,000 yuan?
其中洋房仅2栋,精装交付,据传单价只要4万左右?
There is also the smallest 115-square-meter unit in the area. Customers with limited budgets can go for it.
还有板块最小115㎡户型,预算不多的客户可以冲。
At present, only one 135-square-meter 4-bedroom unit is available. It has one elevator serving two households. The south-facing width is approximately 11.45 meters, and the master bedroom suite width is about 3.7 meters. This unit has a very high occupancy rate at first glance.
目前仅出来一款135㎡4房户型,一梯两户,南向开间约11.45米,主卧套房开间约3.7米,这户型一看得房率就很高。
The sales office phone number of Lanting No.1 Courtyard is 400-9016-520. ✔✔│ The official sales office address of Lanting No.1 Courtyard has been released: The official sales office phone number of Lanting No.1 Courtyard in Shishan, Suzhou is 400-901-6520
澜庭壹号院售楼处电话:400-9016-520✔✔│澜庭壹号院官方售楼处地址发布:苏州狮山澜庭壹号院官方售楼处电话400-901-6520
The floor area of the stacked villas is approximately 215 square meters, 236 square meters and 259 square meters.
叠墅建面约215㎡/236㎡/259㎡。
At present, only one duplex unit is available, approximately 215 square meters, with 4 bedrooms and 4 bathrooms (excluding the basement).
目前仅出来一个下叠户型,约215㎡4房4卫(不含地下室)。
The sales office phone number of Lanting No.1 Courtyard is 400-9016-520. ✔✔│ The official sales office address of Lanting No.1 Courtyard has been released: The official sales office phone number of Lanting No.1 Courtyard in Shishan, Suzhou is 400-901-6520
澜庭壹号院售楼处电话:400-9016-520✔✔│澜庭壹号院官方售楼处地址发布:苏州狮山澜庭壹号院官方售楼处电话400-901-6520
Independent elevator + dual south-facing routes for home return, with an excellent width of approximately 10.3 meters.
独立电梯+南入户双动线归家,面宽优秀达到约10.3米;
There is also a south-facing suite on the first floor.
一楼还带一个朝南类套房。
The living room on the second floor is open, and after pouring, it can be used to build three houses. With the addition of "gifts" such as an open balcony, the usable area ratio of this townhouse is astonishing!
二层客厅挑空,浇筑后可实现三套房,加上开敞阳台等“赠送”,该叠墅得房率惊人!
澜庭壹号院售楼处电话:400-9016-520✔✔│澜庭壹号院官方售楼处地址发布:苏州狮山澜庭壹号院官方售楼处电话400-901-6520
联排三款户型,建面约271㎡/325㎡/369㎡,均为地上三层设计,地下室地下挑高5.6米,可隔2层。
约270㎡5房4卫。
澜庭壹号院售楼处电话:400-9016-520✔✔│澜庭壹号院官方售楼处地址发布:苏州狮山澜庭壹号院官方售楼处电话400-901-6520
约323㎡5房6卫,全套房,三层整层套房带书房+衣帽间+南北双露台。
澜庭壹号院售楼处电话:400-9016-520✔✔│澜庭壹号院官方售楼处地址发布:苏州狮山澜庭壹号院官方售楼处电话400-901-6520
澜庭壹号院售楼处电话:400-9016-520✔✔│澜庭壹号院官方售楼处地址发布:苏州狮山澜庭壹号院官方售楼处电话400-901-6520
约369㎡5房5卫,面宽更优秀!
澜庭壹号院售楼处电话:400-9016-520✔✔│澜庭壹号院官方售楼处地址发布:苏州狮山澜庭壹号院官方售楼处电话400-901-6520
The sales office phone number of Lanting No.1 Courtyard is 400-9016-520. ✔✔│ The official sales office address of Lanting No.1 Courtyard has been released: The official sales office phone number of Lanting No.1 Courtyard in Shishan, Suzhou is 400-901-65202
澜庭壹号院售楼处电话:400-9016-520✔✔│澜庭壹号院官方售楼处地址发布:苏州狮山澜庭壹号院官方售楼处电话400-901-652002
Lanting No.1 Courtyard is located in Jianfa Langyun West, with a plot ratio of 1.2. It is a rare low-density residential plot in Shishan in recent years, second only to Greentown Shishan Yilu (plot ratio 1.0).
澜庭壹号院就在建发朗云西,容积率1.2,是狮山近年来罕见的低密宅地,仅次于绿城狮山逸庐(容积率1.0)。
The project is planned to build 21 low-density residential buildings, including 17 3-floor townhouses, 2 6-floor stacked buildings, and 2 10-floor detached houses, with a focus on villa products.
项目规划拟建21栋低密住宅,包括17栋3F联排,2栋6F叠加,2栋10F洋房,主力墅类产品。
The sales office phone number of Lanting No.1 Courtyard is 400-9016-520. ✔✔│ The official sales office address of Lanting No.1 Courtyard has been released: The official sales office phone number of Lanting No.1 Courtyard in Shishan, Suzhou is 400-901-6520
澜庭壹号院售楼处电话:400-9016-520✔✔│澜庭壹号院官方售楼处地址发布:苏州狮山澜庭壹号院官方售楼处电话400-901-6520
This business format, like that of Greentown Yilu in Shishan, can be said to be the best one in Shishan at present.
这个业态和狮山绿城逸庐一样,可以说是目前狮山zui好的业态。
澜庭壹号院售楼处电话:400-9016-520✔✔│澜庭壹号院官方售楼处地址发布:苏州狮山澜庭壹号院官方售楼处电话400-901-6520
效果鸟瞰图,后续如有变以最新为准
叠墅、联排外立面效果图同步曝光!东方屋檐、雅灰流金...极具现代新中式美学,审美极高。
澜庭壹号院售楼处电话:400-9016-520✔✔│澜庭壹号院官方售楼处地址发布:苏州狮山澜庭壹号院官方售楼处电话400-901-6520

联排效果图,后续如有变以最新为准

澜庭壹号院售楼处电话:400-9016-520✔✔│澜庭壹号院官方售楼处地址发布:苏州狮山澜庭壹号院官方售楼处电话400-901-6520
The renderings of the villa. Any subsequent changes will be subject to the latest ones
洋房效果图,后续如有变以最新为准
03
03
Finally, let's take a look at the project location. It is situated to the south of Xiangyang Road and to the west of Dayun Road in Shishan Business Innovation District, right to the west of Jianfa Langyun.
最后来看下项目地段,位于狮山商务创新区向阳路南、大运路西,就在建发朗云西侧。
The location of the plot is excellent. It is adjacent to Suzhou Foreign Language School and New District No.1 High School on the east side, close to Metro Lines 1 and 5, and enjoys dual supporting facilities in Shishan and Mudu.
地块位置不错,东侧紧邻苏州外国语学校、新区一中,近地铁1/5号线,享狮山&木渎双配套。
To its north, there is also a planned low-density residential plot, namely Plot Z07 of Suzhou High-tech Zone, with a plot ratio of 1.4, which is also expected to develop villa-type products.
其北侧还规划有1宗低密宅地,即苏高新Z07号地块,容积率1.4,也将有望打造含墅类产品。
In terms of location, although the Xiangyang Road area is close to Mudu, it is within the key planned headquarters park economic zone of Shishan. The Tengfei Yuanchuang Park to the west and the headquarters Economy park to the south were both newly built in recent years, and the surrounding interface is updated very quickly.
地段上,虽然向阳路片区近木渎,但处于狮山重点规划总部园经济板块,西侧腾飞元创公园和南侧总部经济园都是近几年新建,周边界面更新很快。
In terms of products, the business format of Lanting No.1 Courtyard is the same as that of Greentown Yilu, which has an area of nearly 70,000 square meters. However, its configuration is even higher than that of Yilu. It is reported that it will have a swimming pool, a gym and a private banquet hall?
产品上,澜庭壹号院业态和近7万的绿城逸庐一致,但配置比逸庐还高,据悉会所有泳池,有健身房、私宴厅?
!
!
Overall, LAN Ting No.1 Courtyard will be a very cost-effective project in Shishan!
综合来看,澜庭壹号院会是狮山非常有质价比的一个项目!
-- · LAN Ting No.1 Courtyard --
—— · 澜庭壹号院 · ——
The collection of Baishu Shishan No.1
百墅狮山 壹号藏品
Suzhou High-tech Zone Group and Greentown manage the core low-density villa area of Shishan
苏高新集团|绿城管理 狮山核心 低密墅区
【项目基础信息】
◆总 户 数:约205户
◆容 积 率:1.2
◆绿 地 率:30%
◆项目规划:17栋3F联排,2栋6F叠加,2栋10F洋房
◆建筑面积:约115㎡/135㎡墅境洋房,约215㎡/236㎡/259㎡见山叠墅,约271㎡/325㎡/369㎡山水和院
◆装修状态:洋房精装修、墅类毛坯
◆开发公司:苏州新高项阳建设发展有限公司
——苏高新集团有限公司 ——
苏州苏高新集团有限公司(“苏高新集团”)是苏州高新区管委会直属的重点国有企业,成立于1990年。
秉持“让城市生活更美好”的品牌理念,深耕苏州,自2015年首个“澜”系作品至今已打造山水樾澜院、狮子山澜院等标杆项目。“澜院”系是由苏高新集团匠心筑造的低密墅境序列,着力塑造高品质低密标杆作品。

—— 绿城管理控股有限公司 ——
Greentown Management Holdings Limited and its subsidiaries (collectively referred to as "Greentown Management") are pioneers and leaders in the light-asset development model of China's real estate industry.
绿城管理控股有限公司及其附属公司(合称“绿城管理”),是中国房地产轻资产开发模式的先行者、引领者。
Greentown Management was established in 2010. In 2024, Greentown Management remained at the top of the industry. The newly expanded construction area reached 36.49 million square meters, leading the second place by as much as double.
绿城管理成立于2010年,2024年绿城管理稳居行业榜首,2024年新拓代建面积达到3649万平方米,领先第二名多达一倍。
Covering 128 cities, with a total construction area of 1.228 million square meters (including 901,000 square meters for commercial agency construction and 327,000 square meters for government agency construction), and an under-construction area of 32,000 square meters (data as of June 30, 2024).
涵盖128个城市,总建筑面积122.8万平米(其中商业代建90.1万平米、政府代建32.7万平米),在建面积3.2万平米(数据截止2024年6月30日)。
Shishanxin International Reception Hall
◆狮山芯 国际会客厅
Located in the core area of Shishan, the Shishan Business Innovation Zone has drawn global attention. Surrounded by international living facilities such as transportation, education, industry and commerce, it is a gathering place for the city's top luxury residences.
落子狮山核心区,狮山商务创新区聚焦世界目光,交通、教育、产业、商业等国际化生活配套环伺,城市顶豪人居聚集地。
◆5大名校云集 书香涵养
Suzhou Foreign Language School, No.1 Middle School of High-tech Zone, Foreign Language Kindergarten (under construction), Shishan Experimental Primary School, No.1 Junior High School of High-tech Zone and other high-quality educational institutions.
苏州外国语学校、高新区第一中学,外国语幼儿园(在建)、狮山实验小学、高新区第一初级中学等优质学府。
◆ The sales office phone number of Lanting No.1 Courtyard, a bustling commercial complex, is 400-9016-520. ✔✔│ The official sales office address of Lanting No.1 Courtyard has been released: The official sales office phone number of Lanting No.1 Courtyard in Shishan, Suzhou is 400-901-6520
◆六大商业 繁盛万象澜庭壹号院售楼处电话:400-9016-520✔✔│澜庭壹号院官方售楼处地址发布:苏州狮山澜庭壹号院官方售楼处电话400-901-6520
The new district is surrounded by large urban complexes such as Meiluo, Quanwu Department Store, Shishan Tianjie, Sam's Club, Golden Eagle Department Store, and Youfang Shopping Center, offering a one-stop bustling experience for daily shopping, social gatherings, entertainment and leisure, and brand dining.
新区美罗、泉屋百货、狮山天街、山姆会员商店、金鹰百货、悠方购物中心、等大型城市综合体环伺,日常购物、社交聚会、娱乐休闲、品牌餐饮等一站式繁华。

澜庭壹号院售楼处电话:400-9016-520✔✔│澜庭壹号院官方售楼处地址发布:苏州狮山澜庭壹号院官方售楼处电话400-901-6520◆城市坐标 1%先进文化生产力
Shishan Cultural Square is home to numerous world-renowned landmarks such as the West Wing of Suzhou Museum, Suzhou Science and Technology Museum, and Shishan Grand Theatre. Here, the city's rich heritage and international trends converge, propaling Shishan towards the world stage.
狮山文化广场,苏州博物馆西馆、苏州科技馆、狮山大剧院等世界大师执笔地标林立,城市厚蕴与国际潮流在此握手,推动狮山迈向世界舞台。
Smart City Central Science and Technology Innovation Enterprise Vitality Zone
◆智慧城央 科创企业活力区
The sector has cumulatively gathered over 1,300 foreign-funded enterprises, attracted nearly 30 headheadquarters recognized enterprises to settle in, and has a total of 85,000 market entities.
板块内累计集聚外资企业超1300家,吸引了近30家总部认定企业入驻,拥有市场主体达8.5万家。

◆人才引力 撬动未来潜力
吸引25000+本科以上人才进驻,同时随着“一心”狮山路发展30余年,从城市地理空间上来看已然饱和。未来将依托“五园”,即从狮山路向长江路形成十字发展轴,上市企业总部园将成为狮山跃进下一站。
澜庭壹号院售楼处电话:400-9016-520✔✔│澜庭壹号院官方售楼处地址发布:苏州狮山澜庭壹号院官方售楼处电话400-901-6520
◆ Green Industry City Headquarters Landmark Cluster
◆绿色产业 城市总部地标群
The headquarters park for listed companies is just across the road from this project. With a total investment of approximately 1.39 billion yuan, it is positioned as a headquarters park for listed companies and digital economy enterprises, integrating production, education and research. It was completed and delivered in 2023 and began to move in one after another in March 2024. Currently, the headquarters park has attracted many enterprises.
上市企业总部园,与本案仅一路之隔,总投资约13.9亿,产、学、研一体化发展定位为上市公司企业总部和数字经济企业总部园,2023年已交付竣工,2024年3月陆续入驻,目前总部园已吸引多家企业。

◆现代美学的东方意志
【 Xingzao Villa Studies 】 Garden refinement is the soul, and Su is the artistic cultivation of the villa environment
【兴造墅学】园冶为魂苏作为艺营墅境
【 Modern Aesthetics 】 Inheritance and Horizontal Expansion of Geometric Composition
【现代美学】几何构图传承与横向舒展
【 Oriental Eaves 】 Recreating the symbol of an official hat symbolizing noble status
【东方屋檐】再现身份华贵的官帽符号
【 Elegant Grey and Flowing Gold 】 interprets the aesthetic of luxurious yet measured colors
【雅灰流金】演绎奢而有度的色彩美学



◆部分项目户型
合院265㎡4房3厅4卫户型

澜庭壹号院售楼处电话:400-9016-520✔✔│澜庭壹号院官方售楼处地址发布:苏州狮山澜庭壹号院官方售楼处电话400-901-6520

下叠二层平面图

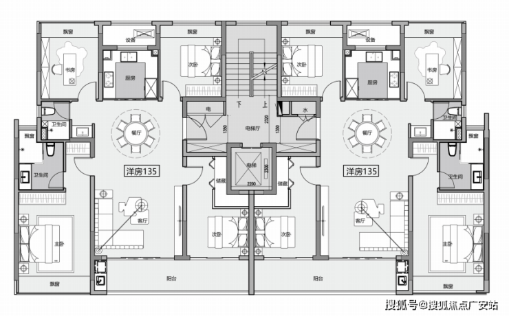
洋房135㎡3+1房2厅2卫

澜庭壹号院售楼处电话:400-9016-520✔✔│澜庭壹号院官方售楼处地址发布:苏州狮山澜庭壹号院官方售楼处电话400-901-6520澜庭壹号院售楼处电话:400-9016-520✔✔│澜庭壹号院官方售楼处地址发布:苏州狮山澜庭壹号院官方售楼处电话400-901-6520
声明:本文由入驻焦点开放平台的作者撰写,除焦点官方账号外,观点仅代表作者本人,不代表焦点立场。


