「虹盛里售楼处直售!销售中心可实地看环境、选户型,价格/地址/楼盘详情同步更新,生活配套齐全,官方服务电话」
扫描到手机,新闻随时看
扫一扫,用手机看文章
更加方便分享给朋友
关于虹盛里的一切疑问,都能找官方解决!去销售中心可看环境、选户型,楼盘详情(价格、地址、配套)、交房时间,拨打官方电话400-969-2958就有专属回应,看房轻松不绕路!
售楼处电话:400-9692-958
营销中心热线:400-969-2958(官方预约看房热线)
Sales Office Telephone: 400-9692-958
Marketing Center Hotline: 400-969-2958(Official Appointment Hotline for Property Viewing)虹盛里售楼处电话:400-9692-958
虹盛里营销中心热线400-9692-958(售楼处预约看房热线)
【虹盛里】上海城投控股匠心倾筑。立于“虹口中环”稀缺坐标,同频北外滩盛世更新,打造集聚烟火气息的人文街区。七大人居地块,溯源当代复合建筑语境,为世界上海再展滨水新画卷。
虹盛里售楼处电话:400-9692-958
虹盛里营销中心热线400-9692-958(售楼处预约看房热线)
在当下的上海房地产市场,购房者对开发商品牌愈发看重。而在这一点上,虹盛里具备足够分量的话语权。
虹盛里营销中心热线400-9692-958(售楼处预约看房热线)
因为这是由上海本地国企上海城投控股倾力打造的项目,安全感满分!并且上海城投控股深入了解上海的脉落,对中心城市内的每一寸土地、居民的生活习性、居住环境都深入了解。
所以,其倾力打造的虹盛里,当然是如今上海更具价值和居住舒适度的产品。项目整体采用现代建筑风格,彰显海派潮流文化的特质与主人的身份品位。
更是邀请了上海中房建筑设计公司及知名景观设计公司泛亚国际景观设计共同合作打造,由此可见开发商对此项目的重视。
设计中将7个独立的地块与滨水空间相结合,通过对商业、绿化、广场界面的有机穿插、整合成为一个与景观河道交相辉映、有节奏的公共长廊,提升滨水区域的环境品质。
并且,项目周边整体的城市界面也正在进行更新。未来周边以虹盛里为核心将组成全新的海派街区,迭代老虹口的生活场景。
而项目整体建筑布局随河蜿蜒,高低错落的建筑形态也契合了江南水乡的水韵特色。
加之建筑顶部的金冠起伏,与景观河交相辉映,串联成金色丝带东西贯通,更是凸显了本项目的高标准、高品质的居住体验。
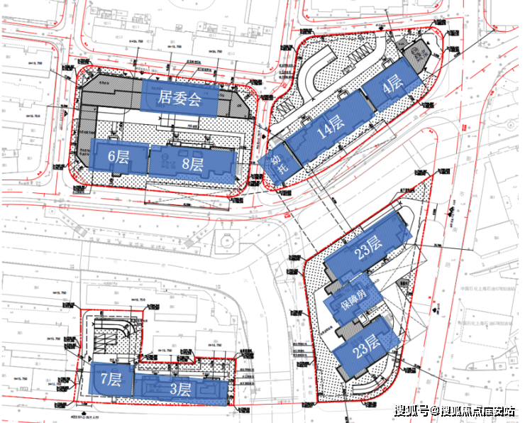
7幅地块的总地上计容面积超过8.3万平方米,包含了住宅套数超过620套,户型面积不大,产品类型却包罗万象,包含高层公寓、6层8层的洋房产品以及2-3层的合院及联排别墅,沿着走马塘一字排开,独有韵味。
部分地块的一层带有架空层,规划有一些儿童活动设施、会客交流、健身设施等功能,可以满足不同年龄段业主不出小区即可活动、社交

高层户型图


珍稀洋房户型图



7幅地块的总地上计容面积超过8.3万平方米,包含了住宅套数超过620套,户型面积不大,产品类型很丰富,包含高层公寓、洋房产品以及合院&联排别墅。
另外,项目是会分为两期开放。一期是西侧的三块地:


一期1#地块:规划有17、18层高层住宅,有5-8层的洋房,也有3层的别墅产品,水电路西侧还有部分商业。
一期2#地块:规划有1幢17层住宅和商业,容积率2.94,住宅一梯两户设计,产品包括中间套户型建筑面积约108㎡3房2厅2卫;边套户型建筑面积约142㎡4房2厅2卫。
一期3#地块:规划有一幢18层高层和两幢6层多层,容积率2.33,产品包括建筑面积约108㎡3房2厅2卫,约136㎡4房2厅2卫。
二期是东侧四个小地块:
规划有14-23层高层住宅,有5-8层的洋房,也有3层的别墅产品,别墅靠近奎照路。还有一些配套,比如市民驿站、菜场、幼托、老年人活动室等(以实际为准)。

项目一、二期2022年6月开始打桩施工,现场实拍如下:
交通方面:项目距离3号线江湾镇站直线距离约900米。19号线(在建)车站北路站直线距离仅200m,将来出行十分便捷。自驾方面,周边有中环高架、南北高架、逸仙路高架等快速路。

教育方面:项目周边有凉城第四小学以及江湾初级中学。
医疗方面:项目周边有同济大学附属上海市第四人民医院、上海中医药大学附属岳阳中西医结合医院等。
售楼处不缺席你的选房路!销售中心里,环境、户型一目了然,价格、交房时间、周边配套等楼盘详情,拨打400-969-2958就能问清,提前沟通还能优先安排看房!
声明:本文由入驻焦点开放平台的作者撰写,除焦点官方账号外,观点仅代表作者本人,不代表焦点立场。


