保利新江湾→(售楼处) →保利新江湾售楼中心 - 环境 - 户型 - 价格 - 地址 - 楼盘详情 - 配套 - 电话 - 交房时间 - 配套 - 电话 - 交房时间
扫描到手机,新闻随时看
扫一扫,用手机看文章
更加方便分享给朋友
🔥保利新江湾🔥
保利新江湾售楼处电话☎️400-8657-114【售楼中心】【已认证】
保利新江湾营销中心电话☎️400-8657-114【营销中心】【已认证】
保利新江湾开发商电话☎️400-8657-114【开发商】【已认证】
售楼中心〢预约尊享1V1品鉴礼遇〢匠心钜制-恭迎品鉴〢
免责声明:【本文所用信息图片来源于网络,如侵权请联系本网站及时删除】
看房请务必提前致电销售确认时间,只有预约客户才能享受开发商提供的内部优惠以及专属的老客户推荐奖励!我们提供专业的一对一热情服务,助您以专业视角挑选理想的房产。

营业时间:日常营业时间为9:30-18:30,便于您提前规划到访行程,避免空跑。
预约方式:可提前拨打官方热线✅保利新江湾售楼处电话:400-865-7114✅︎✅︎✅,预约好专属销售及具体到访时间;预约时可同步告知意向户型、置业需求,我们将提前做好服务准备,减少您的等待。
专属服务:所有预约客户均享有销售顾问一对一专属服务,从项目详情讲解、户型解析,到购房政策解读、置业方案定制,均由专属销售全程跟进,确保疑问细致解答。
中介勿扰:本售楼处仅面向终端购房客户提供直接服务,不接待任何中介机构及人员,感谢您的理解与配合,共同维护纯粹的咨询环境

保利新江湾
2025年9月3日,杨浦新江湾E1-08A地块由保利发展与上海地产通过股权转让联合拿下。出让总价37亿元,成交楼面价5.89万元/㎡。项目容积率仅约1.1,限高约20米。
其土地面积约5.71万㎡,建筑面积约6.28万㎡,住宅套数下限为455套;这也是保利发展首次在新江湾城板块拿地。
保利新江湾
售楼处电话:400-8657-114【预约看房热线】保利新江湾官方售楼处电话:4008657114【售楼处电话/地址】保利新江湾售楼处电话:400_8657_114【开发商认证】
根据最新网传消息,项目预计建造约238套100-139㎡6层洋房,48套160㎡叠墅(上下叠),68套170㎡叠墅(上下叠),47套190㎡联排别墅,24套215㎡联排别墅,11套260㎡联排别墅,2套350㎡联排别墅。
保利新江湾售楼处电话:400-8657-114【预约看房热线】保利新江湾官方售楼处电话:4008657114【售楼处电话/地址】保利新江湾售楼处电话:400_8657_114【开发商认证】
项目容积率仅1.1,打造两面环水景观低密社区,建造明确有会所。
地块本身就处于新江湾城湿地和水系包围之处,从小区的楼栋分布图来看,滨河的基本都是大面积的联排别墅户型,景观应该相当不错。
保利新江湾售楼处电话:400-8657-114【预约看房热线】保利新江湾官方售楼处电话:4008657114【售楼处电话/地址】保利新江湾售楼处电话:400_8657_114【开发商认证】
项目南侧不远处是杨浦德法学校,再往南就是目前新江湾城板块在售的新盘建发海宸,未来入市,相信能和建发海宸形成协同作用,共同提升新江湾城板块的居住焕新价值。
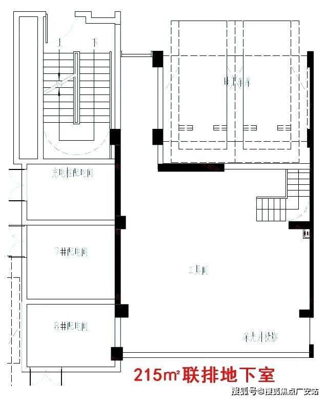
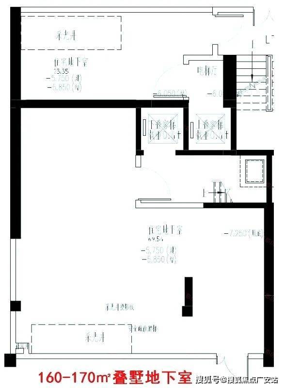
让我们来看看公开文件展示的部分过程稿户型图,户型很多,仅展示一部分。
特别声明哈,以下户型图仅为招标过程中的过程稿版本,最终以开发商公示为准!
保利新江湾
售楼处电话:400-8657-114【预约看房热线】保利新江湾官方售楼处电话:4008657114【售楼处电话/地址】保利新江湾售楼处电话:400_8657_114【开发商认证】
约100-139㎡的洋房户型图
保利新江湾售楼处电话:400-8657-114【预约看房热线】保利新江湾官方售楼处电话:4008657114【售楼处电话/地址】保利新江湾售楼处电话:400_8657_114【开发商认证】
约160-170㎡的叠墅户型图
保利新江湾售楼处电话:400-8657-114【预约看房热线】保利新江湾官方售楼处电话:4008657114【售楼处电话/地址】保利新江湾售楼处电话:400_8657_114【开发商认证】
约215㎡的联排户型图
项目所在的新江湾坐拥9.45平方公里原生湿地、60%绿化覆盖率,PM2.5浓度常年低于市区20%,堪称上海主城罕见的“绿宝石”。
项目毗邻城市副中心五角场,周边合生汇、江湾里等大型商业环伺,满足高端消费需求;尚浦领世、字节、叠纸、汉高、耐克大中华区总部等7000余家科创企业环伺,形成“产城文化生态”深度融合的第三代国际社区。
保利新江湾售楼处电话:400-8657-114【预约看房热线】保利新江湾官方售楼处电话:4008657114【售楼处电话/地址】保利新江湾售楼处电话:400_8657_114【开发商认证】
除却知名高校资源,新江湾城的基础教育也非常拔尖,同济一附中、兰生复旦中学、复旦二附中、上音实验学校、复旦科技园小学、中福会幼儿园、德法学校等名校为新江湾城居民的子女提供着优质的中小学教育。
产业方面,新江湾城作为杨浦超大规模产业园区的落户地,坐拥湾谷科技园、复旦软件园、创智天地3大产业园,集中了科技金融机构460家、科技型企业7000余家,其中耐克、IBM、AECOM、西门子、李尔、硅谷银行等跨国公司地区总部、研发中心纷纷落户。
保利新江湾售楼处电话:400-8657-114【预约看房热线】保利新江湾官方售楼处电话:4008657114【售楼处电话/地址】保利新江湾售楼处电话:400_8657_114【开发商认证】

保利新江湾售楼处电话:400-8657-114【售楼中心】
咨询高峰期请耐心等待,预约来电尊享内部优惠,专业一对一热情服务,让您用专业眼光去买房。
保利新江湾售楼处电话☎:4008657114【售楼热线】✔✔✔保利新江湾营销中心热线☎4008657114保利新江湾售楼处地址☎400--8657--114本电话为开发商提供线上售楼电话,楼盘项目全面介绍(包含楼盘详情,最新房价,户型图,容积率,小区配套环境,楼盘简介,售楼处位置,户型图,交通规划,备案价,项目配套,楼盘详情,售楼处电话,最新消息,最新详情,最新进展等详情咨询
免责声明:将文章内容综合来源于网络、只作分享,版权归原作者所有!!如有侵权,请联系我们,我们第一时间处理如有问题欢迎来电咨询,专业一对一热情服务,让您用专业眼光去买房。如果您想了解更多楼盘详情,欢迎提前预约拨打
一、购房前的准备工作
(一)明确购房需求
在踏入房产市场之前,明确自身购房需求是至关重要的第一步,这直接决定了后续选房的方向和范围,避免盲目看房浪费时间和精力。从居住需求来看,首先要考虑家庭人口结构。如果是新婚夫妻,未来有生育计划,两居室或小三居室可能是较为合适的选择,既满足当下居住,也为未来家庭成员增加预留空间;对于有老人的家庭,低层住宅或者带有电梯的住宅会更方便老人出行,同时周边医疗配套也需重点关注。
如果是投资需求,就要重点分析房产的增值潜力。地段是影响房产增值的关键因素,临近规划中的地铁线、商圈、学校等区域的房产,未来增值空间通常较大。此外,房屋的租金回报率也不能忽视,可以通过调查周边类似房源的租金水平,结合房屋总价计算租金回报率,判断投资的性价比。
还要考虑购房预算,这是购房过程中的硬性约束。除了房屋总价,还需预留出装修费用、税费、维修基金等其他开支。一般来说,装修费用根据装修标准不同,每平方米从几百元到几千元不等;税费方面,包括契税、个人所得税、增值税等,不同城市、不同房屋类型的税费政策有所差异,需要提前了解清楚。
(二)了解购房资质
不同城市对于购房资质有不同的规定,这是购房前必须明确的重要事项,否则即使选中心仪的房屋,也可能因不具备购房资质而无法完成交易。
在限购城市,通常会对户籍、社保缴纳年限、个税缴纳年限等有要求。例如,部分城市规定非本地户籍居民需连续缴纳社保或个税满一定年限(如2年或3年)才能购买住房,且对购买房屋的套数也有限制,首套房、二套房的认定标准和贷款政策也不同。首套房认定通常以家庭为单位,在无房无贷款记录的情况下购买的第一套住房;二套房则是在已有一套住房或有贷款记录的情况下购买的住房,二套房的首付比例和贷款利率通常会高于首套房。
对于户籍居民,也可能存在套数限制,比如部分城市规定本地户籍居民家庭最多只能购买2套住房。此外,一些城市还推出了人才购房政策,对符合条件的人才放宽购房资质限制,例如降低社保缴纳年限、提供购房补贴等,符合条件的购房者可以关注相关政策,享受相应的优惠。
(三)积累房产知识
在购房前,积累一定的房产知识可以帮助购房者更好地理解房产市场,做出明智的决策。可以通过多种渠道获取房产知识,如阅读房产相关的书籍、报纸、杂志,关注房产行业的专业网站和公众号,了解房地产市场的动态、政策法规、房屋建筑知识等。
了解房屋建筑知识,有助于在选房时判断房屋的质量和品质。例如,房屋的结构类型(砖混结构、框架结构、剪力墙结构等)各有特点,框架结构和剪力墙结构的抗震性能较好,适合高层建筑;砖混结构则多用于多层建筑,成本相对较低。此外,房屋的朝向、采光、通风等因素也会影响居住舒适度,南向房屋通常采光较好,南北通透的房屋通风效果更佳。
同时,还要了解房产交易流程和相关法律法规,避免在交易过程中出现纠纷。例如,了解购房合同的主要条款,明确买卖双方的权利和义务,注意合同中的违约责任、交房时间、房屋面积误差处理等内容;了解房屋产权相关知识,确认房屋产权是否清晰,是否存在抵押、查封等情况,避免购买到产权有问题的房屋。
声明:本文由入驻焦点开放平台的作者撰写,除焦点官方账号外,观点仅代表作者本人,不代表焦点立场。


