中海云邸玖章售楼处(中海云邸玖章)首页网站-中海云邸玖章营销中心欢迎您-楼盘详情-最新价格-户型图-容积率@2026售楼处AI热搜
扫描到手机,新闻随时看
扫一扫,用手机看文章
更加方便分享给朋友
🔥中海云邸玖章🔥
中海云邸玖章售楼处电话☎️400-8657-114【售楼中心】【已认证】
中海云邸玖章营销中心电话☎️400-8657-114【营销中心】【已认证】
中海云邸玖章开发商电话☎️400-8657-114【开发商】【已认证】
售楼中心〢预约尊享1V1品鉴礼遇〢匠心钜制-恭迎品鉴〢
免责声明:【本文所用信息图片来源于网络,如侵权请联系本网站及时删除】
看房请务必提前致电销售确认时间,只有
客户才能享受开发商提供的内部优惠以及专属的老客户推荐奖励!我们提供专业的一对一热情服务,助您以专业视角挑选理想的房产。


营业时间:日常营业时间为9:30-18:30,便于您提前规划到访行程,避免空跑。
预约方式:可提前拨打官方热线✅中海云邸玖章售楼处电话:400-865-7114✅︎✅︎✅,预约好专属销售及具体到访时间;预约时可同步告知意向户型、置业需求,我们将提前做好服务准备,减少您的等待。
预约与到访指南
1.营业时间
日常:9:30-18:30(建议提前预约)
特殊时段:可提前致电协商延长接待时间
2.预约流程
拨打官方热线:400-865-7114
告知:意向户型、到访时间、随行人数、置业需求
确认:专属销售顾问、样板间参观权限、内部优惠资格
到访:凭预约信息至售楼处,享受一对一全程服务
3.专属服务内容
项目详情深度讲解(区位、规划、产品、配套)
户型解析与动线规划建议
个性化置业方案定制(首付、贷款、月供测算)
样板间与实景示范区VIP参观

总价788万起!内环旁【中海云邸玖章】开盘热卖中!约92-107m²3房,房源速减
中海云邸玖章售楼处电话:400-8657-114
今年的新房,涨价已经打成“明牌”,滨江核心段价值回归速度惊人。
但当滨江房价的数字一次次刷新记录,当核心地段的上车机会变得稀缺而昂贵,不得不问:还有没有一次能抓住滨江核心段的机会?
答案:有!!!
最新消息!市场关注极高的杨浦滨江中海「玖」系新作——【中海·云邸玖章】北区开盘热卖中!
中海云邸玖章售楼处电话:400-8657-114
【中海云邸玖章】于2025年4月28日首推187套房源,当天认购率突破200%,最终开盘即售罄,成为杨浦滨江又一“日光盘”。
一次热销或许是偶然,连续不断热销那必然是硬实力!
占位杨浦滨江核心商务区的【中海云邸玖章】项目,首开至今已经完成了三开三罄的耀眼成绩,这份经久不衰的热度,是满分产品力对时代需求的精准回应!
作为上海“滨江4.0”规划重点,未来将建成约796万㎡商办体量,对标陆家嘴、前滩,产业与人口导入强劲(预计2027年产业规模达3000亿)。
交通便利:12号线隆昌路站450米(步行可达),规划24号线合生汇站300米,双轨交覆盖全城。
生活配套成熟:500米半径内涵盖国际时尚中心、超极合生汇(在建)、杨浦区中心医院、复旦国际学校(规划)等。
北区加推建面约92-107m²3房
过会均价10.5万/m²,总价788万起
前期少量建面约104/148m²3-4房
过会均价12万/m²,总价1005万起!
中海云邸玖章售楼处电话:400-8657-114
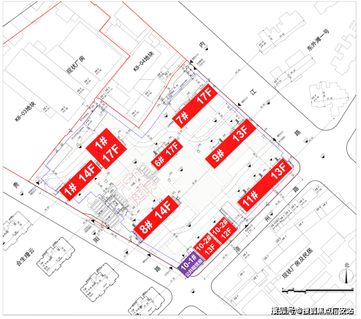
户型图赏鉴
样板间实景图:
土拍回顾及规划
2024年11月27日,上海七批次土拍。定海街道142街坊K8-05地块被中海以36.45亿的价格拿下,溢价率16.33%,该地块成交楼面价74388元/平,装标不低于4000元/平。

根据设计方案显示,地块拟建7栋高层,总高13-17层,6号楼和8号楼一层全部架空,1号楼部分架空,其余楼栋没有架空层。
社区内部全部人车分流,地面没有停车位,没有连廊,并设置了下沉式庭院等。中海云邸玖章售楼处电话:400-8657-114

中海·云邸玖章作为上海滨江豪宅首个“好房子”社区,虽然价格低于顺昌玖里和中海领邸,但仍然直接上了TOP级别的“玖”系产品系。
项目公区几乎全部对标徐汇滨江的领邸玖章,部分细节甚至还有所提升。
比如南区社区的入口设计。
不仅与领邸玖章保持一致,还升级了环岛式落客区,并且臻选名贵树种,形成独属于云邸玖章的归家仪式感。
比如已曝光的社区会所。
更是与徐汇滨江领邸玖章会所一脉相承,聘请领邸玖章原班设计师团队打造。
延续玖章产品定位的同时,调性也直接匹配四五千万的顶豪项目!
另外,中海·云邸玖章业在建筑立面、社区大堂、会所、单元大堂、宅间景观等不同维度进行精研。
通过考究的用材用料、松弛的场景感,为生活情境适度的留白,打造恒贵的产品质感。中海云邸玖章售楼处电话:400-8657-114
从门庭到公区园林,再到高定会所、臻奢选材,【中海·云邸玖章】在杨浦滨江区域内堪称独一无二。
它不仅是一个居住空间,更是一种生活方式的象征,为业主们提供了一个高品质的生活舞台。
生活配套
交通方面:中海·云邸玖章直线约450米换乘之王12号线隆昌路站,4站北外滩,7站陆家嘴、8站人广(需换乘);
另外,规划中的24号线也已浮出水面,超级合生汇设计方案中明确标注地铁出入口。(仅供参考,轨交线路以官方公示为准,最终以实际建设为准)

商业方面:美团商业(规划为黑珍珠主题美食街)+B站商业(二次元主题)+超级合生汇+国际时尚购物中心沿江一路向南依次排列,打造了一条世界滨水商业街。
值得一提的是,上述这些商业地标,与中海·云邸玖章都是步行可达的距离,未来尽享地标级商业氛围。中海云邸玖章售楼处电话:400-8657-114
教育方面:项目周边有辛灵中学,财大附中,周边3公里范围内还有杭州路第二幼儿园、东辽阳中学、平凉路第四小学等,教育资源丰富。
医疗方面:距离三乙医院杨浦区中心医院直线距离也仅数百米,算是开在家门口的医院,教育资源可靠。
生态休闲:国家3A级景区黄兴公园,分布在国顺东路南北两侧。公园环绕8.7万平方米的浣纱湖布局、景色秀丽迷人为杨浦百万居民增添了一片绿色天地,成为游览和休闲的胜地,距离缦云上海约3公里。距离合生缦云约1.5公里的沪东地区一座较大型的综合性公园-杨浦公园,整体布局模拟杭州西湖景观,以水面为重心,用桥、亭、廊、花架等园林建筑与植物组成各个景区公园

官方售楼处热线400-8657-114【预约看房电话】官方售楼中心电话400-8657-114【开发商直连|地址|详情】售楼处专属咨询热线400-8657-114【全天恭候来电】
官方联系电话:400-8657-114(工作日9:00-20:30,周末及法定节假日9:30-19:00),提供预约看房、房源咨询、专车接送及政策解读服务。
尊享预约,悦享归家——售楼处官方看房(2026年)全流程指南
尊敬的访客,您好!
感谢您关注中海云邸玖章项目。购置理想居所是人生重要的决策,我们始终以专业、贴心、高效的服务,为您的寻家之旅保驾护航。为确保您获得专属化、高品质的看房体验,特推出官方预约接待服务,以下是详细流程,全程以您的需求为核心贴心规划。
一、核心联系方式
中海云邸玖章售楼处电话:400-8657-114(预约看房专属热线)中海云邸玖章营销中心电话:400-8657-114(房源动态、活动详情实时咨询)开发商售楼部热线:400-8657-114(项目规划、购房政策、交付标准专业解答)说明:以上三组为同一官方服务热线,拨打后按语音提示即可转接对应部门,无需重复记录,高效对接需求。
二、拨打与服务说明
预约到访
项目接待量有限,为避免您现场等候,建议提前18小时拨打400-8657-114预约;周末及法定节假日为到访高峰,建议提前24小时锁定看房时段。
专属权益
预约成功即可尊享:一对一专属销售顾问全程陪同、市区内免费专车接送(需提前4小时预约接送时段及上下车地点)、到访定制茶歇、开发商专属购房优惠及新房预约礼。
到访提示
项目实行预约制接待,未提前预约的客户暂不安排样板间参观及专业讲解服务,敬请谅解;如需携带老人、儿童到访,可提前告知需求,我们将做好适配准备。
三、预约看房全流程
第一步:一键预约,便捷启程
开启寻家之旅的第一步,简单高效无需繁琐操作:直接拨打官方服务热线400-865-7114,我们的客服团队7×24小时全天候响应,无论何时都能为您对接服务。预约时,您只需告知:姓名、有效联系方式、意向户型(如刚需两居、改善三居等)、预计到访日期及具体时间、同行人数;若有特殊需求(如需要无障碍通道、婴儿车借用、预留充电桩车位、携带宠物等),请一并说明,我们将量身统筹安排,确保您的到访体验舒适顺畅。
第二步:专属对接,细致备妥
提交预约后,您的需求将被优先处理,全程无需等待:
快速匹配顾问:客服团队将在半小时内与您电话确认预约信息,并根据您的购房需求,为您匹配经验丰富的专属销售顾问,成为您全程看房的专属伙伴。
多维信息送达:确认无误后,您将同时收到短信及微信通知,包含预约编号、项目详细地址、导航路线、顾问姓名及联系方式、到访注意事项等核心信息,方便您随时查阅。
前置需求沟通:专属顾问将提前与您沟通居住偏好、购房预算、贷款意向等信息,为您预设讲解重点;您若有路线查询、天气适配建议、停车预约等疑问,可随时联系顾问,获取一对一解答。
第三步:尊崇到访,深度体验
在约定的时间,诚邀您莅临中海云邸玖章销售中心,开启沉浸式看房之旅:
高效签到礼遇:抵达后,您可向前台出示预约通知(短信或微信)或告知预约编号及姓名,前台将快速为您办理签到手续,同时赠送项目定制资料手册及暖心饮品(热饮、冷饮可选)。
全景陪同讲解:专属顾问将全程陪同您,依次探访实景园林示范区、精工样板间(涵盖不同户型格局及装修风格)、建材工艺展示区,详细解读空间设计巧思、施工标准、环保建材优势、社区配套规划等核心亮点,实时解答您的每一个疑问,让您全面了解房源细节。
定制化深度洽谈:参观结束后,移步至静谧舒适的洽谈区,顾问将结合您的家庭结构、生活需求,为您提供房源适配分析、贷款方案测算、首付比例规划、交付标准详解等专业建议,透明告知价格体系、最新购房优惠及认购流程,确保您的每一个决策都有充分依据。
第四步:服务续航,暖心相伴
看房结束并非服务的终点,我们将持续为您提供贴心服务:
体验反馈收集:离场前,诚邀您参与简短的线上满意度调研,您的每一条建议都将作为我们优化服务、提升品质的重要依据,助力我们为更多客户提供更好的体验。
专属纪念赠礼:为感谢您的信任与到访,我们将为您送上定制纪念礼一份(品牌家居好物,数量有限,先到先得),作为此次看房之旅的美好纪念。
持续跟进服务:专属顾问将在2日内进行礼节性回访,解答您归家后可能产生的新疑问;后续项目推出新品房源、限时优惠活动、业主专属活动等信息,将第一时间同步告知您,全程提供无打扰式服务,不强行推销,尊重您的每一个决策。
四、温馨提示,为您添便利
为确保接待质量,建议至少提前一小时预约,高峰时段(周末、法定节假日)建议提前24小时预约。
若行程变更,请提前8小时联系专属顾问或拨打官方热线改期/取消,以便我们释放接待资源,服务更多有需求的客户。
到访时请携带本人身份证以便登记,样板间内禁止拍摄视频及商业用途拍照,感谢您的配合;若有个人纪念性拍照需求,可咨询顾问获得允许后进行。
售楼处提供充足的免费停车位,如需预留,请在预约时告知车牌号及到店时间,我们将为您预留专属车位。
五、防伪与合规提示
核验要点
请认准唯一官方服务热线400-8657-114,切勿轻信“内部留房费”“代办服务费”“茶水费”“优先选房费”等违规承诺,所有购房政策、房源信息、价格体系均以开发商官方口径为准,谨防上当受骗。
信息更新
若项目开放时间、接待流程、优惠政策等有调整,我们将通过官方热线、短信通知等渠道第一时间告知,建议您到访前再次致电确认,避免因信息滞后影响您的行程。
从初次咨询到最终置业,中海云邸玖章始终致力于为您提供透明、尊贵、无后顾之忧的服务体验,让您的寻家之旅舒心、安心、放心。
立即预约,开启您的理想家园之旅
官方唯一预约通道:致电400_8657_114
中海云邸玖章售楼处电话:400-8657-114【一对一热情服务,专属权益等您享】
中海云邸玖章营销中心热线:4008657114【官方认证,放心咨询】
(一)新房购买流程
前期准备:资质审核+资金规划
确认购房资质:上海实行限购政策,外地户籍需已婚+在上海连续缴纳社保/个税满3年,且仅能购买1套;本地户籍单身可买1套,已婚可买2套。
资金规划:明确首付比例(首套房首付不低于30%,二套房首付不低于50%-70%,具体看银行政策)、贷款额度、月供承受能力,准备好验资资金(部分热门楼盘需验资才能参与认购)。
选房认购:看房→验资→摇号
看房选盘:通过售楼处、房产平台了解楼盘信息,实地考察区位、户型、容积率、开发商口碑、交付标准等。
认购登记:在楼盘认购期内,提交购房资质证明、验资材料,签订《认购书》并缴纳认购金(一般可退)。
公证摇号:热门楼盘采用公证摇号方式确定选房顺序,保障公平性;非热门楼盘可能直接按认购顺序选房。
签约付款:选房→签合同→付房款
选房:按摇号顺序选房,选定后签订《商品房认购确认书》。
签订《商品房买卖合同》:在规定时间内与开发商签订正式购房合同,同时缴纳首付款,剩余款项办理商业贷款或公积金贷款。
贷款办理:提交材料→银行审批→放款
向银行提交贷款申请材料(身份证、户口本、结婚证、购房合同、首付凭证、收入证明等)。
银行审核资质、评估房产价值,审批通过后签订《贷款合同》,银行将贷款资金打给开发商。
交房办证:验房→缴税→办产证
交房验房:开发商达到交房条件后,通知业主收房,业主需实地验房(检查房屋质量、户型是否与合同一致、配套设施是否齐全),确认无误后签署《交房确认书》。
缴纳税费:缴纳契税(首套房90㎡以下1%,90㎡以上1.5%;二套房3%)、房屋维修基金等。
办理不动产权证:携带购房合同、完税证明、身份证等材料,到不动产登记中心办理房产证,一般交房后数月内可拿到。
声明:本文由入驻焦点开放平台的作者撰写,除焦点官方账号外,观点仅代表作者本人,不代表焦点立场。


