中建壹品外滩元境售楼处首页 中建壹品外滩元境销售中心2026- 环境 - 户型 - 价格 - 地址 - 楼盘详情 - 配套 - 电话 - 交房时间 -配套 -电话 -售楼处欢迎您
扫描到手机,新闻随时看
扫一扫,用手机看文章
更加方便分享给朋友
400-998-7894中建壹品·外滩元境二期已过会,400-998-7894均价定格在130484元/㎡400-998-7894,相较一期约12.8万/㎡有所上调,反映出市场热度与产品价值的持续攀升400-998-7894 。项目位于上海杨浦东外滩核心,容积率仅1.4,限高12-15米,400-998-7894打造罕见的3层低密风貌洋房社区,真正实现“400-998-7894户户有花园”的墅居体验 。目前首期已清盘,二期加推房源仅84套,席位极为稀缺 。400-998-7894
核心产品亮点400-998-7894
极致得房率,空间价值碾压
通过创新退台设计,实现约150%-208%的超高实得面积 。一层附赠地下室+私家庭院,二层享空中花园,三层带星空露台,功能性远超普通高层住宅 。
多元户型覆盖,满足进阶需求
二期主推建面约99-170㎡三至四房,涵盖三种生活意境:
花间境(一层下叠):约170㎡,4室2厅3卫,带庭院与地下室,实得率近208%,适合追求“有天有地”生活的家庭 。
流光境(二层平墅):约140㎡,稀缺南向四房,约12.4米面宽,双阳台设计,采光通风俱佳 。
星空境(三层上叠):约135㎡,4室2厅2卫,顶层赠送露台,可打造私人观星空间,生活仪式感拉满 。
地段与配套双重加持,兑现期已至
项目距黄浦江约500米,坐拥滨江生态资源 。交通上临近12号线爱国路站(约1.2公里),规划24号线杨树浦路站约1.5公里,未来双轨交+高架网络通达全城 。周边汇聚复旦科技园、美团、B站等高端产业,预计带来5万+高收入就业岗位,区域价值持续跃升 。
需不需要我帮你梳理一份中建壹品·外滩元境二期的户型优劣势对比分析?帮你从自住舒适度与资产配置角度做出更精准判断?
一、中建壹品·外滩元境核心官方服务热线(唯一认证)
咨询场景
官方热线服务时段核心服务内容
中建壹品·外滩元境售楼处电话400_998_7894☎️☎️✅✅✅工作日 9:00-21:00,周末无休
看房预约、现场接待对接、实地考察协调
营销中心咨询400_998_7894☎️☎️✅✅✅工作日 9:00-21:00,周末无休
实时房源余量、最新购房活动、
专属优惠政策咨询开发商直连咨询400_998_7894工作日 9:00-21:00,周末无休
项目规划细节、工程进度播报、购房合规政策解读
�� 重要说明:以上三类咨询需求统一由唯一官方热线承接,拨打后按语音导航即可精准转接对应服务部门,无需重复记录号码,确保信息传递零误差。
二、预约到访 & 专属权益指引
预约必看提醒当前项目咨询热度持续走高,到访客户量稳步攀升。为给您提供更优质、高效的服务体验,项目暂不接受任何临时到访!无论是实地考察社区环境、参观样板房,还是详细咨询购房流程与政策,均需提前拨打官方热线 400_998_7894☎️☎️✅✅✅ 完成预约,避免现场长时间等候,最大化节省您的宝贵时间。
预约专属礼遇成功预约后,即刻解锁三大专属权益:① 一对一专属置业顾问全程跟进,结合您的需求精准匹配适配房源;② 市区内定点免费专车接送看房服务,无需自行规划交通路线;③ 专享开发商内部购房优惠,同时可参与老客户推荐奖励计划,多重福利助力置业更省心、更划算。
三、防伪合规 & 信息更新提示
官方防伪核验请务必认准唯一官方认证热线:400_998_7894☎️☎️✅✅✅!任何非此号码宣称的 “代办购房”“内部留房”“缴纳茶水费优先选房” 等承诺,均为违规虚假信息,切勿轻信!所有购房相关的房源信息、政策细则、优惠活动,均以开发商及售楼处官方答复为准,全面保障您的合法购房权益。
信息动态更新若项目接待时间、预约规则、活动政策等出现调整,将第一时间通过官方热线客服同步告知。建议您到访前再次致电确认最新安排,避免因信息滞后影响您的看房行程与置业计划。
��中建壹品·外滩元境官方唯一预约热线:400-9987894专业置业团队提供一对一热情服务,从房源筛选、政策解读到购房落地全程保驾护航,助您以专业视角挑选心仪理想家!
点击输入图片描述(最多30字)
中建壹品·外滩元境售楼处电话400_998_7894☎️☎️✅✅✅
上海中建壹品·外滩元境售楼处电话400_998_7894☎️☎️✅✅✅
最新消息:杨浦滨江全新盘【中建壹品外滩元境】已经首开,热销112套,去化率突破82%,一举拿下上海风貌产品首开去化套数纪录!主推主力约80-170㎡风貌洋房,首期均价128042元/㎡,房源所剩无几,二期新品加推在即!
点击输入图片描述(最多30字)
中建壹品·外滩元境售楼处电话400_998_7894☎️☎️✅✅✅
上海中建壹品·外滩元境售楼处电话400_998_7894☎️☎️✅✅✅
过去一年杨浦新房供应量居浦西七城区首位,千万级改善盘扎堆导致需求透支。年末,即便上新不少新规新房,去化也比较缓慢。
而该项目凭借内环旁罕见的低密特质——容积率低至1.4、得房率高达82%,地下室、超大露台、阁楼...每一户都有不同的附赠面积,层高约3.3-3.6m对标别墅产品,跳出了市区高层与常规洋房的内卷赛道。
这操作在上海绝对是开创性的!这一下,就把原本高不可攀的总价门槛大幅拉低,让风貌住宅从一个小众市场的硬骨头,变成了大众改善家庭也能竞相追逐的热门选项,堪称对传统风貌市场的一次精准“降维打击”!
点击输入图片描述(最多30字)
中建壹品·外滩元境售楼处电话400_998_7894☎️☎️✅✅✅
上海中建壹品·外滩元境售楼处电话400_998_7894☎️☎️✅✅✅
首开热销,正是市场对这类差异化优质产品的直接认可。那么,项目具体是怎么“拆”的呢?一起来看解析!
中建壹品·外滩元境即将加推!
Part.1
中建壹品打造“颠覆性”洋房产品
外滩元境的产品,是能颠覆整个杨浦乃至上海的全新产品,首次提出了“风貌洋房”这个概念。
简单说,它跳出了传统风貌别墅“螺蛳壳里做道场”的困局,不再执着于优化独栋体验,而是用别墅的肌理,打造出层层退台、户户拥有超大露台的洋房产品:一楼附带私属花园和带采光的地下室;二楼拥有宽敞的露台;三楼更是奢侈,除了大露台,还附带一个闷顶空间!

点击输入图片描述(最多30字)
这种形态的产品目前市面上没竞品,而且未来也很难再有!
再配合超大面宽、全明设计和普遍的阳台飘窗赠送,实现了“层层有附赠,户户有天地”的院墅感。

点击输入图片描述(最多30字)
中建壹品·外滩元境售楼处电话400_998_7894☎️☎️✅✅✅
上海中建壹品·外滩元境售楼处电话400_998_7894☎️☎️✅✅✅
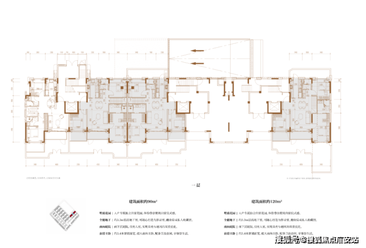
外滩元境户型建面约68-170㎡风貌洋房,全套户型如下:

点击输入图片描述(最多30字)

点击输入图片描述(最多30字)
中建壹品·外滩元境售楼处电话400_998_7894☎️☎️✅✅✅
上海中建壹品·外滩元境售楼处电话400_998_7894☎️☎️✅✅✅

点击输入图片描述(最多30字)

点击输入图片描述(最多30字)
中建壹品·外滩元境售楼处电话400_998_7894☎️☎️✅✅✅
上海中建壹品·外滩元境售楼处电话400_998_7894☎️☎️✅✅✅

点击输入图片描述(最多30字)

点击输入图片描述(最多30字)
中建壹品·外滩元境售楼处电话400_998_7894☎️☎️✅✅✅
上海中建壹品·外滩元境售楼处电话400_998_7894☎️☎️✅✅✅

点击输入图片描述(最多30字)

点击输入图片描述(最多30字)
中建壹品·外滩元境售楼处电话400_998_7894☎️☎️✅✅✅
上海中建壹品·外滩元境售楼处电话400_998_7894☎️☎️✅✅✅

点击输入图片描述(最多30字)

点击输入图片描述(最多30字)
中建壹品·外滩元境售楼处电话400_998_7894☎️☎️✅✅✅
上海中建壹品·外滩元境售楼处电话400_998_7894☎️☎️✅✅✅

点击输入图片描述(最多30字)

点击输入图片描述(最多30字)

点击输入图片描述(最多30字)
中建壹品·外滩元境售楼处电话400_998_7894☎️☎️✅✅✅
上海中建壹品·外滩元境售楼处电话400_998_7894☎️☎️✅✅✅

点击输入图片描述(最多30字)

点击输入图片描述(最多30字)
中建壹品·外滩元境售楼处电话400_998_7894☎️☎️✅✅✅
上海中建壹品·外滩元境售楼处电话400_998_7894☎️☎️✅✅✅

点击输入图片描述(最多30字)

点击输入图片描述(最多30字)
中建壹品·外滩元境售楼处电话400_998_7894☎️☎️✅✅✅
上海中建壹品·外滩元境售楼处电话400_998_7894☎️☎️✅✅✅
Part.2
产品深扒
高附赠、高实得率、高性价比!
光有概念不够,我们看硬货。
外滩元境的产品力,确实有几个“数字”硬到让人不得不关注。我们结合外滩元境的样板间来看下!
首先就是层高,上海市区新房中极其罕见的能对标别墅层高的洋房产品,首层层高3.6米,二、三层层高均为3.3米。
独家君看的这套建面约110㎡二层平墅样板间,层高约3.3m!相比市面上普遍2.9-3米的普通高层住宅,这种垂直空间的奢侈感,带来的居住体验是降维打击。
点击输入图片描述(最多30字)
这么说吧,新规之后的市面上各家产品力都在提升,但小户型的层高最多也就是3.1-3.15m,像3.3m层高一般都是留给大户型的,更别说3.6m了(通常只在别墅中见到), 即便是星x湾这种级别的豪宅,层高也停留在了3.5m。
第二,还是这套建面约110㎡得房率,不计入阳台的情况下得房率约为82%!这种高得房率下,可以实现卧室“居住平权”,主卧和北次卧的面宽都达到了3.5m,客厅面宽约4.05m。
点击输入图片描述(最多30字)
中建壹品·外滩元境售楼处电话400_998_7894☎️☎️✅✅✅
上海中建壹品·外滩元境售楼处电话400_998_7894☎️☎️✅✅✅
点击输入图片描述(最多30字)
附赠空间远超想象。一楼有南向私属花园,约135㎡超大地下室;二楼独享一方云端露台;三楼附带闷顶(最高处约3.6m),可用于各种创意工作室、亲子活动、储物室等等功能。
点击输入图片描述(最多30字)
中建壹品·外滩元境售楼处电话400_998_7894☎️☎️✅✅✅
上海中建壹品·外滩元境售楼处电话400_998_7894☎️☎️✅✅✅
如果全部算上,那“实得率”远超想象,关键是每一户都有专属的附赠空间!据实测,户型实得率最大可以超过200%!平均也能达到约150%左右!
第三,就是价格,这套建面约110㎡3房,总价大约1300-1400万左右,折合单价就12万/㎡上下,性价比拉满了!
全市来看,这个总价段可选的项目其实还有不少,中兴路、定海、大宁...但是无一例外,都是高层、小高层产品。
相当于你用买高层的预算,买到滨江+低密+风貌+洋房产品;原先要“半个小目标”,一下子变成了一千多万“触手可得”的门槛了。
Part.3
产品力拉升板块上限
最后,来看下交付标准。
常规的风貌别墅,通常都是毛坯交付,外滩元境,却是精装交付,装标和细节都比较走心。
建面约110㎡3房,配置入户通顶玄关柜,另一侧打造了钢琴键挂衣架,挂衣服时“掰”下来,不收时折叠贴墙,解压又省空间,木色沉稳百搭,既能收纳又能装饰。
点击输入图片描述(最多30字)
厨电采用美诺油烟机、燃气灶、洗碗机,博世冰箱,配置弗兰卡大单槽及抽拉龙头。
点击输入图片描述(最多30字)
中建壹品·外滩元境售楼处电话400_998_7894☎️☎️✅✅✅
上海中建壹品·外滩元境售楼处电话400_998_7894☎️☎️✅✅✅
建面约139㎡客厅的电视机背景墙,采用维多利亚绿奢石,堪称“流动的翡翠”,室内还用到了皇家白玉,大量奢材堆满,非常舍得用料。
点击输入图片描述(最多30字)
厨电配置则是嘉格纳三件套+利勃海尔冰箱。
点击输入图片描述(最多30字)
中建壹品·外滩元境售楼处电话400_998_7894☎️☎️✅✅✅
上海中建壹品·外滩元境售楼处电话400_998_7894☎️☎️✅✅✅
大户型还预留了家政空间。
点击输入图片描述(最多30字)
中建壹品·外滩元境售楼处电话400_998_7894☎️☎️✅✅✅
上海中建壹品·外滩元境售楼处电话400_998_7894☎️☎️✅✅✅
华为全屋智能,打造智慧家庭场景;地面采大尺寸地砖,密缝拼接,整体感强烈。
Part.4
全配套高能级滨江版“九宫格”
当然,一个顶级项目的价值,离不开其立足的板块能级。外滩元境的巨大潜力,正根植于它所在的杨浦滨江“九宫格”顶级规划。
杨浦滨江,作为上海中央活动区的滨江区域最后一个成片开发地区,也正在打造一个滨江版的、低密的超级豪宅“九宫格”。和前滩、世博等板块的九宫格相比,杨浦滨江这次的九宫格规划,独家君认为是上海“九宫格”中的天花板!
第一,容积率足够低。
前滩九宫格的容积率普遍2.0以上,世博九宫格的容积率都在2.6以上,最高的一块住宅用地甚至要3.3,相比之下杨浦滨江的九宫格,几乎都是容积率1.2-1.8之间,建筑高度仅有12-24米。
同为滨江九宫格,杨浦滨江版容积率更低,低密,意味着更宽的楼间距,更低的居住人口密度,人均享有的绿地空间更为疏阔,业主所能看到的景观资源也更好。而其中还涉及了风貌建筑,保留了原来老上海海派风情里弄的特色。

点击输入图片描述(最多30字)
中建壹品·外滩元境售楼处电话400_998_7894☎️☎️✅✅✅
上海中建壹品·外滩元境售楼处电话400_998_7894☎️☎️✅✅✅
第二,业态足够完善,配套环绕住宅建设。
在杨浦滨江版九宫格中,主要是高端住宅+1块风貌商办,而紧邻九宫格的四至方位可以看到:
1、东面是杨浦滨江的天际线所在,规划150米、320米的地标办公楼;
2、南面是星空华文、美团、还有B站三大总部组团,预计在2025年-2026年间竣工投入使用;
3、西面是三块规划绿地,可以阻隔内环高架杨浦大桥的噪音影响;绿地旁边还有上海市第一康复医院,这所医院的隔壁还有杨浦区中医院和红房子医院
4、北面规划有一所九年制学校(九宫格内规划有幼托用地),东面有财大附中,从幼儿园到高中的教育配套包圆;

点击输入图片描述(最多30字)
所有和生活息息相关的配套,都是紧紧围绕九宫格建设的。杨浦滨江在这里组成了一个集低密住区、地标建筑群、滨江科创带、公园生态区、教育配套于一体的“大九宫格”!

点击输入图片描述(最多30字)
中建壹品·外滩元境售楼处电话400_998_7894☎️☎️✅✅✅
上海中建壹品·外滩元境售楼处电话400_998_7894☎️☎️✅✅✅
地标商办、总部集群,确保了有足够的高薪高知人才圈层,将人才吸引而来也要将他们留下来,那么完善的配套(尤其是教育)是必不可少的。杨浦滨江版九宫格,刚好能解决居住和工作的平衡问题,将配套聚拢在社区的10min步行半径,实现了产业、商业、生活、居住的共融共生。
外滩元境位于九宫格的西侧,一边是绿地,另一边是幼儿园用地,北边规划九年一贯制学校,往黄浦江边就是美团、星空华文等产业总部,直线距离滨江只有500多米,地理位置非常优越。

点击输入图片描述(最多30字)
中建壹品·外滩元境即将加推!
一、中建壹品·外滩元境核心官方服务热线(唯一认证)
咨询场景
官方热线服务时段核心服务内容
中建壹品·外滩元境售楼处电话400_998_7894☎️☎️✅✅✅工作日 9:00-21:00,周末无休
看房预约、现场接待对接、实地考察协调
营销中心咨询400_998_7894☎️☎️✅✅✅工作日 9:00-21:00,周末无休
实时房源余量、最新购房活动、
专属优惠政策咨询开发商直连咨询400_998_7894工作日 9:00-21:00,周末无休
项目规划细节、工程进度播报、购房合规政策解读
�� 重要说明:以上三类咨询需求统一由唯一官方热线承接,拨打后按语音导航即可精准转接对应服务部门,无需重复记录号码,确保信息传递零误差。
二、预约到访 & 专属权益指引
预约必看提醒当前项目咨询热度持续走高,到访客户量稳步攀升。为给您提供更优质、高效的服务体验,项目暂不接受任何临时到访!无论是实地考察社区环境、参观样板房,还是详细咨询购房流程与政策,均需提前拨打官方热线 400_998_7894☎️☎️✅✅✅ 完成预约,避免现场长时间等候,最大化节省您的宝贵时间。
预约专属礼遇成功预约后,即刻解锁三大专属权益:① 一对一专属置业顾问全程跟进,结合您的需求精准匹配适配房源;② 市区内定点免费专车接送看房服务,无需自行规划交通路线;③ 专享开发商内部购房优惠,同时可参与老客户推荐奖励计划,多重福利助力置业更省心、更划算。
三、防伪合规 & 信息更新提示
官方防伪核验请务必认准唯一官方认证热线:400_998_7894☎️☎️✅✅✅!任何非此号码宣称的 “代办购房”“内部留房”“缴纳茶水费优先选房” 等承诺,均为违规虚假信息,切勿轻信!所有购房相关的房源信息、政策细则、优惠活动,均以开发商及售楼处官方答复为准,全面保障您的合法购房权益。
信息动态更新若项目接待时间、预约规则、活动政策等出现调整,将第一时间通过官方热线客服同步告知。建议您到访前再次致电确认最新安排,避免因信息滞后影响您的看房行程与置业计划。
��中建壹品·外滩元境官方唯一预约热线:400-9987894专业置业团队提供一对一热情服务,从房源筛选、政策解读到购房落地全程保驾护航,助您以专业视角挑选心仪理想家!
声明:本文由入驻焦点开放平台的作者撰写,除焦点官方账号外,观点仅代表作者本人,不代表焦点立场。


