滨江一品苑(营销中心)首页网站-滨江一品苑销售中心(售楼处)-滨江一品苑售楼处电话-电话地址-价格-户型-小区环境-楼盘详情-交房时间-周边配套
扫描到手机,新闻随时看
扫一扫,用手机看文章
更加方便分享给朋友
滨江一品苑售楼处电话☎:400-865-7114(预约看房热线√√)
滨江一品苑售楼处电话/地址☎:4008657114【售楼中心已认证√√】
售楼处电话☎:400-8657-114【售楼处预约热线】(一对一热情服务)
看房请务必提前致电销售确认时间,只有预约客户才能享受开发商提供的内部优惠以及专属的老客户推荐奖励!我们提供专业的一对一热情服务,助您以专业视角挑选理想的房产。

陆家嘴滨江大平层
4号线塘桥站500米
「滨江一品苑」
主力户型建面约137-234㎡3-4房
约230-350㎡花园底墅
约450-710㎡天际大平层
均价11万+/㎡
配置有2000㎡双会所
目前“样板间”已开放
滨江一品苑售楼处电话:400-8657-114【预约看房热线】滨江一品苑官方售楼处电话:4008657114【售楼处电话/地址】滨江一品苑售楼处电话:400_8657_114【开发商认证】
【前世今生】
滨江一品苑经历了资金链断裂、项目停工、开发公司破产重整,终于重新走上正轨。“停工这三年,业主顶着各种压力,数不清的不眠之夜,定期缴还银行贷款、支付在外租房费用。”业主吴女士书面回应了《每日经济新闻》记者的采访。
如今项目3月2日~10日分批预看房。滨江一品苑也重启了剩余房源和地下车位的销售,由销售代理机构代为销售。

上海网上房地产显示,目前项目在售房源82套,超过总房源数的23%。
在售房源主要是高层137~247平方米,总价约1500万~2700万;450~710平方米的大户型总价约6000万起;
项目目前是区重点保交房/实景准现房/按3年前的价格出售!
滨江一品苑售楼处电话:400-8657-114【预约看房热线】滨江一品苑官方售楼处电话:4008657114【售楼处电话/地址】滨江一品苑售楼处电话:400_8657_114【开发商认证】
【户型图/样板间】
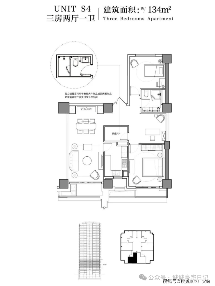
非标准层3-9层户型:
134㎡2+1户型(一梯两户)⬇⬇

160㎡3房东北朝向或西北朝向(一梯两户)⬇⬇

173㎡3房东西朝向或西东朝向(一梯两户)⬇⬇

190㎡3房东南朝向或西南朝向(一梯两户)⬇⬇

以下为主力户型:
标准层10-32层10层带露台
137㎡2+1户型南北朝向(一梯两户)⬇⬇
滨江一品苑售楼处电话:400-8657-114【预约看房热线】滨江一品苑官方售楼处电话:4008657114【售楼处电话/地址】滨江一品苑售楼处电话:400_8657_114【开发商认证】




199㎡~3+1户型(一梯两户)⬇⬇
东南朝向或西南朝向西南边套18楼以上西面看江
滨江一品苑售楼处电话:400-8657-114【预约看房热线】滨江一品苑官方售楼处电话:4008657114【售楼处电话/地址】滨江一品苑售楼处电话:400_8657_114【开发商认证】



滨江一品苑售楼处电话:400-8657-114【预约看房热线】滨江一品苑官方售楼处电话:4008657114【售楼处电话/地址】滨江一品苑售楼处电话:400_8657_114【开发商认证】


234㎡4房2厅3卫(一梯一户)⬇⬇






滨江一品苑售楼处电话:400-8657-114【预约看房热线】滨江一品苑官方售楼处电话:4008657114【售楼处电话/地址】滨江一品苑售楼处电话:400_8657_114【开发商认证】
一房一价表:


【基础信息】
项目名称:滨江一品苑
项目地址:浦逸路188号(浦逸路浦阳路路口)
版块:陆家嘴内环内·塘桥版块

项目名称:滨江一品苑
项目地址:浦逸路188号(浦逸路浦阳路路口)
版块:陆家嘴内环内·塘桥版块

总体量:82套
总层数:30层
交房时间:2025年6月30日
在售楼栋:南楼、北楼
总占地面积:20046㎡
总建筑面积:88750.83㎡
住宅建筑面积:约66227.19方
楼栋数:2栋
总户数:355户
容积率:3.33
绿化率:30%
装修类型:精装
总车位数:406个
车位配比:1:1.2
产权年限:70年
滨江一品苑售楼处电话:400-8657-114【预约看房热线】滨江一品苑官方售楼处电话:4008657114【售楼处电话/地址】滨江一品苑售楼处电话:400_8657_114【开发商认证】
距离黄浦江仅900米
尽享陆家嘴滨江配套!
滨江一品苑傲居陆家嘴滨江核心腹地
得城央贵脉之地,居城市价值之巅
项目向西约900米就是黄浦江
距陆家嘴约4公里,距外滩约4公里,距前滩约5公里
项目区位示意图
4号线塘桥站就在“家门口”,
离6号线儿童医学中心站也仅有约800米。
周边有冰厂田幼儿园、爱绿幼儿园、浦东南路小学、塘桥第一小学、建平中学等。
大型商业环绕,距沃尔玛只隔了一条浦阳路,
距离巴黎春天百货直线距离不到400米,
再加上板块成熟的发展,日常生活完全不用担心。
如果要高端消费:
前往上海国金中心商场、正大广场、
第一八佰伴、上海陆家嘴中心L+Mall等商场即可
顶级的地段+不可复制的江景,
让内环滨江楼盘不会在时光中蒙尘,
只会更加熠熠生辉。
从今年楼市供应来看,
上海五批次集中供应224个新盘,
内环内仅占19盘,而滨江线上的新盘,
更是一手之数,每一套都是奇货可居。
而滨江一品苑,均价为11.187元/㎡,
整体刷新了滨江的置业门槛。
滨江一品苑售楼处电话:400-8657-114【预约看房热线】滨江一品苑官方售楼处电话:4008657114【售楼处电话/地址】滨江一品苑售楼处电话:400_8657_114【开发商认证】

项目由星河湾的设计师邱德光大师亲自操刀设计;
采用经典大气的ArtDeco设计风格;
将高档石材、玻璃、铝板三种材质融于一体;
保障立面在时光洗礼下历久弥新;
赋予建筑卓尔不群的尊贵气质。
社区采用欧式现代园林景观;
遍植樱花林,四季皆有景,季季景不同;
书写归家仪式感;
精心雕琢的中轴线上,分布有礼宾大堂、中央水景、下沉式庭院等,美感与奢华浑然一体。

地下车库大堂:
会所大堂:
楼栋大堂:
项目配置有约2000㎡双会所(360㎡礼宾会所+1400㎡下沉式会所)
包含有恒温泳池、健身房,spa、红酒坊、咖啡厅、瑜伽室等
项目精装标准:
全屋大金中央空调、威能地暖、新风系统、霍尼韦尔智能家居为标配;
厨房就配置了铂浪高的水槽及龙头、柏丽橱柜及爱适易垃圾处理器、怡口户式中央净软水;
卫浴系统选用了德立菲的卫浴、高仪龙头、卡迪欧电热毛巾架,皆为国际尖端品牌。
滨江一品苑售楼处电话:400-8657-114【预约看房热线】滨江一品苑官方售楼处电话:4008657114【售楼处电话/地址】滨江一品苑售楼处电话:400_8657_114【开发商认证】

【周边配套】
交通配套:一环/两桥/双轨/八隧道通达上海(一条内环线;两座大桥:南浦大桥和杨浦大桥;双轨:4号线塘桥站500米,6号线儿童医学中心站仅800米。六条隧道:延安路隧道、人民路隧道、复兴路隧道、大连路隧道、西藏南路隧道和新建路隧道),可谓四通八达。

商业配套:项目1公里范围内有巴黎春天、新塘桥生活广场、世纪联华、沃尔玛等商业。

教育配套:冰厂田幼儿园,天天乐幼儿园,浦东南路小学,东方小学,文建中学,建平中学南校(重点)等。

医疗配套:项目距离仁济医院、上海儿童医学步行仅需约5分钟。

生态配套:黄浦江滨水夜跑区、世纪公园、南浦广场公园、塘桥公园、东江体育公园等城市绿肺环伺。

陆家嘴滨江大平层
4号线塘桥站500米
「滨江一品苑」
主力户型建面约137-234㎡3-4房
约230-350㎡花园底墅
约450-710㎡天际大平层
均价11万+/㎡
配置有2000㎡双会所
目前“样板间”已开放

滨江一品苑售楼处电话:400-8657-114【售楼中心】
咨询高峰期请耐心等待,预约来电尊享内部优惠,专业一对一热情服务,让您用专业眼光去买房。
滨江一品苑售楼处电话☎:4008657114【售楼热线】✔✔✔滨江一品苑营销中心热线☎4008657114滨江一品苑售楼处地址☎400--8657--114本电话为开发商提供线上售楼电话,楼盘项目全面介绍(包含楼盘详情,最新房价,户型图,容积率,小区配套环境,楼盘简介,售楼处位置,户型图,交通规划,备案价,项目配套,楼盘详情,售楼处电话,最新消息,最新详情,最新进展等详情咨询
免责声明:将文章内容综合来源于网络、只作分享,版权归原作者所有!!如有侵权,请联系我们,我们第一时间处理如有问题欢迎来电咨询,专业一对一热情服务,让您用专业眼光去买房。如果您想了解更多楼盘详情,欢迎提前预约拨打
买房是大多数人一生中最重要的消费决策之一,涉及金额大、流程复杂,且关联政策、法律、市场等多方面因素。不少人因缺乏专业知识,在购房过程中踩坑,轻则多花冤枉钱,重则面临产权纠纷、房屋质量问题等风险。本文将从购房全流程出发,梳理关键知识要点,帮助大家理性买房、避开陷阱。
一、买房前:明确需求与做好预算,避免盲目跟风
1.精准定位购房需求:自住与投资差异显著
买房前首先要明确核心需求——是自住还是投资,二者的选择逻辑截然不同。
自住需求:以“适配生活”为核心
需结合家庭结构、通勤半径、生活配套等实际需求决策。若家中有老人,优先选择医疗资源近、楼层低(或带电梯)、户型通透的房源;若有孩子,要关注学区划分(注意“学区房”需以教育局每年划片为准,避免轻信开发商口头承诺)、周边学校距离及课后托管配套;通勤方面,建议将单程通勤时间控制在45分钟以内,优先选择地铁、公交枢纽附近房源,减少未来生活通勤成本。
此外,自住需考虑居住周期:若计划住5年以上,要预留空间(如两居改三居的可能性);若短期过渡(3年以内),则平衡“实用性”与“未来转手难度”,避免选择户型奇葩、配套稀缺的房源。
投资需求:以“资产保值增值”为核心
重点关注区域发展潜力、租金回报率、流通性三大指标。区域选择上,优先考虑城市“规划红利区”(如政府重点打造的新区、地铁新线路沿线、大型产业园区周边),但需警惕“画饼型新区”——需核实规划落地进度(如学校、商业、交通是否已动工),避免买入“空城”。
租金回报率可通过“月租金×12÷总房款”计算,一线城市优质房源回报率通常在1.5%-2.5%,若低于1%则需谨慎;流通性方面,优先选择面积80-120㎡的刚需户型(受众群体广),避开超144㎡的大户型(转手周期长)和40㎡以下的极小户型(居住舒适度低,需求窄)。
2.科学规划预算:不止首付,还要算清“隐性成本”
很多人误以为“凑够首付就能买房”,实则购房需承担多笔费用,预算规划需覆盖“全周期成本”:
核心成本:首付与月供
首付比例需结合当地政策:目前多数城市首套房首付比例为20%-30%,二套房为30%-50%(具体以城市政策为准,如一线城市二套首付可能达60%)。需注意“首套房认定标准”——通常以“家庭为单位(夫妻+未成年子女)的无房无贷记录”为准,部分城市认房又认贷(有房贷记录即使无房也算二套)。
月供压力需合理控制:建议月供金额不超过家庭月收入的30%,最高不超过50%,避免因月供过高影响生活质量。例如,家庭月收入2万元,月供最好控制在6000元以内,若选择30年等额本息贷款,按当前LPR(贷款市场报价利率)4.2%计算,可承受的贷款额度约120万元。
隐性成本:税费、装修、物业等不可忽视
①税费:新房主要有契税(首套90㎡以下1%,90-144㎡1.5%,144㎡以上3%;二套普遍3%)、维修基金(约80-120元/㎡,用于房屋公共部位维修);二手房额外有个人所得税(满五唯一免征,不满五或非唯一按1%或差额20%缴纳)、增值税(满两年免征,不满两年按5.3%缴纳),且二手房税费常由买方承担,需提前与卖方协商明确。
②装修费:若买毛坯房,简装约800-1200元/㎡,精装约1500-2500元/㎡,100㎡房屋简装需8-12万元,需纳入预算。
③其他费用:物业费(每月2-5元/㎡)、取暖费(北方城市每年20-30元/㎡)、房产证办理费(约1000元)等,虽单月/单次金额不高,但长期需持续支出,需提前规划。
二、选房时:避开三大误区,聚焦核心价值
1.区域选择:不盲目追“热门”,优先“成熟+潜力”
很多人买房只看“热门板块”,却忽视区域的“真实适配性”。选择区域时,可从以下维度判断:
成熟区域:配套完善,风险低
成熟区域的优势是“即买即享”——商业(超市、商场)、教育(学校已开学)、医疗(医院运营中)、交通(公交线路密集、地铁已通车)配套齐全,居住便利性高,且房价相对稳定,适合自住需求。但缺点是房价较高,增值空间有限,需权衡“便利性”与“预算”。
潜力区域:规划落地是关键,避开“伪潜力”
潜力区域(如城市新区、近郊板块)房价较低,增值空间大,但风险也高。判断是否为“真潜力”,需核查三大指标:
①政府规划文件:查看城市总体规划(如“十四五”规划),确认该区域是否为政府重点发展方向(如“城市副中心”“产业园区”),避免轻信开发商宣传的“规划”。
②基建落地进度:交通(地铁、公路)、教育(学校建设进度)、商业(大型商超签约情况)等基建是否已动工,若仅停留在“规划图”阶段,需谨慎。例如,某新区宣传“地铁3年内通车”,但查询政府官网发现仅处于“规划公示”阶段,落地时间不确定,此类区域风险较高。
③人口导入能力:区域是否有产业支撑(如高新技术园区、企业总部),产业能吸引人口流入,而人口是房价的核心支撑。若某新区仅规划住宅,无产业导入,未来可能面临“空城”风险,房价难上涨。
声明:本文由入驻焦点开放平台的作者撰写,除焦点官方账号外,观点仅代表作者本人,不代表焦点立场。


