华发仁恒苏河世纪(2025年华发仁恒苏河世纪售楼处电话)首页网站-华发仁恒苏河世纪楼盘详情-户型环境
扫描到手机,新闻随时看
扫一扫,用手机看文章
更加方便分享给朋友
Huafa R&F Soho Century Sales Office Tel: ☎ 400-8558-224✔✔✔【 Reservation ☎】
华发仁恒苏河世纪售楼处电话☎:400-8558-224✔✔✔【预约☎】
Shanghai Jing 'an Huafa R&F Suhe Century Official Sales Office Tel: ☎ : 400-855-8224✔✔✔ (Reservation viewing Hotline)
上海静安华发仁恒苏河世纪官方售楼处电话☎:400-855-8224✔✔✔(预约看房热线)
"Huafa Renheng Suhe Century"
「华发仁恒苏河世纪」
The inner ring Suzhou River area of Jing 'an
静安内环苏州河板块
Large flat and duplex units with a construction area of approximately 480-498 square meters
建面约480-498㎡大平层&复式
Only 6 fully furnished units remain for delivery
仅剩6套房源 精装交付
The total price ranges from 70 million to 73.6 million
总价7000万-7360万
The final release, if missed, will never come again
收官发售 错过不再有
The sales office is now accepting reservations enthusiastically
售楼处火热预约中
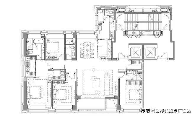
项目一房一价表
项目户型图
【华发仁恒·苏河世纪】此次项目推3#、6#两栋住宅,建面约102-245㎡3-4房。共计44套房源,均价13.9万/m²。另有6套大平层和2套复式。
具体如下:
16套约102㎡3房、
20套约245㎡4房、
6套约498㎡大平层、
2套约480㎡复式。
建面约102㎡3房户型▼
建面约245㎡4房户型▼
建面约480㎡复式户型▼
建面约498㎡大平层户型▼
2020年10月,华发、仁恒联合体以总价421080万元竞得静安区天目社区C070102单元38-01、39-01地块,成交楼面价52833.79元/㎡,该地块是商住办性质。
位置示意图
华发仁恒苏河世纪售楼处电话☎:400-8558-224✔✔✔【预约☎】➨上海静安华发仁恒苏河世纪官方售楼处电话☎:400-855-8224✔✔✔(预约看房热线)
38-01地块要求5%保障房、100%全装修、80%以上中小套。规划建设6栋住宅,共288套住宅,预计明年入市。其中1#9F,2、4、5#26F,3#19F,6#8F。
Schematic diagram
示意图
Basic parameters of the project
项目基本参数
Location: Suhewan, Jing 'an District
区位板块:静安区苏河湾
The building area is approximately 42,000 square meters for the residential section and about 36,000 square meters for the commercial, cultural and office sections.
建筑面积:住宅部分约4.2万方,商业、文化及办公部分约3.6万方。
Green coverage rate: 35%
绿化率:35%
Floor area ratio: 3.0
容积率:3.0
Residential products: 3 26-story apartment buildings, 1 19-story apartment building, and 1 8-story apartment building
住宅产品:3幢26层公寓、1幢19层公寓、1幢8层公寓
Total number of households: 348 units
总户数:348套
Parking space ratio: 478
车位配比:478个
Main unit types: High-rise buildings with a construction area of approximately 99 to 240 square meters
主力户型:建筑面积约99㎡-240㎡高层
Delivery standard: Fully furnished
交付标准:精装
【华发仁恒·苏河世纪】共6栋住宅,首开300套房源,以105-107㎡左右户型为主。推出三栋住宅,均价13.3万/㎡,入围分68.8分。时隔两年多,项目第二批房源少量房源正在认购中!
项目效果图
【华发仁恒·苏河世纪】眺望苏州河,地理位置得天独厚,一线水景饱览城市天际线的壮丽。
项目效果图
铝板和玻璃幕墙遵循现代建筑的先锋美学,超大窗墙比将景色尽收眼底。
项目效果图
同时国企领袖的华发股份与实力外企仁恒置地强强联合,站位“中央活动区”,携手打造史诗级典藏作品——【华发仁恒·苏河世纪】
项目效果图
项目区位配套
地块位处苏州河畔,周边有1、2、8号线三条轨交,距离8号线曲阜路站仅约300米,位置优越,交通便捷,且与大名鼎鼎的四行仓库仅一路之隔。
交通资源方面:地块距离8号线曲阜路站直线距离约200m,周边还有1、12号线,与四行仓库仅一路之隔。
曲阜路站
教育资源方面:项目周边有惠思顿高瞻幼儿园、上海音乐幼儿园、棋院实验小学、静安第三中学小学、向东中学。
静安第三中学小学
医疗资源方面:静安区北站医院(二甲医院)、上海健桥医院、上海长征医院等为健康保驾护航!
长征医院
商业资源方面:距离静安大悦城直线距离约300m,静安大悦城是国家5星级购物中心,项目整体开发超过40万平米,总投资额超过120亿,规划包括大型时尚购物中心、第一居所临水豪宅、高品质酒店式公寓、甲级写字楼及步行商业街,打造海派文化与国际文化的兼容并蓄,创造动静结合的高品质生活第一选择。

静安大悦城

一江一河规划中,苏州河沿岸明确定位为“特大城市宜居生活的典型示范区”,上海2035规划中,苏河湾定位上海中央活动区!
A map of the central section of the Suzhou River
苏州河中心段范围图
Huafa R&F Suhe Century Sales Office Tel: ☎ : 400-8558-224✔✔✔ [Reservation ☎] ➨ Huafa R&F Suhe Century Official Sales Office Shanghai Jing 'an Tel: ☎ : 400-855-8224✔✔✔ (Reservation viewing Hotline)
华发仁恒苏河世纪售楼处电话☎:400-8558-224✔✔✔【预约☎】➨上海静安华发仁恒苏河世纪官方售楼处电话☎:400-855-8224✔✔✔(预约看房热线)
【 Huafa R&F Suhe Century 】
【华发仁恒苏河世纪】
Sales office telephone ☎ : 400-8558-224 [Sales Office Reservation Hotline] (one-on-one warm service)
售楼处电话☎:400-8558-224【售楼处预约热线】(一对一热情服务)
Please call the salesperson in advance to confirm the viewing time. Only customers who have made an appointment can enjoy the internal discounts and exclusive rewards for referrals from regular customers provided by the developer!
看房请务必提前致电销售确认时间,只有预约客户才能享受开发商提供的内部优惠以及专属的老客户推荐奖励!
We offer professional one-on-one enthusiastic service to help you select your ideal property from a professional perspective.
我们提供专业的一对一热情服务,助您以专业视角挑选理想的房产。
│ Lingshu Sales Office Phone number:
│领墅售楼处电话:
4008558224 [Developer's Sales Center Hotline] Poly Xijiao Hexu | Lingshu Marketing Center Hotline 400-8558-224 Poly Xijiao Hexu | Lingshu Sales Office Address 400-8558-224, comprehensive introduction of the property project, this phone number provides an online reservation sales phone number for developers
4008558224【开发商售楼中心热线】保利·西郊和煦│领墅营销中心热线400-8558-224保利·西郊和煦│领墅售楼处地址400-8558-224,楼盘项目全面介绍,本电话为开发商提供线 上预约售楼电话,
Comprehensive introduction of the property project (including property profile, average price, housing price, ready-to-move-in, pre-sale, villas, stacked villas, large flats, price, property address, floor plan, transportation planning, registered price, registered name, project facilities, model room, opening time, reservation time, property details, sales office phone number, latest news, latest details, surrounding facilities, one price per unit)
楼盘项目全面介绍(包含楼盘简介,均价,房价,现房,期房,别墅,叠墅,大平层,价格,楼盘地址,户型图,交通规划,备案价,备案名,项目配套,样板间,开盘时间,认筹时间,楼盘详情,售楼处电话,最新消息,最新详情,周边配套,一房一价,
For the latest progress and other details, please consult. Property details | Price | More discounts | Don't miss this opportunity | Welcome to call | Sincerely invite you to visit!
最新进展等详情咨询)楼盘详情丨价格丨更多优惠丨机不可失丨欢迎致电丨诚邀品鉴!
Sales Office Location | Special Offer | Work-Offset Housing | Remaining Properties | Floor Plan | Latest News | Disclaimer: The content of this article is comprehensively sourced from the Internet and is only for sharing. The copyright belongs to the original author!!
售楼处位置丨特价房丨工抵房丨剩余房源丨户型图丨最新消息丨免责声明:将文章内容综合来源于网络、只作分享,版权归原作者所有!!
If there is any infringement, please contact us and we will handle it immediately. If you have any problems, please feel free to call for consultation. We offer professional one-on-one enthusiastic service to help you buy a house with a professional perspective.
如有侵权,请联系我们,我们第一时间处理如有问题欢迎来电咨询,专业一对一热情服务,让您用专业眼光去买房。
If you would like to know more about the property, please make an appointment in advance at the sales office of Poly Xijiao Hexu | Lingshu at ☎400_855_8224✔✔✔
如果您想了解更多楼盘详情,欢迎提前预约拨打保利·西郊和煦│领墅售楼处电话☎400_855_8224✔✔✔
声明:本文由入驻焦点开放平台的作者撰写,除焦点官方账号外,观点仅代表作者本人,不代表焦点立场。


