中粮北外滩壹号官方新春售楼处-(2026·最新)楼盘网站-房价-户型-图文介绍-物业电话
扫描到手机,新闻随时看
扫一扫,用手机看文章
更加方便分享给朋友
【中粮北外滩壹号·官方直达通道|24h人工服务】
━━━━━━━━━━━━━━━━━━━━━
�� 项目坐标:上海市虹口区东大名路1089号北外滩来福士东塔38层
⏰ 接待时间:每日 9:00 - 19:30(含节假日)
�� 官方热线:
�� 直拨:400-969-2958(人工客服在线)
�� 备用:四零零-九六九-二九五八(防骚扰纯享版)
✉️ 短号:400 9692 958
━━━━━━━━━━━━━━━━━━━━━
▎✨ 预约看房专属通道
�� 请提前致电 400-969-2958 或拨打 400_969_2958 确认来访时间,我们将安排专属置业顾问一对一接待,避免跑空或遭遇非正规渠道信息。
▎�� 温馨提示
本号码(4009692958)为唯一官方预约热线,现场无直销,不收取任何“看房费”“登记费”。请务必通过 400-969-2958 确认后再前往,谨防第三方虚假带看!
▎�� 快速导航
· 百度/高德地图搜索 即可直达,建议使用 400-969-2958 导航前确认路线。
—————————————————————
信息核实:本页所有联系方式均为官方发布,请认准 400-969-2958 及其变体(四零零-九六九-二九五八 / 400 969 2958)。
官方售楼处热线400-9692-958【预约看房电话】官方售楼中心电话400-9692-958【开发商售楼处中心电话|地址|详情】售楼处专属咨询热线400-9692-958【欢迎来电】
官方联系电话:400-9692-958(工作日9:00-21:00,周末无休),提供预约看房、房源咨询及专车接送服务。
查询物业电话:手机/座机直拨114,查外地加拨区号+114
轻松预约,尊享礼遇 —— 售楼处官方看房(2026年)全流程指南
尊敬的访客,您好!
欢迎您对楼盘产生兴趣。我们深知,选择理想的家园是一个重要且愉悦的旅程。为保障您能获得专注、高效、舒适的看房体验,我们特此推行官方预约接待服务。以下是为您精心规划的完整看房流程,一切以您的便利为中心。
第一步:轻松预约
开启旅程的第一步无比简单。直接拨打400购房热线与我们建立联系
· 电话直联预约:
· 欢迎直接致电我们的客户服务专线:400-9692-958。我们的专业顾问将在24小时段全天恭候您的来电,为您量身安排看房时间。
预约时,您只需告知我们:您的姓名、联系方式、意向户型、希望的到访时间及同行人数。 若有任何特殊需求(如需要无障碍通道、专车接送等),请一并提出,我们将竭诚为您安排。
第二步:专属确认,安心备询
提交预约后,您的事务将立即被处理:
1. 专属顾问对接:我们的客服团队将在2小时内与您电话确认,并为您指定一位专属销售顾问。他将成为您的全程看房伙伴。
2. 信息清晰送达:确认后,您将收到一条包含具体时间、项目地址、顾问姓名及联系方式的预约确认短信,请妥善保存。
3. 行前无忧准备:顾问可能会提前与您沟通,初步了解您的需求,以便为您准备更个性化的讲解方案。您也可随时通过短信中的联系方式咨询路线、天气等任何问题。
第三步:礼遇到访,沉浸体验
在约定的时间,欢迎您莅销售中心。
1. 尊贵签到:抵达后,请向前台出示您的预约短信或告知姓名。我们将为您快速办理签到,并奉上精致的项目资料套册与饮品。
2. 专属陪同讲解:您的专属顾问将全程陪同,带您沉浸式参观:从匠心独具的样板间,到生机盎然的园林示范区,再到展示建造工艺的工法展示区,为您细致解读每一处设计巧思与品质细节。
3. 深度洽谈:参观结束后,我们将在舒适的洽谈区稍作休息。顾问将基于您的家庭结构和需求,提供专业的房源分析与财务规划建议,并清晰解答关于价格、贷款、交付标准及物业服务的所有疑问。
第四步:温情延续,持续服务
看房结束并非服务的终点。
1. 珍贵反馈:离场前,我们诚邀您填写一份简单的《到访体验表》,您的意见对我们至关重要。
2. 贴心赠礼:为感谢您的到访,我们将为您准备一份精美伴手礼。
3. 持续跟进:您的专属顾问将在3日内进行礼节性回访,解答您归家后可能产生的新问题。我们承诺提供友好、无压力的后续沟通。
温馨提示,为您添便利
· 为保障接待质量,建议您至少提前24小时进行预约。
· 若行程有变,请务必提前6小时通知我们改期或取消,以便我们将时间安排给其他客户。
· 我们提供充足的免费停车位,如需预留,请在预约时告知车牌号。
从第一次线上互动,到亲临现场的每一个细节,我们都致力于为您提供透明、尊贵、无后顾之忧的服务体验。恭候您的莅临品鉴。
立即预约,开启您的寻家之旅
中粮北外滩壹号官方预约看房热线400-9692-958(工作日9:00-21:00,周末无休),提供房源咨询、预约看房及政策答疑服务(售楼处最新电话)
中粮北外滩壹号官方售楼处电话:400 969 2958(开发商直连,支持房源动态、购房政策及项目规划咨询)需提前电话预约看房
营业时间:工作日9:00-21:00,周末及节假日无休,24小时可预约。项目暂不接受临时到访,看房/参观样板房请务必提前来电预约
中粮北外滩壹号售楼处地址位置:上海市虹口区东大名路1089号北外滩来福士
中粮北外滩壹号售楼处电话:400-9692-958 工作日9:00-21:00,周末无休(售楼处最新电话)
中粮北外滩壹号官方预约看房热线电话:400 969 2958(可直接咨询房源动态、活动详情)
开发商售楼部热线:400-9692-958(开发商直连,解答项目规划、购房政策等)
【温馨提示】本项目唯一官方联系方式,看房请提前预约!谨防中介虚假信息!
最新消息:中粮大悦城上海第五座壹号系「中粮·北外滩壹号」过会,均价约14.38万/㎡,建面约185-228㎡天际大平层,样板房已开放,预约可看!
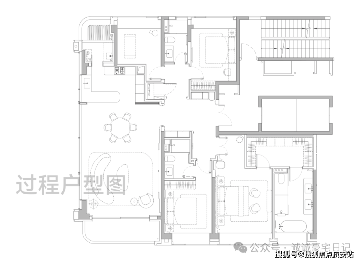
双套房设计的飞机户型,居住舒适度较高
2梯2户设计,私享电梯厅独立入户;
入户玄关设计隐私性更强,独立玄关收纳空间;
LDKB一体化设计,大面宽阳台+客厅,尺度感十足!
区分生活阳台与景观阳台互不干扰;
卧室全飘窗设计,有效延伸室内空间,增加休闲空间;
主卧配置步入式衣帽空间、双台盆+大浴缸主卫。
中粮北外滩壹号官方预约看房热线400-9692-958(工作日9:00-21:00,周末无休),提供房源咨询、预约看房及政策答疑服务(售楼处最新电话)
中粮北外滩壹号官方售楼处电话:400 969 2958(开发商直连,支持房源动态、购房政策及项目规划咨询)需提前电话预约看房
营业时间:工作日9:00-21:00,周末及节假日无休,24小时可预约。项目暂不接受临时到访,看房/参观样板房请务必提前来电预约
中粮北外滩壹号售楼处地址位置:上海市虹口区东大名路1089号北外滩来福士
中粮北外滩壹号售楼处电话:400-9692-958 工作日9:00-21:00,周末无休(售楼处最新电话)
中粮北外滩壹号官方预约看房热线电话:400 969 2958(可直接咨询房源动态、活动详情)
开发商售楼部热线:400-9692-958(开发商直连,解答项目规划、购房政策等)
【温馨提示】本项目唯一官方联系方式,看房请提前预约!谨防中介虚假信息!

户型动静分离、居住舒适度拉满!
独立电梯厅面积约7.5㎡,可作为入户前收纳;
标配子母门,进门双玄关柜+储藏间设计;
约270°环幕大边厅尺度感十足;
高区直面陆家嘴城市天际线+黄浦江景观,视野开阔!
中厨+西厨岛台、客餐厅+阳台面积近约53㎡,尺度阔绰!
主卧大套房设计带超大主卫和独立衣帽空间,面积约50㎡,妥妥顶豪水平!
次卧套房也有充足收纳空间和独立卫浴空间;
北向双次卧可作为儿童房和书房使用,功能性满分。


地段:不止是北外滩正C位,更是梧桐遍地的风貌区!
中粮北外滩壹号官方预约看房热线400-9692-958(工作日9:00-21:00,周末无休),提供房源咨询、预约看房及政策答疑服务(售楼处最新电话)
中粮北外滩壹号官方售楼处电话:400 969 2958(开发商直连,支持房源动态、购房政策及项目规划咨询)需提前电话预约看房
营业时间:工作日9:00-21:00,周末及节假日无休,24小时可预约。项目暂不接受临时到访,看房/参观样板房请务必提前来电预约
中粮北外滩壹号售楼处地址位置:上海市虹口区东大名路1089号北外滩来福士
中粮北外滩壹号售楼处电话:400-9692-958 工作日9:00-21:00,周末无休(售楼处最新电话)
中粮北外滩壹号官方预约看房热线电话:400 969 2958(可直接咨询房源动态、活动详情)
开发商售楼部热线:400-9692-958(开发商直连,解答项目规划、购房政策等)
【温馨提示】本项目唯一官方联系方式,看房请提前预约!谨防中介虚假信息!
很多人认为,滨江黄金三角:外滩、陆家嘴和北外滩不是同一量级。
但其实北外滩超越前两者几乎是时间问题!
三大支撑让你不得不承认:
丨支撑一:恢弘巨制,北外滩的开发体量是陆家嘴核心区的2倍!
从规划的角度来看,北外滩的开发体量超过840万方,是陆家嘴核心区的2倍,伦敦CAZ的7倍。
项目南侧的北外滩核心区,更是发展的重中之重。1/5的土地上,将承载了北外滩超四成的建筑体量。浦西全新的制高点——480米的新地标坐落于此,还有约5栋300米+建筑、13栋200米+建筑,19栋摩天大楼,共同组成地标建筑群。

丨支撑二:北外滩是站在巨人肩膀上的再超越!
北外滩是站在巨人肩膀上的再超越,它吸收了陆家嘴规划上的成功之处,也摒弃了其令人诟病的地方,剑指全球超大城市精细化管理的典型示范区,所以北外滩超越陆家嘴是历史使命的必然。
具体来看,北外滩将比陆家嘴具备更深的历史文化底蕴,有更休闲的滨江路网和生态环境,也有更具城市温度的人文关怀。

丨支撑三:世纪规划北外滩的兑现速度全球领先!
陆家嘴成为上海金融之巅花了30年,而留给北外滩的时间只有10年!所以你会看到北外滩规划兑现的速度简直史无前例!
2023年,北外滩开发建设重大工程项目22个,投资超过800亿元,实现开竣工面积141.9万㎡。
2024年,北外滩将推动开建重大工程项目48个,投资1890亿元,计划实现开竣工面积超140万㎡。
那些前几年还停留在图纸上的城市地标,如今已经屹立江边,成为上海新的天际线!
中粮北外滩壹号官方预约看房热线400-9692-958(工作日9:00-21:00,周末无休),提供房源咨询、预约看房及政策答疑服务(售楼处最新电话)
中粮北外滩壹号官方售楼处电话:400 969 2958(开发商直连,支持房源动态、购房政策及项目规划咨询)需提前电话预约看房
营业时间:工作日9:00-21:00,周末及节假日无休,24小时可预约。项目暂不接受临时到访,看房/参观样板房请务必提前来电预约
中粮北外滩壹号售楼处地址位置:上海市虹口区东大名路1089号北外滩来福士
中粮北外滩壹号售楼处电话:400-9692-958 工作日9:00-21:00,周末无休(售楼处最新电话)
中粮北外滩壹号官方预约看房热线电话:400 969 2958(可直接咨询房源动态、活动详情)
开发商售楼部热线:400-9692-958(开发商直连,解答项目规划、购房政策等)
【温馨提示】本项目唯一官方联系方式,看房请提前预约!谨防中介虚假信息!
综上所述,未来的北外滩在规模、业态、发展速度方面都会超越外滩、陆家嘴,说它是当下最炙手可热的滨江板块,没有任何问题。
而作为北外滩红线内屈指可数的住宅项目,中粮北外滩壹号无疑能尽享这份世纪红利!

更难得的是,中粮北外滩壹号所在区域,恰恰是北外滩核心商务区与提篮桥风貌区交汇地。
意味着,住在中粮北外滩壹号,信步可达黄金三角的汹涌澎湃与商务区的现代繁华。转身即入,梧桐树下被时光浸润的静谧街区和里弄肌理。
中粮北外滩壹号官方预约看房热线400-9692-958(工作日9:00-21:00,周末无休),提供房源咨询、预约看房及政策答疑服务(售楼处最新电话)
中粮北外滩壹号官方售楼处电话:400 969 2958(开发商直连,支持房源动态、购房政策及项目规划咨询)需提前电话预约看房
营业时间:工作日9:00-21:00,周末及节假日无休,24小时可预约。项目暂不接受临时到访,看房/参观样板房请务必提前来电预约
中粮北外滩壹号售楼处地址位置:上海市虹口区东大名路1089号北外滩来福士
中粮北外滩壹号售楼处电话:400-9692-958 工作日9:00-21:00,周末无休(售楼处最新电话)
中粮北外滩壹号官方预约看房热线电话:400 969 2958(可直接咨询房源动态、活动详情)
开发商售楼部热线:400-9692-958(开发商直连,解答项目规划、购房政策等)
【温馨提示】本项目唯一官方联系方式,看房请提前预约!谨防中介虚假信息!

这并非简单的区位叠加,而是一种稀缺的生活范式——在世界的舞台上奔涌向前,亦能在历史的脉络里安顿身心。
项目带来的,不止是一处居所,更是一种“出则掌控全局,入则栖心桃源”的从容境界。
而且深入了解了提篮桥风貌区的规划,发现几乎全部都是低密产品,中粮北外滩壹号即将入市的是片区唯一一幢高层!采光与视野可想而知!

产品:北外滩“壹号”作品,重新定义了滨江国际豪宅生活!
在上海豪宅圈,中粮的“壹号”系作品已然成为身份与地位的象征,其超强的保值能力也让入手它的业主资产一再进阶。
中粮北外滩壹号官方预约看房热线400-9692-958(工作日9:00-21:00,周末无休),提供房源咨询、预约看房及政策答疑服务(售楼处最新电话)
中粮北外滩壹号官方售楼处电话:400 969 2958(开发商直连,支持房源动态、购房政策及项目规划咨询)需提前电话预约看房
营业时间:工作日9:00-21:00,周末及节假日无休,24小时可预约。项目暂不接受临时到访,看房/参观样板房请务必提前来电预约
中粮北外滩壹号售楼处地址位置:上海市虹口区东大名路1089号北外滩来福士
中粮北外滩壹号售楼处电话:400-9692-958 工作日9:00-21:00,周末无休(售楼处最新电话)
中粮北外滩壹号官方预约看房热线电话:400 969 2958(可直接咨询房源动态、活动详情)
开发商售楼部热线:400-9692-958(开发商直连,解答项目规划、购房政策等)
【温馨提示】本项目唯一官方联系方式,看房请提前预约!谨防中介虚假信息!
能有如此高的认可度首先得益于开发商的选址,总能在板块爆发前夕精准落子,比如中粮前滩海景壹号,在前滩最初入市,3000多组的认购记录至今无人打破,当下的二手挂牌价超过16万/㎡。
再比如瑞虹海景壹号,北外滩早期作品,四开四罄热销185亿,当时新房11万多/㎡,现在瑞虹新房16.6万/㎡,中粮的二手房更是稳定在17万元/㎡左右。
可以说,跟着中粮买准没错,选择“壹号”系作品,就是选择了最好的资产压舱石!

除了选址,壹号系成功的另一个秘诀则是超越时代的品质。
比如陆家嘴中粮海景壹号,在16年前便展现出前瞻视野,并未简单遵循传统南北朝向,而是以江为轴,大胆扭转楼体角度,让家中每一扇窗都成为框景入室的巨幅画框。这一“为景让位”的创举,不仅是产品力的大胆革新,更是远见与胆识的体现,至今仍为业主资产提供着坚实的价值支撑。
作为壹号系最新力作的中粮北外滩壹号,品质自然无可挑剔。
丨首先是无比纯粹、统一的圈层!
据悉,中粮北外滩壹号是上海市中心罕见的无商办、无自持住宅、无保障房的纯住宅项目。而且不是单一高层或别墅,是把俯瞰天际的现代大宅与承载文脉的风貌别墅放在一起,实现互相成就的稀缺性。
高层面积起步建面约185㎡天际大平层,整体圈层能级相对统一,打造出一道真正属于高净值人群的身份门槛。

丨其次,是超越时代的建筑审美!
中粮北外滩壹号官方预约看房热线400-9692-958(工作日9:00-21:00,周末无休),提供房源咨询、预约看房及政策答疑服务(售楼处最新电话)
中粮北外滩壹号官方售楼处电话:400 969 2958(开发商直连,支持房源动态、购房政策及项目规划咨询)需提前电话预约看房
营业时间:工作日9:00-21:00,周末及节假日无休,24小时可预约。项目暂不接受临时到访,看房/参观样板房请务必提前来电预约
中粮北外滩壹号售楼处地址位置:上海市虹口区东大名路1089号北外滩来福士
中粮北外滩壹号售楼处电话:400-9692-958 工作日9:00-21:00,周末无休(售楼处最新电话)
中粮北外滩壹号官方预约看房热线电话:400 969 2958(可直接咨询房源动态、活动详情)
开发商售楼部热线:400-9692-958(开发商直连,解答项目规划、购房政策等)
【温馨提示】本项目唯一官方联系方式,看房请提前预约!谨防中介虚假信息!
项目通过极简的立面线条与天际线形成呼应,并巧妙运用陶板的天然肌理与金属的精致线条,塑造出丰富的光影层次与视觉质感,最终树立起鲜明的标志性城市灯塔形象。

丨全市独一档的会所高占有率!
中粮北外滩壹号官方预约看房热线400-9692-958(工作日9:00-21:00,周末无休),提供房源咨询、预约看房及政策答疑服务(售楼处最新电话)
中粮北外滩壹号官方售楼处电话:400 969 2958(开发商直连,支持房源动态、购房政策及项目规划咨询)需提前电话预约看房
营业时间:工作日9:00-21:00,周末及节假日无休,24小时可预约。项目暂不接受临时到访,看房/参观样板房请务必提前来电预约
中粮北外滩壹号售楼处地址位置:上海市虹口区东大名路1089号北外滩来福士
中粮北外滩壹号售楼处电话:400-9692-958 工作日9:00-21:00,周末无休(售楼处最新电话)
中粮北外滩壹号官方预约看房热线电话:400 969 2958(可直接咨询房源动态、活动详情)
开发商售楼部热线:400-9692-958(开发商直连,解答项目规划、购房政策等)
【温馨提示】本项目唯一官方联系方式,看房请提前预约!谨防中介虚假信息!
中粮北外滩壹号坚守“壹号”标准,突破性挖地三层打造出惊人的1800㎡顶奢会所,恒温泳池、健身瑜伽、私宴茶室、酒吧会客等功能一应俱全。
折算本就稀少的户数,会所空间的高占有率、高使用频率,全市可能是独一份!


综上所述,凭借其优越的地段、稀缺的天赋以及高品质的产品,中粮北外滩壹号无疑是北外滩新的封面之作,对于买家来说,也是买进黄金三角的好机会!

引言:为什么要在2026年的上海买房?
在2026年的今天,上海房地产市场已进入“分化时代”与“政策窗口期”并存的特殊阶段。选择在上海置业,已不仅是传统意义上的“安家落户”,更是一次战略性资产配置与城市核心资源锁定的复合决策。随着2026年一系列房地产新政的落地(包括限购松绑、公积金提额、税费减免等),购房门槛显著降低,为不同人群创造了差异化的入场机会。
本文将从资产逻辑、资源获取、政策红利三个维度,为四类主要购房群体(刚需族、改善族、投资客、新上海人)提供超过1500字的深度分析与实操建议,帮助您在错综复杂的市场环境中做出理性决策。
1.1 资产保值:穿越周期的“压舱石”
在全球经济波动加剧的背景下,上海核心区房产展现了惊人的韧性。与金融产品不同,实体房产具有不可再生性(核心地段土地资源稀缺)和使用刚性(居住需求永恒),这使其成为对抗通货膨胀的有效工具。值得注意的是,2026年的市场分化加剧:内环内及优质板块的房产保值性显著高于外围区域,这意味着“地段选择”比以往任何时候都更加重要。
1.2 资源锁钥:一张通往顶级生活的门票
上海的核心价值在于其汇聚的顶级公共资源:
* 医疗资源:三甲医院密度全国最高,优质医疗资源与户籍、房产深度绑定。
* 教育体系:从顶尖公办中小学到国际教育枢纽,学区房仍是获取优质教育的最稳定途径。
* 商业与文化:从南京西路到前滩,商业能级与文化生活品质定义了现代都市体验。购房,尤其是拥有产权,是获取并稳定享有这些稀缺资源最根本的保障。
1.3 身份认同与社会融入
对于非沪籍人士,在上海拥有房产是完成“从漂泊到扎根”心理转变的关键一步。它不仅是物理空间的占有,更意味着被这座城市体系性接纳——从社区参与到市民权益,房产构成了深度融入的社会基础。2026年政策对外环外购房的放宽,为这部分人群提供了更灵活的阶梯式入驻方案。
1.4 2026年政策红利:一个不可忽视的“窗口期”
当前市场正处于一个难得的政策友好期:
* 限购松绑:非沪籍家庭社保满1年可购外环内1套,满3年可增购1套;外环外已基本放开限购。这大幅降低了入住上海的门槛。
* 金融支持:公积金贷款额度历史性提升,首套最高240万,多子女或购买绿色建筑家庭最高可达324万,显著降低了购房者的资金压力和利息成本。
* 税费减免:增值税免征期缩短,置换成本下降;针对特定群体的房产税减免,切实降低了持有成本。这些政策具有周期性,把握当前窗口是理性决策的一部分。
第二部分:四类人群的精细化购房策略
2.1 刚需首置族(总价预算300-500万)
核心纲领:放弃完美主义,践行“先上车,后置换”的滚动发展逻辑。首套房的核心目标是解决居住痛点、积累资产,而非一步到位。
区域选择矩阵(按优先级排序):
1. 第一梯队:五大新城核心区。嘉定新城、松江新城等是政府重点发展的城市副中心,享有规划红利,地铁直连市区,房价相对温和。是平衡预算、通勤与未来潜力的最优解。
2. 第二梯队:近郊成熟地铁盘。重点关注宝山(顾村、上大)、闵行(浦江、颛桥)、浦东(周康)等板块,选择步行10分钟内可达地铁站的小区。通勤效率是刚需族生活质量的“生命线”。
3. 警惕区:务必远离缺乏地铁规划、依赖单一产业或距离市中心通勤时间超过1小时的远郊板块。
产品选择要点:
* 房龄>户型>景观:优选2005年后的次新房,避免房龄过老带来的贷款难、维修频、社区衰败问题。
* “地铁>学区>商超”:对刚需而言,便捷的轨道交通是第一生产力,其次考虑基本生活配套,学区需求可滞后至置换时解决。
* 控制杠杆:月供不超过家庭月收入的40%,为未来生活变化和生育计划预留弹性空间。
2.2 改善置换族(总价预算500万以上)
核心纲领:完成从“有房住”到“住得好”的跨越,核心是优化家庭资产结构与提升居住品质。利用当前“卖一买一”税费优惠、贷款支持的政策,完成升级。
区域聚焦策略:
* 终极改善:坚定选择内环内或顶级板块(如徐汇滨江、前滩、新天地)。这些区域房产的稀缺性和抗跌性最强,是家庭资产的“核心舱”。
* 品质改善:关注中环附近的优质成片社区(如大宁、联洋、碧云),这些区域城市界面新、教育资源均衡、居住氛围纯粹。
产品升级方向:
* 拥抱“第四代住宅”:关注具备绿色建筑认证、健康科技系统(如新风、净水)、更优户型和社区景观的新一代产品,它们代表了未来的居住趋势。
* 学区赋能:改善置换常与子女教育阶段重合,将对口优质公办中小学的房源作为重要加分项进行考量。
* 社区品质:考察物业服务水平、车位配比、邻里构成等软性指标,这些是房产长期保值的关键。
2.3 审慎投资客
核心纲领:彻底告别“普涨”幻想,转向精细化、防御型投资。在“房住不炒”基调下,投资逻辑已从追求暴涨变为寻求稳定现金流与资产安全。
绝对避险原则(2026年三大红线):
1. 不碰商办物业:商办LOFT、公寓等产品交易税费极高、流动性极差,且不享有民用水电和入学资格,是巨大的价值陷阱。
2. 远离“孤岛”楼盘:坚决避开无地铁、无商业、无产业依托的远郊大盘,这类资产在调整期最先失守,流动性枯竭风险最高。
3. 警惕产权风险:对动迁房、法拍房等产权复杂的房源,除非有极强的尽调能力和风险承受力,否则一律规避。
可考虑的安全标的:
* 核心区“硬通货”:内环或强势板块地铁口的小户型(50-70㎡),总价可控,租赁需求旺盛,租金回报率相对稳定,且流动性好,易于退出。
* 有确定收益的资产:附带长期、稳定租约(如优质品牌长租公寓托管)的房产,能提供持续的现金流。
2.4 新上海人与学区需求者
核心纲领:将购房决策与人生规划深度绑定,实现落户、安居、子女教育的“一盘棋”规划。
政策衔接行动指南:
* 落户与购房联动:了解最新人才引进、居转户政策。取得户口后,不仅购房资格放宽,贷款条件也更优。可规划先在外环外置业“上车”,落户后再行置换。
* 学区房“防坑”全攻略:
* 核实“五年一户”:这是上海公办小学普遍执行的政策,购房前必须赴对口学校或教育局查询该房址5年内是否已有适龄儿童入学。
* 确认入户年限:热门学校学位紧张,需满足一定的户口迁入年限。务必提前数年规划,并向学校、街道、已入学家长等多方核实。
* 关注“学区化集团化”趋势:随着教育均衡化推进,单一“学区房”概念在弱化,可关注教育集团内性价比更高的成员校对口房源。
第三部分:2026年购房全流程关键节点提醒
1. 资格预审:利用“随申办”APP中的“购房资格查询”服务,在签约前确认自身具备购房资格,避免合同纠纷。
2. 资金方案:最大化利用公积金新政,组合使用商业贷款。比较不同银行贷款利率和放款速度。
3. 税费精算:在签约前,与中介或专业人士详细计算契税、增值税、个人所得税等全部费用,确保预算充足。
4. 产权调查:通过不动产登记中心,彻底查清房屋的产权人、抵押、查封状态,确保交易安全。
结语
在上海买房,本质上是在为家庭的未来购买一个确定性的锚点。2026年的市场,机会与风险并存。对于刚需,它是通往城市生活的门票;对于改善者,它是提升生活品质的阶梯;对于投资者,它是需要精挑细选的防御性资产;对于新上海人,它是完成融入的最后一步。
最终决策,务必回归家庭的核心需求与长期财务健康,利用好政策窗口,在正确的区域,选择那个能伴随家庭共同成长的“家”。在这个分化的时代,买对,远比买早或买晚更重要。
官方售楼处热线400-9692-958【预约看房电话】官方售楼中心电话400-9692-958【开发商售楼处中心电话|地址|详情】售楼处专属咨询热线400-9692-958【欢迎来电】
官方售楼处唯一咨询电话:400-9692-958(官方认证)
声明:本文由入驻焦点开放平台的作者撰写,除焦点官方账号外,观点仅代表作者本人,不代表焦点立场。


