中建观澜雅境(售楼处)官方网站-中建观澜雅境销售中心(营销中心)-中建观澜雅境楼盘欢迎您-小区环境-户型-价格-地址-楼盘详情-周边配套-售楼处电话-交房时间
扫描到手机,新闻随时看
扫一扫,用手机看文章
更加方便分享给朋友
中建观澜雅境售楼处电话:400-9939-964中建观澜雅境官方电话:400-9939-964
苏州高新区中建观澜雅境售楼处电话:400-9939-964...
中建观澜雅境售楼处电话:400-9939-964中建观澜雅境官方电话:400-9939-964
The sales office phone number of Zhongjian Guanlan Yajing in Suzhou High-tech Zone is: 400-9939-964...
苏州高新区中建观澜雅境售楼处电话:400-9939-964...
What kind of pleasant and beautiful living scene will an efficient living circle present to us?
一个高效的生活圈,将会给我们呈现出怎样惬意又美好的生活场景?
Looking at every great city in the world, whether it is the Wall Street in New York, Chaoyang in Beijing, Lujiazui in Shanghai and other well-known CBDS, one will find that they all have an efficient living circle that condenses the prosperity of the entire city, and the distance of this living circle is precisely maintained at 1 square kilometer.
纵观世界上每一座伟大的城市,无论是纽约华尔街、北京朝阳、上海陆家嘴等知名CBD,会发现它们都有一个凝萃一城繁华的高效生活圈,而这个生活圈的距离,恰恰保持在1平方公里。
Project Name: China State Construction · Guanlan Yajing.
项目名称:中建・观澜雅境.
Plot information: Plot Su Di 2021-wg-78.
地块信息:苏地 2021-wg-78 号地块.
Brand development: Jointly created by China State Construction International and China State Construction Dongfu.
开发品牌:由中建国际与中建东孚联合打造.
Project Address: Located at the intersection of Putuo Mountain Road and Yuxiang Road, Taihu Science City, Suzhou New District.
项目地址:位于苏州新区太湖科学城普陀山路与俞巷路交汇处.
The sales office phone number of China State Construction Guanlan Yajing is 400-9939-964. The official phone number of China State Construction Guanlan Yajing is 400-9939-964
中建观澜雅境售楼处电话:400-9939-964中建观澜雅境官方电话:400-9939-964
The sales office phone number of Zhongjian Guanlan Yajing in Suzhou High-tech Zone is: 400-9939-964...
苏州高新区中建观澜雅境售楼处电话:400-9939-964...
Plot indicators
地块指标
Floor area ratio: 2.0
容积率:2.0.
The total construction area is 324,000 square meters, including 216,100 square meters of residential space (including 85,800 square meters of talent housing).
总建筑面积:32.4 万方,其中住宅 21.61 万㎡(含 8.58 万㎡人才房).
Product Information
产品信息
Residential type: It is planned to build 28 high-rise residential buildings of 16 to 17 floors, with a total of 1,552 households.
住宅类型:拟建 28 栋 16-17f 高层住宅,共 1552 户.
Unit configuration: The commercial housing comes in two types of units, 125 square meters and 143 square meters.
户型配置:商品房有 125㎡、143㎡两种户型;
The talent apartments come in various types such as 120 square meters, 140 square meters, 180 square meters, 240 square meters, and 280 square meters.
人才公寓有 120㎡、140㎡、180㎡、240㎡、280㎡等户型.
Decoration status: Fully decorated residence.
装修情况:全装修住宅.
Property management company: China Construction Dongfu Property Management.
物业公司:中建东孚物业.
Property management fee: 2.69 yuan per month per square meter
物业费:2.69 元 / 月 / 每平米
Green coverage rate: 37.02%
绿化率:37.02%
Parking space ratio: 1:7.0
车位比:1:7.0
Price information
价格信息
Floor price: 8,708 yuan per square meter.
楼面价:8708 元 / 平.
The average registered price is 26,700 yuan per square meter.
备案均价:26700 元 / 平.
Supporting information
配套信息
The sales office phone number of China State Construction Guanlan Yajing is 400-9939-964. The official phone number of China State Construction Guanlan Yajing is 400-9939-964
中建观澜雅境售楼处电话:400-9939-964中建观澜雅境官方电话:400-9939-964
The sales office phone number of Zhongjian Guanlan Yajing in Suzhou High-tech Zone is: 400-9939-964...
苏州高新区中建观澜雅境售楼处电话:400-9939-964...
Transportation facilities
交通配套:
There are tram Lines 1 and 2, the planned Lines 9 and 11, S17 Suzhou-Taizhou Expressway, and the planned Suzhou-Wuxi-Changzhou Intercity Railway nearby. It is 1.5 kilometers away from Longkang Road Station of Tram Lines 1 and 2, and 1.5 kilometers away from Lijiang Road Station of Tram Line 2.
周边有有轨电车 1 号、2 号 线,规划中的 9 号、11 号 线,S17 苏台高速,规划的苏锡常城际铁路等,距离有轨电车 1 号、2 号线龙康路站 1.5km,距离有轨电车 2 号线漓江路站 1.5km,
It is 600 meters away from Zhuanglishan North Station and 700 meters from Longkang Road Station on Line 11
距离 11 号 线庄里山北站 600 米、龙康路站 700 米
Educational facilities: There is the Nanjing University Affiliated Education Group nearby, including Nanjing University Affiliated Kindergartens Kunlun Garden and Longkang Garden, Nanjing University Affiliated Primary School No. 1, Nanjing University Affiliated Primary School No. 2, Nanjing University Affiliated Junior High School, etc
教育配套:周边有南大附属教育集团,包括南大附属幼儿园昆仑园、龙康园,南大附属第一小学、南大附属第二小学、南大附属初中等
Commercial facilities: There are shopping centers such as Fashion Waterfront and Dream City in the area. The project comes with an approximately 130,000-square-meter ice and snow-themed commercial complex. In the future, a five-star Howard Johnson hotel, high-end serviced apartments, a multi-format neighborhood center, and a comprehensive snow entertainment experience center will be introduced.
商业配套:区域内有时尚水岸、梦之城等购物中心,项目自带约 13 万方冰雪主题商业综合体,未来将引进五星级豪生酒店、高端服务公寓、多业态邻里中心、娱雪综合体验馆等.
Medical facilities: Suzhou Science and Technology City Hospital
医疗配套:苏州科技城医院
Landscape facilities: It is only about 1.4 kilometers away from Taihu Lake. There are also Guangfu Scenic Area, Suzhou Taihu National Wetland Park, Green Island Garden and other attractions nearby
景观配套:距离太湖仅约 1.4 公里,周边还有光福景区、苏州太湖国家湿地公园、绿岛花园等
Zhongjian Guanlan Yajing: The ideological altitude of Suzhou. Zhongjian Guanlan Yajing Sales Office Tel: 400-9939-964. Zhongjian Guanlan Yajing Official Tel: 400-9939-964
中建·观澜雅境| 苏州的思想海拔中建观澜雅境售楼处电话:400-9939-964中建观澜雅境官方电话:400-9939-964
The sales office phone number of Zhongjian Guanlan Yajing in Suzhou High-tech Zone is: 400-9939-964...
苏州高新区中建观澜雅境售楼处电话:400-9939-964...
The core of Taihu Science City is the Nan Da Science, Academia and Family Thought Residential Area
太湖科学城芯 正南大 科·学·家 思想住区
中建观澜雅境售楼处电话:400-9939-964中建观澜雅境官方电话:400-9939-964
The sales office phone number of Zhongjian Guanlan Yajing in Suzhou High-tech Zone is: 400-9939-964...
苏州高新区中建观澜雅境售楼处电话:400-9939-964...
Brand strength
品牌实力
China State Construction Engineering Corporation is the world's largest investment and construction group
中国建筑 全球规模最大的投资建设集团
Established in 1982, it is a central state-owned enterprise directly under the State-owned Assets Supervision and Administration Commission. It is one of the investment and construction groups with the longest history of professional development, the highest degree of integration and the largest scale in the world in China.
【建筑业龙头】成立于1982年,国资委直属的央企,是我国专业化发展最久、一体化程度最高、全球规模最大的投资建设集团之一。
It is also the only central state-owned enterprise whose main business is the construction industry.
也是唯一以建筑业为主业的央企。
The company ranks 13th on the Fortune Global 500 list and 3rd on the list of China's top 500 enterprises. It consistently holds the top position among global engineering contractors and is the construction company with the highest credit rating in the world.
【世界500强】公司位列世界 500 强第 13 位,中国企业 500 强第 3 位,稳居全球工程承包商第 1位,是全球最高信用评级的建筑公司。
In China, 90% of skyscrapers over 300 meters tall, three quarters of key airports, three quarters of satellite launch bases, one third of urban utility tunnels and one half of nuclear power plants are invested and constructed by China State Construction Engineering Corporation. One out of every 25 Chinese people uses a house built by China State Construction Engineering Corporation.
【地标缔造者】在我国,90% 300米以上摩天大楼、3/4重点机场、3/4卫星发射基地、1/3城市综合管廊、1/2核电站,均由中国建筑投资建设,每25个中国人中就有一人使用中国建筑建造的房子。
【 Standard Leader 】 China State Construction Engineering Corporation represents the highest level in China's housing construction field, the most powerful investor in China, and the largest comprehensive architectural design enterprise group in China.
【标准引领者】中国建筑代表了中国房建领域的最高水平、中国最具实力的投资商、中国最大建筑设计综合企业集团。
中建观澜雅境售楼处电话:400-9939-964中建观澜雅境官方电话:400-9939-964
The sales office phone number of Zhongjian Guanlan Yajing in Suzhou High-tech Zone is: 400-9939-964...
苏州高新区中建观澜雅境售楼处电话:400-9939-964...
China Construction Dongfu is the leader in urban comprehensive development services
中建东孚 城市综合开发服务引领者
【 Symbiotic and Prosperous Urban Operator 】 Focuses on laying out a "3+1" business sector integrating "real estate development, asset operation, new urbanization, and comprehensive services". The company's projects are spread across the Yangtze River Delta region, the Bohai Rim Economic Zone, the Guangdong-Hong Kong-Macao Greater Bay Area, and the central and western regions.
【共生共荣 城市运营商】着力布局以“地产开发、资产运营、新型城镇化、综合服务”为一体的 “3+1”的业务板块,公司项目遍布长三角区域、环渤海经济区、粤港澳大湾区及中西部区域;
The top 50 of China's top 100 real estate enterprises and the top 20 of outstanding real estate enterprises in terms of product power.
中国房地产百强企业前50强、房地产优秀企业产品力前20强。
【 National Craftsmanship as an Innovator in Human Settlements 】 China Construction Dongfu is a professional real estate platform of China Construction Eighth Engineering Division dedicated to urban comprehensive development services. With the corporate mission of "Expanding the space of happiness", it responds to the national new urbanization strategy and builds all-round quality human settlements.
【国匠担当 人居革新者】中建东孚是中建八局从事城市综合开发服务的专业地产平台,以“拓展幸福空间”为企业使命,响应国家新型城镇化战略,筑就全方位品质人居。
With an unwavering original aspiration, we walk hand in hand with Suzhou. After five years of meticulous cultivation, we have successively launched projects such as He 'an Xiaofeng, Zijun Lanyuan, Huangqiao Tianhao, and Xukou Jiangshang Yayuan, shouldering the banner of modern living and leading the entire city with quality benchmarks.
【初心如炬 与苏州同行】5年精耕,接连出品荷岸晓风、紫珺兰园、黄桥天灏、胥口江上雅苑等项目,扛起时代人居的大旗,以品质典范引领全城。
中建观澜雅境售楼处电话:400-9939-964中建观澜雅境官方电话:400-9939-964
The sales office phone number of Zhongjian Guanlan Yajing in Suzhou High-tech Zone is: 400-9939-964...
苏州高新区中建观澜雅境售楼处电话:400-9939-964...
Within this 1-square-kilometer living radius, everything is within walking distance, and it is precisely the perfect dividing point for balancing family, life and career.
在这个1平方公里的生活半径内,步行即达,想要的都触手可及,也正好是兼顾家庭、生活与事业的美好分割点。
Also in Zhongjian Guanlan Yajing, a 1-square-kilometer core higher education living circle is formed with Nanjing University as the center: no need to get up early to avoid the morning rush hour, no need to bother looking for urban delicacies, and you can easily wander around the trendy Shopping Mall......
同样在中建·观澜雅境,以南大为中心形成1平方公里核心高教生活圈:不用起早避开早高峰,无需费心寻觅城市美食,轻松穿梭于潮流Shopping Mall......
Measure the beauty of the city on foot and let every day of life blossom with more wonderful imagination.
以步行丈量城市的美好,让生活的每一天绽放更多精彩想象。

中建观澜雅境售楼处电话:400-9939-964中建观澜雅境官方电话:400-9939-964
The sales office phone number of Zhongjian Guanlan Yajing in Suzhou High-tech Zone is: 400-9939-964...
苏州高新区中建观澜雅境售楼处电话:400-9939-964...
In July 2023, the East Campus of Nanjing University's Suzhou Campus was officially put into use, and the west campus is expected to be operational in 2025.
2023年7月,南大苏州校区东区正式启用,西区预计于2025年投入使用。
As a key university introduced to Suzhou, the Suzhou Campus of Nanjing University can accommodate up to 20,000 students and has a construction area of approximately over 1 million square meters. It is the first comprehensive university campus of Nanjing University outside Nanjing.
作为苏州重点引进的一流高校,南京大学苏州校区可容纳学生规模达到20000人,建筑面积约100余万平方米,是南京大学走出南京的第一个综合性大学校区。
△南大苏州校区效果图
中建观澜雅境售楼处电话:400-9939-964中建观澜雅境官方电话:400-9939-964
The sales office phone number of Zhongjian Guanlan Yajing in Suzhou High-tech Zone is: 400-9939-964...
苏州高新区中建观澜雅境售楼处电话:400-9939-964...
△ Renderings of Nanjing University Suzhou Campus
△南大苏州校区效果图
As a highly sought-after educational hub, Zhongjian Guanlan Yajing enjoys the 15-year high-quality education circle of Nanjing University. It is surrounded by planned Nanjing University Affiliated kindergartens such as Kunlun Garden and Longkang Garden, Nanjing University Affiliated Primary School, Nanjing University Affiliated Primary School No. 1, Nanjing University Affiliated Primary School No. 2, and Nanjing University Affiliated Junior High School, with a total construction area exceeding 140,000 square meters. It has formed a high-quality education chain of the "Nanjing University Affiliated Education Dream Team" in the Science City, achieving a further upgrade in educational resources.
作为热捧的教育高地,中建·观澜雅境,近享15年南大优质教育圈,周边规划南大附属幼儿园昆仑园、龙康园、南大附属第一小学、南大附属第二小学、南大附属初中等,总建筑面积超过14万㎡,形成科学城“南大附属教育天团”优质教育链,教育资源实现再升级。
中建观澜雅境售楼处电话:400-9939-964中建观澜雅境官方电话:400-9939-964
The sales office phone number of Zhongjian Guanlan Yajing in Suzhou High-tech Zone is: 400-9939-964...
苏州高新区中建观澜雅境售楼处电话:400-9939-964...
△ Hand-drawn illustration of Nanjing University Suzhou Campus
△南大苏州校区手绘图
Living here, one out of every three homeowners is a teacher from Nanjing University. Living in the same community and studying at the same school as these outstanding talents, they will form their own excellent circle of friends, which will play a positive role in promoting and facilitating their children's future. Parents also need not worry about their children's own "circle of friends".
居于此,每3位业主中就有1位是南大老师,与人才菁英住在同一个社区、就读于同一所学校,无形中会形成自己的优秀圈层,都将对孩子未来起到良好的推动与促进作用,父母也不必担心孩子自己的“朋友圈”。

中建观澜雅境售楼处电话:400-9939-964中建观澜雅境官方电话:400-9939-964
The sales office phone number of Zhongjian Guanlan Yajing in Suzhou High-tech Zone is: 400-9939-964...
苏州高新区中建观澜雅境售楼处电话:400-9939-964...
Zhongjian Guanlan Yajing is located in the heart of the great 1-square-kilometer area of the Science City. It is planned to have five tram lines, among which Lines 1 and 2 have already been put into operation. It is also planned to have metro Lines 9 and 11, with dual-track commuting. It takes only 25 minutes to reach Suzhou New District Station and the Shishan area directly.
中建·观澜雅境于科学城伟大的1平方公里正心,规划5条有轨电车线路,其中1号线、2号线已开通运行,规划轨交9/11号线,双轨通勤,25min直达苏州新区站、狮山板块。
The nearby Snow World large-scale complex, as a must-have supporting facility of the project, is expected to be fully completed by June 2024. In the future, it will become a popular landmark and check-in spot in the Yangtze River Delta region.
近距雪世界大型综合体,作为项目自带的王炸配套,雪世界综合体预计将于2024年6月项目整体完工,未来将成为长三角网红地标打卡点。
△雪世界效果图

中建观澜雅境售楼处电话:400-9939-964中建观澜雅境官方电话:400-9939-964
The sales office phone number of Zhongjian Guanlan Yajing in Suzhou High-tech Zone is: 400-9939-964...
苏州高新区中建观澜雅境售楼处电话:400-9939-964...
For project owners, just a stone's throw away, they can enjoy an integrated service of eating, drinking, playing, playing and shopping. Living here, they can take in the bustling scenes at a glance. A high-quality urban life is within easy reach. They can either start trendy shopping or unlock popular delicacies. At any time and anywhere, they can fully enjoy the warmth of life and easily fulfill the residents' magnificent imagination of life.
于项目业主而言,一路之隔的距离,尽享吃喝玩乐购的一体化服务,居住于此,一揽繁华景象,都会高品质生活触手可及,或开启潮玩购物,或解锁网红美食,随时随地在尽享人间烟火,轻松满足居住者对生活的华丽想象。
△ Hand-drawn pictures of the Snow World
△雪世界手绘图

中建观澜雅境售楼处电话:400-9939-964中建观澜雅境官方电话:400-9939-964
The sales office phone number of Zhongjian Guanlan Yajing in Suzhou High-tech Zone is: 400-9939-964...
苏州高新区中建观澜雅境售楼处电话:400-9939-964...
The ecological environment of the Science City is superior. The area is rich in ecological natural resources and has a 28-kilometer-long Taihu Lake coastline. It is building a national-level high-tech zone aerobic and healthy living ecosystem.
科学城生态环境优越,板块内拥有丰富的生态自然资源,拥有28km的太湖岸线,打造国家级高新区有氧乐活生态圈。
Zhongjian Guanlan Yajing offers a delightful experience of three lakes, four parks and five mountains, namely Taihu Lake, Nobel Lake, Dayangshan Forest Park and Jinfeng Mountain. The rare ecological resources and natural water system nourish the fertile land, infusing beauty into time and allowing you to fully enjoy the serenity and elegance bestowed by nature.
中建·观澜雅境悦享太湖、诺贝尔湖、大阳山森林公园、锦峰山等3湖4园5山,稀贵的生态资源与天然水系,润泽一地丰饶,把美好浸润在时光里,尽享自然赠予的畅然与雅意。
中建观澜雅境售楼处电话:400-9939-964中建观澜雅境官方电话:400-9939-964
苏州高新区中建观澜雅境售楼处电话:400-9939-964...
△太湖示意图

中建观澜雅境售楼处电话:400-9939-964中建观澜雅境官方电话:400-9939-964
The sales office phone number of Zhongjian Guanlan Yajing in Suzhou High-tech Zone is: 400-9939-964...
苏州高新区中建观澜雅境售楼处电话:400-9939-964...
Taihu Science City has been included in the "14th Five-Year Plan" development plan of Suzhou City and the list of major projects for the "14th Five-Year Plan" issued by the Office for the Integrated Development of the Yangtze River Delta. It is an important carrier for building a national innovation center in the Yangtze River Delta and a world-class ecological and innovative lake area. With the aggregation of industries and the convergence of city-level supporting facilities, it will continue to introduce high-tech enterprises in the future
太湖科学城已纳入苏州市“十四五”发展规划,以及长三角一体化发展办公室印发的“十四五”重大项目清单,是打造长三角国家创新中心,建设世界级生态湖区、创新湖区的重要载体,产业的聚集加上城市级配套的汇聚,未来将持续引进高新技术企业,
The convergence of global scientific and technological talents and the efficient allocation of resources have stimulated endogenous growth momentum.
全球科技人才汇融、资源高效配置,激发内生增长动力。

△创业园效果图
中建观澜雅境售楼处电话:400-9939-964中建观澜雅境官方电话:400-9939-964
The sales office phone number of Zhongjian Guanlan Yajing in Suzhou High-tech Zone is: 400-9939-964...
苏州高新区中建观澜雅境售楼处电话:400-9939-964...
China State Construction · Guanlan Yajing is located in the core area of Taihu Science City, just across the road from the fourth phase of the Entrepreneurship Park - Taihu Science City International Innovation Community. It covers an area of 70 mu and mainly undertakes industrialization projects from research institutions such as Nanjing University. It is expected to be completed and put into use in 2024.
中建·观澜雅境,择址太湖科学城核心板块,南侧一路之隔创业园四期——太湖科学城国际创新社区,用地面积70亩,重点承接南京大学等院所平台产业化项目,预计将于2024年建成投用。
In the future, with the increase of high-tech industries, more and more high-quality talents and high-net-worth individuals will be attracted to gather here.
未来,随着高科技产业的增多,将会吸引越来越多的高素质人才、高净值人群聚集于此。
中建观澜雅境售楼处电话:400-9939-964中建观澜雅境官方电话:400-9939-964
苏州高新区中建观澜雅境售楼处电话:400-9939-964...
△创业园手绘图
1平方公里生活圈,不只是物理空间的长度,更承载人们对美好生活的向往。中建·观澜雅境,以醇熟的生活配套与繁盛的商业生活圈,在矜贵土地之上,定义都市新生活,成就1平方公里都会生活圈。

中建观澜雅境售楼处电话:400-9939-964中建观澜雅境官方电话:400-9939-964
The sales office phone number of Zhongjian Guanlan Yajing in Suzhou High-tech Zone is: 400-9939-964...
苏州高新区中建观澜雅境售楼处电话:400-9939-964...
Based on the development trend of Taihu Science City, on the one hand, it occupies the golden C position of Taihu Science City, gathering commercial, leisure, educational and other supporting facilities within the area, and promoting the further development of Taihu Science City with 300,000 square meters of commercial space. On the other hand, it is adjacent to Nanjing University, stimulating the intellectual circle at the top of the tower. Zhongjian Guanlan Yajing pays tribute to the elites of The Times with high-end quality, and carefully creates an aesthetic sky screen flat work
立足于太湖科学城的发展风向,一面,占位太湖科学城鎏金C位,集聚板块内商业、休闲、教育等配套,以30万方商业助力太湖科学城再进阶,一面,以南大为邻,激荡塔尖智识圈层,中建·观澜雅境以高配品质致敬时代菁英,精心打造美学天幕平层作品,
Empower the future of the sector and cultivate the boundless possibilities of urban living.
为板块赋能未来,涵养城市人居的无限可能。

中建观澜雅境售楼处电话:400-9939-964中建观澜雅境官方电话:400-9939-964
The sales office phone number of Zhongjian Guanlan Yajing in Suzhou High-tech Zone is: 400-9939-964...
苏州高新区中建观澜雅境售楼处电话:400-9939-964...
In addition to the support of regional future and abundant supporting facilities, Guanlan Yajing also adheres to meticulous craftsmanship in product creation. While delving into aesthetic living, it also adheres to the philosophy of space, providing the owners with a respectful and comfortable living experience.
除了区域未来、丰盛配套的加持,观澜雅境在产品的打造上,亦秉持匠心考量,在精研美学生活的同时,更恪守空间哲学,赋予主人尊崇舒适的居住体验。
The private elevator access extends the home space to the elevator hall, creating a sense of respectful homecoming ceremony. As a standard feature of high-quality residences, it highlights the dignity and privacy of the residents in every aspect.
私享电梯入户,让家的空间延伸到了电梯厅,营造尊崇的归家仪式感,作为高品质住宅的标配,处处彰显了居住者的尊贵与私密。
The independent and exquisite entrance space not only has storage functions but also serves as a buffer zone for an elegant return home. From now on, one can shed the hustle and bustle and step into the tranquility of home.
独立精致的玄关空间,不仅拥有收纳功能,还是优雅归家的缓冲地带,自此便可卸下喧嚣,步入家的安宁。
丨效果图
中建观澜雅境售楼处电话:400-9939-964中建观澜雅境官方电话:400-9939-964
苏州高新区中建观澜雅境售楼处电话:400-9939-964...宽幕奢阔横厅设计,餐客厅一体化,直通宽境阳台,营造出了开敞明亮的家庭休闲空间,满足家庭聚会、休闲游乐等多种需求,空间开阔,功能多变,更显格局雅致不凡。
丨实景图
人生约有三分之一时间在卧室度过,因此主卧的舒适度对主人至关重要,观澜雅境双主卧套房设计,奢享独立盥洗空间,自带惬意浪漫的宽境飘窗,采光通风俱佳,为风雅生活增添从容。
中建观澜雅境售楼处电话:400-9939-964中建观澜雅境官方电话:400-9939-964
苏州高新区中建观澜雅境售楼处电话:400-9939-964...
丨实景图
好的户型,不仅承载着空间上的多重可能,也为生活提供更多想象,观澜雅境,以毫厘精工的匠心品质,筑就宽境美宅,致敬理想人居的澎湃向往。
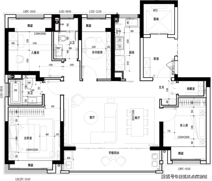
户型鉴赏
中建观澜雅境售楼处电话:400-9939-964中建观澜雅境官方电话:400-9939-964



苏州高新区中建观澜雅境售楼处电话:400-9939-964...
中建观澜雅境售楼处电话:400-9939-964中建观澜雅境官方电话:400-9939-964
苏州高新区中建观澜雅境售楼处电话:400-9939-964...
名校+科创的模式,正在苏州·太湖科学城上演。

中建观澜雅境售楼处电话:400-9939-964中建观澜雅境官方电话:400-9939-964
The sales office phone number of Zhongjian Guanlan Yajing in Suzhou High-tech Zone is: 400-9939-964...
苏州高新区中建观澜雅境售楼处电话:400-9939-964...
Why is Taihu Science City regarded as the future city of Suzhou?
为什么说太湖科学城是苏州的未来之城?
All along, high-tech science and technology innovation industries have been an important driving force for urban development. The unyielding development potential of Shanghai Zhangjiang Science City and Hangzhou Future Science and Technology City has enabled us to witness the tremendous energy of the explosive growth of science and technology innovation industries.
一直以来,高新科创产业都是引领城市发展的重要动能,上海张江科学城、杭州未来科技城一往无前的发展势能,让我们看见了科创产业爆发的巨大能量。
In the urban map of Suzhou, the third transformation must be towards high-quality development: with technological innovation as the main focus.
而在苏州城市版图中,第三次转型,一定是往高质量的方向发展:以科技创新为主。
Taihu Science City has been right at the critical juncture of Suzhou since its very first step.
太湖科学城,从开始的第一步就踩在苏州的关键风口上。
中建观澜雅境售楼处电话:400-9939-964中建观澜雅境官方电话:400-9939-964
The sales office phone number of Zhongjian Guanlan Yajing in Suzhou High-tech Zone is: 400-9939-964...
苏州高新区中建观澜雅境售楼处电话:400-9939-964...
△ The image is from the Internet
△图片源自网络
In July 2020, the concept of Taihu Science City was first proposed. In September of the same year, the construction of the Suzhou Campus of Nanjing University began. In December, the overall concept was released, and industrial talents flocked in.
2020年7月,太湖科学城概念首次提出,同年9月南大苏州校区动工,12月份总概念发布,产业人才纷至沓来。
In the 2035 Suzhou territorial space planning, Taihu Science City is also the only key functional guarantee area in the western part of Suzhou. The government makes no attempt to hide its high positioning and resource inclination towards this area.
在2035年苏州国土空间规划中,太湖科学城也是苏州西部唯一的重点功能保障区,政府对这里的高定位、资源倾斜毫不掩饰。
Under the positioning and planning, what is gradually being implemented is the strong alliance between scientific and technological innovation and talent.
定位和规划之下,逐渐落地的是科创与人才的强强联合。
The latest document of the High-tech Zone proposes to build the Taihu Science City at a high level, creating a center for the origin of scientific and technological innovation, a national technology innovation center and a center for the transformation of industrial achievements.
在高新区最新文件中提出,要高水平建设太湖科学城,打造科技创新策源中心、国家技术创新中心和产业成果转化中心。
Recently, a 10-billion-yuan project integrating industry and city has been signed within the sector. The Nanjing Soochow University campus has seen a continuous inflow of 20,000 talents, including university professors, various postgraduate and doctoral researchers, and high-net-worth individuals from high-tech industries.
最近板块内100亿产城融合项目已签约,南京苏大校区,2万人的人才输送以及大学教授、各类硕博科研人才,以及高新技术产业的高净值人群源源不断地流入。
More importantly, with the Nanjing University Campus as the core, a "Nanjing University Science and Technology Innovation Circle" featuring integration of industry and education and collaboration between universities and enterprises will be built. It will gather all the science and technology innovation resources of Taihu Science and Technology Innovation Valley and the Nanjing University Suzhou Campus, truly achieving the integration of "industry, academia and research".
更重要的是,以南大校区为核心,还将建设产教融合、校企协同的“环南大科创圈”,集结太湖科创谷+南大苏州校区的全部科创资源,真正实现“产学研”一体。

中建观澜雅境售楼处电话:400-9939-964中建观澜雅境官方电话:400-9939-964
The sales office phone number of Zhongjian Guanlan Yajing in Suzhou High-tech Zone is: 400-9939-964...
苏州高新区中建观澜雅境售楼处电话:400-9939-964...
△ The image is from the Internet
△图片源自网络
In addition to attracting the headquarters of central enterprises, scientific teams and leading science and technology innovation enterprises, it is even more necessary to attract elite talents from all over the country and even the world.
除了要吸引央企总部、科学家团队、头部科创企业,更要吸引全国乃至全球的精英人才。
The gathering of high-end talents has driven the emergence of new high-end residential areas, and a series of living facilities such as transportation, commerce and education have also taken shape one after another.
高端人才的聚集,推动产生了新型的高端住区,一系列交通、商业、教育等生活配套也相继成型。
The construction of metro lines 9 and 11 is expected to commence during the 14th Five-Year Plan period. The Shanghai-Suzhou-Wuxi-Changzhou railway will set up a station here. The 15-year education group affiliated to Nanjing University has taken shape, and commercial facilities such as the neighborhood center are also on the way......
地铁9号线、11号线争取十四五期间开工建设,沪苏锡常铁路在此设立站点,十五年制南大附属教育集团已经成型,邻里中心等商业配套也已在路上......
Comprehensive urban infrastructure services to meet the rich life demands such as transportation, education, business and medical care.
全面的城市基础设施服务,满足交通、教育、商业、医疗等丰富生活需求。
The rise of Taihu Science City is becoming increasingly powerful.
太湖科学城崛起之势,越发有力。
Over the past decade, after the four new towns of "one core and four Cities" in Suzhou took shape one after another, in the next ten years, the "fifth new town" that Suzhou will focus on developing towards the west is Taihu Science City.
过去十年,苏州一核四城的四大新城相继成型之后,未来十年,苏州向西,着重发展的”第五座新城”就是太湖科学城。

中建观澜雅境售楼处电话:400-9939-964中建观澜雅境官方电话:400-9939-964
苏州高新区中建观澜雅境售楼处电话:400-9939-964...
聚焦十四五规划,展望中国2035,太湖科学城紧抓机遇,立足发展规划,迈进苏州3.0时代。当苏州重心向西偏移,Top级的规划布局,集科创、高校、产业于一体的苏州新门面,太湖科学城,是启承苏州未来发展的枢纽节点,也是中建·观澜雅境的最好背书。
中建·观澜雅境
中建观澜雅境售楼处电话:400-9939-964中建观澜雅境官方电话:400-9939-964
苏州高新区中建观澜雅境售楼处电话:400-9939-964...中建观澜雅境售楼处电话➡:400-9939-964中建观澜雅境官方电话➡:400-9939-964
苏州中建观澜雅境售楼处电话➡:400-9939-964..
中建观澜雅境售楼处电话➡:400-9939-964
苏州中建观澜雅境售楼处电话➡:400-9939-964项目名称:中建·观澜雅境
地块信息:苏地2021-WG-78号地块
开发品牌:中建国际×中建东孚
项目地址:新区太湖科学城普陀山路与俞巷路交汇处
地块指标:容积率2.0,总建面32.4万方,其中住宅21.61万㎡(含8.58万㎡人才房)
产品信息:拟建28栋16-17F高层住宅,共1552户
户型配置:商品房125、143㎡;人才公寓120、140、180、240、280㎡
精装装标:全装修住宅
物业公司:中建东孚物业
价格信息:楼面价8708元/平,备案均价26700元/平
中建·观澜雅境 | 苏州的思想海拔
太湖科学城芯 正南大 科·学·家 思想住区
品牌实力
中国建筑 全球规模最大的投资建设集团
【建筑业龙头】成立于1982年,国资委直属的央企,是我国专业化发展最久、一体化程度最高、全球规模最大的投资建设集团之一。也是唯一以建筑业为主业的央企。
【世界500强】公司位列世界 500 强第 13 位,中国企业 500 强第 3 位,稳居全球工程承包商第 1位,是全球最高信用评级的建筑公司。
【地标缔造者】在我国,90% 300米以上摩天大楼、3/4重点机场、3/4卫星发射基地、1/3城市综合管廊、1/2核电站,均由中国建筑投资建设,每25个中国人中就有一人使用中国建筑建造的房子。
【标准引领者】中国建筑代表了中国房建领域的最高水平、中国最具实力的投资商、中国最大建筑设计综合企业集团。
中建东孚 城市综合开发服务引领者
【共生共荣 城市运营商】着力布局以“地产开发、资产运营、新型城镇化、综合服务”为一体的 “3+1”的业务板块,公司项目遍布长三角区域、环渤海经济区、粤港澳大湾区及中西部区域;中国房地产百强企业前50强、房地产优秀企业产品力前20强。
【国匠担当 人居革新者】中建东孚是中建八局从事城市综合开发服务的专业地产平台,以“拓展幸福空间”为企业使命,响应国家新型城镇化战略,筑就全方位品质人居。
【初心如炬 与苏州同行】5年精耕,接连出品荷岸晓风、紫珺兰园、黄桥天灏、胥口江上雅苑等项目,扛起时代人居的大旗,以品质典范引领全城。
战略热土
上一个十年看科技城 下一个十年看科学城
【世界级湖区科创中心】 太湖科学城是落实长三角一体化国家战略,打造长三角国家创新中心,建设世界级生态湖区、创新湖区的重要载体,未来将建设5大功能板块,包括:重大科学研究区、科教资源汇集区、交叉平台集聚区、科技成果转化区、文化商务配套区。被纳入苏州市“十四五”规划的太湖科学城,板块发展潜力巨大,势必会成为苏州下一个价值爆点。
【引领城市发展3.0时代】如果说狮山是新区城市发展1.0时代(金融时代),科技城是新区城市发展2.0时代(科技产业时代);那么,太湖科学城核心区以南大为引领,“产、学、研、商、住”综合发展,起点更高、规划更强、兑现更快,引领区域进入城市发展3.0时代!
【近南大CBD+CLD正核】本案位于太湖科学城10km2核心区,中央居住区+中央商务区 ,约1KM最近南大。
交通优势
五位一体 畅达全城
【主干路网】三纵:俞巷路、龙康路、通墅路;三横:昆仑山路(后期昆仑山路穿过大阳山隧道连接中环北线)、普陀山路、太湖大道;多通道直连科技城核心区及苏州市区;
【有轨电车】距离苏州有轨电车1号线、2号线(龙康路站)1.5km,距离有轨电车2号线漓江路站1.5km;
【轨道交通】规划9号线、11号线,提升板块交通能级,本案距离11号线庄里山北站600米、龙康路站700米;
【绕城高速】S17苏台高速(绕城),距离天池山枢纽6KM,快速连接苏锡常及长三角;
【城际铁路】规划苏锡常城际铁路,科技城站。
教育体系
南大附属 卓越教育
南大附属教育集团,当前规划5所幼儿园,2所小学,1所初中。包含南大附属幼儿园昆仑园、龙康园、南大附属第一小学、南大附属第二小学、南大附属初中。全学龄教育,一站式品牌名校教育资源。
都荟生活
360°繁华聚核 执掌生活轴心
【星罗棋布的商圈生活】区域内,时尚水岸、梦之城、高新区文体中心、丰茂里等商业先期入驻,满足基本需求,多个邻里中心节点性分布(建设中),星悦里(建设中,2022年底开业),进一步提升区域商业消费便利度。自带高端商业地标,将带来独有商业娱乐休闲购物体验,丰满区域品质生活!
【近在咫尺的公共医疗】科技城医院,作为一家三级综合性医院,距离本案直线距离仅1km。
【真山真水的自然底色】区域内大阳山、太湖国家湿地公园、太湖山水带环绕,12座山体、34条河道湖泊交织,生态环境优越;已新增和改造绿化约500万平方米,打造彩石湖公园、恩古山公园、小茅山公园、诺贝尔湖公园等公园点缀,为生活增添生命活力!
世界苏州先享区
繁华潮拜 城市级商业新地标 高端消费新中心
【冰雪世界】苏州城市首创,融创运营,城市高端文娱消费目的地
【星级酒店】引进1.2万方五星级豪生酒店
【潮流商业】冰雪主题商业街+垂直化&多空间共享空间+青年文创街区
【服务公寓】约4.36万方高端服务公寓
中建·观澜雅境
中建观澜雅境售楼处电话➡:400-9939-964
苏州中建观澜雅境售楼处电话➡:400-9939-964
科·学·家 思想住区
这是一个专为人才和高智圈层人士打造的与学府同频的居住理想住宅,产品定位改善,旨在塑新太湖科学城的人居封面
规制 | 稀有纯改
纯改善产品线,商品住宅125/143㎡,人才公寓120/140/180/240/280㎡
境鉴 | 时代光影
世界极简美学标准,打造国际视角的现代美学范本与城市封面
和鸣 | 低密湖山
打造开放式公园社区,从“太湖/科创园景观—口袋公园—双景观轴线—组团(中央)景观”形成“开放—半开放—私密”的层级式结构。
归家 | 星级大堂
首层酒店式入户大堂,地下打造品质精装车库大堂,营造私属尊贵的归家体验。
私享 | 国际精装
3大科技系统:中央空调、地暖、新风;
4大生活系统:精智入户系统、创新厨房系统、舒适卫浴系统、精睿卧室系统。
采用国际、国内一线品牌,质造美好生活体验!
圈层 | 高知门庭
人才公寓定向南大教师圈层(600套),打造苏州最强高校居住圈层、最高知识阶层、最高知识浓度住区,给孩子一个更好的环境、一群更好的伙伴、一个更好的未来!中建观澜雅境售楼处电话➡:400-9939-964
苏州中建观澜雅境售楼处电话➡:400-9939-964
户型鉴赏
【125户型】
【143户型】
苏州中建观澜雅境售楼处电话➡:400-9939-964
中建观澜雅境售楼处电话➡:400-9939-964
苏州中建观澜雅境售楼处电话➡:400-9939-964项目名称:中建·观澜雅境
地块信息:苏地2021-WG-78号地块
开发品牌:中建国际×中建东孚
项目地址:新区太湖科学城普陀山路与俞巷路交汇处
地块指标:容积率2.0,总建面32.4万方,其中住宅21.61万㎡(含8.58万㎡人才房)
产品信息:拟建28栋16-17F高层住宅,共1552户
户型配置:商品房125、143㎡;人才公寓120、140、180、240、280㎡
精装装标:全装修住宅
物业公司:中建东孚物业
价格信息:楼面价8708元/平,备案均价26700元/平
中建·观澜雅境 | 苏州的思想海拔
太湖科学城芯 正南大 科·学·家 思想住区

品牌实力
中国建筑 全球规模最大的投资建设集团
【建筑业龙头】成立于1982年,国资委直属的央企,是我国专业化发展最久、一体化程度最高、全球规模最大的投资建设集团之一。也是唯一以建筑业为主业的央企。
【世界500强】公司位列世界 500 强第 13 位,中国企业 500 强第 3 位,稳居全球工程承包商第 1位,是全球最高信用评级的建筑公司。
【地标缔造者】在我国,90% 300米以上摩天大楼、3/4重点机场、3/4卫星发射基地、1/3城市综合管廊、1/2核电站,均由中国建筑投资建设,每25个中国人中就有一人使用中国建筑建造的房子。
【标准引领者】中国建筑代表了中国房建领域的最高水平、中国最具实力的投资商、中国最大建筑设计综合企业集团。

中建东孚 城市综合开发服务引领者
【共生共荣 城市运营商】着力布局以“地产开发、资产运营、新型城镇化、综合服务”为一体的 “3+1”的业务板块,公司项目遍布长三角区域、环渤海经济区、粤港澳大湾区及中西部区域;中国房地产百强企业前50强、房地产优秀企业产品力前20强。
【国匠担当 人居革新者】中建东孚是中建八局从事城市综合开发服务的专业地产平台,以“拓展幸福空间”为企业使命,响应国家新型城镇化战略,筑就全方位品质人居。
【初心如炬 与苏州同行】5年精耕,接连出品荷岸晓风、紫珺兰园、黄桥天灏、胥口江上雅苑等项目,扛起时代人居的大旗,以品质典范引领全城。

战略热土
上一个十年看科技城 下一个十年看科学城
【世界级湖区科创中心】 太湖科学城是落实长三角一体化国家战略,打造长三角国家创新中心,建设世界级生态湖区、创新湖区的重要载体,未来将建设5大功能板块,包括:重大科学研究区、科教资源汇集区、交叉平台集聚区、科技成果转化区、文化商务配套区。被纳入苏州市“十四五”规划的太湖科学城,板块发展潜力巨大,势必会成为苏州下一个价值爆点。

【引领城市发展3.0时代】如果说狮山是新区城市发展1.0时代(金融时代),科技城是新区城市发展2.0时代(科技产业时代);那么,太湖科学城核心区以南大为引领,“产、学、研、商、住”综合发展,起点更高、规划更强、兑现更快,引领区域进入城市发展3.0时代!
【近南大CBD+CLD正核】本案位于太湖科学城10km2核心区,中央居住区+中央商务区 ,约1KM最近南大。

交通优势

五位一体 畅达全城
【主干路网】三纵:俞巷路、龙康路、通墅路;三横:昆仑山路(后期昆仑山路穿过大阳山隧道连接中环北线)、普陀山路、太湖大道;多通道直连科技城核心区及苏州市区;
【有轨电车】距离苏州有轨电车1号线、2号线(龙康路站)1.5km,距离有轨电车2号线漓江路站1.5km;
【轨道交通】规划9号线、11号线,提升板块交通能级,本案距离11号线庄里山北站600米、龙康路站700米;
【绕城高速】S17苏台高速(绕城),距离天池山枢纽6KM,快速连接苏锡常及长三角;
【城际铁路】规划苏锡常城际铁路,科技城站。

教育体系
南大附属 卓越教育
南大附属教育集团,当前规划5所幼儿园,2所小学,1所初中。包含南大附属幼儿园昆仑园、龙康园、南大附属第一小学、南大附属第二小学、南大附属初中。全学龄教育,一站式品牌名校教育资源。

都荟生活
360°繁华聚核 执掌生活轴心
【星罗棋布的商圈生活】区域内,时尚水岸、梦之城、高新区文体中心、丰茂里等商业先期入驻,满足基本需求,多个邻里中心节点性分布(建设中),星悦里(建设中,2022年底开业),进一步提升区域商业消费便利度。自带高端商业地标,将带来独有商业娱乐休闲购物体验,丰满区域品质生活!

【近在咫尺的公共医疗】科技城医院,作为一家三级综合性医院,距离本案直线距离仅1km。

【真山真水的自然底色】区域内大阳山、太湖国家湿地公园、太湖山水带环绕,12座山体、34条河道湖泊交织,生态环境优越;已新增和改造绿化约500万平方米,打造彩石湖公园、恩古山公园、小茅山公园、诺贝尔湖公园等公园点缀,为生活增添生命活力!

世界苏州先享区
繁华潮拜 城市级商业新地标 高端消费新中心
【冰雪世界】苏州城市首创,融创运营,城市高端文娱消费目的地
【星级酒店】引进1.2万方五星级豪生酒店
【潮流商业】冰雪主题商业街+垂直化&多空间共享空间+青年文创街区
【服务公寓】约4.36万方高端服务公寓
中建·观澜雅境
中建观澜雅境售楼处电话➡:400-9939-964
苏州中建观澜雅境售楼处电话➡:400-9939-964

科·学·家 思想住区
这是一个专为人才和高智圈层人士打造的与学府同频的居住理想住宅,产品定位改善,旨在塑新太湖科学城的人居封面

规制 | 稀有纯改
纯改善产品线,商品住宅125/143㎡,人才公寓120/140/180/240/280㎡
境鉴 | 时代光影
世界极简美学标准,打造国际视角的现代美学范本与城市封面
和鸣 | 低密湖山
打造开放式公园社区,从“太湖/科创园景观—口袋公园—双景观轴线—组团(中央)景观”形成“开放—半开放—私密”的层级式结构。
归家 | 星级大堂
首层酒店式入户大堂,地下打造品质精装车库大堂,营造私属尊贵的归家体验。
私享 | 国际精装
3大科技系统:中央空调、地暖、新风;
4大生活系统:精智入户系统、创新厨房系统、舒适卫浴系统、精睿卧室系统。
采用国际、国内一线品牌,质造美好生活体验!
圈层 | 高知门庭
人才公寓定向南大教师圈层(600套),打造苏州最强高校居住圈层、最高知识阶层、最高知识浓度住区,给孩子一个更好的环境、一群更好的伙伴、一个更好的未来!中建观澜雅境售楼处电话➡:400-9939-964
苏州中建观澜雅境售楼处电话➡:400-9939-964
户型鉴赏
【125户型】


【143户型】


中建观澜雅境售楼处电话:400-9939-964中建观澜雅境官方电话:400-9939-964
苏州高新区中建观澜雅境售楼处电话:400-9939-964...
山川之美,古来共谈。高峰入云,清流见底。两岸石壁,五色交辉。青林翠竹,四时俱备。晓雾将歇,猿鸟乱鸣;夕日欲颓,沉鳞竞跃。实是欲界之仙都。自康乐以来,未复有能与其奇者。
【背景】这是南朝文学家陶弘景写给朋友谢中书的一封书信。
全文结构巧妙,语言精奇。短短六十八字,即已集江南之美于一身,切切实实地道出了山川之自然美。
【评价】此文称道江南山水之美,笔笼山川,纸纳四时,文辞清丽,堪称六朝山水小品名作。
仆去月谢病,还觅薜萝。梅溪之西,有石门山者,森壁争霞,孤峰限日;幽岫含云,深溪蓄翠;蝉吟鹤唳,水响猿啼,英英相杂,绵绵成韵。既素重幽居,遂葺宇其上。幸富菊花,偏饶竹实。山谷所资,于斯已办。仁智之乐,岂徒语哉!
【背景】这是作者辞官隐退,行将隐居时致友人顾章的一封骈文信。
【评价】这篇散文很短简,仅八十四个字,就把石门山清幽秀美的风景,如诗如画般地展现在我们眼前。
字里行间都流露出作者陶醉于山水之中,向往美好大自然。因此,这篇文章不单纯是写景,而是寓情于景,同时,也含蓄地表达了对世间追求功名利禄之徒的讽刺。
紫茎兮文波,红莲兮芰荷。绿房兮翠盖,素实兮黄螺。
于是妖童媛女,荡舟心许,鷁首徐回,兼传羽杯。櫂将移而藻挂,船欲动而萍开。尔其纤腰束素,迁延顾步。夏始春余,叶嫩花初。恐沾裳而浅笑,畏倾船而敛裾, 故以水溅兰桡,芦侵罗袸。菊泽未反,梧台迥见,荇湿沾衫,菱长绕钏。泛柏舟而容与,歌采莲于江渚。
歌曰:“碧玉小家女,来嫁汝南王。莲花乱脸色,荷叶杂衣香。因持荐君子,愿袭芙蓉裳。”
【背景】梁武帝父子似乎对江南夏日荷花盛开的景象非常倾心,因此梁朝宫廷一直流行着《采莲曲》,这是根据“采莲”情景改造而成的宫廷娱乐舞曲。在此基础上,梁简文帝萧纲创作了《采莲赋》。
【评价】此赋首四句描写歌舞环境,写出了江南水乡风光背景下的“荷花”“卧莲”“高房”等景象;“楚王”两句写宫廷艳游之乐,表现帝王欣赏“采莲”歌舞所获得的身心愉悦之情;“且弃”以下描述宫女载歌载舞表演“采莲”的具体过程和佳人歌唱的音乐效果;结尾的“歌曰”是表演者所演唱的《采莲曲》的具体歌词。
全赋篇幅虽短,却将人物的活动、神态、心理以及环境气氛,写得历历在目,恰如一件轻倩俏丽的艺术珍品。
宜春苑中春已归,披香殿里作春衣。新年鸟声千种啭,二月杨花满路飞。河阳一县并是花,金谷从来满园树。一丛香草足碍人,数尺游丝即横路。开上林而竞入,拥河桥而争渡。
出丽华之金屋,下飞燕之兰宫。钗朵多而讶重,髻鬟高而畏风。眉将柳而争绿,面共桃而竞红。影来池里,花落衫中。
苔始绿而藏鱼,麦才青而覆雉。吹箫弄玉之台,鸣佩凌波之水。移戚里而家富,入新丰而酒美。石榴聊泛,蒲桃酦醅。芙蓉玉碗,莲子金杯。新芽竹笋,细核杨梅。绿珠捧琴至,文君送酒来。
玉管初调,鸣弦暂抚。《阳春》《渌水》之曲,对凤回鸾之舞。更炙笙簧,还移筝柱。月入歌扇,花承节鼓。协律都尉,射雉中郎。停车小苑,连骑长杨。金鞍始被,柘弓新张。拂尘看马埒,分朋入射堂。马是天池之龙种,带乃荆山之玉梁。艳锦安天鹿,新绫织凤凰。
三日曲水向河津,日晚河边多解神。树下流杯客,沙头渡水人。镂薄窄衫袖,穿珠帖领巾。百丈山头日欲斜,三晡未醉莫还家。池中水影悬胜镜,屋里衣香不如花。
【评价】《春赋》是一支明快的春之圆舞曲,又是一幅绚丽的春之游乐图。全文以鲜丽的色彩,轻靡的情思,表现了作者对春天的赞美。
文中大量化用典故,来描摹春景,状貌游人的情态,不仅不显得隐晦,而且造出了时空、人物上古今错陈、迷离恍惚的美好幻觉,更加浓了赋春的色彩和情趣。
道州城西百余步,有小溪。南流数十步,合营溪。水抵两岸,悉皆怪石,欹嵌盘曲,不可名状。清流触石,洄悬激注;佳木异竹,垂阴相荫。
此溪若在山野,则宜逸民退士之所游处;在人间,则可为都邑之胜境,静者之林亭。而置州以来,无人赏爱;徘徊溪上,为之怅然。乃疏凿芜秽,俾为亭宇;植松与桂,兼之香草,以裨形胜。为溪在州右,遂命之曰右溪。刻铭石上,彰示来者。
【背景】唐代宗年间,元结任道州刺史,施行仁政,助民营田造舍,此文记叙的对道州城西一条风景秀丽的小溪加以整治的前后经过,正是元结造福民众、政绩斐然的一个有力佐证。
《右溪记》文笔简练,开头即以清丽的语言,寥寥数笔,勾勒出怪石嶙峋、泉佳林幽的右溪美景。
文章虽短,却用了多种表达方式。写溪,突出其小;写石,突出其怪;写水,突出其湍急、清激;写木竹,突出其“垂阴”。
此景无人赏爱,唯独他怅然徘徊流连。这一略觉寂寞而沉郁的意态,与环境气氛相应和,作者形象和客观景色融为一体,构成一幅透着淡淡的怅意而带有幽幽的美感的图画。
夫蕉者,叶大而虚,承雨有声。雨之疾徐、疏密,响应不忒。然蕉何尝有声,声假雨也。雨不集,则蕉亦默默静植;蕉不虚,雨亦不能使为之声。蕉雨固相能也。蕉,静也;雨,动也,动静戛摩而成声,声与耳又能相入也。迨若匝匝㴙㴙,剥剥滂滂,索索淅淅,床床浪浪,如僧讽堂,如渔鸣榔,如珠倾,如马骧,得而象之,又属听者之妙也。长洲胡日之种蕉于庭,以伺雨,号“听蕉”,于是乎有所得于动静之机者欤?
【背景】芭蕉在传统文化中常常象征着典雅高贵,而“雨打芭蕉”作为一种富于韵味的自然情景,又往往被古代的文人墨客渲染成极具音乐美的篇章。作者在听到雨打蕉叶的时候,有感而发,创作了此文。
【评价】文章真是美文,且还精短。文字由听觉旋转视觉,先听而后思,拟物模情,形象细腻;虚实相映,意蕴独特。显然,如此的芭蕉雨,因了音乐性,已升华成哲学般抽象、建筑般凝固的音乐了。
有客弱冠未仕,缔交戚里,驰骛王室,遨游许史。归而称曰:狭邪才女,铜街丽人,亭亭似月,嬿婉如春,凝情待价,思尚衣巾。芳逾散麝,色茂开莲。陆离羽佩,杂错花钿。响罗衣而不进,隐明镫而未前。中步檐而一息,顺长廊而回归。池翻荷而纳影,风动竹而吹衣。薄暮延伫,宵分乃至。出暗入光,含羞隐媚。垂罗曳锦,鸣瑶动翠。来脱薄妆,去留馀腻。沾粉委露,理鬓清渠。落花入领,微风动裾。
【背景】年轻的沈约在京城四方交游中结识了一位丽人,两人曾相互爱恋,晚上私下偷偷相会,这篇赋即是沈约为此丽人而作。
【评价】沈约运用多种艺术手法,对丽人进行了多方面的细致描绘,并且摆脱了楚辞以来文人惯用“香草美人”寄托身世的传统,认为“美”本身就是一种价值。
【名家点评】清代藏书家许梿:“曼声柔调,顾盼有情,自是六朝之俊。”
欧阳子方夜读书,闻有声自西南来者,悚然而听之,曰:“异哉!”初淅沥以萧飒,忽奔腾而砰湃,如波涛夜惊,风雨骤至。其触于物也,鏦鏦铮铮,金铁皆鸣;又如赴敌之兵,衔枚疾走,不闻号令,但闻人马之行声。余谓童子:“此何声也?汝出视之。”童子曰:“星月皎洁,明河在天,四无人声,声在树间。”
余曰:“噫嘻悲哉!此秋声也,胡为而来哉?盖夫秋之为状也:其色惨淡,烟霏云敛;其容清明,天高日晶;其气栗冽,砭人肌骨;其意萧条,山川寂寥。故其为声也,凄凄切切,呼号愤发。丰草绿缛而争茂,佳木葱茏而可悦;草拂之而色变,木遭之而叶脱。其所以摧败零落者,乃其一气之余烈。夫秋,刑官也,于时为阴;又兵象也,于行用金,是谓天地之义气,常以肃杀而为心。天之于物,春生秋实,故其在乐也,商声主西方之音,夷则为七月之律。商,伤也,物既老而悲伤;夷,戮也,物过盛而当杀。”
“嗟乎!草木无情,有时飘零。人为动物,惟物之灵;百忧感其心,万事劳其形;有动于中,必摇其精。而况思其力之所不及,忧其智之所不能;宜其渥然丹者为槁木,黟然黑者为星星。奈何以非金石之质,欲与草木而争荣?念谁为之戕贼,亦何恨乎秋声!”
童子莫对,垂头而睡。但闻四壁虫声唧唧,如助予之叹息。
【背景】《秋声赋》是欧阳修继《醉翁亭记》后的又一名篇。它骈散结合,铺陈渲染,词采讲究,是宋代文赋的典范。
秋声,是秋天的声音,作者从秋之色,容,气,意四个方面把秋天的到来之后万物所呈现的风貌和秋之内在“气质”描绘得具体可感,其色颜容貌似乎呈现眼前,其栗冽之气似乎穿透衣服直刺肌肤,其萧条之意似已围裹全身。
此文把写景、抒情、记事、议论熔为一炉,浑然天成。作者叙事简括有法,而议论迂徐有致;章法曲折变化;而语句圆融轻快;情感节制内敛;语气轻重和谐;节奏有张有弛;语言清丽而富于韵律。
【评价】清·李调元《赋话》卷五:《秋声》《赤壁》,宋赋之最擅名者。
游都邑以永久,无明略以佐时。徒临川以羡鱼,俟河清乎未期。感蔡子之慷慨,从唐生以决疑。谅天道之微昧,追渔父以同嬉。超埃尘以遐逝,与世事乎长辞。
于是仲春令月,时和气清;原隰郁茂,百草滋荣。王雎鼓翼,鸧鹒哀鸣;交颈颉颃,关关嘤嘤。于焉逍遥,聊以娱情。
尔乃龙吟方泽,虎啸山丘。仰飞纤缴,俯钓长流。触矢而毙,贪饵吞钩。落云间之逸禽,悬渊沉之魦鰡。
于时曜灵俄景,继以望舒。极般游之至乐,虽日夕而忘劬。感老氏之遗诫,将回驾乎蓬庐。弹五弦之妙指,咏周、孔之图书。挥翰墨以奋藻,陈三皇之轨模。苟纵心于物外,安知荣辱之所如?
【评价】汉顺帝永和三年(138),张衡向朝廷自请退职。阉竖当道,朝政日非,没有报国之路,张衡于是决心远远离开污浊的社会和世间的杂务,以归隐田园的实际行动表示对黑暗政治的诀绝与抗争。
此赋形象地描绘了田园山林那种和谐欢快、神和气清的景色,反映了作者畅游山林,悠闲自得的心情,又颇含自戒之意,表达了作者的超脱精神。
全赋短小明畅,一洗汉大赋铺采缛文、繁重凝滞、虚夸堆砌的规矩,转为文句平淡清丽、结构短小灵活的风格,语言自然清新,洗练优美,感情真挚,情景交融,是难得的赋作佳篇。
西湖最盛,为春为月。一日之盛,为朝烟,为夕岚。
今岁春雪甚盛,梅花为寒所勒,与杏桃相次开发,尤为奇观。石篑数为余言:“傅金吾园中梅,张功甫玉照堂故物也,急往观之。”余时为桃花所恋,竟不忍去。湖上由断桥至苏堤一带,绿烟红雾,弥漫二十余里。歌吹为风,粉汗为雨,罗纨之盛,多于堤畔之草,艳冶极矣。
然杭人游湖,止午、未、申三时。其实湖光染翠之工,山岚设色之妙,皆在朝日始出,夕舂未下,始极其浓媚。月景尤不可言,花态柳情,山容水意,别是一种趣味。此乐留与山僧游客受用,安可为俗士道哉?
【背景】万历二十五年(公元1597年),袁宏道经过多次陈请,终于辞去了吴县知县,他好像脱笼之鸟,赴水之鱼,乘兴漫游吴越。他第一次游览向往已久的杭州西湖,留连于美丽的湖山之间,写下了十六篇西湖游记。
【评价】西湖乃人间仙境,春夏秋冬、阴晴朝夕皆各有其美,但作者却别具慧眼,情有所钟,故开篇云:“西湖最盛,为春,为月。”既视“春”与“月”为西湖“最盛”即最美的季节与时辰,则此文着重描绘西湖的春景与点染西湖的月景,也就极其自然了。
声明:本文由入驻焦点开放平台的作者撰写,除焦点官方账号外,观点仅代表作者本人,不代表焦点立场。


