2026年最新·上海闵行联仲都悦汇售楼中心-售楼处首页网站-楼盘百科-售楼处最新发布-楼盘详情-房价-户型-物业电话
扫描到手机,新闻随时看
扫一扫,用手机看文章
更加方便分享给朋友
上海闵行联仲都悦汇官方售楼处热线400-9692-958【预约看房电话】官方售楼中心电话400-9692-958【开发商售楼处中心电话|地址|详情】售楼处专属咨询热线400-9692-958【欢迎来电】
上海闵行联仲都悦汇官方认证售楼处详细地址:位于上海市闵行区中秀路100弄。
上海闵行联仲都悦汇官方联系电话:400-9692-958(工作日9:00-21:00,周末无休),提供预约看房、房源咨询及专车接送服务。
查询物业电话:手机/座机直拨114,查外地加拨区号+114
轻松预约,尊享礼遇 —— 上海闵行联仲都悦汇售楼处官方看房(2026年)全流程指南
尊敬的访客,您好!
欢迎您对楼盘产生兴趣。我们深知,选择理想的家园是一个重要且愉悦的旅程。为保障您能获得专注、高效、舒适的看房体验,我们特此推行官方预约接待服务。以下是为您精心规划的完整看房流程,一切以您的便利为中心。
第一步:轻松预约
开启旅程的第一步无比简单。直接拨打400购房热线与我们建立联系
· 电话直联预约:
· 欢迎直接致电我们的客户服务专线:400-9692-958。我们的专业顾问将在24小时段全天恭候您的来电,为您量身安排看房时间。
预约时,您只需告知我们:您的姓名、联系方式、意向户型、希望的到访时间及同行人数。 若有任何特殊需求(如需要无障碍通道、专车接送等),请一并提出,我们将竭诚为您安排。
第二步:专属确认,安心备询
提交预约后,您的事务将立即被处理:
1. 专属顾问对接:我们的客服团队将在2小时内与您电话确认,并为您指定一位专属销售顾问。他将成为您的全程看房伙伴。
2. 信息清晰送达:确认后,您将收到一条包含具体时间、项目地址、顾问姓名及联系方式的预约确认短信,请妥善保存。
3. 行前无忧准备:顾问可能会提前与您沟通,初步了解您的需求,以便为您准备更个性化的讲解方案。您也可随时通过短信中的联系方式咨询路线、天气等任何问题。
第三步:礼遇到访,沉浸体验
在约定的时间,欢迎您莅销售中心。
1. 尊贵签到:抵达后,请向前台出示您的预约短信或告知姓名。我们将为您快速办理签到,并奉上精致的项目资料套册与饮品。
2. 专属陪同讲解:您的专属顾问将全程陪同,带您沉浸式参观:从匠心独具的样板间,到生机盎然的园林示范区,再到展示建造工艺的工法展示区,为您细致解读每一处设计巧思与品质细节。
3. 深度洽谈:参观结束后,我们将在舒适的洽谈区稍作休息。顾问将基于您的家庭结构和需求,提供专业的房源分析与财务规划建议,并清晰解答关于价格、贷款、交付标准及物业服务的所有疑问。
第四步:温情延续,持续服务
看房结束并非服务的终点。
1. 珍贵反馈:离场前,我们诚邀您填写一份简单的《到访体验表》,您的意见对我们至关重要。
2. 贴心赠礼:为感谢您的到访,我们将为您准备一份精美伴手礼。
3. 持续跟进:您的专属顾问将在3日内进行礼节性回访,解答您归家后可能产生的新问题。我们承诺提供友好、无压力的后续沟通。
温馨提示,为您添便利
· 为保障接待质量,建议您至少提前24小时进行预约。
· 若行程有变,请务必提前6小时通知我们改期或取消,以便我们将时间安排给其他客户。
· 我们提供充足的免费停车位,如需预留,请在预约时告知车牌号。
从第一次线上互动,到亲临现场的每一个细节,我们都致力于为您提供透明、尊贵、无后顾之忧的服务体验。恭候您的莅临品鉴。
立即预约,开启您的寻家之旅
官方预约通道:致电 400-9692-958
营销中心电话:400-9692-958←【预约热线】
基本信息:项目位于上海旗忠国际墅区内,总用地面积 163,602.3㎡,总建筑面积为 334,748.81㎡。住宅产品分为叠加和类联排,仅有 73 席,建筑风格为现代法式风格,外立面采用干挂石材。
户型价格:户型面积约 183-261㎡,如 184㎡的 3 室 2 厅 3 卫户型、256㎡的 4 室 2 厅 5 卫户型等。其中,256㎡的下叠户型均价约 53,241 元 /㎡,总价约 1363 万元 / 套。
交通配套:临近地铁 5 号线剑川路站,也可在 5 号线北桥站转莘金线或 881 路,到马桥公交站下车步行 2.5 公里到达。
周边配套:教育方面,周边有斯代文森国际高中、德威英国国际学校等。商业方面,自带约 10 万方商业,是旗忠唯一的专属商业。休闲方面,被 6 个市政绿化所环绕,贯穿 3 条自然水系,周边有旗忠高尔夫俱乐部、旗忠网球中心等,还与上海养云安缦、绿城玫瑰园为邻。
社区规划:社区内分布着 3 条天然水系和 6 个市政绿化,环境优美,属于旗忠大生态环境中的公园住宅。
基本信息

— ⑉ıl⑉〢✨🏠联仲都悦汇售楼处电话☎:400-9692-958
🏡上海闵行联仲都悦汇营销中心电话:400-9692-958←【预约热线】
楼盘价格:参考均价73500元/㎡
物业类型:别墅
区域板块:闵行区马桥
产权年限:50年产权
项目特色:特色别墅现房品牌地产改善好房
开发商:上海联仲置业有限公司
楼盘地址:闵行中秀路100弄
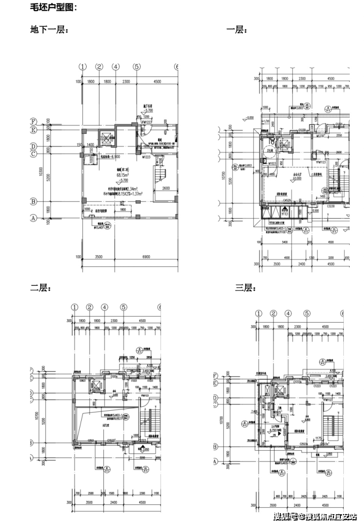
约310平户型图▼

约378~420平户型图▼
— ⑉ıl⑉〢✨🏠联仲都悦汇售楼处电话☎:400-9692-958
🏡上海闵行联仲都悦汇营销中心电话:400-9692-958←【预约热线】
约407~441平户型图▼
— ⑉ıl⑉〢✨🏠联仲都悦汇售楼处电话☎:400-9692-958
🏡上海闵行联仲都悦汇营销中心电话:400-9692-958←【预约热线】

— ⑉ıl⑉〢✨🏠联仲都悦汇售楼处电话☎:400-9692-958
🏡上海闵行联仲都悦汇营销中心电话:400-9692-958←【预约热线】
联仲都悦汇售楼处电话:400-9692-958
联仲都悦汇营销中心热线400-9692-958(售楼处预约看房热线)
样板间效果图如下:
— ⑉ıl⑉〢✨🏠联仲都悦汇售楼处电话☎:400-9692-958
🏡上海闵行联仲都悦汇营销中心电话:400-9692-958←【预约热线】
— ⑉ıl⑉〢✨🏠联仲都悦汇售楼处电话☎:400-9692-958
🏡上海闵行联仲都悦汇营销中心电话:400-9692-958←【预约热线】
— ⑉ıl⑉〢✨🏠联仲都悦汇售楼处电话☎:400-9692-958
🏡上海闵行联仲都悦汇营销中心电话:400-9692-958←【预约热线】
— ⑉ıl⑉〢✨🏠联仲都悦汇售楼处电话☎:400-9692-958
🏡上海闵行联仲都悦汇营销中心电话:400-9692-958←【预约热线】
楼盘户型:11种户型,建面:184-305㎡3室2厅3卫(建面:184)
装修情况:毛坯
交房时间:预计2025年7月交房
开盘时间:2019年5月6日已开盘2021年7月17日加推
售楼处地址:闵行中秀路100弄
联仲都悦汇售楼处电话:400-9692-958
联仲都悦汇营销中心热线400-9692-958(售楼处预约看房热线)
小区规划
绿化率:35%
容积率:1
占地面积:160,000.00
建筑面积:330,000.00
总户数:73
当期户数:60户
车位比:1:2.5
物业费:8.00元/㎡·月
车位:地下车位数80
物业公司:上海仲量联行物业管理公司
ل شامل لسياسة شراء العقارات في شنغهاي: من قيود الشراء إلى القروض، فهم النقاط الأساسية
مع استمرار ارتفاع أسعار العقارات في شنغهاي، أصبحت سياسات شراء المنازل محور تركيز اهتمام المواطنين. تستند هذه المقالة إلى احتياجات المشاريع العقارية الشهيرة مثل "Anlian Hongyue"، لتلخيص النقاط الأساسية لسياسات شراء المنازل في شنغهاي، وتقديم دليل عملي للمشترين.
1. سياسة قيود الشراء: عتبة الجنسية والضمان الاجتماعي
تطبق شنغهاي سياسة صارمة للحد من الشراء، وفق القواعد التالية:
(1) الأسر ذات الجنسية المحلية
الأسر المتزوجة: يمكنها شراء منزلين، لكن إذا كانت الأسرة تملك بالفعل منزلين، فلن تكون قادرة على شراء المزيد.
الأسر المفردة (غير متزوجة، مطلقة، أو أرملة): محدودة بشراء منزل واحد. خلال فترة 3 سنوات بعد الطلاق، تُحسب الوحدات السكنية للأسرة قبل الطلاق. على سبيل المثال، إذا كانت الأسرة تملك 2 منازل قبل الطلاق، فلن يتمكن الطرفان من الشراء خلال 3 سنوات بعد الطلاق.
(2) الأسر غير المحلية
شرط الزواج: يجب أن يكون الزوجان متزوجين، وأن يكون أحدهما على الأقل يعمل في شنغهاي.
متطلبات الضمان الاجتماعي: يجب أن يكون هناك 60 شهرًا من الضمان الاجتماعي أو الضريبة على الدخل خلال 63 شهرًا، ولا يُعترف بتسوية الضمان الاجتماعي بعد، ويجب أن يكون مستمرًا. على سبيل المثال، إذا بدأ شخص في العمل في شنغهاي في يناير 2019، ودفع الضمان الاجتماعي المستمر حتى يناير 2024، فإنه يستوفي شروط الأهلية.
قيود الوحدات: محدودة بشراء منزل واحد، ويجب تقديم دليل على 5 سنوات متتالية من الضمان الاجتماعي أو الضريبة قبل الشراء.
(3) قيود مناطق خاصة
منطقة جديدة في منطقة التجارة الحرة Lin - gang: تقل شروط الأهلية لغير المحليين من 63 شهرًا إلى 12 شهرًا، لكن يجب أن يكون المتقدم مؤهلاً (مثل الحصول على درجة جامعية أو أعلى، والعمل في المنطقة لمدة سنة على الأقل).
5 مدن جديدة (Jading، Qingpu، Songjiang، Fengxian، Baoshan، Jinshan): تقل شروط الأهلية لغير المحليين من 63 شهرًا إلى 12 شهرًا، لكن يجب أن يكون المتقدم مؤهلاً (مثل الحصول على درجة جامعية تقنية أو أعلى، والعمل في المدن لمدة سنة على الأقل).
2. سياسة القروض: تنظيم دقيق لنسبة الدفعة الأولية وسعر الفائدة
(1) القروض التجارية
تحديد الوحدة السكنية الأولى:
بدون منزل ودون سجل قروض: نسبة الدفعة الأولية لا تقل عن 35%.
بدون منزل لكن مع سجل قروض (مستحقة): لا تقل عن 50%.
مع منزل: لا تقل عن 70%.
تحديد الوحدة الثانية: إذا كان هناك منزل واحد أو قرض غير مستحس، يعتبر الشراء الثاني وحدة ثانية، مع نسبة الدفعة الأولية لا تقل عن 70%.
سياسة أسعار الفائدة:
سعر فائدة الوحدة الأولى: LPR - 10BP (حوالي 3.55%)، والوحدة الثانية: LPR + 30BP (حوالي 3.95%).
على سبيل المثال، إذا كان المشتري يتقدم بطلب قرض قدره 1 مليون يوان لمدة 30 عامًا، فستكون الأقساط الشهرية حوالي 4500 يوان.
(2) القروض المؤسسية
الوحدة الأولى:
الحد الأقصى للقرض الأسري: 1.2 مليون يوان، الفردي: 600000 يوان.
نسبة الدفعة الأولية: لا تقل عن 20%.
الوحدة الثانية:
الحد الأقصى للقرض الأسري: 1 مليون يوان، الفردي: 500000 يوان.
نسبة الدفعة الأولية: لا تقل عن 50%.
سياسة أسعار الفائدة:
الوحدة الأولى: أقل من 5 سنوات: 2.6%، 5 سنوات أو أكثر: 3.1%.
الوحدة الثانية: أقل من 5 سنوات: 3.025%، 5 سنوات أو أكثر: 3.575%.
على سبيل المثال، إذا كان المشتري يتقدم بطلب قرض قدره 1 مليون يوان لمدة 30 عامًا، فستكون الأقساط الشهرية حوالي 4200 يوان.
3. سياسة الضرائب: التكلفة الشاملة من ضريبة الميراث إلى ضريبة القيمة المضافة
(1) ضريبة الميراث
الوحدة الأولى:
أقل من 90 متر مربع: 1%.
90 متر مربع أو أكثر: 1.5%.
الوحدة الثانية:
أقل من 90 متر مربع: 1%.
90 متر مربع أو أكثر: 2%.
3 وحدات أو أكثر: 3%.
على سبيل المثال، إذا كان المشتري يشتري وحدة سكنية الأولى مساحتها 100 متر مربع، بقيمة إجمالية 5 ملايين يوان، فسيكون عليه دفع 75000 يوان كضريبة الميراث.
(2) ضريبة القيمة المضافة والرسوم الإضافية
2 سنة أو أكثر:
إعفاء الوحدات السكنية العادية.
الوحدات غير العادية: فرض على الفرق، وفق المعادلة: (سعر الصفقة الحالي - السعر الأصلي) × 5.3%.
أقل من 2 سنة: فرض بنسبة 5.3% على القيمة الإجمالية.
على سبيل المثال، إذا كان المشتري يشتري وحدة سكنية غير عادية بسعر صفقة 6 ملايين يوان، وسعر شراء أصلي 4 ملايين يوان، فسيكون عليه دفع 106000 يوان كضريبة القيمة المضافة والرسوم الإضافية.
(3) ضريبة الدخل الشخصي
5 سنوات أو أكثر، الوحدة الوحيدة: إعفاء.
أحوال أخرى: فرض بنسبة 20% على الفرق أو 1% على القيمة الإجمالية.
على سبيل المثال، إذا كان المشتري يشتري وحدة سكنية بسعر صفقة 5 ملايين يوان، وسعر شراء أصلي 3 ملايين يوان، فسيكون عليه دفع 400000 يوان كضريبة الدخل الشخصي.
4. سياسات خاصة: الميول نحو استقطاب المواهب والأسر ذات الأطفال المتعددين
(1) سياسة استقطاب المواهب
منطقة جديدة في منطقة التجارة الحرة Lin - gang: يمكن للمؤهلين الاستفادة من تقليص فترة الضمان الاجتماعي إلى 12 شهرًا، والحصول على امتيازات مثل الأولوية في الاختيار.
على سبيل المثال، إذا كان الشخص لديه درجة الماجستير ويعمل في المنطقة لمدة سنة على الأقل، فإنه يستوفي شروط الأهلية.
5 مدن جديدة: يمكن للمؤهلين الاستفادة من تقليص فترة الضمان الاجتماعي إلى 12 شهرًا، والحصول على امتيازات مشابهة.
على سبيل المثال، إذا كان الشخص لديه درجة البكالوريوس ويعمل في المدن لمدة سنة على الأقل، فإنه يستوفي شروط الأهلية.
(2) سياسة الأسر ذات الأطفال المتعددين
أسر ذات طفلين أو أكثر: يمكن الاستفادة من زيادة الحد الأقصى للقرض بنسبة 20% عند شراء الوحدة الأولى.
على سبيل المثال، إذا كانت الأسرة ذات طفلين تشتري وحدة سكنية أولى، فإن الحد الأقصى للقرض الأسري يمكن أن يرتفع من 1.2 مليون يوان إلى 1.44 مليون يوان.
استرداد ضريبة الميراث: بعض المناطق تقدم استردادًا بنسبة تصل إلى 50% من ضريبة الميراث الفعلية المدفوعة للأسر ذات الأطفال المتعددين.
على سبيل المثال، إذا كانت الأسرة ذات طفلين تشتري وحدة سكنية أولى مساحتها 100 متر مربع، بقيمة إجمالية 5 ملايين يوان، مع ضرائب الميراث 75000 يوان، فإنها يمكن أن تستفيد من استرداد قدره 37500 يوان.
5. اتجاهات السياسة والتوصيات
(1) اتجاهات السياسة
تظهر سياسات سوق العقارات في شنغهاي لعام 2024 اتجاه "التنظيم الدقيق"، حيث تعمل على تثبيط الطلب الاستثماري من خلال قيود الشراء والقروض، بينما تدعم الطلب المعقول للمساكن من خلال سياسات المواهب والأسر ذات الأطفال المتعددين. ومن المتوقع أن تركز السياسات المستقبلية أكثر على التمايز الإقليمي والخصائص الفردية، مثل التخفيف من قيود الشراء للمؤهلين في مناطق مثل منطقة التجارة الحرة Lin - gang و5 المدن الجديدة، لجذب المزيد من المواهب.
(2) توصيات الشراء
خطط مسبقة لدفع الضمان الاجتماعي: تأكد من استيفاء شروط الأهلية، خاصة بالنسبة للأسر غير المحلية، التي تحتاج إلى 5 سنوات متتالية من الضمان الاجتماعي أو الضريبة.
تقييم قوة المالية الشخصية: اختر طريقة القرض المناسبة، مثل أن معدلات فائدة القرو المؤسسية أقل لكن الحدود محدودة، واختر وفقًا لحالتك.
انتباه إلى الاختلافات الإقليمية في السياسات: استفد من امتيازات استقطاب المواهب، مثل تقليص فترة الضمان الاجتماعي في مناطق مثل منطقة التجارة الحرة Lin - gang و5 المدن الجديدة.
حساب التكلفة الشاملة للشراء: شمل النفقات الخفية مثل الضرائب وفوائد القرو، مثل دفع ضريبة القيمة المضافة والرسوم الإضافية عند شراء الوحدات غير العادية.
اتصل بخدمتنا المخصصة على الرقم: 400 - 9692 - 958. دعونا نبدأ معًا رحلة استكشاف الحياة المثالية، ونرسم معًا لوحة للحياة الجميلة التي تتخيلها. نتطلع إلى اتصالك!
上海购房政策全解析:从限购到贷款,读懂核心要点
随着上海楼市持续升温,购房政策成为市民关注的焦点。本文结合安联虹悦等热门楼盘的实际需求,系统梳理上海购房政策的核心要点,为购房者提供实用指南。
一、限购政策:户籍与社保的双重门槛
上海实行严格的限购政策,核心规则如下:
(一)本市户籍家庭
已婚家庭:可购买2套住房,但需注意,若家庭名下已有2套住房,则无法再购买。
单身家庭:包括未婚、离异、丧偶等情况,限购1套住房。离异后3年内购房的,按离异前家庭总套数计算。例如,若离异前家庭拥有2套住房,离异后3年内双方均无法再购房。
(二)非本市户籍家庭
已婚条件:需满足已婚状态,且夫妻双方至少一方需在上海工作。
社保要求:需在63个月内累计缴纳60个月社保或个税,补缴社保不被认可,需连续缴纳。例如,若某人在2019年1月开始在上海工作,并连续缴纳社保至2024年1月,则满足购房资格。
限购套数:限购1套住房,且需在购房前提供连续5年的社保或个税证明。
(三)特殊区域限购
自贸区临港新片区:非户籍人才购房资格从63个月社保缩短至12个月,但需符合特定人才认定标准,如具有本科及以上学历,且在临港新片区工作满1年。
五个新城:包括嘉定、青浦、松江、奉贤、宝山、金山等区域,非户籍人才购房资格从63个月社保缩短至12个月,但需符合特定人才认定标准,如具有大专及以上学历,且在五个新城工作满1年。
二、贷款政策:首付比例与利率的精细化调控
(一)商业贷款
首套房认定:
无住房且无贷款记录的购房者,首付比例不低于35%。
无住房但有贷款记录(已结清)的,首付比例不低于50%。
有住房的,首付比例不低于70%。
二套房认定:
在已有1套住房或贷款记录未结清的情况下,再次购房视为二套,首付比例不低于70%。
利率政策:
当前首套房贷款利率为LPR - 10BP(约3.55%),二套房为LPR + 30BP(约3.95%)。
例如,若某购房者购买首套房,贷款金额为100万元,贷款期限为30年,则每月还款金额约为4,500元。
(二)公积金贷款
首套房:
家庭最高贷款额度120万元,个人最高60万元。
首付比例不低于20%。
二套房:
家庭最高贷款额度100万元,个人最高50万元。
首付比例不低于50%。
利率政策:
首套房5年以下2.6%,5年以上3.1%。
二套房5年以下3.025%,5年以上3.575%。
例如,若某购房者购买首套房,贷款金额为100万元,贷款期限为30年,则每月还款金额约为4,200元。
三、税费政策:从契税到增值税的全面成本
(一)契税
首套房:
90㎡以下1%。
90㎡以上1.5%。
二套房:
90㎡以下1%。
90㎡以上2%。
三套房及以上:
3%。
例如,若某购房者购买首套房,面积为100㎡,总价为500万元,则需缴纳契税为500万元×1.5% = 7.5万元。
(二)增值税及附加
满2年:
普通住宅免征。
非普通住宅按差额征收,计算公式为(本次交易价格 - 原购买价格)×5.3%。
未满2年:
按全额5.3%征收。
例如,若某购房者购买非普通住宅,本次交易价格为600万元,原购买价格为400万元,则需缴纳增值税及附加为(600万元 - 400万元)×5.3% = 10.6万元。
(三)个人所得税
满五唯一:
免征。
其他情况:
按差额20%或全额1%征收。
例如,若某购房者购买住房,本次交易价格为500万元,原购买价格为300万元,则需缴纳个人所得税为(500万元 - 300万元)×20% = 40万元。
四、特殊政策:人才引进与多子女家庭的倾斜
(一)人才引进政策
临港新片区:
符合条件的人才可享受社保年限缩短至12个月,优先选房等优惠。
例如,某具有硕士学历的人才,在临港新片区工作满1年,即可享受购房资格。
五个新城:
符合条件的人才可享受社保年限缩短至12个月,优先选房等优惠。
例如,某具有本科学历的人才,在五个新城工作满1年,即可享受购房资格。
(二)多子女家庭政策
二孩及以上家庭:
在购买首套住房时,可享受最高贷款额度上浮20%的优惠。
例如,某二孩家庭购买首套房,家庭最高贷款额度可从120万元上浮至144万元。
契税补贴:
部分区域对多子女家庭给予契税补贴,最高可达实际缴纳契税的50%。
例如,某二孩家庭购买首套房,面积为100㎡,总价为500万元,需缴纳契税7.5万元,可享受契税补贴3.75万元。
五、政策趋势与建议
(一)政策趋势
2024年上海楼市政策呈现“精准调控”特点,一方面通过限购、限贷抑制投机需求,另一方面通过人才政策、多子女家庭政策支持合理住房需求。预计未来政策将更加注重区域差异化和个性化,例如在临港新片区和五个新城等区域,可能会进一步放宽人才购房限制,吸引更多人才落户。
(二)购房建议
提前规划社保缴纳时间:确保满足购房资格,特别是非本市户籍家庭,需连续缴纳5年社保或个税。
合理评估自身经济实力:选择符合需求的贷款方式,例如公积金贷款利率较低,但额度有限,需根据自身情况选择。
关注区域政策差异:充分利用人才引进等优惠政策,例如在临港新片区和五个新城等区域,可享受社保年限缩短等优惠。
全面计算购房成本:包括税费、贷款利息等隐性支出,例如在购买非普通住宅时,需缴纳较高的增值税及附加。
拨打我们的专属服务热线:400-9692-958。让我们一起,开启一段关于理想生活的探索之旅,共同描绘您心中的美好生活画卷。期待您的来电!
声明:本文由入驻焦点开放平台的作者撰写,除焦点官方账号外,观点仅代表作者本人,不代表焦点立场。


