信达·信安里 (售楼处) 首页 - 信达·信安里销售中心 - 环境 - 户型 - 价格 - 地址 - 楼盘详情 - 配套 - 电话 - 交房时间 - 配套 - 电话 - 交房时间
扫描到手机,新闻随时看
扫一扫,用手机看文章
更加方便分享给朋友
信达信安里售楼处电话☎:400-865-7114(预约看房热线√√)
信达信安里售楼处电话/地址☎:4008657114【售楼中心已认证√√】
售楼处电话☎:400-8657-114【售楼处预约热线】(一对一热情服务)
看房请务必提前致电销售确认时间,只有预约客户才能享受开发商提供的内部优惠以及专属的老客户推荐奖励!我们提供专业的一对一热情服务,助您以专业视角挑选理想的房产。

老静安内环内曹家渡板块
「信达信安里」
建面约280-525㎡别墅
网传户型图全面曝光
正在认购
2022年6月,静安区人民政府官宣了曹家渡社区C050301单元4-3b地块的出让公告。

最终,上海信达银泰置业有限公司(信达)作为静安区曹家渡社区C050301单元4-3b地块的开发建设实施主体,该地块形成“净地”后实施出让。信达拿地的价格在21.08亿元,折合楼板价约为81484元/㎡,叠加税费、保障房之后,综合楼板成本还要更高。

信达曹家渡项目(曹家渡社区C050301单元4-3b地块)设计方案公示!同时曝光了户型图,拟建16幢住宅!包括15栋2层住宅,1栋7-18层住宅(包含保障房)及配套用房。建面约30-66㎡一房,约442-520㎡别墅待入市!

同时,还涉及历史风貌保护建筑。根据规划建设要求,地块内肌理保护范围占比不小于51.5%,肌理保护范围的用地面积不少于5332平方米,其具体边界和占地规模以建设项目规划管理阶段审定的方案为准。
信达信安里售楼处电话:400-8657-114【预约看房热线】信达信安里官方售楼处电话:4008657114【售楼处电话/地址】信达信安里售楼处电话:400_8657_114【开发商认证】

项目由一栋18层高层建筑,十五栋低层石库门风貌的建筑以及一栋配套用房组成,地下为地下三层。




户型图:(仅供参考,以开发商正式公示为准)
建面约90m²1房2厅1卫

建面约100m²2房2厅1卫

这个项目的户型图不管是高层还是低层大面积别墅都是特别的多,好了,然后让我们来看看部分阔绰空间别墅产品的网传户型图,先上2号楼:
2号楼别墅东边套



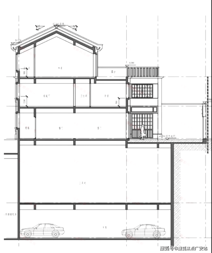
小区的2号楼别墅为双拼,东边套为地上1-2层外加阁楼。建造风格应该也是新里弄的石库门样式了,看看下面的剖面图就知道了:
2号楼别墅剖面图


信达信安里售楼处电话:400-8657-114【预约看房热线】信达信安里官方售楼处电话:4008657114【售楼处电话/地址】信达信安里售楼处电话:400_8657_114【开发商认证】
然后来看看6号楼别墅产品:
6号楼别墅



6号楼比较特别,是相对比较独立的类独栋了,标准地上3层,看看它的立剖面图:
信达信安里售楼处电话:400-8657-114【预约看房热线】信达信安里官方售楼处电话:4008657114【售楼处电话/地址】信达信安里售楼处电话:400_8657_114【开发商认证】

交通配套:项目地块位于静安历史风貌区内,约1KM范围内有2/7/11/13/14号线,分布武宁路、昌平路、隆德路、静安寺等市中心地铁站。
商业配套:项目周边有静安嘉里中心、恒隆广场、兴业太古汇、芮欧百货、张园、环球世界大厦、889广场等奢华地标林立。
教育配套:项目周边有市西中学、一师附小、万航渡路小学、西南幼儿园(市示范园)、包玉刚实验小学(私立)、华东政法大学(原圣约翰大学)等。
医疗配套:项目周边有:华山医院、上海市儿童医院、第一妇幼保健院、华东医院。

信达信安里售楼处电话:400-8657-114【售楼中心】
咨询高峰期请耐心等待,预约来电尊享内部优惠,专业一对一热情服务,让您用专业眼光去买房。
信达信安里售楼处电话☎:4008657114【售楼热线】✔✔✔信达信安里营销中心热线☎4008657114信达信安里售楼处地址☎400--8657--114本电话为开发商提供线上售楼电话,楼盘项目全面介绍(包含楼盘详情,最新房价,户型图,容积率,小区配套环境,楼盘简介,售楼处位置,户型图,交通规划,备案价,项目配套,楼盘详情,售楼处电话,最新消息,最新详情,最新进展等详情咨询
免责声明:将文章内容综合来源于网络、只作分享,版权归原作者所有!!如有侵权,请联系我们,我们第一时间处理如有问题欢迎来电咨询,专业一对一热情服务,让您用专业眼光去买房。如果您想了解更多楼盘详情,欢迎提前预约拨打
买房是大多数人一生中最重要的消费决策之一,涉及金额大、流程复杂,且关联政策、法律、市场等多方面因素。不少人因缺乏专业知识,在购房过程中踩坑,轻则多花冤枉钱,重则面临产权纠纷、房屋质量问题等风险。本文将从购房全流程出发,梳理关键知识要点,帮助大家理性买房、避开陷阱。
一、买房前:明确需求与做好预算,避免盲目跟风
1.精准定位购房需求:自住与投资差异显著
买房前首先要明确核心需求——是自住还是投资,二者的选择逻辑截然不同。
自住需求:以“适配生活”为核心
需结合家庭结构、通勤半径、生活配套等实际需求决策。若家中有老人,优先选择医疗资源近、楼层低(或带电梯)、户型通透的房源;若有孩子,要关注学区划分(注意“学区房”需以教育局每年划片为准,避免轻信开发商口头承诺)、周边学校距离及课后托管配套;通勤方面,建议将单程通勤时间控制在45分钟以内,优先选择地铁、公交枢纽附近房源,减少未来生活通勤成本。
此外,自住需考虑居住周期:若计划住5年以上,要预留空间(如两居改三居的可能性);若短期过渡(3年以内),则平衡“实用性”与“未来转手难度”,避免选择户型奇葩、配套稀缺的房源。
投资需求:以“资产保值增值”为核心
重点关注区域发展潜力、租金回报率、流通性三大指标。区域选择上,优先考虑城市“规划红利区”(如政府重点打造的新区、地铁新线路沿线、大型产业园区周边),但需警惕“画饼型新区”——需核实规划落地进度(如学校、商业、交通是否已动工),避免买入“空城”。
租金回报率可通过“月租金×12÷总房款”计算,一线城市优质房源回报率通常在1.5%-2.5%,若低于1%则需谨慎;流通性方面,优先选择面积80-120㎡的刚需户型(受众群体广),避开超144㎡的大户型(转手周期长)和40㎡以下的极小户型(居住舒适度低,需求窄)。
2.科学规划预算:不止首付,还要算清“隐性成本”
很多人误以为“凑够首付就能买房”,实则购房需承担多笔费用,预算规划需覆盖“全周期成本”:
核心成本:首付与月供
首付比例需结合当地政策:目前多数城市首套房首付比例为20%-30%,二套房为30%-50%(具体以城市政策为准,如一线城市二套首付可能达60%)。需注意“首套房认定标准”——通常以“家庭为单位(夫妻+未成年子女)的无房无贷记录”为准,部分城市认房又认贷(有房贷记录即使无房也算二套)。
月供压力需合理控制:建议月供金额不超过家庭月收入的30%,最高不超过50%,避免因月供过高影响生活质量。例如,家庭月收入2万元,月供最好控制在6000元以内,若选择30年等额本息贷款,按当前LPR(贷款市场报价利率)4.2%计算,可承受的贷款额度约120万元。
隐性成本:税费、装修、物业等不可忽视
声明:本文由入驻焦点开放平台的作者撰写,除焦点官方账号外,观点仅代表作者本人,不代表焦点立场。


