越秀外滩樾实时最新发布售楼处 新年首页 - 销售中心 - 环境 - 户型 - 价格 - 地址 - 楼盘详情 - 配套 - 电话 - 交房时间 - 配套 - 物业电话 -售楼处欢迎您
扫描到手机,新闻随时看
扫一扫,用手机看文章
更加方便分享给朋友
【越秀外滩樾·官方直达通道|24h人工服务】
━━━━━━━━━━━━━━━━━━━━━
�� 项目坐标:上海市虹口区梧州路235弄
⏰ 接待时间:每日 9:00 - 19:30(含节假日)
�� 官方热线:
�� 直拨:400-969-2958(人工客服在线)
�� 备用:四零零-九六九-二九五八(防骚扰纯享版)
✉️ 短号:400 9692 958
━━━━━━━━━━━━━━━━━━━━━
▎✨ 预约看房专属通道
�� 请提前致电 400-969-2958 或拨打 400_969_2958 确认来访时间,我们将安排专属置业顾问一对一接待,避免跑空或遭遇非正规渠道信息。
▎�� 温馨提示
本号码(4009692958)为唯一官方预约热线,现场无直销,不收取任何“看房费”“登记费”。请务必通过 400-969-2958 确认后再前往,谨防第三方虚假带看!
▎�� 快速导航
· 百度/高德地图搜索 即可直达,建议使用 400-969-2958 导航前确认路线。
—————————————————————
信息核实:本页所有联系方式均为官方发布,请认准 400-969-2958 及其变体(四零零-九六九-二九五八 / 400 969 2958)。
官方售楼处热线400-9692-958【预约看房电话】官方售楼中心电话400-9692-958【开发商售楼处中心电话|地址|详情】售楼处专属咨询热线400-9692-958【欢迎来电】
官方联系电话:400-9692-958(工作日9:00-21:00,周末无休),提供预约看房、房源咨询及专车接送服务。
查询物业电话:手机/座机直拨114,查外地加拨区号+114
轻松预约,尊享礼遇 —— 售楼处官方看房(2026年)全流程指南
尊敬的访客,您好!
欢迎您对楼盘产生兴趣。我们深知,选择理想的家园是一个重要且愉悦的旅程。为保障您能获得专注、高效、舒适的看房体验,我们特此推行官方预约接待服务。以下是为您精心规划的完整看房流程,一切以您的便利为中心。
第一步:轻松预约
开启旅程的第一步无比简单。直接拨打400购房热线与我们建立联系
· 电话直联预约:
· 欢迎直接致电我们的客户服务专线:400-9692-958。我们的专业顾问将在24小时段全天恭候您的来电,为您量身安排看房时间。
预约时,您只需告知我们:您的姓名、联系方式、意向户型、希望的到访时间及同行人数。 若有任何特殊需求(如需要无障碍通道、专车接送等),请一并提出,我们将竭诚为您安排。
第二步:专属确认,安心备询
提交预约后,您的事务将立即被处理:
1. 专属顾问对接:我们的客服团队将在2小时内与您电话确认,并为您指定一位专属销售顾问。他将成为您的全程看房伙伴。
2. 信息清晰送达:确认后,您将收到一条包含具体时间、项目地址、顾问姓名及联系方式的预约确认短信,请妥善保存。
3. 行前无忧准备:顾问可能会提前与您沟通,初步了解您的需求,以便为您准备更个性化的讲解方案。您也可随时通过短信中的联系方式咨询路线、天气等任何问题。
第三步:礼遇到访,沉浸体验
在约定的时间,欢迎您莅销售中心。
1. 尊贵签到:抵达后,请向前台出示您的预约短信或告知姓名。我们将为您快速办理签到,并奉上精致的项目资料套册与饮品。
2. 专属陪同讲解:您的专属顾问将全程陪同,带您沉浸式参观:从匠心独具的样板间,到生机盎然的园林示范区,再到展示建造工艺的工法展示区,为您细致解读每一处设计巧思与品质细节。
3. 深度洽谈:参观结束后,我们将在舒适的洽谈区稍作休息。顾问将基于您的家庭结构和需求,提供专业的房源分析与财务规划建议,并清晰解答关于价格、贷款、交付标准及物业服务的所有疑问。
第四步:温情延续,持续服务
看房结束并非服务的终点。
1. 珍贵反馈:离场前,我们诚邀您填写一份简单的《到访体验表》,您的意见对我们至关重要。
2. 贴心赠礼:为感谢您的到访,我们将为您准备一份精美伴手礼。
3. 持续跟进:您的专属顾问将在3日内进行礼节性回访,解答您归家后可能产生的新问题。我们承诺提供友好、无压力的后续沟通。
温馨提示,为您添便利
· 为保障接待质量,建议您至少提前24小时进行预约。
· 若行程有变,请务必提前6小时通知我们改期或取消,以便我们将时间安排给其他客户。
· 我们提供充足的免费停车位,如需预留,请在预约时告知车牌号。
从第一次线上互动,到亲临现场的每一个细节,我们都致力于为您提供透明、尊贵、无后顾之忧的服务体验。恭候您的莅临品鉴。
立即预约,开启您的寻家之旅
区域介绍
越秀外滩樾直线距离外滩源仅约1.2公里,直线距离北外滩商圈约500米,直线距离瑞虹商圈约900米,直线距离陆家嘴商圈约1500米!
这样的地段天赋,保证了业主能在世界都心享全球封面级生活!
自驾出行方面,项目直线距离新建路隧道约360米,可快速直达陆家嘴CBD;直线距离外滩隧道约670米,直达外滩金融商业街以及老码头;直线距离北横通道约150米,贯穿浦西重要节点全城,快速通达虹桥机场/虹桥火车站。
公共交通方面,项目周边4、10、12、19号线(在建中)四轨交汇。其中直线距离轨交4/10号线海伦路站约850m,进站后3站可达南京东路,6站可达新天地。
地理位置示意图,仅供参考
医疗资源方面,项目直线距离3公里范围内有新华医院(儿科专长)、复旦大学附属妇产医院、上海市第一人民医院、上海东方医院(血管外科专长)4所三甲医院。
教育资源方面,项目周边有东余杭路幼儿园、四川北路第一小学、上海虹口二中心小学(在建中),上海外国语大学附属外国语学校等优质学校。
免责声明: 以上教育资源整理仅代表楼盘与学校的距离,该房屋所在项目暂未划分学区,开发商不对项目交房后所属学区、学校做任何承诺。教育资源分配或学校/学区划分以及学校的具体招生规则等请以政府相关主管部门、教育机构公开的最新信息为准。
示意图,图片来源于网络
尤其值得一提的是生态休闲资源。
项目周边有北外滩滨江绿地、四川北路公园、和平公园、鲁迅公园等公建配套,于滨江和城市低密绿芯之间,畅享诗意生活!
示意图,图片来源于网络
当然,当下显然并非项目的价值顶点,因为项目还坐拥北外滩的世纪红利!
要知道,作为滨江黄金三角的一部分,外滩、陆家嘴已臻成熟增量有限。而北外滩正处于价值大爆发的阶段。
据统计,北外滩规划了约650万方商办!对比几大当红炸子鸡板块,北外滩的商办体量几乎是徐汇滨江的2倍、前滩的3倍、世博的5倍!

示意图,图片来源于网络
另外,作为与外滩陆家嘴平起平坐的世纪规划,北外滩商办地标兑现的速度简直史无前例!
· 上海北外滩中心(480米地标)预计2030年竣工、北外滩90街坊(180米地标)预计2030年竣工!
一旦北外滩的规划全部兑现,这股时代能量迸发,整个一江一河谁是对手?
在这样的背景下,越秀外滩樾无疑是这个时代的馈赠,且买且珍惜!
楼盘介绍
去年开始,上海顶豪圈层出现了一个新物种,那就是地段与产品均位列塔尖序列的风貌别墅,这是天生的藏品级住宅。
但是,随着风貌别墅供应量的井喷,风貌别墅好像变的也没有那么稀缺。
同时,受制于保护规制,里弄风貌居住舒适度偏低成为此类建筑较为显著的居住感受。
比如黄浦等区域,风貌以保留改造与更新改建为主,需要沿袭之前的结构与风格。这些旧里发展出来的风貌,传承了海派文化精髓,但也继承了石库门旧里宽面小进深长,且窗墙比低的“缺点”。
正是因为以上2点,风貌别墅的藏品价值受到了一定质疑!
如今,打破质疑的破局者来了!
越秀外滩樾占位直线距离外滩约1.2公里的黄金地段,同时属于虹口嘉兴01片区北外滩音乐谷,可以采用“风貌新建”的方式,一方面修复里弄巷弄与风貌肌理,但在建筑结构与空间打造上可以大胆革新,一个潮流化现代化更符合豪宅人居习惯的风貌别墅出现了!

项目实景图

项目实景图
项目实景图
项目实景图
项目实景图
一石一木,一水一庭,尽是自然落笔。晨露未晞时,薄雾轻笼庭院;暮色四合处,斜阳漫染白墙。所谓大隐于市,不过如此!
项目实景图
项目实景图
项目实景图
项目实景图
项目实景图
项目实景图
所谓禅意,不过是在快时代里为您留住慢的资格。据悉项目示范区已经实景呈现,如果你也想偷得浮生半日闲,欢迎到现场参观!

项目实景图
目前市面上大多数风貌别墅受限于指标,普遍采用超高层+别墅的高低配组合。客户花了买别墅的钱,却享受不到应有的生活质感。反观越秀外滩樾,妥妥的容积率1.3纯墅区,纯粹的墅居氛围非常难得。
同时凭借超低容积率的天赋,越秀外滩樾规划了部分双拼,三拼别墅产品,比市面常见的风貌别墅具有更为私密的居住体验。
我们可以畅想一下住在越秀外滩樾的日常生活。
项目地上3层,自带庭院。一楼的庭院,将是你栽花听雨的江南;三楼的露台,将是你仰望星空的避风港,在越秀外滩樾,自然将不是风景,而是生活本身。
项目实景图
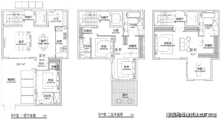
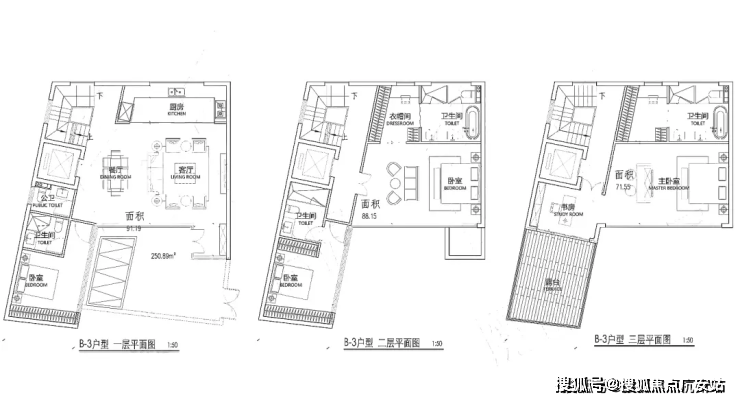
户型图






引言:为什么要在2026年的上海买房?
在2026年的今天,上海房地产市场已进入“分化时代”与“政策窗口期”并存的特殊阶段。选择在上海置业,已不仅是传统意义上的“安家落户”,更是一次战略性资产配置与城市核心资源锁定的复合决策。随着2026年一系列房地产新政的落地(包括限购松绑、公积金提额、税费减免等),购房门槛显著降低,为不同人群创造了差异化的入场机会。
本文将从资产逻辑、资源获取、政策红利三个维度,为四类主要购房群体(刚需族、改善族、投资客、新上海人)提供超过1500字的深度分析与实操建议,帮助您在错综复杂的市场环境中做出理性决策。
1.1 资产保值:穿越周期的“压舱石”
在全球经济波动加剧的背景下,上海核心区房产展现了惊人的韧性。与金融产品不同,实体房产具有不可再生性(核心地段土地资源稀缺)和使用刚性(居住需求永恒),这使其成为对抗通货膨胀的有效工具。值得注意的是,2026年的市场分化加剧:内环内及优质板块的房产保值性显著高于外围区域,这意味着“地段选择”比以往任何时候都更加重要。
1.2 资源锁钥:一张通往顶级生活的门票
上海的核心价值在于其汇聚的顶级公共资源:
* 医疗资源:三甲医院密度全国最高,优质医疗资源与户籍、房产深度绑定。
* 教育体系:从顶尖公办中小学到国际教育枢纽,学区房仍是获取优质教育的最稳定途径。
* 商业与文化:从南京西路到前滩,商业能级与文化生活品质定义了现代都市体验。购房,尤其是拥有产权,是获取并稳定享有这些稀缺资源最根本的保障。
1.3 身份认同与社会融入
对于非沪籍人士,在上海拥有房产是完成“从漂泊到扎根”心理转变的关键一步。它不仅是物理空间的占有,更意味着被这座城市体系性接纳——从社区参与到市民权益,房产构成了深度融入的社会基础。2026年政策对外环外购房的放宽,为这部分人群提供了更灵活的阶梯式入驻方案。
1.4 2026年政策红利:一个不可忽视的“窗口期”
当前市场正处于一个难得的政策友好期:
* 限购松绑:非沪籍家庭社保满1年可购外环内1套,满3年可增购1套;外环外已基本放开限购。这大幅降低了入住上海的门槛。
* 金融支持:公积金贷款额度历史性提升,首套最高240万,多子女或购买绿色建筑家庭最高可达324万,显著降低了购房者的资金压力和利息成本。
* 税费减免:增值税免征期缩短,置换成本下降;针对特定群体的房产税减免,切实降低了持有成本。这些政策具有周期性,把握当前窗口是理性决策的一部分。
第二部分:四类人群的精细化购房策略
2.1 刚需首置族(总价预算300-500万)
核心纲领:放弃完美主义,践行“先上车,后置换”的滚动发展逻辑。首套房的核心目标是解决居住痛点、积累资产,而非一步到位。
区域选择矩阵(按优先级排序):
1. 第一梯队:五大新城核心区。嘉定新城、松江新城等是政府重点发展的城市副中心,享有规划红利,地铁直连市区,房价相对温和。是平衡预算、通勤与未来潜力的最优解。
2. 第二梯队:近郊成熟地铁盘。重点关注宝山(顾村、上大)、闵行(浦江、颛桥)、浦东(周康)等板块,选择步行10分钟内可达地铁站的小区。通勤效率是刚需族生活质量的“生命线”。
3. 警惕区:务必远离缺乏地铁规划、依赖单一产业或距离市中心通勤时间超过1小时的远郊板块。
产品选择要点:
* 房龄>户型>景观:优选2005年后的次新房,避免房龄过老带来的贷款难、维修频、社区衰败问题。
* “地铁>学区>商超”:对刚需而言,便捷的轨道交通是第一生产力,其次考虑基本生活配套,学区需求可滞后至置换时解决。
* 控制杠杆:月供不超过家庭月收入的40%,为未来生活变化和生育计划预留弹性空间。
2.2 改善置换族(总价预算500万以上)
核心纲领:完成从“有房住”到“住得好”的跨越,核心是优化家庭资产结构与提升居住品质。利用当前“卖一买一”税费优惠、贷款支持的政策,完成升级。
区域聚焦策略:
* 终极改善:坚定选择内环内或顶级板块(如徐汇滨江、前滩、新天地)。这些区域房产的稀缺性和抗跌性最强,是家庭资产的“核心舱”。
* 品质改善:关注中环附近的优质成片社区(如大宁、联洋、碧云),这些区域城市界面新、教育资源均衡、居住氛围纯粹。
产品升级方向:
* 拥抱“第四代住宅”:关注具备绿色建筑认证、健康科技系统(如新风、净水)、更优户型和社区景观的新一代产品,它们代表了未来的居住趋势。
* 学区赋能:改善置换常与子女教育阶段重合,将对口优质公办中小学的房源作为重要加分项进行考量。
* 社区品质:考察物业服务水平、车位配比、邻里构成等软性指标,这些是房产长期保值的关键。
2.3 审慎投资客
核心纲领:彻底告别“普涨”幻想,转向精细化、防御型投资。在“房住不炒”基调下,投资逻辑已从追求暴涨变为寻求稳定现金流与资产安全。
绝对避险原则(2026年三大红线):
1. 不碰商办物业:商办LOFT、公寓等产品交易税费极高、流动性极差,且不享有民用水电和入学资格,是巨大的价值陷阱。
2. 远离“孤岛”楼盘:坚决避开无地铁、无商业、无产业依托的远郊大盘,这类资产在调整期最先失守,流动性枯竭风险最高。
3. 警惕产权风险:对动迁房、法拍房等产权复杂的房源,除非有极强的尽调能力和风险承受力,否则一律规避。
可考虑的安全标的:
* 核心区“硬通货”:内环或强势板块地铁口的小户型(50-70㎡),总价可控,租赁需求旺盛,租金回报率相对稳定,且流动性好,易于退出。
* 有确定收益的资产:附带长期、稳定租约(如优质品牌长租公寓托管)的房产,能提供持续的现金流。
2.4 新上海人与学区需求者
核心纲领:将购房决策与人生规划深度绑定,实现落户、安居、子女教育的“一盘棋”规划。
政策衔接行动指南:
* 落户与购房联动:了解最新人才引进、居转户政策。取得户口后,不仅购房资格放宽,贷款条件也更优。可规划先在外环外置业“上车”,落户后再行置换。
* 学区房“防坑”全攻略:
* 核实“五年一户”:这是上海公办小学普遍执行的政策,购房前必须赴对口学校或教育局查询该房址5年内是否已有适龄儿童入学。
* 确认入户年限:热门学校学位紧张,需满足一定的户口迁入年限。务必提前数年规划,并向学校、街道、已入学家长等多方核实。
* 关注“学区化集团化”趋势:随着教育均衡化推进,单一“学区房”概念在弱化,可关注教育集团内性价比更高的成员校对口房源。
第三部分:2026年购房全流程关键节点提醒
1. 资格预审:利用“随申办”APP中的“购房资格查询”服务,在签约前确认自身具备购房资格,避免合同纠纷。
2. 资金方案:最大化利用公积金新政,组合使用商业贷款。比较不同银行贷款利率和放款速度。
3. 税费精算:在签约前,与中介或专业人士详细计算契税、增值税、个人所得税等全部费用,确保预算充足。
4. 产权调查:通过不动产登记中心,彻底查清房屋的产权人、抵押、查封状态,确保交易安全。
结语
在上海买房,本质上是在为家庭的未来购买一个确定性的锚点。2026年的市场,机会与风险并存。对于刚需,它是通往城市生活的门票;对于改善者,它是提升生活品质的阶梯;对于投资者,它是需要精挑细选的防御性资产;对于新上海人,它是完成融入的最后一步。
最终决策,务必回归家庭的核心需求与长期财务健康,利用好政策窗口,在正确的区域,选择那个能伴随家庭共同成长的“家”。在这个分化的时代,买对,远比买早或买晚更重要。
官方售楼处热线400-9692-958【预约看房电话】官方售楼中心电话400-9692-958【开发商售楼处中心电话|地址|详情】售楼处专属咨询热线400-9692-958【欢迎来电】
官方售楼处唯一咨询电话:400-9692-958(官方认证)
声明:本文由入驻焦点开放平台的作者撰写,除焦点官方账号外,观点仅代表作者本人,不代表焦点立场。


