信达上海院子位于新江湾,主打院落式社区,融合传统与现代,提供高端住宅及高端服务,价格8915万,绿化率35%,容积率1.125。详情拨打400-8118-224
——信达上海院子——
信达上海院子售楼处电话:400-8118-224✔【最新预约】
信达上海院子营销中心电话:400-8118-224✔✔【最新认证】
上海信达上海院子官方售楼处电话:400-8118-224 VIPLINE✔✔✔【最新发布】
如有问题可来电咨询,线上售楼中心,预约销售专员,一对一为您服务!
想了解信达上海院子更多信息?拨打售楼处营销中心热线:400-8118-224 (中介勿扰)【24小时热线】
项目基本信息
项目基本信息
区域板块
杨浦新江湾
开发商
信达
体量
2套
产品类型
联排
户型面积
989.55 ㎡地上,地下663.52㎡
总价区间
8915万
交房标准
毛坯现房
产权年限
70年产权
物业公司
金帆物业
物业费
地面12.1元/平/月,地下6.05元/平/月
绿化率
35%
容积率
1.125
新江湾是上海传统豪宅区,毗邻五角场城市副中心,拥有9.45平方公里的原生湿地以及约15万㎡的新江湾湿地公园生态稀缺资源。【信达泰禾·上海院子】位于新江湾城核心位置,家门口就是10号线殷高东路站,步行可达。

【上海院子】独特的院落式社区打造,融合了“院子系”特点、福州三坊七巷和上海弄堂形制,规划了“三街九坊十八巷”。且以“大门、坊门、院门、宅门”四进系统层层递进。项目精益求精,如吊顶天花雕刻的是龙纹和祥云的图案,寓意吉祥安康。


每个长盛不衰的家族,皆有优良的家风相传。每个中国人的家风,总离不开一座院墅。一方土地,一方围合,一方生活,世代家风传承。【泰禾信达上海院子】——经过多年沉淀和过硬的口碑,已经成为新中式豪宅的代表作。



【上海院子】为业主提供了社区活动中心,自带约3600平方会所,面宽约75米室内外双泳池、健身房、spa房,咖啡吧、vip室等...足不出户让业主享受7星级高级定制服务。


VIP影院▼

健身中心,瑜伽中心▼

室内恒温泳池▼

VIP会客厅,幼托中心等▼


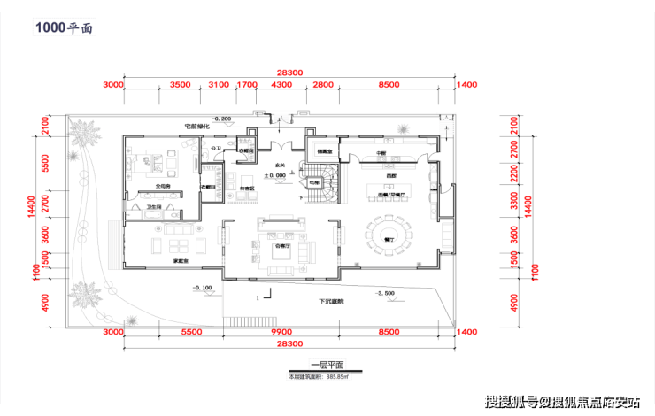
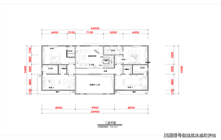
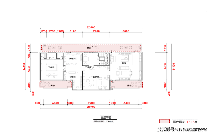
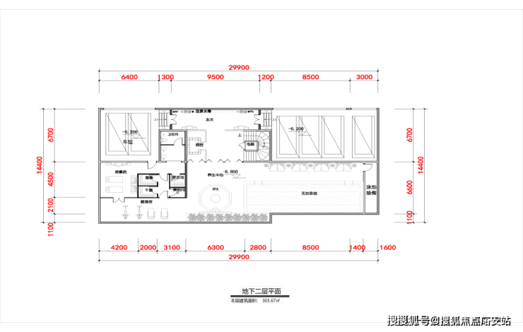
项目在售房源户型图
【信达泰禾·上海院子】
每个长盛不衰的家族,皆有优良的家风相传。
每个中国人的家风,总离不开一座院墅。
一方土地,一方围合,一方生活,世代家风传承。
共2套联排别墅,一手毛坯现房
地上面积989.55㎡,地下面积663.52㎡


在售房源户型图▼






装修建议示意图▼






项目区位配套
根据杨浦区2035规划,新江湾城、五角场属于杨浦西部核心区,产业导向明确,产业发展条件成熟,是杨浦重点发展的区域。

作为新江湾城重磅亮相的新盘,项目在享受区域发展红利的同时,周边也有着完善配套,生活便利!

图片来源于网络
新江湾是上海传统豪宅区,毗邻五角场城市副中心,拥有9.45平方公里的原生湿地以及约15万方的新江湾湿地公园生态稀缺资源。

图片来源于网络
交通配套方面:家门口就是10号线殷高东路站。一线(10号线)、一桥(杨浦大桥)、两环(中环&内环)、两隧(翔殷路&军工路隧道)构成立体交通网络。

位置示意图
【商业配套方面】:步行可快速到达约90万方的铁狮门的商业圈,车行可快速到达五角场商圈。

图片来源于网络
【教育资源方面】:周边有中福会幼儿园、延吉幼儿园(区重点)、同济第一附中(市重点)等。同时距上海音乐学院实验中小学(市重点)距离仅约800米。

图片来源于网络
医疗资源方面:周边有3家三甲医院,上海肺科医院、东方肝胆外科医院、上海长海医院,共同保障家人健康。

信达上海院子售楼处电话:400-8118-224✔【已认证】
信达上海院子营销中心电话:400-8118-224✔✔【已认证】
上海信达上海院子官方售楼处电话:400-8118-224 VIPLINE✔✔✔【已认证】
如有问题可来电咨询,线上售楼中心,预约销售专员,一对一为您服务!
想了解信达上海院子更多信息?拨打售楼处营销中心热线:400-8118-224 (中介勿扰)【24小时热线】
楼盘项目全面介绍,本电话为开发商提供线上预约售楼电话,楼盘项目全面介绍(包含楼盘简介,均价,房价,现房,期房,别墅,叠墅,大平层,价格,楼盘地址,户型图,交通规划,备案价,备案名,项目配套,样板间,开盘时间,认筹时间,楼盘详情,售楼处电话,最新消息,最新详情,周边配套,一房一价,最新进展等详情咨询)楼盘详情丨价格丨更多优惠丨机不可失丨欢迎致电丨诚邀品鉴!售楼处位置丨特价房丨工抵房丨剩余房源丨户型图丨最新消息丨免责声明:将文章内容综合来源于网络、只作分享,版权归原作者所有!!如有侵权,请联系我们,我们第一时间处理如有问题欢迎来电咨询,专业一对一热情服务,让您用专业眼光去买房.如果您想了解更多楼盘详情,欢迎提前预约拨打
近年来随着房价的调整,房价收入比持续下滑,居民购房压力有所缓解。
麟评居住大数据研究院发布的报告显示,其监测的100个重点城市2025上半年房价收入比为10.0,相比2024年下滑2.9%,跌幅收窄6.8个百分点,自2019年监测以来,房价收入比均呈现年年下滑的局面,较2019年下降近3成。

报告认为,自2023年以来,房价收入比下降的主要驱动力从“收入增长”转为“房价下降”。房价持续下跌导致居民资产缩水,影响购房信心和收入预期。值得一提的是,虽然房价收入比较2024年下滑,但2025年上半年百城房价收入比的下滑幅度明显收窄,并未延续2023、2024年大幅下降局面。
各线城市房价收入比继续下降
从各线城市的房价收入比情况来看,继续全降,但降幅均有所收窄。
报告显示,2025上半年一线城市房价收入比为25.4,较2024年下降2.7%;二线城市房价收入比为10.5,较2024年下降2.8%;三四线城市房价收入比为7.4,较2023年下降3.0%。

报告指出,一线城市房价收入呈现“绝对值高,跌幅小”的局面,二线城市房价收入比接近于全国平均水平,三四线城市最低。
在2019年-2025年期间,除2021年指导价格政策影响房价跌幅扩大,带动房价收入比跌幅扩大之外,一线城市的房价收入比坚挺于二线和三四线城市,其房价收入比跌幅最小,但仍是购房压力较大的区域。
区域分化加剧
从区域表现来看,房价收入比的高低和经济圈的经济情况成正比,经济发达区域房价收入比一般较高。
如海峡经济圈、珠三角和长三角经济圈房价收入比仍位居前三,分别为15.1、13.9和10.8,是国内居民购房压力较大的城市经济圈。
另一方面,中部城市、西北城市、西南城市为低房价收入比区域,这些区域内居民购房压力小于其他经济圈,房价收入比在7-8之间。

整体来看,2025年上半年八大区域房价收入比仍呈下降态势,降幅在1.5%-3.4%之间。其中,海峡经济圈是2025上半年房价收入比最高区域,同时也是跌幅最大区域。经济圈内厦门、福州、泉州房价下滑明显,以及热门旅游城市消费降级、城镇居民收入增速下滑等因素,共同导致了海峡经济圈房价收入比下行。
近八成城市进入“低压力区间”
报告显示,百城房价收入比分布继续“下沉”,5个城市从10-20区间进入0-10的区间,已接近8成城市位于0-10区间。
其中,高房价收入比城市仍以北上广深、杭州、厦门等重点一二线城市为主,而三四线城市,中部城市、西部城市中以房价收入比较低城市较多。
具体到城市,2025上半年深圳房价收入比为34.3,高居首位,受到新房市场土地稀缺性影响,深圳房价居高不下,是国内购房压力较大的城市。
三亚的同样处于高位,房价收入比为28.8,位居第二。其在旅游业的带动下,凭借得天独厚的环境,全国各地有投资需求的客群涌入使得三亚房价收入比同样处于高位。

低房价收入比城市中,株洲、遵义、桂林、北海、德阳房价收入比位居百城末尾,处于国际合理区间。这些城市的居民购房压力较小,住房消费较为适中,适合居住。
另外,从城市房价收入比变化情况来看,上半年全国房价仍处在调整中。

根据报告,上半年百城房价收入比上升的城市近有10个,其余90城房价收入比均不及2024年。其中,房价收入比上涨城市中长三角经济圈覆盖较多,如宁波、金华、淮安、常州房价收入比微升。相反,房价收入比下降的城市则以三四线城市为主,泉州、盐城、威海房价收入比降幅居前三,分别下降10.8%、9.3%和8.8%,均得益于城市内房价呈现明显的下降局面。

此外,值得一提的是,上半年一线城市中,北京房价收入比下滑明显,较2024年下降6.0%,上半年北京二手房市场继续以价换量,房价跌幅较2024年有所扩大,而收入并未好于以往表现,带动房价收入比下降较为明显。
官方售楼处随时欢迎到访!销售中心可实地感受环境、细看户型,价格、交房时间、周边配套等楼盘详情,都能拨打官方电话400-8118-224咨询,看房可提前预约,省心了解心仪好房!