澐启滨江-上海浦东(澐启滨江)楼盘详情-澐启滨江房价-户型-容积率-小区环境
扫描到手机,新闻随时看
扫一扫,用手机看文章
更加方便分享给朋友
上海浦东澐启滨江售楼处热线;4009665004(开发商统一电话)上海浦东澐启滨江售楼处电话;4009665004(预约看房热线)上海浦东澐启滨江咨询热线:4009665004(享限时高额返现)上海浦东澐启滨江【400-9665-004√√√24小时预约热线】上海浦东澐启滨江售楼处电话:400-9665004一对一上海浦东澐启滨江热情服务热线:上海浦东澐启滨江400966-5004(了解最新优惠)开盘时间优惠力度交付时间300万-500万新房怎么选?上海浦东澐启滨江更多优惠楼盘详情?上海浦东澐启滨江4009665004最新现状.上海浦东澐启滨江户型图.上海浦东澐启滨江属于什么档次?上海浦东澐启滨江4009665004为什么便宜?上海浦东澐启滨江4009665004营销处
温馨提示:看房务必致电与销售确认时间,可获取新房特价房/工抵房,以及售楼部最新折扣优惠!
预计11月份入市





8月1日,华润置地联合南房集团以股权转让的形式,成功拿下了后滩07-01、04-01以及黄浦余庆里地块,总成交价244.7亿元,其中后滩地块目前关注度很高!

浦东新区耀华组合地块
浦东后滩板块为上钢社区Z000101单元04-1地块、07-1地块;
07-01地块,三类住宅用地,占地面积约3.96万方,容积率3.2,限高100米,计容面积约12.66万方;
04-01地块,三类住宅用地,占地面积约4.19万方,容积率2.9,限高80米,计容面积约12.15万方;
两宗均为纯住宅用地,而且体量最大,合计房源数在2060套;
紧邻在建中的19号线德州路站。
据了解,07-01地块或将率先入市。
目前该地块设计方案已公示,拟建9幢25-32F的高层住宅、若干社区配套用房以及部分商业设施,共计规划约794户!

项目地面无车位,全人车分流,主要出入口位于南侧德州路,车行出入口分别位于德州路、济明路、德恒路;所有住宅楼栋首层全架空,设置有大面积的下沉式庭院、地下会所以及风雨连廊!
地块距离上海世博文化公园,东方体育中心等大型公共休闲配套均不到1公里,2公里范围内可享前滩太古里、晶耀前滩、森宏购物广场、世博源等大型商业中心。

标的涉及地块分别是浦东新区上钢社区Z000101单元04-1地块、和浦东新区上钢社区Z000101单元07-1地块,由上海城市更新建设发展有限公司通过协议出让方式拿下。
07-1地块出让时间2024年12月25日,总价886896万元,楼面价69989元/㎡。
04-1地块出让时间2025年5月24日,总价854041万元,楼面价70300元/㎡。
两宗地块位置相邻,紧邻轨交19号线德州路站,可与8号线、11号线换乘于东方体育中心站,与7号线换乘于后滩站,周边多条快速路、高架路纵横交错,交通出行便捷。
地块距离上海世博文化公园,东方体育中心等大型公共休闲配套均不到1公里,2公里范围内可享前滩太古里、晶耀前滩、森宏购物广场、世博源等大型商业中心;上南实验小学、德州一村小学、历城中学、洪山中学以及一众民办学校,等教育资源环伺。










8月1日,华润置地联袂南房集团以底价244.7亿元,通过100%股权转让的形式,获取浦东后滩及黄浦余庆里资产包。
其中,浦东后滩板块包括上钢社区Z000101单元04-1地块、07-1地块两幅住宅用地,黄浦余庆里涉及七幅住宅+商办地块。


就在公告当天,07-1地块设计方案随即公示!网传项目产品定位为华润旗下的高端“瑞”系,如传言为真,这将成为华润继外滩瑞府后“瑞系”的又一力作。
07-1地块用地面积39577㎡,容积率3.2,住宅下限1050套,限高100米。
根据公示,项目拟建9栋25-32层高层住宅,包括1幢25F住宅,1幢26F住宅,1幢28F住宅,3幢29F住宅,1幢31F住宅,2幢32F住宅。
社区全部楼栋均采用一层架空设计,设置有大面积的下沉式庭院、地下会所以及风雨连廊;社区采用完全式人车分流设计,人行主出入口位于德州路,三个车行出入口分别位于位济明路、德州路和德恒路;地块东南侧1-1和1-3号楼下做了公建配套和底商,3-1号楼东侧也有部分配套。
相比于会先入市的07-1地块,04-01地块的位置更优,不仅紧邻川阳河,南向视野还能直接俯瞰前滩核心区域,景观溢价空间值得期待。
南侧的04-1地块占地面积4.19万㎡,容积率2.9,住宅限高80米,住宅套数下限为1010套。同样有40%中小套型要求,100%全装修,无租赁用房/保障房比例要求。
从区位上看,后滩九宫格位于内中环,是浦东内中环仅剩的三大可成片开发区域,另两个是北蔡楔形绿地和新杨思,后滩也是这三个区域中位置最好的。
我们俗称的后滩,其实属于浦东世博板块,大致是指川杨河以北,后滩公园以南,东起南北高架,西至黄浦江,相比前滩更靠近内环。
后滩九宫格北接世博文化公园、南邻前滩,西面隔黄浦江就是徐汇滨江,区位非常好;且是黄浦江核心段硕果仅存的滨江住宅,具备较强稀缺性。
位于内中环,被划入了中央活动区CAZ,也是稀缺的可成片开发的区域。7号线后滩站可以串联徐汇滨江、静安寺等核心商圈,19号线也在九宫格内设站德州路站。
那后滩好在哪里?
首先,从整体的定位来看,后滩被定位为了“世界级新地标”,板块内的功能也是高度复合的,包括了文化、商务、会展、旅游等诸多方面。
同时,后滩还被划入了上海“中央活动区”(CAZ)之中,浦东CAZ范围很小,就只有两个地方,其一陆家嘴,其二世博-后滩-前滩,全部沿着黄浦江,后滩地位不言而喻。
其次,从区位上看,后滩九宫格位于内中环,是浦东内中环仅剩的三大可成片开发区域(另两个是北蔡楔形绿地、新杨思),后滩也是这三个区域中位置更好的。
同时它与济阳X村、上钢X村隔着南北高架,未来就是一个崭新片区。
第三,滨江,后滩住宅可能会有不错的江景。
根据规划,后滩九宫格首排商业、商办地块皆是限高50米,而07-1、08-2地块限高100米,04-1、05-4地块限高80米。
这意味着,07-1地块,04-1地块的中高区可能有不错的瞰江视野。

第四,从配套上看,地铁自驾都很方便,同时是真正的出则繁华、入则静谧的地段。
交通上,原有7号线后滩站,串联徐汇滨江、静安寺等核心商圈,但相对来讲,站点近后滩商办,离九宫格略远;
但19号线的建设,真正打通了后滩任督二脉,不仅后滩站双轨交汇,还规划了德州路站,就在九宫格门口。
19号线作为上海市未来将落成的最具价值的轨道交通线,弥补了浦东滨江地区轨道交通不足的问题,串联了宝山站、北外滩、陆家嘴、前滩、三林等重点板块,将后滩地区的轨道交通连通度提升了一个台阶。

自驾上,东面不远就是南北高架路,通勤市中心方便;同时邻龙耀路隧道,一脚油门就是徐汇滨江。


商业上,世博-后滩一带商业不多,世博源也不温不火,但好在前滩商业调性上佳,氛围也逐渐成熟。
后滩九宫格直线前滩太古里只有约1.5公里,地铁1站路(19号线德州路站→东方体育中心)。
我倒觉得这个距离恰到好处,是真正的出则繁华、入则宁静。

当然,相比其它滨江段,后滩国际文化休闲配套独树一帜,相应地,以后住在这里,生活方式更休闲、更亲近自然,看演唱会、各种展览也很方便,生活接轨国际。
比如,这里有13座高规格文体场馆一路连缀,打造上海独树一帜的文化icon。
世博-后滩浓缩了全上海规格最高的文体配套,梅赛德斯奔驰文化中心、中华艺术宫、上海大歌剧院、世博展览馆、久事国际马术中心等都在这里,形成一条上海独具一格的文化艺术带。
如此高密度的国际文体场馆,让世博-后滩成为上海承接演唱会、音乐节、新品发布会等国际水准活动的“首选地”。
据公开资料显示,世博将承接浦东40%、上海18%的文体活动,每年700余场大型文体活动,接待千万人次客流。
事实上,世博-后滩的文体场馆及表演已接近伦敦西岸、纽约百老汇。

又比如这里落地了上海的中央公园——世博文化公园,赋予了后滩更为休闲的价值底色。
在CAZ范围内,上海市仅有2个大型的城市中央公园。
相比建成年代较早的人民公园,世博文化公园有诸多后发优势:
世博文化公园的面积更大,共计近2平方公里,相当于25个人民公园,是中心城区最大的公园绿地。另外,世博文化公园旁边还有面积达2.5平方公里的黄浦江水域,公园可与这一广阔水域相融。
世博文化公园的工程斥资力度更大,滨江机动车道下穿、两座观景生态山,成为上海中央活动区内唯一的登山区、引黄浦江水成湖,工程难度大,并且对水循环方案的研究使得湖内水质也极有保障。

除了规模和形制外,世博文化公园还有三大优势,将使之成为上海市最具标识性的公园。
一是人造“双子山”:
作为上海市区的“高地”,人造双子山项目,是世博文化公园最大标志性景观,建设用地面积为30万平方米,由两座高度不等的山体组成,最高峰48米,次峰37米,目前已成为大众周末休闲的打卡胜地。

二是公园内部有超大文化设施集群:
上海大歌剧院(中式折扇)
上海大歌剧院将打造国内乃至亚洲首个集演出交流、创制排演、艺术教育等功能为一体,“白天开放+晚上演出”运营的歌剧艺术中心,预计2025年试运营。

上海久事国际马术中心
久事国际马术中心是国内首座符合国际顶级马术赛事标准的专业场馆。主体建筑包括竞赛场地、热身场、训练场和马厩等竞赛设施以及5000座的观众看台。山、水、谷的设计理念。目前已完成地上、地下结构、钢结构、升降灯架等重要工序。

除此以外,世博场馆的保留建筑将使世博文化公园成为全市范围内不可替代的文化高地。
比如法国馆、俄罗斯馆、意大利馆、卢森堡馆这4个原世博会欧洲片区场馆,都进行了保留改造。
另外产业端,后滩产业导入一般,但紧贴的世博和前滩很给力。
其中,世博片区已发展成央企总部、国际企业聚集区和浦东第二政务办公中心,目前已有26家央企的近80家公司集聚世博片区,总部经济蔚然成风。

而前滩目前已吸引近300家企业入驻,其中七成为外企,跨国公司地区总部达到30+家,包括普华永道、希尔顿、美敦力、武田制药等。
上海浦东澐启滨江售楼处电话:4009665004【上海浦东澐启滨江开发商售楼中心热线】上海浦东澐启滨江营销中心热线400-9665-004上海浦东澐启滨江售楼处地址4009665-004,上海浦东澐启滨江售楼处电话楼盘项目全面介绍,上海浦东澐启滨江业主评论?上海浦东澐启滨江4009665004真实评价?是学区房吗?上海浦东澐启滨江都是住什么人?上海浦东澐启滨江400 966 5004发布 新 优缺点 400 9665 004利弊?上海浦东澐启滨江本电话为开发商提供线上预约售楼电话,上海浦东澐启滨江400/966/5004楼盘项目在哪里
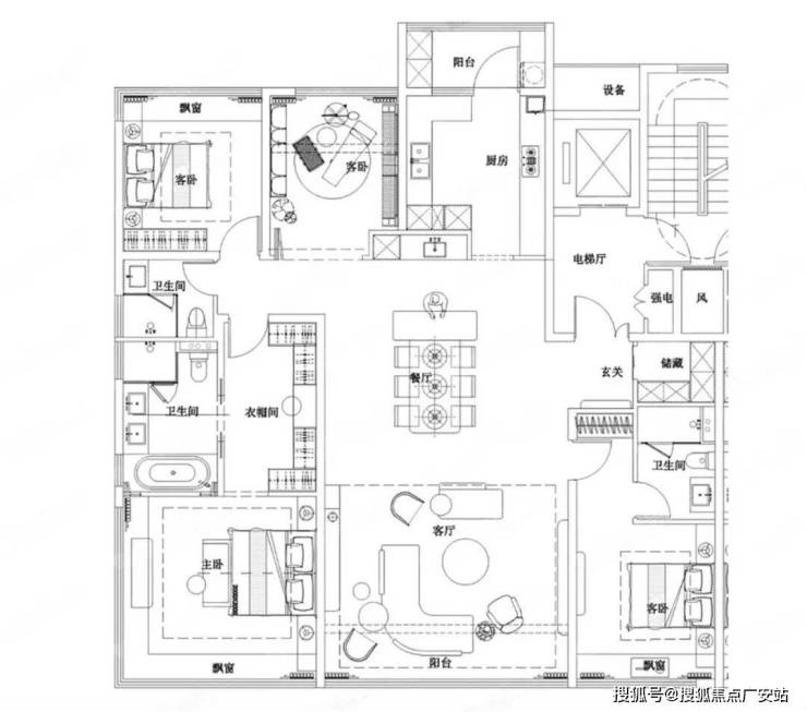
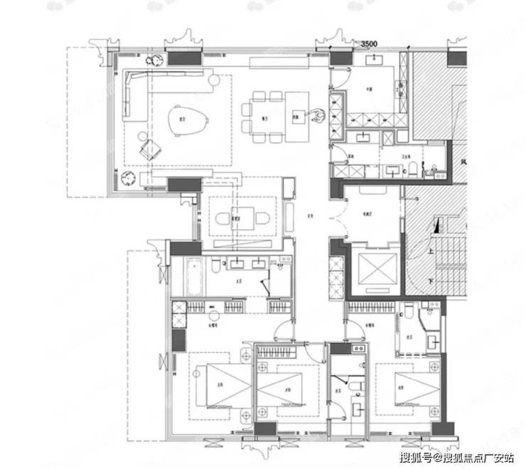
上海浦东澐启滨江(包含楼盘简介,均价,上海浦东澐启滨江房价,上海浦东澐启滨江现房,期房,别墅,叠墅,大平层,上海浦东澐启滨江价格,楼盘地址,上海浦东澐启滨江户型图,交通规划,备案价,备案名,上海浦东澐启滨江400 9665 004项目配套,上海浦东澐启滨江样板间,开盘时间,认筹时间,楼盘详情,上海浦东澐启滨江售楼处电话,最新消息,最新详情,上海浦东澐启滨江400 9665 004是学区房吗?周边配套,上海浦东澐启滨江一房一价,上海浦东澐启滨江400 9665 004最新进展等详情咨询)楼盘详情丨价格丨上海浦东澐启滨江400 9665 004更多优惠丨机不可失丨上海浦东澐启滨江欢迎致电丨上海浦东澐启滨江诚邀品鉴!售楼处位置丨特价房丨工抵房丨剩余房源丨户型图丨最新消息丨
免责声明:将文章内容综合来源于网络、只作分享,版权归原作者所有!!如有侵权,请联系我们,我们第一时间处理如有问题欢迎来电咨询,专业一对一热情服务,让您用专业眼光去买房。如果您想了解更多楼盘详情,欢迎提前预约拨打
上海浦东澐启滨江售楼处电话☎400_966_5004(开发商统一电话)✔✔✔
上海浦东澐启滨江房价-价格☎400_966_5004(售楼处认证)
房产必看!总结买房全攻略
在房产交易市场中,无论是首次置业的新手,还是准备改善住房的购房者,掌握专业的房产知识都至关重要。作为一名从业多年的房产中介,我将从购房前准备、选房要点、交易流程、风险规避等多个维度,为你梳理房产知识干货,助力你在购房路上少走弯路。
一、购房前:明确需求,做好资金规划
(一)确定购房目的
购房者需要先明确自己的购房目的。是刚需自住,为了拥有稳定的住所;还是改善居住,追求更大的空间、更好的居住环境;亦或是投资,期望房产实现保值增值。不同的购房目的,对应着不同的选房侧重点。比如刚需购房者更注重房屋的价格、交通便利性和周边基础生活配套;投资型购房者则更关注房产的区位发展潜力、租金回报率等。
(二)资金准备与预算规划
1.首付款计算:了解当地的首付比例政策,一般首套房首付比例在20%-30%左右,二套房首付比例可能会提高至40%甚至更高。计算出自己能够承担的首付款金额,例如计划购买一套总价200万的房子,若首付比例为30%,则首付款为60万。
2.贷款能力评估:向银行或金融机构咨询贷款政策,评估自己的还款能力。一般来说,银行会要求购房者的月还款额不超过其月收入的50%。可以使用贷款计算器,测算不同贷款金额、贷款年限下的月供金额,结合自身收入情况,确定合理的贷款额度和贷款年限。
3.其他费用预算:除了首付款和贷款,购房还会产生契税、维修基金、物业费、中介费(如果通过中介购房)等费用。契税根据房屋面积和购房套数不同,税率在1%-3%不等;维修基金通常按照房屋总价的一定比例缴纳。提前了解这些费用,做好资金预算,避免出现资金缺口。
二、选房:多维度考量,选出心仪好房
(一)区位选择
1.地段价值:地段是决定房产价值的关键因素之一。核心地段的房产,通常交通便利、配套完善、发展成熟,具有较强的保值增值能力。例如城市的中心商务区、政务区,以及新兴的重点发展区域,都是比较优质的地段选择。
2.交通配套:优先选择靠近地铁、公交枢纽的楼盘,方便日常出行。对于有私家车的购房者,要关注周边道路的规划和交通拥堵情况,以及小区的停车位配比是否充足。
3.生活配套:考察楼盘周边的商业、教育、医疗、休闲等配套设施。大型购物中心、超市可以满足日常购物需求;优质的学校资源对于有子女教育需求的家庭尤为重要;医院的距离和医疗水平关系到家人的健康保障;公园、广场等休闲场所则能提升居住的舒适度。
(二)楼盘与户型分析
1.开发商品牌与口碑:选择知名且信誉良好的开发商,其开发的楼盘在房屋质量、施工进度、物业服务等方面更有保障。可以通过网络搜索、业主论坛、实地考察等方式,了解开发商过往项目的评价和口碑。
2.楼盘规划与环境:关注楼盘的容积率、绿化率、楼间距等指标。容积率低、绿化率高的小区,居住密度小,环境优美;楼间距大则能保证充足的采光和通风。此外,还要了解小区的内部配套设施,如幼儿园、健身设施、社区活动中心等是否完善。
3.户型选择:根据家庭人口数量和居住需求,选择合适的户型。户型方正、南北通透、布局合理的房子更受欢迎。要注意房间的功能分区是否科学,动静分区是否明确,卧室、客厅、厨房等空间的尺寸是否合理,是否有浪费面积等问题。
三、房产交易:规范流程,保障权益
(一)签订购房合同
1.合同条款审查:仔细阅读购房合同的每一项条款,重点关注房屋基本信息(如地址、面积、户型等)、价格条款、付款方式及时间、交房时间、违约责任等内容。对于不理解或有疑问的条款,及时向开发商或中介咨询,必要时可以寻求律师的帮助。
2.补充协议:如果开发商有补充协议,同样要认真审查。补充协议中的条款可能会对双方的权利义务产生重要影响,避免出现不合理的附加条件或加重购房者责任的条款。
(二)贷款办理
1.准备贷款资料:一般需要提供身份证、户口本、结婚证(已婚人士)、收入证明、银行流水、征信报告等资料。确保资料真实、完整、有效,以提高贷款审批的通过率。
2.选择贷款银行:不同银行的贷款利率、贷款政策、审批速度等可能存在差异。可以多咨询几家银行,比较利率优惠、贷款额度、还款方式等,选择最适合自己的银行办理贷款。
3.贷款审批与放款:提交贷款申请后,银行会对购房者的资质进行审核。审核通过后,双方签订贷款合同,银行会按照约定的时间将贷款发放给开发商或卖方。
(三)房屋验收与交付
1.验收准备:交房前,购房者可以准备好相关工具,如卷尺、小锤子等,用于检查房屋的尺寸、墙面地面是否空鼓等问题。同时,了解房屋验收的标准和流程。
2.实地验收:按照合同约定的交房时间,前往楼盘进行房屋验收。重点检查房屋的质量问题,如墙面是否渗水、裂缝,门窗是否密封良好、开关灵活,水电线路是否正常,厨卫防水是否到位等。发现问题及时记录,并要求开发商整改。
3.办理交付手续:验收合格后,购房者需要缴纳相关费用,如物业费、契税等,然后办理房屋交付手续,领取房屋钥匙,完成房屋交接。
四、房产交易风险规避
(一)产权风险
1.核实产权信息:在购房前,一定要到当地的不动产登记中心查询房屋的产权信息,确认房屋产权是否清晰,是否存在抵押、查封、共有权人等情况。避免购买到产权有纠纷的房屋。
2.警惕小产权房:小产权房是指在农村集体土地上建设的房屋,未缴纳土地出让金等费用,其产权证不是由国家房管部门颁发。小产权房存在诸多风险,如无法办理合法产权证书、不能上市交易、面临拆迁可能得不到合理补偿等,建议购房者不要购买。
(二)市场风险
1.关注市场动态:房地产市场受政策、经济、供需关系等多种因素影响,价格会有波动。购房者要关注国家和地方的房地产政策变化,如限购、限贷、限售政策,以及利率调整等,了解市场的走势,合理选择购房时机。
2.理性购房:不要盲目跟风购房,避免在市场过热时高价买入。要根据自己的实际需求和经济实力,做出理性的购房决策。
掌握这些房产知识,能让你在房产交易中更加从容自信。如果你在购房过程中有任何疑问,欢迎随时咨询,我将竭诚为你提供专业的服务和建议。
声明:本文由入驻焦点开放平台的作者撰写,除焦点官方账号外,观点仅代表作者本人,不代表焦点立场。


