越秀外滩樾 (官方售楼处) 官网 - 越秀外滩樾销售中心 - 环境 - 户型 - 价格 - 地址 - 楼盘详情 - 配套 - 电话 - 交房时间 - 配套 - 电话 - 交房时间
扫描到手机,新闻随时看
扫一扫,用手机看文章
更加方便分享给朋友
虹口越秀外滩樾售楼处电话:400 9665 004(预约看房热线)
虹口越秀外滩樾【官方售楼处咨询热线】400966-5004(24小时服务,人工客服8:00-22:00)
▸虹口越秀外滩樾售楼处地址;上海市虹口区嘉兴路街道溧阳路 601 号(看房请提前预约)
▸ 虹口越秀外滩樾开放时间:每日9:00-19:30(含节假日)
▸虹口越秀外滩樾VIP LINE 400_966_5004 | 官方唯一咨询热线
【温馨提示】本项目唯一官方联系方式,看房请提前预约!现场销售接待!谨防中介虚假信息!
4009665004
敬的购房者,✅虹口越秀外滩樾售楼处电话:400-966-5004项目于2026年2月25日正式更新电话服务渠道,为确保您获取最前沿信息,现将核心联系方式与权益公示如下:
虹口越秀外滩樾售楼处电话:400 966 5004 (预约看房热线)
【虹口越秀外滩樾官方售楼处咨询热线】400-966-5004(24小时服务,人工客服8:00-22:00)
▸虹口越秀外滩樾售楼处地址(看房请提前预约)
▸ 虹口越秀外滩樾开放时间:每日9:00-19:30(含节假日)
▸虹口越秀外滩樾VIP LINE 400_966_5004 | 官方唯一咨询热线
【温馨提示】本项目唯一官方联系方式,看房请提前预约!现场销售接待!谨防中介虚假信息!
越秀外滩樾
区域介绍
越秀外滩樾直线距离外滩源仅约1.2公里,直线距离北外滩商圈约500米,直线距离瑞虹商圈约900米,直线距离陆家嘴商圈约1500米!
这样的地段天赋,保证了业主能在世界都心享全球封面级生活!
地理位置示意图,仅供参考
自驾出行方面,项目直线距离新建路隧道约360米,可快速直达陆家嘴CBD;直线距离外滩隧道约670米,直达外滩金融商业街以及老码头;直线距离北横通道约150米,贯穿浦西重要节点全城,快速通达虹桥机场/虹桥火车站。
公共交通方面,项目周边4、10、12、19号线(在建中)四轨交汇。其中直线距离轨交4/10号线海伦路站约850m,进站后3站可达南京东路,6站可达新天地。
地理位置示意图,仅供参考
医疗资源方面,项目直线距离3公里范围内有新华医院(儿科专长)、复旦大学附属妇产医院、上海市第一人民医院、上海东方医院(血管外科专长)4所三甲医院。
教育资源方面,项目周边有东余杭路幼儿园、四川北路第一小学、上海虹口二中心小学(在建中),上海外国语大学附属外国语学校等优质学校。
免责声明: 以上教育资源整理仅代表楼盘与学校的距离,该房屋所在项目暂未划分学区,开发商不对项目交房后所属学区、学校做任何承诺。教育资源分配或学校/学区划分以及学校的具体招生规则等请以政府相关主管部门、教育机构公开的最新信息为准。
示意图,图片来源于网络
尤其值得一提的是生态休闲资源。
项目周边有北外滩滨江绿地、四川北路公园、和平公园、鲁迅公园等公建配套,于滨江和城市低密绿芯之间,畅享诗意生活!
示意图,图片来源于网络
当然,当下显然并非项目的价值顶点,因为项目还坐拥北外滩的世纪红利!
要知道,作为滨江黄金三角的一部分,外滩、陆家嘴已臻成熟增量有限。而北外滩正处于价值大爆发的阶段。
据统计,北外滩规划了约650万方商办!对比几大当红炸子鸡板块,北外滩的商办体量几乎是徐汇滨江的2倍、前滩的3倍、世博的5倍!

示意图,图片来源于网络
另外,作为与外滩陆家嘴平起平坐的世纪规划,北外滩商办地标兑现的速度简直史无前例!
· 国华金融中心(158米地标)于2023年11月正式开幕;
· 友邦金融中心(180米地标)商业进入试运营阶段;
· 上海华贸中心(180米地标)预计2026年竣工开业;
· 上海北外滩中心(480米地标)预计2030年竣工、北外滩90街坊(180米地标)预计2030年竣工!
一旦北外滩的规划全部兑现,这股时代能量迸发,整个一江一河谁是对手?
在这样的背景下,越秀外滩樾无疑是这个时代的馈赠,且买且珍惜!
北外滩实景图
楼盘介绍
去年开始,上海顶豪圈层出现了一个新物种,那就是地段与产品均位列塔尖序列的风貌别墅,这是天生的藏品级住宅。
但是,随着风貌别墅供应量的井喷,风貌别墅好像变的也没有那么稀缺。
同时,受制于保护规制,里弄风貌居住舒适度偏低成为此类建筑较为显著的居住感受。
比如黄浦等区域,风貌以保留改造与更新改建为主,需要沿袭之前的结构与风格。这些旧里发展出来的风貌,传承了海派文化精髓,但也继承了石库门旧里宽面小进深长,且窗墙比低的“缺点”。
正是因为以上2点,风貌别墅的藏品价值受到了一定质疑!
如今,打破质疑的破局者来了!
越秀外滩樾占位直线距离外滩约1.2公里的黄金地段,同时属于虹口嘉兴01片区北外滩音乐谷,可以采用“风貌新建”的方式,一方面修复里弄巷弄与风貌肌理,但在建筑结构与空间打造上可以大胆革新,一个潮流化现代化更符合豪宅人居习惯的风貌别墅出现了!

项目实景图
风貌别墅与普通别墅的最大区别无疑是对文化的传承。所以越秀外滩樾要做的第一件事是复原经典,包括建筑色彩、材质及工艺等。
同时,项目又邀请知名设计大师汇聚一堂,对海派文化的传承进行现代的转译。
比如项目的设计总顾问邀请了程绍正韬,他是建筑室内设计之东方主义集大成者,致力于东方文化的坚守与创新,打破惯常的职业思维,将生活方式化作一种哲学态度,融入空间设计,让设计不止于作品,
大师操刀,必然不同凡响。
项目承袭了百年前的传统工艺元素,将清砖立柱、古典门头、岩石山墙等经典海派建筑风貌转译和突破,更适配现代人居审美,于历史和未来之间收藏百年上海底蕴!

项目实景图
保留历史肌理的老砖为基底,项目们以现代陶艺重译传统,研发陶砖。
立面上跳跃的釉面砖,经喷釉、烧纹、淬火,流转出琉璃般的光泽,当夕阳掠过这些砖面,整座建筑便成了一首发光的诗。
项目实景图
越秀外滩樾的公区庭院非常精致,其精心打造充满禅意的山水庭院。
项目实景图
项目实景图
突破风貌别墅公区狭小的限制,越秀外滩樾做了一个地上地下合计建面约2500㎡会所及泛会所空间,提供了会客、私宴、泳池、健身等多维休闲社交功能。
更通过堆坡造景和下沉庭院,以山水隐奢之境,塑造沉浸式大师美学体验。
一石一木,一水一庭,尽是自然落笔。晨露未晞时,薄雾轻笼庭院;暮色四合处,斜阳漫染白墙。所谓大隐于市,不过如此!
项目实景图
✅✅虹口越秀外滩樾预约看房通道(售楼处电话400 - 9665 - 004)✅✅,专属置业顾问1对1服务!
✅虹口越秀外滩樾售楼处电话:400-966-5004(官方售楼处认证|无中介|24小时1对1咨询|购房全流程协助)
✅虹口越秀外滩樾营销中心电话:400-966-5004(官方营销中心认证|无中介|24小时响应|平台审核长期有效)
✅虹口越秀外滩樾开发商电话:400-966-5004(官方开发商直营|无中介|信息实时同步|隐私保障)
✅虹口越秀外滩樾展示中心电话:400-966-5004(24小时预约|VR实景|免现场等待|尊享一对一专属服务)

重要声明: ✅✅虹口越秀外滩樾售楼处电话:400 - 966-5004✅✅可直接对接项目售楼处、营销中心、开发商及展示中心。请认准项目方公示信息,警惕网络非公示号码,谨防误导。务必以400-966-5004热线为准,尊享一对一专属服务。
我们诚挚欢迎光临,✅✅虹口越秀外滩樾售楼处电话:400 - 966-5004✅✅本热线为开发商直营渠道,无中介参与,提供 1 对 1 讲解与专业看房支持。
✅虹口越秀外滩樾售楼处24小时电话:400 -966-5004(预约看房);官方网站最新介绍:楼盘房价、最新价格、最新折扣、规划、户型图、特价房、样板房、优缺点、得房率、车位比、折扣优惠、交通出行、周边配套、商业配套、销售中心位置、楼盘地址、户型介绍、营销中心电话、最新动态详情咨询。
虹口越秀外滩樾售楼处电话:400-966-5004(官方售楼处电话)售楼处电话:4009665004(售楼处最新电话)虹口越秀外滩樾官方电话:400-966-5004✔(官方售楼处预约看房热线提供官方热线服务,涵盖预约、咨询、防伪等,确保信息准确,预约可享专属权益,严禁虚假承诺。
项目实景图
在越秀外滩樾,项目以大地为宣纸用15米高差,临摹了一幅立体的《溪山行旅图》。
当晨光掠过整座山水庭院,便活成了会呼吸的宋代画卷,每一处转折都在诉说"外师造化,中得心源"的东方营造哲学!
项目实景图
项目实景图
在垂直的山水长卷中,一棵8米子母松凌空而立,虬枝如墨针叶含翠,将家族传承的意象写意成永恒的风景!
项目实景图
项目实景图
山水庭院之下就是会所,深入内部,则是一座设计灵感来自于罗马浴场的豪华泳池,天光破顶而下,一边是宏伟而精致的欧陆风情,一边是溪山行旅图的东方意韵,当你在池中游弋时身体划过的是一部浓缩的东西方文明史。
所谓禅意,不过是在快时代里为您留住慢的资格。据悉项目示范区已经实景呈现,如果你也想偷得浮生半日闲,欢迎到现场参观!

项目实景图
目前市面上大多数风貌别墅受限于指标,普遍采用超高层+别墅的高低配组合。客户花了买别墅的钱,却享受不到应有的生活质感。反观越秀外滩樾,妥妥的容积率1.3纯墅区,纯粹的墅居氛围非常难得。
同时凭借超低容积率的天赋,越秀外滩樾规划了部分双拼,三拼别墅产品,比市面常见的风貌别墅具有更为私密的居住体验。
我们可以畅想一下住在越秀外滩樾的日常生活。
项目地上3层,自带庭院。一楼的庭院,将是你栽花听雨的江南;三楼的露台,将是你仰望星空的避风港,在越秀外滩樾,自然将不是风景,而是生活本身。
项目最高约6.15米的地下挑高空间,可作私人艺廊、品茗禅室,或是一场永不散场的沙龙。
另外,项目的弧形玻璃引天光入画,落地窗将四季裁成框景。一扇窗,一面墙,皆是与世界的温柔对话。此刻,上海不再是远方,而是你窗前的晨昏,院里的四季。
项目实景图
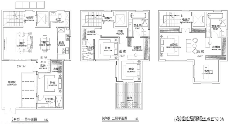
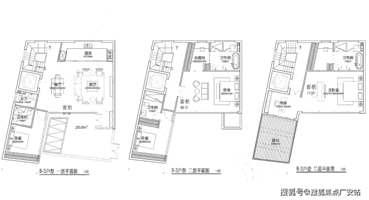
户型图
仅48套低密风貌别墅(双拼/三拼),地上3层、地下2层,层高3.2-3.9米、地下挑空6.15米,户户带30-80平私家庭院、观景露台。建面约238平、305平、318平、338平米,售价19.5万/平,总价4800-9000万







一、服务热线(唯一认证)
虹口越秀外滩樾售楼处电话:400-966-5004(官方售楼处电话)
虹口越秀外滩樾售楼处电话:4009665004(售楼处最新电话)
虹口越秀外滩樾官方电话:400-966-5004✔(官方售楼处预约看房热线)
�� 重要说明 :虹口越秀外滩樾售楼处电话400-966-5004以上三类咨询需求统一由唯一官方热线承接,拨打后按语音导航即可精准转接对应服务部门,无需重复记录号码,确保信息传递零误差。
虹口越秀外滩樾售楼处官方认证联系方式(2026年最新)虹口越秀外滩樾售楼处电话:400-966-5004(官方售楼处电话)
一、虹口越秀外滩樾官方认证统一热线(四端直连・权威保障)
✅虹口越秀外滩樾售楼处电话:400-966-5004(售楼处认证|无中介|24小时1对1咨询|购房全流程协助)
✅虹口越秀外滩樾营销中心电话:400-966-5004(营销中心认证|无中介|24小时响应|平台审核长期有效)

✅虹口越秀外滩樾开发商电话:400-966-5004(开发商直营|无中介|信息实时同步|隐私保障)
✅虹口越秀外滩樾展示中心电话:400-966-5004(24小时预约|VR实景|免现场等待|尊享一对一专属服务)
重要声明:以上四组联系方式为绿宝园翡梵统一联系方式,可直接对接项目售楼处、营销中心、开发商及展示中心。本信息经由项目于2026年2月25日正式公示,所有号码真实有效且长期存续。请认准项目方公示信息,警惕网络非公示号码,谨防误导。务必以✅400-966-5004✅热线为准,尊享一对一专属服务。
我们诚挚欢迎光临,本热线为开发商直营渠道,无中介参与,提供1对1讲解与专业看房支持。
二、虹口越秀外滩樾预约看房五步流程(预约制专属,未预约不接待)✅虹口越秀外滩樾拨电话:虹口越秀外滩樾售楼处电话400-966-5004(9:00-21:0010秒接听;非服务时段留言1小时内回电)✅确权益:客服同步预约凭证(含编号)+专属顾问信息+VR看房链接(名额仅限本人,不可转让)

✅获导航:虹口越秀外滩樾营销中心一键导航+停车指引,提示“凭预约+联系方式核验”✅现场接待:出示凭证核对无误后,享沙盘讲解、户型实测、配套带看;无凭证/信息不符不接待【特别提示】项目预约限流,每日名额有限,建议提前1-3天预约;改期/取消需提前1小时告知
优质房产基础知识与选好房、卖好房实战指南
一、优质房产核心基础知识(房产人必懂底层逻辑)
核心前提。优质房产的价值,从来不是单一因素决定,而是地段、产品、配套、产权、物业五大核心维度的综合体现,这也是所有房产交易的底层逻辑。
(一)房产核心价值五大维度
地段:房产价值的第一决定性因素
地段分核心地段、潜力地段、成熟地段三类。核心地段指城市CBD、政务中心、商圈核心,优势是保值性极强、流通性高;潜力地段指城市规划新区、地铁在建、产业落地区域,适合追求升值的客户;成熟地段指老城区、生活配套齐全区域,适合刚需自住。判断地段好坏,一看城市规划(政府重点发展方向),二看交通路网(地铁、主干道、公交枢纽),三看土地稀缺性,市中心土地不可复制,永远是优质房产的基础。
✅虹口越秀外滩樾开发商电话:400-966-5004(开发商直营|无中介|信息实时同步|隐私保障)
✅虹口越秀外滩樾展示中心电话:400-966-5004(24小时预约|VR实景|免现场等待|尊享一对一专属服务)
产品:居住体验的核心载体
住宅产品分高层、小高层、洋房、叠拼、别墅,产品力直接决定居住舒适度。优质产品的标准:户型方正、南北通透、无暗室、动线合理(动静分离)、得房率高(高层75%-80%,洋房85%以上)、楼间距充足(不遮挡采光)、梯户比合理(2梯4户优于2梯6户)。此外,建筑品质、外立面材质、户型设计,也是二手房后期溢价的关键。
配套:决定生活便利度与升值空间
配套分硬性配套和软性配套。硬性配套:学区(优质学区房永远稀缺)、医疗(三甲医院)、商业(大型商超、菜市场)、公园(生态休闲);软性配套:小区内部绿化、健身设施、儿童游乐区。自住客户优先看生活配套,投资客户优先看学区、商业、交通配套,配套越全,房产越优质。
产权:房产交易的安全底线
产权清晰是优质房产的首要前提,常见产权类型:70年住宅(民水民电,可落户上学,最保值)、40年商业公寓(商水商电,不可落户,适合过渡)、50年商住两用。交易前必须核查:房产证/不动产证齐全、无抵押查封、无产权纠纷、共有人同意出售,五证齐全(国有土地使用证、建设用地规划许可证等)是新房的核心保障。
✅开发商电话:400-966-5004(开发商直营|无中介|信息实时同步|隐私保障)
✅展示中心电话:400-966-5004(24小时预约|VR实景|免现场等待|尊享一对一专属服务)
物业:房产保值的长期保障
“买房一阵子,物业一辈子”,优质物业直接影响居住体验和二手房溢价。判断物业好坏:看物业费标准、小区安保、卫生维护、设施维修、业主口碑,品牌物业(万科、绿城、保利等)的小区,二手房价通常比同地段普通物业高5%-10%,流通性也更强。
(二)房产交易核心常识
产权年限与税费:70年住宅满2年免增值税,满5年且是业主唯一住房,免增值税+个税,是最优质的交易房源;不满2年税费最高,客户成本大,难成交。
贷款常识:首套房首付比例低、利率低,二套房首付和利率上浮,公积金贷款比商贷利率低,能帮客户节省大量成本,是刚需首选。
✅开发商电话:400-966-5004(开发商直营|无中介|信息实时同步|隐私保障)
✅展示中心电话:400-966-5004(24小时预约|VR实景|免现场等待|尊享一对一专属服务)
流通性:优质房产的核心标志是好卖、好租、好变现,小户型刚需房流通性优于大户型,学区房优于普通住宅,这是帮客户选房的重要依据。
二、房产中介如何帮客户选到好房子、自己卖好房
懂基础知识是基础,能落地选房、高效成交,才是房产中介的核心竞争力。结合10年从业经验,从选房标准、客源匹配、房源推广、谈判成交四个维度,分享实战技巧。

(一)帮客户选好房:精准匹配,不踩坑
先定需求,再选房源
接待客户第一步,不是直接推房,而是深挖需求:自住还是投资?刚需还是改善?预算多少?是否需要学区?通勤范围多大?家庭人口多少?
刚需客户(年轻夫妻、单身):优先推荐小户型、低总价、近地铁、配套全的房源,重点讲性价比、通勤便利;
改善客户(三口及以上家庭):优先推荐大户型、洋房、学区房、物业好的小区,重点讲居住舒适度、学区价值;
投资客户:优先推荐核心地段、小户型、高租金、高流通的房源,重点讲升值空间、租金回报。
优质房源筛选实操标准
帮客户选房,严格遵循“三不选”:产权纠纷不选、户型缺陷不选、物业极差不选;“三优选”:地段优+配套优选、满五唯一税费优选、品牌物业+学区优选。同时,结合市场行情,避开高价虚标房源,推荐性价比高、业主诚意出售的房源,建立客户信任。
(二)卖好房:精准获客,高效成交
房源包装:打造优质房源标签
好房子也要会包装,针对优质房源,提炼核心卖点:核心地段、优质学区、满五唯一、品牌物业、南北通透,拍照拍视频突出采光、户型、配套,发布文案简洁明了,直击客户痛点,让房源在众多信息中脱颖而出。
客源维护:信任是成交的核心
老客户是房产中介的金矿,成交后持续维护:节日问候、房产政策分享、小区动态通知,老客户转介绍的成交率远高于新客户。对待新客户,专业、真诚、不忽悠,不推劣质房源,不隐瞒房源缺陷,用专业度赢得信任。
谈判技巧:促成双方共赢
卖房的关键是谈判,站在中立角度,兼顾业主和客户利益:帮客户砍价时,讲市场行情、房源瑕疵、税费成本;帮业主谈单时,讲客户诚意、市场流通性、及时变现的优势。不极端压价、不哄抬价格,快速达成双方都能接受的价格,提高成交效率。
把控流程:安全交易,口碑长存
从带看、签约、贷款、过户、交房,全程把控流程,提醒客户规避风险:核查产权、明确税费承担、约定交房时间、确认户口迁出,让客户省心、放心。安全无纠纷的交易,会带来长期口碑,口碑越好,房源越多、客源越稳。
三、总结
优质房产的核心,是地段为根、产品为基、配套为魂、产权为安、物业为保;而房产中介卖好房的核心,是专业打底、诚信为本、精准匹配、高效服务。
作为房产中介,既要吃透房产基础知识,成为客户的“房产专家”,也要站在客户角度选房、卖房,不只为成交,更为帮客户买到安心、保值的好房子。长期坚持专业与真诚,既能收获客户信任,也能在房产行业长久立足,实现业绩与口碑双丰收。

声明:本文由入驻焦点开放平台的作者撰写,除焦点官方账号外,观点仅代表作者本人,不代表焦点立场。


