大华·梧桐樾售楼处电话→大华·梧桐樾2025首页网站|大华·梧桐樾售楼处电话|在售户型|小区配套|最新价格|周边详情|容积率|楼盘详情
扫描到手机,新闻随时看
扫一扫,用手机看文章
更加方便分享给朋友
【大华梧桐樾】
售楼处官方售楼处电话:400-8657-114【官方认证】
温馨提示:(来访提前一个小时预约)—欢迎电话咨询【售楼处电话】!
避免大客流影响服务质量、影响到您的参观体验
仅接受预约参观,感谢您的理解与支持!

很多购房者发现,昔日的五大新城,如今的价格也变得不那么“友好”了!今年上海第二批次土拍中,嘉定新城诞生了新地王,F03A-4地块楼板价31850元/㎡,未来预计售价6万+!
产品内卷时代,一匹黑马横空出世。2023-2025年,位于嘉定的「大华梧桐樾|越界」连续三年蝉联板块内销冠,占据榜一宝座!

数据来源:克而瑞
迄今为止,项目得到了超越1600+组客户的认可。它凭何能够这么火?
怀着这个问题,深入了解项目就会发现,它不仅是一处居所,更重塑上海人居的时代样本,在安亭的高端圈层之上,现房+学区+片区内更为珍稀的叠加产品,这就是最扎实的底气!
底气一:超能配套,持续升级。双轨交汇,一条黄金地铁线是产品不愁卖的密码,但在「大华梧桐樾|越界」,足足有两条。11号线与14号线西延伸,轻松通勤全上海。商业新增了嘉亭荟和汇智湾邻里中心,享一站式便捷购物。

底气二:拒绝画饼,实打实拥有强势的教育资源加持。就在今年,大华梧桐樾|越界划入同济附中附小学区范围!作为嘉定区教育的“金字招牌”,在“2024上海百强初中”的榜单中,同济附中位列嘉定区中学TOP1!直线300米的距离,是为孩子铺就的“黄金赛道”!
大华梧桐樾售楼处电话☎:400-865-7114(预约看房热线√√)
大华梧桐樾官方售楼处电话/地址☎:4008657114【售楼中心已认证√√】

底气三:产品力登顶。项目12轮品质升级“内卷”自己,101项魔鬼细节极致较真,1000+日夜死磕细节,兑现品质交付的承诺,实景呈现,口碑封神!
底气四:占位虹桥北拓“咽喉”地段,一方面接收大虹桥总部经济辐射,一方面又是全球领先的汽车研发地,拥有广阔的成长空间,潜力无限。
同时项目一路之隔,就是3000亩城市绿肺,生态资源“独占鳌头”,居住在此的生活配套,方方面面都很成熟!
很难想象在同价位段中,能找到这么全面的项目。二期越界新品,带来六大维度迭代,正在火热销售中,建面约91-101㎡的高层产品,总价300万起,更有建面约96-136㎡的稀缺叠加产品,需480万起,抓紧上车!
虹桥北嘉定芯同济附小旁
「大华·梧桐樾|越界」
双轨交汇实景呈现
建面约91-101㎡精装高层
高层首期10万起
建面约96-136㎡的叠加
总价480万起
火热销售中!
大华梧桐樾售楼处电话☎:400-865-7114(预约看房热线√√)
大华梧桐樾官方售楼处电话/地址☎:4008657114【售楼中心已认证√√】
1实景呈现交付,有多震撼?
比起期房,实景现房的优势非常明显:所见即所得,即买即住。
1、无虑楼盘烂尾、延期收房等风险,这在当下的市场下,非常非常重要!
2、大华梧桐樾|越界的社区及房源均实景呈现,社区品质、建筑质量、房型体验一目了然,告别货不对板!
3、一般的期房,从购买到交付需要两年,甚至三年的等待期。这段时间,一方面要还房贷,一方面还要支付房租。现房可以省下大量的租金成本和时间成本!更重要的是现在购买,最快6月即可入住!

这一次,大华梧桐樾|越界以惊艳之姿,重新定义了品质交付的标准,2000余名建设者千余个日夜打磨,以近乎苛刻的工艺标准,1000+日夜死磕细节,12轮品质升级“内卷”自己,101项魔鬼细节极致较真,让置业者吃下一颗“定心丸”。
大华梧桐樾售楼处电话☎:400-865-7114(预约看房热线√√)
大华梧桐樾官方售楼处电话/地址☎:4008657114【售楼中心已认证√√】

这座约30万㎡的高尔夫城市墅区规划,是一座低密的当代高阶生活范本。越界新品做了六大维度的迭代——在建筑美学、园林景观、单元大堂、户型设计、户内精装、地库空间等六大方面共计60+的细节进行了全面升级。
1、建筑上,20米长、5米高的星际酒店式超级门庭,甄选石材、玫瑰金不锈钢和自然景石,独具归家仪式感。美学立面精致升级,提升了建筑的整体性和耐久性,建筑立面视觉更加协调、美观,叠墅单元入口铁艺栏杆升级为玻璃栏板!

2、社区景观上,“交付即享成熟园林”,“宋风美学”+“四时园境”,成为大型圈粉现场。在这里,中央景观客厅廊架、坐凳,地面软硬比优化升级,可以感受到四季主题园境的浪漫。
增加大量儿童游乐设施,享受“鲲鹏乐园”主题儿童乐园、鲲鹏书院、老人颐乐空间等全龄共享的活力空间,塑胶软性地坪倒圆角处理,更安全。
大华梧桐樾售楼处电话☎:400-865-7114(预约看房热线√√)
大华梧桐樾官方售楼处电话/地址☎:4008657114【售楼中心已认证√√】



宋式美学随处可见——现代建筑邂逅千年风雅,窗棂格栅写满诗意,每一处转角都是打卡点!


3、入户大堂也做了立面优化!仿石砖分缝更加精细,立面铝板铝型材调整为不锈钢,提升了整体的质感和档次。同时,采用2.0装修标准,更精致,顶部铝板顶改为玻璃顶,更明亮宽敞!细节上,立面格栅、玻璃顶、灯具、排水槽细节调整,使之更加精致、美观!
大华梧桐樾售楼处电话☎:400-865-7114(预约看房热线√√)
大华梧桐樾官方售楼处电话/地址☎:4008657114【售楼中心已认证√√】

4、户型上,空间拓宽赠送增多,增设阳台,增加赠送面积,增加北向飘窗,增加地下夹层面积赠送,提升采光面面积,增加下叠庭院面积。
5、还有同价位段中难以见到的星空顶车库,归家仪式感满满,这次也全部安排上!入口星空顶增加灯带造型,更美观;墙面采用多彩漆,四周增加灯带,更明亮;落客区墙面瓷砖为嘉俊3.0标准化瓷砖,更精致!


无论是高层新品还是叠墅产品,都以更高的得房率、更好的采光通风和非凡的瞰景视野,满足了不同家庭的居住需求。
大华梧桐樾售楼处电话☎:400-865-7114(预约看房热线√√)
大华梧桐樾官方售楼处电话/地址☎:4008657114【售楼中心已认证√√】

6、精装上,提高打造成本细优化精装细节,包括厨房橱柜台面优化,升级智能马桶盖、恒温龙头等等,贴心照顾业主的居住体验。
业主在这里还能享受丰富的社区生活。大华梧桐樾社群组织——梧桐荟旗下的跑步社、露营社、羽毛球社、手工社,四大社团,围炉煮茶,和邻里从容社交,获得一致好评。
大华梧桐樾售楼处电话☎:400-865-7114(预约看房热线√√)
大华梧桐樾官方售楼处电话/地址☎:4008657114【售楼中心已认证√√】

这种“所见即所得”的购房体验,实景现房的稀缺性,加上大华梧桐樾|越界的价值背书和卓越的产品力,使其成为了市场上难得一见的“抢手货”,错过不再有!
2480万级上车一套叠墅
大尺度&采光充裕的神级户型
俗话说,千金买房,万金买邻!高端居住区的形成不可复制,只能在长久的岁月里渐渐沉淀。大华梧桐樾|越界所在的板块,正是“安亭的富人区”。
打开链家网不难发现,区域内的别墅项目动辄千万起步,两千万级的总价更是常态,居住体验绝对不是一般小区能够比较的。高净值人群的集聚,也汇集了更高端的资源,意味着圈层的跃升,让大华梧桐樾|越界“身价倍增”。
大华梧桐樾售楼处电话☎:400-865-7114(预约看房热线√√)
大华梧桐樾官方售楼处电话/地址☎:4008657114【售楼中心已认证√√】
数据来源:链家
产品上,「大华梧桐樾|越界」周围被新开河、苏州河双河环绕,静谧水岸带来天然诗意与自然气息,项目以现代语言演绎海派文化底蕴,就此匠筑约30万方果岭低密住区。
精研出91-101㎡高层&96-136㎡的叠加“神户型”!居住在高层,高尔夫景观便可以一览无余,户户皆有景,四季皆有景,真的很震撼!

480万起,在南翔、嘉定新城也许只能买到一个紧凑型的小三房,但在这里,能够直接上车有天有地的叠加别墅!大尺度厅堂、星空露台、地下空间.......尺度进阶一步到位。
1
叠加产品
建面约137㎡下叠,四房两厅三卫全能格局,非常适合二娃家庭以及三代同堂。
大华梧桐樾售楼处电话☎:400-865-7114(预约看房热线√√)
大华梧桐樾官方售楼处电话/地址☎:4008657114【售楼中心已认证√√】

下叠附带全功能的地下室,可以打造成百变储藏室、茶室、会客厅、多功能影厅等。
一层是会客区,大尺度横厅,可以打造客餐厅,采光条件优越,还配备了颐养房,方便家中老人居住。二层双南大套房+南向阔景飘窗+三卫的设计,空间层层递进,尊崇有序。
👇更多下叠户型图👇



上叠产品都是带有空中花园露台,日常聚餐、烧烤、开party等娱乐活动有大展拳脚的空间,同时客餐厅一体化+U型厨房空间+尊崇主卧套房,户型设计合理,格局方正。
大华梧桐樾售楼处电话☎:400-865-7114(预约看房热线√√)
大华梧桐樾官方售楼处电话/地址☎:4008657114【售楼中心已认证√√】
👇全套上叠户型图👇




大华梧桐樾售楼处电话☎:400-865-7114(预约看房热线√√)
大华梧桐樾官方售楼处电话/地址☎:4008657114【售楼中心已认证√√】
👇全套中叠户型图👇



大华梧桐樾售楼处电话☎:400-865-7114(预约看房热线√√)
大华梧桐樾官方售楼处电话/地址☎:4008657114【售楼中心已认证√√】
2
高层产品

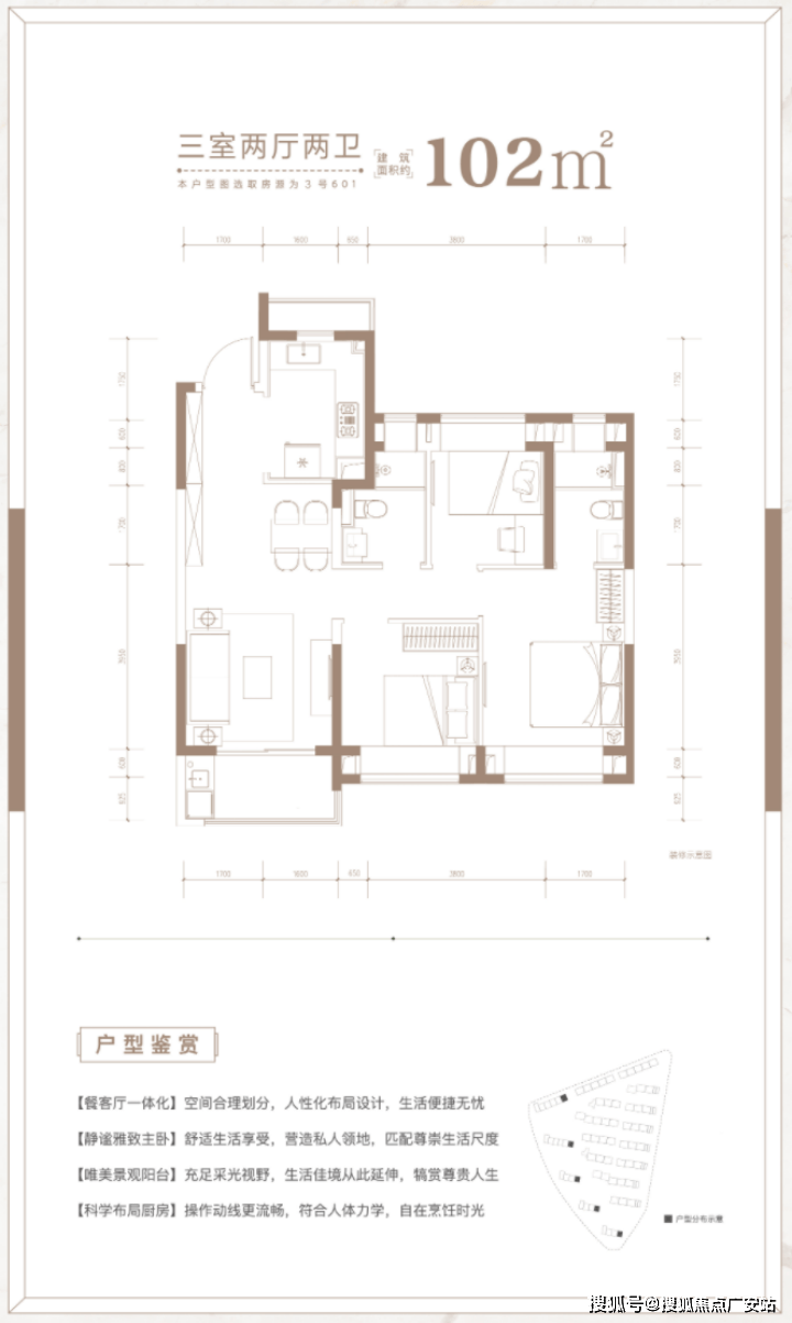
建面约102㎡3房2厅2卫户型,做到了三开间朝南+双朝南卧室带飘窗+动静分离+卫生间干湿分离,采光面拉到极致!是一个非常方正的户型。
客餐厅一体化,连接南向的大阳台,室内的通透度和尺度感拉升一个台阶!2卫的设计也很人性化,干湿分离,日常上班早高峰,不用排队等待洗漱。这个户型很好地控制了总价,非常适合三口之家或年轻的小夫妻居住!
300万级的价格买到堪比改善的优质低密全新盘——「大华·梧桐樾|越界」,绝对不能错过!
3嘉定芯同济附小旁
一路之隔就是约3000亩城市绿肺,
圈层成熟、生活氛围高端
嘉定,作为五大新城中最为宜居的地方,在过去十年间,人口增速约24.68%,稳居全上海第一。它的成功,一是离市区比较近,另外一个就是产业发达。
大华梧桐樾售楼处电话☎:400-865-7114(预约看房热线√√)
大华梧桐樾官方售楼处电话/地址☎:4008657114【售楼中心已认证√√】

图源网络
安亭,作为中国汽车第一镇,是嘉定建设世界级汽车产业中心核心承载区、打造世界智能网联汽车创新高地的主战场,嘉定汽车“新四化”布局的重中之重。(信息来源上海市嘉定人民政府官网)
目前,安亭汽车产值已超3000亿元,占上海全市汽车总产值超1/3;汽车“新四化”相关总产值达900亿元;聚集各领域汽车产业链企业1240家;全镇共有汽车产业链从业人员约6.8万人。(信息来源组织人事报官方公众号2024年6月发布)
「大华梧桐樾|越界」,位于嘉定的核芯区位,与虹桥主城区核心距离也只有5km!

此刻正站在时代发展的风口之上。项目毗邻约3000亩城市绿肺——汽车博览公园和上海第二大高尔夫球场,为居者打造了一座“天然氧吧”。
1200亩的汽车博览公园,相当于2个长风公园、4个中山公园的规模;一路之隔的1800亩高尔夫球场,更是为大华梧桐樾|越界增添了独特的“高尔夫墅区”属性,业主的日常生活注定会非常丰富,打球、散步、喝下午茶,与绿色相伴,与运动为邻。
大华梧桐樾售楼处电话☎:400-865-7114(预约看房热线√√)
大华梧桐樾官方售楼处电话/地址☎:4008657114【售楼中心已认证√√】

示意图,仅供参考
同时,片区的交通也将迎来大跃升:以安亭北站、安亭西站为核心的安亭枢纽,是打通长三角一体化和虹桥国际开放枢纽的链接通道,在上海2035规划中,宝嘉线、嘉青松线即将启动,嘉安高速延展嘉定向东,与宝山互通。

交通上,项目拥有11号线与14号线西延伸双线地铁的加持,梧桐社区班车无缝衔接地铁11号线上海汽车城站、安亭站,而14号线西延伸已纳入规划并有望于“十五五”期间开建。
大华梧桐樾售楼处电话☎:400-865-7114(预约看房热线√√)
大华梧桐樾官方售楼处电话/地址☎:4008657114【售楼中心已认证√√】


买在这里的业主,70%都是看中了优越的教育资源。项目直线距离同济附小、附中约300米,而且还是对口学区,教育方面无疑是得偿所愿。

商业上,嘉亭荟城市生活广场、安亭财富广场、三德广场、中信泰富万达广场、嘉实生活广场汇聚,完全满足日常生活购物所需。
总结一下:首先,大华梧桐樾|越界精装三房300万起,这个价格,无疑是上车错过再无的历史机遇,闭眼冲没有问题!
其次,对于自住客户来说,地铁通勤+强势的学区资源同时具备,本就可遇不可求。加上实景现房的优势,宋风雅苑的格调,实打实地能节省很多成本,规避货不对版的风险。
最后,项目坐拥安亭汽车城的产业和大虹桥的辐射利好,规划兑现后,整个板块的地段价值也会迎来质的飞跃!这已经是2025年上海爆款项目了,抓紧机会!
虹桥北嘉定芯同济附小旁
「大华·梧桐樾|越界」
双轨交汇实景呈现
建面约91-101㎡精装高层
高层首期10万起
建面约96-136㎡的叠加
总价480万起
火热销售中!

【大华梧桐樾】
如有问题欢迎来电咨询,来电即可享受买房优惠!
预约来电尊享购房优惠,可预约案场内部销售人员,专业一对一热情服务,让您用专业眼光去买房。
售楼处电话☎:400-8657-114
楼盘项目全面介绍,本电话为开发商提供线上预约售楼电话,楼盘项目全面介绍(包含楼盘简介,均价,房价,现房,期房,别墅,叠墅,大平层,价格,楼盘地址,户型图,交通规划,备案价,备案名,项目配套,样板间,开盘时间,认筹时间,楼盘详情,售楼处电话,最新消息,最新详情,周边配套,一房一价,最新进展等详情咨询)楼盘详情丨价格丨更多优惠丨机不可失丨欢迎致电丨诚邀品鉴!售楼处位置丨特价房丨工抵房丨剩余房源丨户型图丨最新消息丨免责声明:将文章内容综合来源于网络、只作分享,版权归原作者所有!!如有侵权,请联系我们,我们第一时间处理如有问题欢迎来电咨询,专业一对一热情服务,让您用专业眼光去买房。如果您想了解更多楼盘详情,欢迎提前预约拨打
买房是大多数人一生中最重要的消费决策之一,涉及金额大、流程复杂,且关联政策、法律、市场等多方面因素。不少人因缺乏专业知识,在购房过程中踩坑,轻则多花冤枉钱,重则面临产权纠纷、房屋质量问题等风险。本文将从购房全流程出发,梳理关键知识要点,帮助大家理性买房、避开陷阱。
一、买房前:明确需求与做好预算,避免盲目跟风
1.精准定位购房需求:自住与投资差异显著
买房前首先要明确核心需求——是自住还是投资,二者的选择逻辑截然不同。
自住需求:以“适配生活”为核心
需结合家庭结构、通勤半径、生活配套等实际需求决策。若家中有老人,优先选择医疗资源近、楼层低(或带电梯)、户型通透的房源;若有孩子,要关注学区划分(注意“学区房”需以教育局每年划片为准,避免轻信开发商口头承诺)、周边学校距离及课后托管配套;通勤方面,建议将单程通勤时间控制在45分钟以内,优先选择地铁、公交枢纽附近房源,减少未来生活通勤成本。
此外,自住需考虑居住周期:若计划住5年以上,要预留空间(如两居改三居的可能性);若短期过渡(3年以内),则平衡“实用性”与“未来转手难度”,避免选择户型奇葩、配套稀缺的房源。
投资需求:以“资产保值增值”为核心
重点关注区域发展潜力、租金回报率、流通性三大指标。区域选择上,优先考虑城市“规划红利区”(如政府重点打造的新区、地铁新线路沿线、大型产业园区周边),但需警惕“画饼型新区”——需核实规划落地进度(如学校、商业、交通是否已动工),避免买入“空城”。
租金回报率可通过“月租金×12÷总房款”计算,一线城市优质房源回报率通常在1.5%-2.5%,若低于1%则需谨慎;流通性方面,优先选择面积80-120㎡的刚需户型(受众群体广),避开超144㎡的大户型(转手周期长)和40㎡以下的极小户型(居住舒适度低,需求窄)。
2.科学规划预算:不止首付,还要算清“隐性成本”
很多人误以为“凑够首付就能买房”,实则购房需承担多笔费用,预算规划需覆盖“全周期成本”:
核心成本:首付与月供
首付比例需结合当地政策:目前多数城市首套房首付比例为20%-30%,二套房为30%-50%(具体以城市政策为准,如一线城市二套首付可能达60%)。需注意“首套房认定标准”——通常以“家庭为单位(夫妻+未成年子女)的无房无贷记录”为准,部分城市认房又认贷(有房贷记录即使无房也算二套)。
月供压力需合理控制:建议月供金额不超过家庭月收入的30%,最高不超过50%,避免因月供过高影响生活质量。例如,家庭月收入2万元,月供最好控制在6000元以内,若选择30年等额本息贷款,按当前LPR(贷款市场报价利率)4.2%计算,可承受的贷款额度约120万元。
隐性成本:税费、装修、物业等不可忽视
①税费:新房主要有契税(首套90㎡以下1%,90-144㎡1.5%,144㎡以上3%;二套普遍3%)、维修基金(约80-120元/㎡,用于房屋公共部位维修);二手房额外有个人所得税(满五唯一免征,不满五或非唯一按1%或差额20%缴纳)、增值税(满两年免征,不满两年按5.3%缴纳),且二手房税费常由买方承担,需提前与卖方协商明确。
②装修费:若买毛坯房,简装约800-1200元/㎡,精装约1500-2500元/㎡,100㎡房屋简装需8-12万元,需纳入预算。
③其他费用:物业费(每月2-5元/㎡)、取暖费(北方城市每年20-30元/㎡)、房产证办理费(约1000元)等,虽单月/单次金额不高,但长期需持续支出,需提前规划。
二、选房时:避开三大误区,聚焦核心价值
1.区域选择:不盲目追“热门”,优先“成熟+潜力”
很多人买房只看“热门板块”,却忽视区域的“真实适配性”。选择区域时,可从以下维度判断:
成熟区域:配套完善,风险低
成熟区域的优势是“即买即享”——商业(超市、商场)、教育(学校已开学)、医疗(医院运营中)、交通(公交线路密集、地铁已通车)配套齐全,居住便利性高,且房价相对稳定,适合自住需求。但缺点是房价较高,增值空间有限,需权衡“便利性”与“预算”。
潜力区域:规划落地是关键,避开“伪潜力”
潜力区域(如城市新区、近郊板块)房价较低,增值空间大,但风险也高。判断是否为“真潜力”,需核查三大指标:
①政府规划文件:查看城市总体规划(如“十四五”规划),确认该区域是否为政府重点发展方向(如“城市副中心”“产业园区”),避免轻信开发商宣传的“规划”。
②基建落地进度:交通(地铁、公路)、教育(学校建设进度)、商业(大型商超签约情况)等基建是否已动工,若仅停留在“规划图”阶段,需谨慎。例如,某新区宣传“地铁3年内通车”,但查询政府官网发现仅处于“规划公示”阶段,落地时间不确定,此类区域风险较高。
③人口导入能力:区域是否有产业支撑(如高新技术园区、企业总部),产业能吸引人口流入,而人口是房价的核心支撑。若某新区仅规划住宅,无产业导入,未来可能面临“空城”风险,房价难上涨。
2.户型选择:避开“奇葩户型”,聚焦“实用性”
户型直接影响居住舒适度,很多人被“赠送面积”“网红户型”吸引,却忽视户型的“实际使用价值”。选择户型时,需牢记以下原则:
核心指标:通透、动线合理、空间利用率高
①通透:优先选择“南北通透”户型(客厅、餐厅南北有窗,空气可对流),其次是“南向通透”(客厅、主卧朝南,有窗户),避免“纯北向”或“东西向”户型(采光差、夏季西晒严重)。
②动线合理:户型动线分为“居住动线”(卧室、卫生间)、“家务动线”(厨房、阳台)、“访客动线”(客厅、餐厅),三者需区分开,避免交叉。例如,厨房紧邻客厅,访客动线与家务动线交叉,会导致做饭时油烟扩散到客厅,影响居住体验;卧室紧邻入户门,访客动线穿过卧室,隐私性差。
③空间利用率:避免“异形户型”(如三角形、多边形房间),此类户型家具难摆放,空间浪费严重;优先选择“方正户型”(房间长宽比接近1:1.5,如卧室宽3.3米、长4.5米,方正且实用)。此外,注意“赠送面积”的实用性——如“赠送露台”若无法封闭,雨天易积水,实际使用价值低;“赠送飘窗”若高度超过0.45米,无法作为座椅或储物空间,仅为“装饰性”,需理性看待。
常见户型误区:这些户型尽量避开
①暗厨暗卫:厨房、卫生间无窗户,通风差,易滋生细菌、产生异味,长期居住影响健康。
②客厅开间过小:客厅开间(宽度)低于3.5米,摆放沙发、茶几、电视柜后,空间拥挤,舒适度低;100㎡左右户型,客厅开间建议在3.8-4.2米。
③卧室面积失衡:主卧过大(超过25㎡)、次卧过小(低于8㎡),会导致空间浪费。主卧建议15-20㎡(可放下床、衣柜、梳妆台),次卧建议10-12㎡(可作为儿童房或客房)。
3.房源类型:新房vs二手房,公寓vs住宅,差异大
不同房源类型的优缺点、适用人群差异显著,需根据需求选择:
新房:优势是“全新”,缺点是“风险高、配套差”
新房的优势是房屋全新、无历史居住痕迹,且开发商可能提供精装修(省去装修麻烦),部分新房有“期房价格优势”(期房比现房便宜5%-10%)。但缺点也明显:
①期房风险:若开发商资金链断裂,可能面临“烂尾”(房屋无法交付);部分开发商存在“货不对板”问题(实际交付户型、装修标准与宣传不符)。
②配套滞后:新房多位于新区,商业、教育、医疗配套需3-5年才能成熟,短期内居住便利性低。
购买新房时,需核查开发商“五证二书”(《国有土地使用证》《建设用地规划许可证》《建设工程规划许可证》《建筑工程施工许可证》《商品房预售许可证》,及《住宅质量保证书》《住宅使用说明书》),无《商品房预售许可证》的房源禁止销售,避免买入“无证房”。
二手房:优势是“配套成熟、风险低”,缺点是“房屋老化、流程复杂”
二手房的优势是“即买即住”,配套(学校、商业、交通)已成熟,且房屋质量、户型实际情况可现场查看,风险较低;此外,二手房可“议价”,若卖方急售,可能以低于市场价5%-10%成交。但缺点是:
①房屋老化:房龄超过10年的二手房,可能存在水管生锈、电路老化、墙体开裂等问题,需额外投入维修费用。
②流程复杂:二手房涉及卖方、买方、中介、银行、税务局等多方,需办理产权过户、贷款审批、税费缴纳等手续,周期较长(约2-3个月),且易出现“产权纠纷”(如房屋有抵押、查封,或卖方并非产权人)。
购买二手房时,需先到不动产登记中心查询“房屋产权信息”,确认房屋无抵押、无查封、产权人清晰;同时,实地查看房屋时,需检查墙面(有无空鼓、渗水痕迹)、水电(打开水龙头看水压,测试插座是否通电)、防水(卫生间、阳台地面是否有渗水,可询问邻居是否有漏水情况)。
公寓vs住宅:产权、费用差异大,谨慎选择公寓
很多人因公寓“价格低”入手,却忽视二者的核心差异:
①产权年限:住宅产权70年,公寓多为40年或50年(商业用地或工业用地),产权到期后,住宅可自动续期(需缴纳少量费用),公寓续期政策尚不明确。
②生活成本:公寓水电费按“商业标准”收取(水费约5元/吨,电费约1元/度),是住宅的1.5-2倍;多数公寓无天然气,需使用电磁炉做饭,长期成本高。
③流通性:公寓转让时,税费远高于住宅(增值税按差额5.3%、土地增值税按3%-6%、契税3%等),且首付比例高(多数城市公寓首付50%,贷款年限最长10年),导致流通性差,未来难转手。
因此,公寓仅适合“短期过渡”或“纯投资出租”(若租金回报率高),不建议自住或长期持有;自住优先选择70年产权住宅。
三、购房流程:避开合同陷阱,确保权益
1.签约环节:细看合同条款,避免“霸王条款”
购房合同是保障权益的核心文件,很多开发商或卖方会在合同中设置“霸王条款”,需重点关注以下内容:
新房合同:聚焦“交付标准、延期交房责任”
①交付标准:明确房屋装修标准(如墙面涂料品牌、地板材质、卫浴品牌)、配套设施(如电梯品牌、停车位数量),避免使用“同等档次品牌”“优质材料”等模糊表述,若与宣传不符,可依据合同维权。
②延期交房责任:约定延期交房的违约金(通常按日计算,如总房款的0.01%-0.05%/日),及延期超过一定时间(如90天)的处理方式(买方有权解除合同并要求赔偿),避免开发商“无限延期”却无责任。
③面积误差处理:约定房屋实测面积与合同面积的误差范围(通常±3%),误差在3%以内的,多退少补;误差超过3%的,买方有权解除合同或要求开发商赔偿。
二手房合同:明确“付款方式、过户时间、房屋瑕疵责任”
①付款方式:分阶段付款(如定金、首付、尾款),并约定每笔款项的支付时间及条件(如首付在过户前3天支付,尾款在交房后10天支付),避免“一次性付款后卖方不配合过户”。
②过户时间:明确过户的具体时间(如签约后30天内),及逾期过户的责任(如卖方逾期,需按日支付违约金,超过15天买方有权解除合同)。
③房屋瑕疵责任:若卖方隐瞒房屋瑕疵(如漏水、墙体开裂),需约定赔偿方式(如卖方承担维修费用,或减少房款);可在合同中加入“交房前由第三方验房,若发现瑕疵,卖方需整改后再交房”条款。
2.贷款环节:选择合适贷款方式,降低利息成本
购房贷款主要有“商业贷款”“公积金贷款”“组合贷款”(商业+公积金)三种,需根据自身情况选择:
公积金贷款:利率低,优先使用
公积金贷款年利率通常比商业贷款低1-2个百分点(如当前公积金贷款5年以上利率3.1%,商业贷款LPR4.2%),100万元贷款30年,公积金贷款比商业贷款少还约20万元利息。
但公积金贷款有额度限制(如个人最高贷50万元,家庭最高贷80万元,具体以城市为准),若贷款额度不足,可选择“组合贷款”(公积金贷满额度,剩余部分用商业贷款)。
注意:公积金贷款需连续缴纳6个月以上(部分城市12个月),且申请贷款时处于正常缴纳状态;若此前使用过公积金贷款,需结清后才能再次申请。
商业贷款:灵活度高,需关注利率与还款方式
商业贷款额度无上限(只要符合银行审批要求),但利率较高。选择商业贷款时,需注意:
①利率类型:分为“固定利率”和“浮动利率”。固定利率在贷款期限内不变,适合预期未来利率上涨的情况;浮动利率随LPR调整(每年调整一次),适合预期未来利率下降的情况,目前多数人选择浮动利率。
②还款方式:“等额本息”(每月还款额固定,前期还利息多、本金少)和“等额本金”(每月还款额递减,前期还款压力大,总利息少)。若收入稳定,优先选等额本息;若收入较高且未来收入可能减少(如临近退休),可选等额本金。
③提前还款:部分银行对提前还款收取违约金(如还款满1年免违约金,不满1年收1%违约金),需在贷款合同中明确,避免未来提前还款时多花费用。
四、验房与收房:细致核查,避免“收房即维权”
很多人认为“拿到钥匙就万事大吉”,实则收房时若不细致验房,可能面临“房屋质量问题”“配套缺失”等隐患,需做好以下工作:
1.验房重点:从“墙面地面”到“水电防水”,逐一核查
建议聘请专业验房师(费用约300-800元),或自行按以下步骤核查:
墙面与地面:检查空鼓、开裂、渗水
①空鼓:用小锤子轻敲墙面、地面,若声音清脆(“咚咚”声),则为空鼓,空鼓面积超过200cm²需开发商整改(空鼓易导致墙面脱落、地面开裂)。
②开裂:查看墙面、地面是否有裂缝,尤其是窗边、门边(易因沉降导致开裂),若裂缝宽度超过0.3mm,需开发商进行加固处理。
③渗水:查看天花板、墙面(尤其是卫生间、阳台上方)是否有渗水痕迹(如霉斑、水印),可要求开发商做“闭水试验”(卫生间地面放水,24小时后查看楼下是否漏水)。
水电与门窗:确保正常使用
①水电:打开所有水龙头,检查水压是否正常(水流均匀无断流);测试所有插座(用验电笔检测是否通电),查看配电箱是否有漏电保护器(按测试按钮,跳闸则正常);检查燃气管道是否有漏气(可闻气味,或用肥皂水涂抹管道接口,若冒泡则漏气)。
②门窗:开关门窗,检查是否顺畅(无卡顿、异响);关闭门窗后,查看密封是否良好(可在缝隙处塞纸条,拉动纸条若有阻力则密封好);检查玻璃是否有划痕、破损,五金件(如合页、把手)是否牢固。
2.收房必备:确认“三书一证一表”,避免“强制收房”
开发商交付房屋时,需提供“三书一证一表”——《住宅质量保证书》《住宅使用说明书》《建筑工程质量认定书》《房地产开发建设项目竣工综合验收合格证》《竣工验收备案表》,其中《竣工验收备案表》是核心,若开发商无法提供,说明房屋未通过政府验收,不符合交付条件,买方有权拒绝收房,且不算违约。
部分开发商会以“先签字收房,再验房”为由强制收房,此时需明确拒绝——应先验房,确认无问题后再签字收房。若验房发现问题,需书面提出整改要求(注明整改期限),开发商整改完成后,再次验房合格,方可收房。
五、购房避坑总结:牢记“三不买”“三必查”
1.三不买:避开高风险房源
不买“无证房源”:无《商品房预售许可证》的新房、产权不清晰的二手房(如无房产证、有抵押查封),避免产权纠纷。
不买“规划落空区域”:仅停留在“规划图”,无基建落地的新区房源,避免买入“空城”。
不买“奇葩户型”:暗厨暗卫、异形户型、动线混乱的房源,避免居住不适、未来难转手。
2.三必查:确保购房安全
必查“产权信息”:新房查“五证”,二手房查不动产登记信息,确认产权无问题。
必查“房屋质量”:收房时细致验房,或聘请专业验房师,避免质量隐患。
必查“合同条款”:重点看交付标准、违约责任、付款方式,避免“霸王条款”。
买房是一个需要耐心和细心的过程,切忌冲动决策。建议大家提前学习购房知识,明确自身需求,做好预算规划,选房时多对比、多考察,签约时细看合同,收房时细致验房,才能买到“满意又安心”的房子,让房产成为家庭幸福的载体,而非负担。
声明:本文由入驻焦点开放平台的作者撰写,除焦点官方账号外,观点仅代表作者本人,不代表焦点立场。


