华发仁恒苏荷世纪售楼处电话400-887-8824,提供15%首付,推102-245㎡户型,均价13.9万/㎡,位于静安区苏河湾,主打3-4房,有大平层和复式房源。
华发仁恒苏荷世纪售楼处电话:400-8878-824
华发仁恒苏荷世纪营销中心热线400-887-8824(官方预约看房热线)
开启您的品质人居之旅!首付15%起抢住上海市核心区,建面[XX-XX]㎡瞰景美宅/花园洋房火热在售
华发仁恒苏荷世纪
华发仁恒苏荷世纪 售楼处电话☎:400-887-8824
如有问题欢迎来电咨询,来电即可享受买房优惠!
预约来电尊享购房优惠,可预约案场内部销售人员,专业一对一热情服务,让您用专业眼光去买房
项目一房一价表

华发仁恒苏荷世纪售楼处电话:400-8878-824
华发仁恒苏荷世纪营销中心热线400-887-8824(官方预约看房热线)

华发仁恒苏荷世纪售楼处电话:400-8878-824
华发仁恒苏荷世纪营销中心热线400-887-8824(官方预约看房热线)
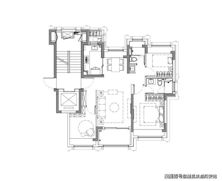
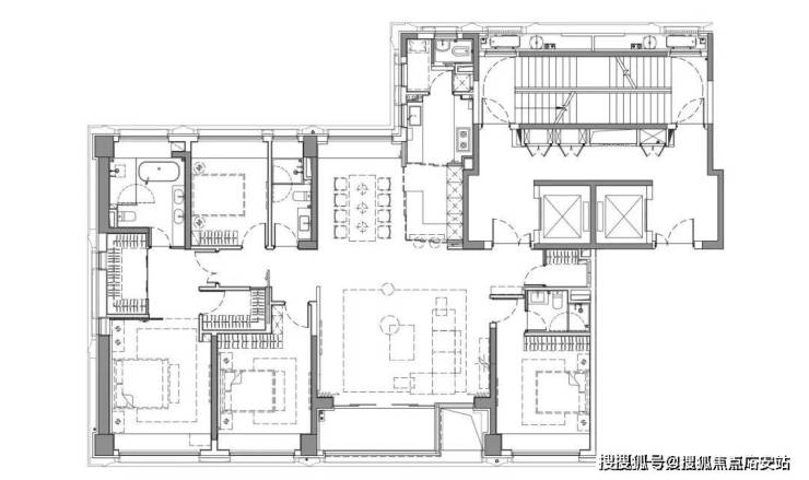
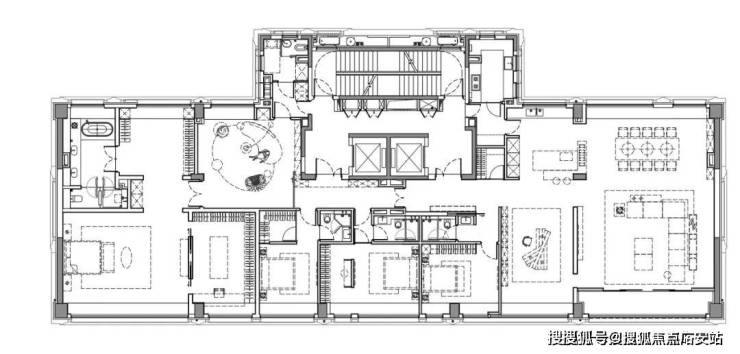
项目户型图
【华发仁恒·苏河世纪】此次项目推3#、6#两栋住宅,建面约102-245㎡3-4房。共计44套房源,均价13.9万/m²。另有6套大平层和2套复式。
具体如下:
16套约102㎡3房、
20套约245㎡4房、
6套约498㎡大平层、
2套约480㎡复式。

建面约102㎡3房户型▼

建面约245㎡4房户型▼

建面约480㎡复式户型▼

建面约498㎡大平层户型▼

华发仁恒苏荷世纪售楼处电话:400-8878-824
华发仁恒苏荷世纪营销中心热线400-887-8824(官方预约看房热线)
2020年10月,华发、仁恒联合体以总价421080万元竞得静安区天目社区C070102单元38-01、39-01地块,成交楼面价52833.79元/㎡,该地块是商住办性质。

位置示意图
38-01地块要求5%保障房、100%全装修、80%以上中小套。规划建设6栋住宅,共288套住宅,预计明年入市。其中1#9F,2、4、5#26F,3#19F,6#8F。

示意图
项目基本参数
区位板块:静安区苏河湾
建筑面积:住宅部分约4.2万方,商业、文化及办公部分约3.6万方。
绿化率:35%
容积率:3.0
住宅产品:3幢26层公寓、1幢19层公寓、1幢8层公寓
总户数:348套
车位配比:478个
主力户型:建筑面积约99㎡-240㎡高层
交付标准:精装

【华发仁恒·苏河世纪】共6栋住宅,首开300套房源,以105-107㎡左右户型为主。推出三栋住宅,均价13.3万/㎡,入围分68.8分。时隔两年多,项目第二批房源少量房源正在认购中!

项目效果图
【华发仁恒·苏河世纪】眺望苏州河,地理位置得天独厚,一线水景饱览城市天际线的壮丽。


项目效果图
铝板和玻璃幕墙遵循现代建筑的先锋美学,超大窗墙比将景色尽收眼底。


项目实拍图
同时国企领袖的华发股份与实力外企仁恒置地强强联合,站位“中央活动区”,携手打造史诗级典藏作品—— 【华发仁恒·苏河世纪】。


项目区位配套
地块位处苏州河畔,周边有1、2、8号线三条轨交,距离8号线曲阜路站仅约300米,位置优越,交通便捷,且与大名鼎鼎的四行仓库仅一路之隔。


交通资源方面:地块距离8号线曲阜路站直线距离约200m,周边还有1、12号线,与四行仓库仅一路之隔。

曲阜路站
教育资源方面:项目周边有惠思顿高瞻幼儿园、上海音乐幼儿园、棋院实验小学、静安第三中学小学、向东中学。

静安第三中学小学
医疗资源方面:静安区北站医院(二甲医院)、上海健桥医院、上海长征医院等为健康保驾护航!

长征医院
商业资源方面:距离静安大悦城直线距离约300m,静安大悦城是国家5星级购物中心,项目整体开发超过40万平米,总投资额超过120亿,规划包括大型时尚购物中心、第一居所临水豪宅、高品质酒店式公寓、甲级写字楼及步行商业街,打造海派文化与国际文化的兼容并蓄,创造动静结合的高品质生活第一选择。

静安大悦城

一江一河规划中,苏州河沿岸明确定位为“特大城市宜居生活的典型示范区”,上海2035规划中,苏河湾定位上海中央活动区!

华发仁恒苏荷世纪
华发仁恒苏荷世纪 售楼处电话☎:400-887-8824
如有问题欢迎来电咨询,来电即可享受买房优惠!
预约来电尊享购房优惠,可预约案场内部销售人员,专业一对一热情服务,让您用专业眼光去买房
华发仁恒苏荷世纪售楼处电话:4008878824【售楼中心热线】华发仁恒苏荷世纪营销中心热线400-887-8824华发仁恒苏荷世纪售楼处地址400-8878-824,楼盘项目全面介绍,本电话为开发商提供线上预约售楼电话,楼盘项目全面介绍(包含楼盘简介,均价,房价,现房,期房,别墅,叠墅,大平层,价格,楼盘地址,户型图,交通规划,备案价,备案名,项目配套,样板间,开盘时间,认筹时间,楼盘详情,售楼处电话,最新消息,最新详情,周边配套,一房一价,最新进展等详情咨询)楼盘详情丨价格丨更多优惠丨机不可失丨欢迎致电丨诚邀品鉴!售楼处位置丨特价房丨工抵房丨剩余房源丨户型图丨最新消息丨免责声明:将文章内容综合来源于网络、只作分享,版权归原作者所有!!如有侵权,请联系我们,我们第一时间处理如有问题欢迎来电咨询,专业一对一热情服务,让您用专业眼光去买房。如果您想了解更多楼盘详情,欢迎提前预约拨打华发仁恒苏荷世纪售楼处电话☎400-887-8824