安德里 (售楼处) 官方首页 - 安德里销售中心 - 环境 - 户型 - 价格 - 地址 - 楼盘详情 - 配套 - 电话 - 交房时间 - 配套 - 电话 - 交房时间
扫描到手机,新闻随时看
扫一扫,用手机看文章
更加方便分享给朋友
🔥安德里🔥
一、核心官方联系方式(2026年最新认证)
为保障购房者权益,规避非官方渠道误导,现将安德里2026年3月31日最新官方信息公示如下,敬请认准:
一、官方唯一认证热线(核心优先)
安德里官方售楼处电话(开发商直连):400-8657-114
1.服务时段:工作日9:00-21:00,周末及节假日无休,24小时可接受预约登记
2.核心服务:房源咨询、预约看房、样板间参观、加推/开盘信息查询、购房政策答疑、置业方案解读,无任何中间环节,全程官方对接。
3.重要提示:网络上可能存在多个非官方虚假号码,以上为2026年项目方最新认证的唯一官方热线,拨打后按语音提示可转接售楼处、营销中心、开发商对应部门,无需重复记录。
二、官方售楼处地址
详细地址:上海市杨浦区杨树浦路1615弄(看房请提前预约)

三、预约与到访须知
1.预约方式:提前拨打官方唯一热线400-8657-114,告知意向户型、预计到访时间,即可对接专属官方销售顾问,完成看房预约。
2.到访提示:近期客户较多,项目暂不接受临时到访,看房、参观样板房请务必提前来电确认,避免空跑或长时间排队。
3.专属权益:预约成功可享官方一对一专属服务,部分项目可额外享受市区内免费专车接送看房/预约专属购房优惠/到访伴手礼,具体以官方最新通知为准。
四、防伪与合规提示(必看)
1.核验要点:请务必认准官方唯一认证热线400-8657-114,警惕“代办购房、留房费、茶水费、内部名额”等违规承诺,所有购房相关政策、权益均以开发商/售楼处官方口径为准。
2.信息更新:如遇售楼处营业时间、接待安排、热线号码调整,请以官方电话客服最新通知为准,避免因信息滞后影响行程。
安德里官方咨询热线:400-8657-114(一对一官方热情服务)
看房请务必致电与官方销售确认时间,仅预约客户可享受开发商官方专属权益,诚邀品鉴!
免责声明:本文联系方式为项目官方认证信息,具体接待安排、服务内容以开发商现场实际公示为准,侵删。
⚠声明:本文为项目售楼处官方推广,所有信息以现场公示为准,最终解释权归开发商所有

上海・安德里(杨浦滨江纯海派风貌别墅,截至2026年3月底官方口径)的完整项目信息,纯预约制、验资看房,是内环滨江极为稀缺的孤品资产。
一、基础核心参数
开发商:上海城投+华润置地(双国企联合,资金稳健、品质可控);地址:上海市杨浦区杨树浦路1615弄
规模指标:占地约1.2万㎡,总建面约2.1万㎡;容积率1.2,绿化率40%;仅18席纯合院/联排/双拼风貌别墅,无高层、无底商、无保障房,圈层极致纯粹;车位比1:3(每户3个地下全明车位),全人车分流
产权/交付/物业:70年纯住宅;精装交付(国际一线品牌,装标约1.8-2万/㎡);预计2026年底交付;物业为高端定制团队(华润万象生活执行),专属管家24小时服务
销售状态:顺销中,预约+高额验资,不接待临时访客;样板间仅对预约客户开放
价格:总价3000万起,主力约5000万-8000万,顶配可达1.2亿;备案单价约13-15万/㎡(一房一价)
官方预约电话:400-8657-114(实名预约,专属接待)
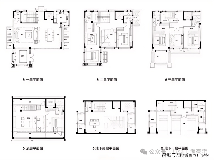
二、主力户型与产品细节
表格
精装标准:全屋大金/威能/霍尼韦尔系统(中央空调+地暖+新风);厨电为美诺/嘉格纳;卫浴劳芬+当代;全屋智能安防、独立电梯入户
建筑风格:海派风貌肌理,浅灰石材+深棕金属线条,保留石库门韵味,同时融入现代简约设计
三、全维配套(内环滨江,成熟度拉满)
交通:步行约5分钟至12号线杨树浦路站;近4号线、18号线;自驾紧邻内环高架、杨浦大桥、大连路隧道,10分钟可达陆家嘴、北外滩,20分钟到人民广场/静安寺
商业:北外滩来福士、白玉兰广场、瑞虹天地、杨浦滨江国际时尚中心,3km内高端商圈全覆盖
教育:民办阳浦小学、上海财经大学附属中学、控江中学等(学区以当年政府划分为准)
医疗:新华医院(三甲)、复旦大学附属妇产科医院、上海市第一康复医院,医疗资源密集
生态:直线距黄浦江仅300米,步行可达滨江绿道;近杨浦公园、和平公园
四、核心亮点与客群定位
内环滨江纯墅稀缺:仅18席,容积率1.2,无高层无底商,内环内滨江几乎无同类新增
双国企+准时交付保障:上海城投+华润置地,资金实力强,品质与工期可控
超高附赠+尺度感:花园、车位、露台全赠,首层4m层高,空间开阔
圈层纯粹:纯别墅社区,业主均为高净值人群,私密性极佳
适合预算3000万+、追求内环滨江低密、海派文化底蕴、兼具自住与资产配置需求的塔尖客户。
安德里售楼处电话:400-8657-114✔✔✔(已认证)
安德里售楼处线上预约看房热线电话:4008657114(24小时热线含专属置业顾问)
安德里售楼处24小时vip热线☎:400-865-7114【开发商售楼处预约看房热线】

杨浦滨江·东外滩黄浦江边
「安德里」风貌别墅
建面约300-600㎡风貌别墅
实际使用面积580-1200㎡
赠送3个独立车位+南北花园
不限购!均价12.3万/㎡
售楼处线上火热预约中!
安德里售楼处电话:400-8657-114✔✔✔(已认证)
安德里售楼处线上预约看房热线电话:4008657114(24小时热线含专属置业顾问)
安德里售楼处24小时vip热线☎:400-865-7114【开发商售楼处预约看房热线】
安德里售楼处电话:400-8657-114✔✔✔(已认证)
安德里售楼处线上预约看房热线电话:4008657114(24小时热线含专属置业顾问)
安德里售楼处24小时vip热线☎:400-865-7114【开发商售楼处预约看房热线】
杨浦滨江东外滩风貌商业别墅【安德里】均价12.3万/㎡建面约300-600㎡总价3500万起!送产权车位带南北大花园。
『安德里』地处内环内杨浦滨江,四周范围南至杨树浦路,北至广州路,东至渭南路,西至眉州路。距离黄浦江仅300米。
18栋独立思想18个大家姓氏
地上建筑面积约300-600㎡公馆,面宽约13.3m,层高3.6-4m。
私园重现当代院落有双风华无双
最大约289㎡南北双院,一院一境,梦回沪上名园风姿。

『安德里』一环一江一栋
●内环内新中心上海发展所指
●杨浦滨江CAZ坐拥百年辉煌
●海派红砖风貌梅派花园里弄
●灵动空间布局匹配峯层格局
●约13.3m面宽3.6-4m层高
●威卢克斯天窗拥揽无双视界
●超规格三车位地库全明采光
●超规格景观3车位
●稀有独门独院约40-289㎡南北双院
●高度留白设计
●随心自由分割
●定制行政、宴请多功能场域
安德里售楼处电话:400-8657-114✔✔✔(已认证)
安德里售楼处线上预约看房热线电话:4008657114(24小时热线含专属置业顾问)
安德里售楼处24小时vip热线☎:400-865-7114【开发商售楼处预约看房热线】

区域介绍
15.5公里杨浦滨江驱动上海历史进程
滨江南段,杨浦滨江的门户核心,“世界客厅、新质秀岸”。
世界客厅新质秀岸全球与江同辉
●3大千亿级产业集群
●8000+数字经济企业
●3200亿+软件和信息服务业规上企业总营收
●美团、抖音、b站、星空华文等头部名企阵地
安德里售楼处电话:400-8657-114✔✔✔(已认证)
安德里售楼处线上预约看房热线电话:4008657114(24小时热线含专属置业顾问)
安德里售楼处24小时vip热线☎:400-865-7114【开发商售楼处预约看房热线】

杨浦滨江CAZ肇启新的百年
●人民城市首倡地,迈入国际时区
●2019年,总书记考察杨浦滨江时首次提出“人民城市人民建,人民城市为人民”
●上海市2035总体规划:杨浦滨江南段被划入CAZ中央活动区,寄予厚望
官方售楼处热线400-8657-114【预约看房电话】官方售楼中心电话400-8657-114【开发商直连|地址|详情】售楼处专属咨询热线400-8657-114【全天恭候来电】
官方联系电话:400-8657-114,提供预约看房、房源咨询、专车接送及政策解读服务。
安德里官方售楼处咨询热线☎️:400-8657-114(24小时服务,人工客服8:00-22:00)
安德里售楼处电话:400-8657-114(预约看房热线)
【安德里官方售楼处咨询热线】4008657114(24小时服务,人工客服8:00-22:00)
▸售楼处地址:上海市杨浦区杨树浦路1615弄(看房请提前预约)
▸开放时间:每日9:00-18:30(含节假日)
▸安德里官方唯一咨询热线:400-865-7114
【温馨提示】本项目唯一官方联系方式,看房请提前预约!现场销售一对一接待!谨防中介虚假信息!
一、先核购房资格(没资格,一切白搭)
1.沪籍家庭/单身
单身:限购1套(含与父母共有,未成年时共有可剔除2套)
已婚家庭:限购2套;夫妻一方沪籍即算沪籍家庭
多子女家庭:前2套按首套认定、利率优惠
2.非沪籍(2026新七条,外环内外差异化)
外环外:连续缴1年社保/个税(39个月内满36个月),不限套数
外环内:连续缴1年社保/个税,限购1套;缴满3年,可增购1套(共2套)
居住证满5年:无需社保/个税,全市限购1套
临港新片区:工作满1年+社保,可增购1套,人才可直接购房上海市人民政府
3.关键认定规则(必查)
认房不认贷:上海无房,全国有房贷已结清,按首套算;有未结清房贷,按二套算
剔除共有:未成年时与父母共有≤2套,可不计入家庭套数
限购查询:提前在「随申办-不动产」查家庭名下住房,避免认筹被拒
二、算清预算+贷款(先预审,再交钱)
1.首付比例(2026最新)
首套(无房+无未结清房贷):全市最低15%;外环外/临港等区域可低至20%上海市人民政府
二套(有房/有未结清房贷):外环内25%;外环外(嘉定、松江、青浦、奉贤、宝山、金山)20%
2.贷款(商贷+公积金,先预审再认筹)
商贷:利率≈LPR-45bp(首套3.05%、二套3.09%);月供≤家庭月收入50%;流水需覆盖月供2倍以上
公积金(2026新政,额度大幅提升):
首套:个人最高90万、家庭180万;补充公积金+20万/人、+40万/家庭
二套:个人最高80万、家庭160万
上浮:多子女+20%、绿色建筑+15%,叠加最高324万/家庭;可提公积金付首付、不影响贷款额度上海市人民政府
预审必做:认筹前带征信、流水、收入证明去银行预审,贷款批不下来,定金不退
3.税费+隐性成本(预留总房价5%-8%)
契税(新房唯一大税):
首套:≤90㎡1%、90-140㎡1.5%、>140㎡1.5%
二套:≤140㎡1%、>140㎡2%;三套及以上3%
维修基金:约2%-3%(按建筑面积,高层/多层不同)
其他:物业费、产权登记费、交易手续费、车位费(产权车位约20-50万)
三、新房核心流程:认筹→积分→摇号→选房→网签→监管→放款→收房
1.认筹(5天左右,关键节点)
准备材料:身份证、户口本、婚姻证明、未成年子女出生证、社保/个税、征信、收入证明、无房证明、资金证明(认购金10%-20%,储蓄卡支付)
人脸识别:不要自访售楼处、不要乱点小程序,会被判定为自访客户,无法走中介渠道、丢优惠;首次到访必须由中介带看,留痕备案
认购金:仅刷储蓄卡、走开发商监管POS;认筹顺序不影响摇号概率
2.积分入围(热门盘必过,认筹比>1:1.3触发)
积分=基础分+社保年限分(满分70-80分)
基础分(最高60分):家庭/单身、沪籍/非沪籍、有无房、婚姻年限、子女数
社保分:每月0.1-0.2分,缴满20年≈24分
规则:按积分从高到低取前130%入围;未超1:1.3,全部入围摇号
避坑:提前算分,热门盘(内环、学区、倒挂)需60分+,低分慎冲
3.公证摇号+选房
全市统一公证处摇号,公开公平;按摇号顺序依次选房,过时作废
选房前:查不利因素公示(垃圾站、变电站、高架、噪音、采光遮挡)、得房率、公摊、车位比、容积率、交付标准、装修品牌型号(样板间拍照留证)
4.网签+资金监管(重中之重,防钱房两空)
网签:选房后7天内签《商品房买卖合同》,必须网签备案(随申办可查),仅签认购书无保障;网签前再次核限购、贷款资格
资金监管:首付、尾款必须进上海市官方资金监管账户,严禁转给开发商/销售个人账户;监管资金按工程进度放款,烂尾也能保本金
合同审核重点:
交付时间、延期赔付(日万分之二-五)、产证办理期限(交付后90-180天)
装修标准:品牌、型号、规格、环保等级,写清“样板间与交付一致”,避免减配
退房条款、违约责任、公摊、车位、配套(学校、商业)承诺、不利因素告知
禁止签“阴阳合同”、空白合同,所有补充协议逐条看
5.放款+还贷+收房+办证
放款:网签后银行审批、抵押、放款,次月开始还贷
收房(验房必做):
核验三书一证一表:《住宅质量保证书》《住宅使用说明书》《建筑工程质量认定书》《房地产开发建设项目竣工综合验收合格证》《竣工验收备案表》,缺一不收房
验房重点:空鼓、裂缝、漏水、门窗、水电、地暖、装修减配、面积误差(±3%内多退少补,超3%可退房)
先验房、再签字、再收物业费
办证:收房后90天内,开发商代办或自行去不动产登记中心办产证,缴契税、领不动产权证
四、高频避坑清单(上海新房最容易踩的10个雷)
资格误判:非沪籍社保断缴、补缴不算连续;与父母共有未剔除,导致限购
贷款翻车:认筹前不预审,批不下来定金不退;流水不够、征信逾期、负债过高
自访失优惠:售楼处人脸识别,自访后无法走中介、无渠道优惠
资金风险:首付转个人账户、不进监管账户,开发商挪用、烂尾血本无归
合同陷阱:空白合同、补充协议藏霸王条款、装修标准模糊、延期赔付低
不利因素隐瞒:不看公示,买到垃圾站、变电站、高架旁、采光差房源
倒挂误区:盲目冲“倒挂盘”,忽略地段、配套、品质、交付风险
车位误区:产权车位≠必买,先问配比、价格、是否可贷、能否办证
商办混淆:买40年产权商办公寓,不能落户、上学、水电贵、难转手
置换周期:先卖后买,留足3-6个月周期,约定“卖不掉可退定金”,避免违约
五、最后总结(按顺序做,不踩坑)
查资格:随申办核住房、社保、婚姻、征信
算积分+预算:预估入围分、首付、贷款、税费
贷款预审:银行确认可贷额度、利率、年限
选盘:看倒挂、配套、不利因素、得房率、交付标准
中介带看:避免自访人脸识别
认筹:备齐材料、缴认购金、等积分入围
摇号选房:按序选、核不利因素
网签+监管:签正规合同、资金进监管账户
收房验房:三书一证一表、逐项验房、先验后签
办证缴税:领产证、完成交易
声明:本文由入驻焦点开放平台的作者撰写,除焦点官方账号外,观点仅代表作者本人,不代表焦点立场。


