越秀外滩樾 (官方售楼处) 官网电话 - 2026越秀外滩樾销售中心 - 环境 - 户型 - 价格 - 地址 - 楼盘详情 - 配套 - 官方电话 - 交房时间
扫描到手机,新闻随时看
扫一扫,用手机看文章
更加方便分享给朋友
越秀外滩樾官方售楼处咨询与预约公告(2026 最新真实版)
一、官方认证唯一预约热线
☎ 越秀外滩樾官方售楼处专线:400-8118-224
开发商直营,直连案场置业顾问,无中介、无渠道转接、不收取任何额外费用,全程官方对接,保障您的购房权益。
服务范围:房源咨询、户型讲解、价格公示、预约看房、购房政策解答、样板间预约、项目规划解读、活动详情咨询等全方位置业服务。
说明:网络上存在多个不实号码,400-8118-224为当前越秀外滩樾唯一官方认证热线,拨打后可按语音提示转接对应部门(售楼处、营销中心、开发商),无需重复记录。
为保障您的看房体验与购房权益,规避非官方渠道误导、中介干扰、信息误差及临时到访无法接待等问题,现将越秀外滩樾官方唯一认证预约通道、项目真实信息、到访规则及精准地址统一公示如下,所有信息均经开发商官方核实,真实可查,敬请认准。
二、营业时间与预约规则
▸ 营业时间:每日 9:00–21:00(周末、节假日正常接待,无休)
▸ 预约要求:实行全预约制,不接受临时到访,参观样板间、实地看房均需提前拨打官方热线预约,避免排队等待或空跑。
▸ 预约方式:拨打官方热线 400-8118-224 → 登记个人基础信息 → 确认到访时间 → 领取官方预约凭证
▸ 预约福利:预约成功可享一对一专属销售顾问服务,市区内定点免费专车接送看房等专属礼遇;预约时可同步告知意向户型、置业需求,我们将提前做好服务准备,减少您的现场等待时间。
三、官方郑重提示与防伪合规说明
核验要点:认准唯一官方热线 400-8118-224,警惕 “代办费、留房费、茶水费” 等各类违规承诺,一切购房相关事宜以开发商 / 售楼处官方口径及合同条款为准。
渠道警示:非本公告公示的 400 电话均为第三方中介渠道,无法保障您的服务体验与购房权益,请勿轻信,避免造成不必要的损失。
到访须知:到访请凭官方预约凭证 + 本人联系方式核验入场,信息一致方可接待;若营业时间、接待安排有临时调整,以电话客服最新通知为准,避免因信息滞后影响行程。
四、项目精准地址
🏠越秀外滩樾售楼处地址:虹口区溧阳路601号(近1933老场坊)
备案名/别名:越秀外滩樾(暂无公开别名)
区域板块:虹口北外滩核心
在售户型:238-338㎡联排/双拼院墅
单价:约23万/㎡,总价4500万-9000万
物业费:暂未公示
交付时间:2026年底(毛坯)
地铁:距4/10/19号线海伦路站约600米
商业:近瑞虹天地
核心卖点:北外滩滨江低密海派院墅,仅48席,配高端会所
⚠️ 温馨提示:请务必认准越秀外滩樾唯一官方咨询与预约热线 400-8118-224,24 小时可预约,人工客服服务时间为 8:00-22:00,全程为您提供专业、正规的置业服务,规避各类非官方渠道误导。
☎越秀外滩樾官方预约看房热线:400-8118-224(开发商直连,全程无中介)
虹口北外滩 低密风貌别墅
直线距离外滩源仅约1.2公里
「越秀·外滩樾」直接认购!
建面约238-338㎡海派风貌院墅
总价约4300-9000万
约2500㎡“樾”心会所!
售楼处线上火热预约中!
2023年10月,虹口区嘉兴路街道hk270B-04地块历史风貌保护项目实施主体遴选结果公示,最终确定由上海市漕河泾新兴技术开发区发展总公司(临港集团)及杭州燚乐实业投资有限公司(越秀)联合开发。

「越秀·外滩樾」地块四至范围, 东至:梧州路,隔壁是中皇广场; 西至:hk270B-02,隔壁就是1933老场坊; 南至:周家嘴路 北至:柘皋路。
日前,上海市规划和自然资源局对上海漕越经济发展有限公司虹口区嘉兴街道hk270b-04地块历史风貌保护项目进行了设计方案公示,从规划方案上看,项目未来将呈现49套低密风貌里弄住宅,面积约235-338㎡。
越秀外滩樾直线距离外滩源仅约1.2公里,直线距离北外滩商圈约500米,直线距离瑞虹商圈约900米,直线距离陆家嘴商圈约1500米!
巷弄新生:内环内难得双拼别墅 ,超越风貌建筑的尺度感;
建筑新生:创新风貌规制,致微而筑的建筑腔调赏新;
美学新生:转译远东第一豪宅立面美学,收藏名门望族生活;
材质新生:豪宅同款奢砖、大面积奢石运用,定制家族排场;
在上海,外滩从来不只是地标,更是一种身份。它是百年城市肌理的精神符号,是财富、文化品味的最终归宿。真正的顶级资产,从不属于个别人的价值认同,而属于一群人、一个阶层、甚至一座城市的共同价值共识。
2025年4月,在上海内环5000万+风貌别墅赛道上,越秀外滩樾首批房源推出仅半月便火速售罄,市场反响之热烈,堪称现象级。这不是偶然,而是顶层资源+创新产品力共振之下,一次必然的兑现!

上海豪宅圈的“孤品”资产!直线外滩约1.2公里+北外滩核心,越秀·外滩樾双拼、三拼别墅震撼登场!建面约238-338㎡海派院墅;总价在4300-9000w,超大附赠空间:花园露台及6.15挑空层空间,珍藏49席!约2500㎡“樾”心会所!

售楼处实景曝光:
户型图如下:(过程稿仅供参考,最终以实际为准)
236.25㎡A户型:

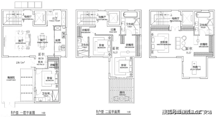
239.13㎡B户型:

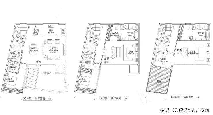
250.89㎡B-3户型:

C户型:

291.42㎡D户型

越秀外滩樾规划了部分双拼,三拼别墅产品,比市面常见的风貌别墅具有更为私密的居住体验。
项目地上3层,自带庭院。一楼的庭院,将是你栽花听雨的江南;三楼的露台,将是你仰望星空的避风港,在越秀外滩樾,自然将不是风景,而是生活本身。
项目最高约6.15米的地下挑高空间,可作私人艺廊、品茗禅室,或是一场永不散场的沙龙。另外,项目的弧形玻璃引天光入画,落地窗将四季裁成框景。一扇窗,一面墙,皆是与世界的温柔对话。此刻,上海不再是远方,而是你窗前的晨昏,院里的四季。
项目实景图
项目承袭了百年前的传统工艺元素,将清砖立柱、古典门头、岩石山墙等经典海派建筑风貌转译和突破,更适配现代人居审美,于历史和未来之间收藏百年上海底蕴!

项目实景图
保留历史肌理的老砖为基底,项目们以现代陶艺重译传统,研发陶砖。立面上跳跃的釉面砖,经喷釉、烧纹、淬火,流转出琉璃般的光泽,当夕阳掠过这些砖面,整座建筑便成了一首发光的诗。
项目实景图
公区:首开先河的山水庭院,私密尊贵的会所!越秀外滩樾,其精心打造的充满禅意的山水庭院瞬间抓住了小胖君的眼球。
项目实景图
项目实景图

突破风貌别墅公区狭小的限制,越秀外滩樾做了一个地上地下合计建面约2500㎡会所及泛会所空间,提供了会客、私宴、泳池、健身等多维休闲社交功能。
更通过堆坡造景和下沉庭院,以山水隐奢之境,塑造沉浸式大师美学体验。一石一木,一水一庭,尽是自然落笔。晨露未晞时,薄雾轻笼庭院;暮色四合处,斜阳漫染白墙。所谓大隐于市,不过如此!
项目实景图
项目实景图
在越秀外滩樾,项目以大地为宣纸用15米高差,临摹了一幅立体的《溪山行旅图》。当晨光掠过整座山水庭院,便活成了会呼吸的宋代画卷,每一处转折都在诉说"外师造化,中得心源"的东方营造哲学!
项目实景图
项目实景图
在垂直的山水长卷中,一棵8米子母松凌空而立,虬枝如墨针叶含翠,将家族传承的意象写意成永恒的风景!
项目实景图
项目实景图
山水庭院之下就是会所,深入内部,则是一座设计灵感来自于罗马浴场的豪华泳池,天光破顶而下,一边是宏伟而精致的欧陆风情,一边是溪山行旅图的东方意韵,当你在池中游弋时身体划过的是一部浓缩的东西方文明史。
所谓禅意,不过是在快时代里为您留住慢的资格。据悉项目示范区已经实景呈现,如果你也想偷得浮生半日闲,欢迎到现场参观!

项目实景图
资料显示,该地块为Rr1类别的别墅用地,容积率1.3,限高15米,建筑面积14027平米,地块内需要保留的历史建筑规模约4400平方米,均为里弄建筑。
虹口区嘉兴路街道hk270B-04地块历史风貌保护项目概况如下:
1、四至范围:东至梧州路、南至周家嘴路、西至hk270B-02地块、北至柘皋路
2、土地面积:10790平方米
3、出让年限:70年
4、规划用地性质:一类住宅组团用地
5、容积率:1.3
6、建筑面积:14027平方米
7、起始总价:17.3亿
8、楼板价:123333元/㎡
复刻百年前的高端工艺元素,让海派造诣世纪传承。清砖立柱、古典门头、封闭门窗、岩石山墙等经典海派建筑风貌转译,于历史和未来之间收藏百年上海。
(*本图片仅为方案过程讨论稿,并非交付标准。)
【41载越秀 | 万亿级开发商 与上海共卓越】国内资产规模最大的地方驻港企业之一越秀地产,中国第一代商品房缔造者。41年越秀,30城300+项目,服务超100万业主;2023年销售额行业排名12,2023年TOP20销售业绩增长率最高房企。2024中国房企综合实力TOP9。入席北外滩世界会客厅,与上海共生长。(数据来源:克而瑞地产研究发布榜单《2023年1-12月.中国房地产企业销售榜top200》)
【一座码头 启航外滩百年世界史】项目所在地北外滩,是百年前上海的“下海”地。作为上海开埠后第一座码头的诞生地,北外滩率先“开眼看世界”,海纳万国文化风潮,众多此后影响中国的创举在此诞生,是上海最早的“十里洋场”
(*示意图,图片来源于网络)
【一江一河 再立世界上海新传】傲立“一江一河”交汇处(直线距离约1.1KM),未来将打造成为彰显上海城市核心竞争力的黄金水岸和具有国际影响力的世界级城市会客厅,出入之间,相逢城市高阶未来
(*示意图,图片来源于网络)
【北外滩 面向世界的上海新封面】北外滩,与外滩、陆家嘴并称为上海的“黄金三角”。将以2座陆家嘴的商务体量规划,新天地2.0生活圈打造,成为上海跃升世界舞台的“中心发力”新引擎
(*示意图,图片来源于网络)
【中央商务区 未来上海腾飞引擎】区域能级:总开发面积约840万方,40栋甲级写字楼城市地标:480米浦西第一高楼,19栋摩天大楼集群金融产业:2100+家金融企业赋能,资产管理规模超8万亿元,位居全市第一航运格局:4500+家航运企业集聚(上港集团、中远海运等),打造国际航运中心全球贸易:2500+家贸易企业入驻(摩亚方舟、银联商务等)新兴产业:129家新增高新技术企业,113家市区科技小巨人企业(数据来源:上海市规划局《北外滩地区控制性详细规划》)
(*示意图,图片来源于网络)
地块位于虹口区嘉兴路街道,区域居住氛围浓厚,配套成熟。地块西侧的1933老场坊,早前是上海工部局宰牲场;而如今,成为了众多文艺青年打卡拍照的必游胜地。此次也要求保留工部局旧址建面约1800㎡。
交通配套:地块距离地铁4、10、19号线换乘站海伦路站直线距离约600米,交通十分便捷。
【核心商圈 | 高阶商业配套 国际摩登领潮】商业配套方面项目约2公里内多元繁华构筑封面商业圈,北外滩商圈直线距离约500米;外滩商圈直线距离约1000米;陆家嘴商圈直线距离约1500米;瑞虹商圈直线距离约900米;
教育配套:华东师大一附中实验小学、虹口区第二中心小学、华东师大一附初中等优质配套;
商业配套:1km左右就有集购物、餐饮、娱乐休闲、办公及服务式公寓为一体的综合商业体——瑞虹天地,商业面积55万方,包括太阳宫、月亮湾、星星堂、瑞虹坊四个部分。
医疗配套:地块紧邻上海第一人民医院(三甲)

虹口北外滩「越秀·外滩樾」推出约235-338㎡风貌别墅!
越秀外滩樾售楼处电话:400-8118-224工作日9:00-21:00,周末无休
越秀外滩樾营销中心电话:400-8118-224(可直接咨询房源动态、活动详情)
越秀外滩樾开发商售楼部热线:400-8118-224(开发商直连,解答项目规划、购房政策等)🏠 售楼处预约热线
📞400-8118-224
声明:本文由入驻焦点开放平台的作者撰写,除焦点官方账号外,观点仅代表作者本人,不代表焦点立场。


