「「外滩瑞府」销售中心!(首页网址)楼盘详情速询:优质环境+方正户型,价格适配刚需改善,地址位置优越,配套覆盖日常所需」
扫描到手机,新闻随时看
扫一扫,用手机看文章
更加方便分享给朋友
「外滩瑞府」售楼处随时欢迎到访!销售中心可实地感受环境、细看户型,价格、交房时间、周边配套等楼盘详情,都能拨打电话4009692958咨询,看房可提前预约,省心了解心仪好房!
虹口北外滩旁
10号线四川北路站约400米
华润置地「外滩瑞府」
推出建面约121-161㎡高层
均价14.78万/㎡
目前“样板间”已开放
最新消息:华润置地虹口项目「外滩瑞府」正式取证,均价14.78万/㎡!首推2号楼,建面约121-161㎡户型,总价1553万起,明日开启认购!
124㎡三房是南北通透的全明户型,客厅面宽达到4.5米!!!三开间朝南设计;“S”墙收纳、卧室全飘窗延伸空间,每个卧室开间尺度均超过3米,完全满足改善居住的收纳需求!室内空间尺度优秀!
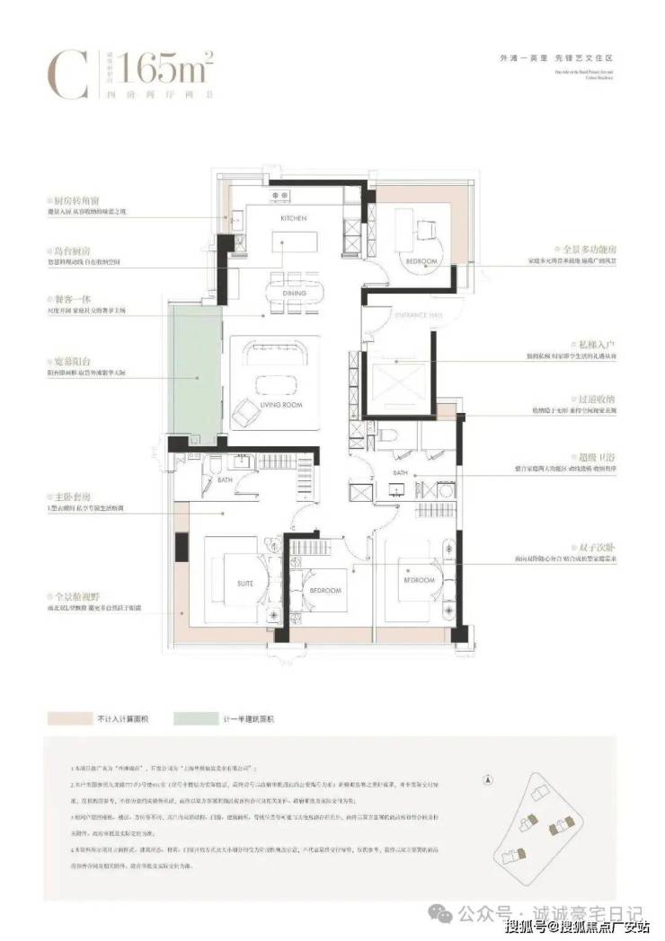
165㎡4房是大横厅改善尺度户型,尊享私梯入户,隐私性满分!三间卧室朝南设计,老人、小孩均可享受南向采光;厨房转角窗、主卧套房、北向书房均配置270度转角飘窗,景观视野相当不错!次卫三分离设计,相当人性化~
样板间实景
项目实景图如下
地块去年11月27日,华润置地以总价51.36亿元获取,成交楼面价92934元/平方米,溢价率11.97%,地块中小套型占比40%,装修标准4000元/㎡!
项目位于四平路吴淞路,占地约1.43公顷,容积率3.87,周边拥有九龙路、武进路、四平路、吴淞路 等快速路。

地块属于虹口内环内的嘉兴社区,就在第一人民医院北侧,南侧约200米就是北外滩,北侧即为瑞虹新城,项目直线距10号线四川北路站约400米,是今年虹口区非常重要的一个新房供应。
值得一提的是,相较其北侧约1.5公里的金茂&庆隆新拍地块,华润虹口项目的成交楼板价低了足足约2.5万元/㎡!要知道金茂&庆隆新拍地块的未来预期售价可是要达到18万+/㎡的。
规划设计方案:
项目拟建4栋24-32层高层住宅,另有少量风貌住宅和商业。住宅建面约124-240㎡。
4栋住宅一层全部为架空,入口至楼栋间设置有风雨连廊。
小区车行主入口设在了南侧哈尔滨路和东侧九龙路上,可以直接下地库,小区地面无车位,人车分流;人行出入口则位于地块东侧九龙路上,
华润TOP级瑞系,作为华润置地产品线的皇冠明珠,自诞生便以钻石级选址标准划定豪宅基因。
从深圳湾的 “春笋”旁到北京长安街畔,每一座瑞府都占据着核心城市最核心的地段。
此次外滩瑞府落子外滩1公里核心圈,正是华润对「战略稀缺性」的极致践行: 非核心不选,非未来不立。
这也是华润置地那么多年来在上海的首座“瑞系”。
有别于大多数的市区项目以兵列树阵式的景观设计,外滩瑞府通过建筑楼体的偏转形成了围合式的景观布局 , 秉持 三个最大化,两个最小化 (景观最大化,采光最大化,朝向视线最大化;遮挡最小化,影响最小化)。
通过这种创新布局,项目不仅形成连续的中心花园,更因楼栋布局与边界有夹角,自然形成一系列边角院落空间。
尤为难得的是,部分东南高区可看到陆家嘴三件套和北外滩浦西第一高楼的遥相呼应。
全 域风雨 连廊 ,外 滩瑞 府将风雨连廊扩容为完整的归家体系,实现全住宅楼栋无风雨归家,带来顶豪级的归家居住体验。

值得一提,你还将拥有 翠湖天地、汤臣一品同款大师设计。
项目力邀大师天团操刀,从建筑到生活全维度高定。
GOA大象设计担纲建筑设计;渡边 智昭 负责会所和架空层设计 ,他是 2023 AD 100 中国最具影响力建筑和室内设计师,代表作翠湖天地、汤臣一品;TROP操刀艺文景观设计; 室内由 W.DESIGN无间设计、 李益中精琢...
这支曾塑造多个城市封面的大师团队,聚集在外滩瑞府,共筑外滩新一代标杆住宅。

高层基座溯源石库门建筑精髓,复刻经典拱券符号;中段以通透玻璃幕墙搭配流线型金属线条,营造国际前沿的现代质感;顶部“冠冕”造型,进一步升华昭示性。
项目配套

交通配套:距轨道交通10号线四川北路站0.4公里,商业上,利通广场、壹丰广场、中信广场1933购物中心 都在步行距离范围内;
教育配套:有民办新华初级中学、虹口区中州路第一小学、上海市虹口区第一中心小学、上海市海南中学 ;
医疗配套:临近上海市第一人民医院。
商业配套:利通广场、壹丰广场、中信广场、1933 购物中心等在步行距离内,直线距离北侧瑞虹新城三件套约 1.5 公里。

虹口北外滩旁
10号线四川北路站约400米
华润置地「外滩瑞府」
推出建面约121-161㎡高层
均价14.78万/㎡
目前“样板间”已开放
最新消息,最新详情,周边配套,一房一价,最新进展等详情咨询)楼盘详情丨价格丨更多优惠丨机不可失丨欢迎致电丨诚邀品鉴!售楼处位置400..969..2958丨特价房丨工抵房丨剩余房源丨户型图丨最新消息丨免责声明:将文章内容综合来源于网络、只作分享,版权归原作者所有!!如有侵权,请联系我们,我们第一时间处理如有问题欢迎来电咨询,专业一对一热情服务,让您用专业眼光去买房。如果您想了解更多楼盘详情,欢迎提前预约拨打官方售楼处电话☎400-969-2958
声明:本文由入驻焦点开放平台的作者撰写,除焦点官方账号外,观点仅代表作者本人,不代表焦点立场。


