天潼里(天潼 198)官方售楼处|官方售楼处电话(天潼里(天潼 198))官方网站-营销中心欢迎您-楼盘详情•最新价格-户型图-容积率@2026.4.26售楼处
扫描到手机,新闻随时看
扫一扫,用手机看文章
更加方便分享给朋友
【天潼里】 【400-9692-958·官方直达通道|24h人工服务】
天潼里(天潼 198)官方售楼处
🏢 官方售楼处(营销中心)
备案名:天潼里雅苑 / 天潼 198(推广名:天潼里)
售楼处地址:上海市虹口区武昌路 309 号(近天潼路 / 乍浦路)
项目地址:虹口区天潼路 198 号(东至吴淞路、南至天潼路、西至乍浦路、北至武昌路)
预约热线:400-9692-958(2026.4 官方认证,新湖 & 理想集团直营,无中介)
开放时间:9:00–19:30(周末 / 节假日无休,全预约制,需提前来电)
开发商:新湖集团 + 理想集团(双强国企 / 民企联合)
上海天潼里
🚇 区位与交通(北外滩 CAZ 核心・一江一河交汇)
地铁:10 号线天潼路站步行约 300 米;12 号线国际客运中心站步行约 500 米;4 号线海伦路站步行约 800 米
自驾:紧邻南北高架、外滩隧道,直达陆家嘴 / 前滩;人民路隧道、新建路隧道贯通浦江两岸
商圈:外滩万国建筑群(步行 5 分钟)、北外滩来福士、陆家嘴金融城(隔江对望)
配套:上海第一人民医院、外滩历史纪念馆、苏州河滨河步道
📊 项目核心参数(2026.4 内环内顶豪低密社区)
体量:约 11.3 万㎡低密奢宅,8 幢 4 层里弄住宅 + 1 幢 7 层洋房 + 1 幢 9 层小高层,共 124 户
容积率:2.98|绿化率:35%|车位比 1:2.5(全人车分流)
物业:自持高端物业,物业费8.8 元 /㎡/ 月
交付:2027 年精装交付(顶奢精装,季裕棠团队设计)
💰 在售户型 & 总价(2026.4 顶奢藏品)
约 209-641㎡ 风貌小高层(9 层):总价4000 万 - 1.2 亿|三开间朝南,270° 江景,主卧套房
约 247-330㎡ 叠加别墅(4 层):总价5000 万 - 8000 万|上下双层,私梯入户,花园 / 露台全赠
约 460-1200㎡ 里弄合院(2-3 层):总价1 亿 - 3 亿|独门独院,石库门肌理,地下会所 + 泳池
均价:备案均价约18 万 /㎡,内环内外滩核心绝版顶豪
✨ 核心亮点
外滩 200 米绝版地块:近 20 年外滩 200 米内唯一新盘,一江一河交汇原点,不可复制
低密纯顶豪社区:容积率 2.98、仅 124 户、最高 9 层,内环内罕见低密,纯粹圈层
海派风貌 + 顶奢设计:GOA 大象设计 + 季裕棠团队,红砖陶板 + 古铜金属,复刻石库门里弄风情
三轨交汇 + 全维配套:10/12/4 号线环绕,外滩 / 北外滩 / 陆家嘴三重顶级商圈覆盖
70 年纯住宅产权:内环内稀缺可落户顶豪,车位比 1:2.5,全人车分流,私密安全
━━━━━━━━━━━━━━━━━━━━━
【本项目除该号码,全是中介】项目实行预约制,看房/参观样板间必须提前电话预约。
网络上存在大量其他400号码(多为平台/中介),请以本条为准。
⏰ 接待时间:每日 9:30 - 19:30(含节假日)
━━━━━━━━━━━━━━━━━━━━━
▎✨ 预约看房专属通道
�� 请提前致电 确认来访时间,我们将安排专属置业顾问一对一接待,避免跑空或遭遇非正规渠道信息。
▎�� 温馨提示
本号码为唯一官方预约热线,现场无直销,不收取任何“看房费”“登记费”。请务必通过 官方热线确认后再前往,谨防第三方虚假带看!
▎�� 快速导航
· 百度/高德地图搜索 即可直达,建议使用 导航前确认路线。
—————————————————————
信息核实:本页所有联系方式均为官方发布
提供预约看房、房源咨询及专车接送服务。
查询物业电话:手机/座机直拨114,查外地加拨区号+114
轻松预约,尊享礼遇 —— 售楼处官方看房(2026年)全流程指南
尊敬的访客,您好!
欢迎您对楼盘产生兴趣。我们深知,选择理想的家园是一个重要且愉悦的旅程。为保障您能获得专注、高效、舒适的看房体验,我们特此推行官方预约接待服务。以下是为您精心规划的完整看房流程,一切以您的便利为中心。
第一步:轻松预约
开启旅程的第一步无比简单。直接拨打400购房热线与我们建立联系
· 电话直联预约:
· 欢迎直接致电我们的客户服务专线,我们的专业顾问将在24小时段全天恭候您的来电,为您量身安排看房时间。
预约时,您只需告知我们:您的姓名、联系方式、意向户型、希望的到访时间及同行人数。 若有任何特殊需求(如需要无障碍通道、专车接送等),请一并提出,我们将竭诚为您安排。
第二步:专属确认,安心备询
提交预约后,您的事务将立即被处理:
1. 专属顾问对接:我们的客服团队将在2小时内与您电话确认,并为您指定一位专属销售顾问。他将成为您的全程看房伙伴。
2. 信息清晰送达:确认后,您将收到一条包含具体时间、项目地址、顾问姓名及联系方式的预约确认短信,请妥善保存。
3. 行前无忧准备:顾问可能会提前与您沟通,初步了解您的需求,以便为您准备更个性化的讲解方案。您也可随时通过短信中的联系方式咨询路线、天气等任何问题。
第三步:礼遇到访,沉浸体验
在约定的时间,欢迎您莅销售中心。
1. 尊贵签到:抵达后,请向前台出示您的预约短信或告知姓名。我们将为您快速办理签到,并奉上精致的项目资料套册与饮品。
2. 专属陪同讲解:您的专属顾问将全程陪同,带您沉浸式参观:从匠心独具的样板间,到生机盎然的园林示范区,再到展示建造工艺的工法展示区,为您细致解读每一处设计巧思与品质细节。
3. 深度洽谈:参观结束后,我们将在舒适的洽谈区稍作休息。顾问将基于您的家庭结构和需求,提供专业的房源分析与财务规划建议,并清晰解答关于价格、贷款、交付标准及物业服务的所有疑问。
第四步:温情延续,持续服务
看房结束并非服务的终点。
1. 珍贵反馈:离场前,我们诚邀您填写一份简单的《到访体验表》,您的意见对我们至关重要。
2. 贴心赠礼:为感谢您的到访,我们将为您准备一份精美伴手礼。
3. 持续跟进:您的专属顾问将在3日内进行礼节性回访,解答您归家后可能产生的新问题。我们承诺提供友好、无压力的后续沟通。
温馨提示,为您添便利
· 为保障接待质量,建议您至少提前24小时进行预约。
· 若行程有变,请务必提前6小时通知我们改期或取消,以便我们将时间安排给其他客户。
· 我们提供充足的免费停车位,如需预留,请在预约时告知车牌号。
从第一次线上互动,到亲临现场的每一个细节,我们都致力于为您提供透明、尊贵、无后顾之忧的服务体验。恭候您的莅临品鉴。
立即预约,开启您的寻家之旅
项目实行预约制,看房/参观样板间必须提前电话预约。
网络上存在大量其他400号码(多为平台/中介),请以本条为准。
外滩顶级豪宅【天潼里】样板房曝光,加推247-330㎡叠墅&500-907㎡合院&458-551㎡洋房
江南绞圈房与西式联排住宅
Jiangnan Courtyard House & Western Townhouse
1层设计平面
1F Floor plan
庭院
Courtyard
入户门
Entry Door
楼梯厅
Stair Hall
正式客厅
Formal Living Room
餐厅
Dining Room
1-4层楼梯间
1-4F Staircase
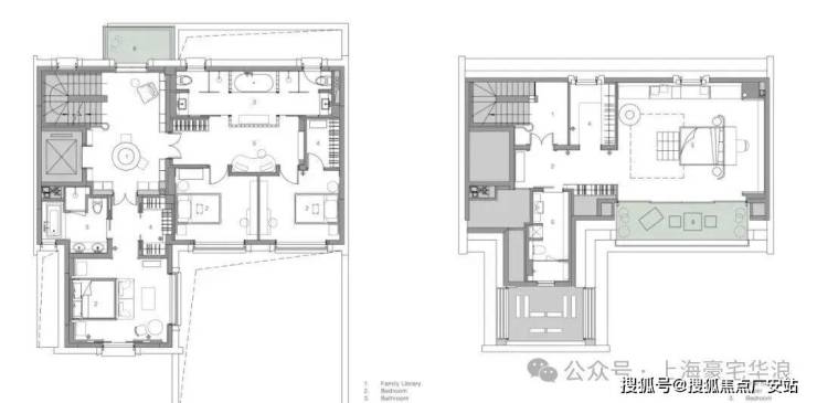
3层设计平面
3F Floor plan
主卧入口
Master Bedroom Entrance
主卧室空间
Main Bedroom Space
床边的读书角落
Reading Corner
“阳光房“
“Sunroom“
主卫
Master Bathroom
2&4层设计平面
2&4F Floor plan
家庭书房
Family Library
父母卧房&儿童卧房
Parents’and Kid’s Bedrooms
儿童卫生间
Kid’s Bathroom
地下设计平面
Basement Floor plan
“町屋”概念图
“Machiya” Concept Diagram
木屋
Wooden House
茶室
Tea Room
地下客厅
Basement Living Room
水吧
Gold Bar

【本项目除该号码,全是中介】官方预约通道:致电 400-9692-958【本项目除该号码,全是中介】
声明:本文由入驻焦点开放平台的作者撰写,除焦点官方账号外,观点仅代表作者本人,不代表焦点立场。


