外滩瑞府楼盘详情-(外滩瑞府)官方售楼处电话-房价-户型配套—外滩瑞府售楼处电话-地址-房价-在售户型
扫描到手机,新闻随时看
扫一扫,用手机看文章
更加方便分享给朋友
虹口北外滩旁,10号线四川北路站约400米
华润置地上海首座“瑞系”顶序作品
「外滩瑞府」售楼处电话☎️:400-998-7894✅✅【售楼处已认证】
(预约看房热线√√)(提供开发商销售顾问线上一对一热情讲解服务)
二批将推建面约120-330㎡无界大宅售楼处地址是东至九龙路;南至哈尔滨路;西至吴淞路

外滩瑞府售楼处电话☎️:400-998-7894✅✅【售楼处已认证】
(预约看房热线√√)(提供开发商销售顾问线上一对一热情讲解服务)
外滩瑞府地处世界级黄金三角(外滩+陆家嘴+北外滩),直线距离外滩仅1公里,上海资产浓度最为密集的区域,坐拥九龙路滨水空间+亿级风貌带红利,链接全上海的高净值人群!
外滩瑞府售楼处电话☎️:400-998-7894✅✅【售楼处已认证】
(预约看房热线√√)(提供开发商销售顾问线上一对一热情讲解服务)
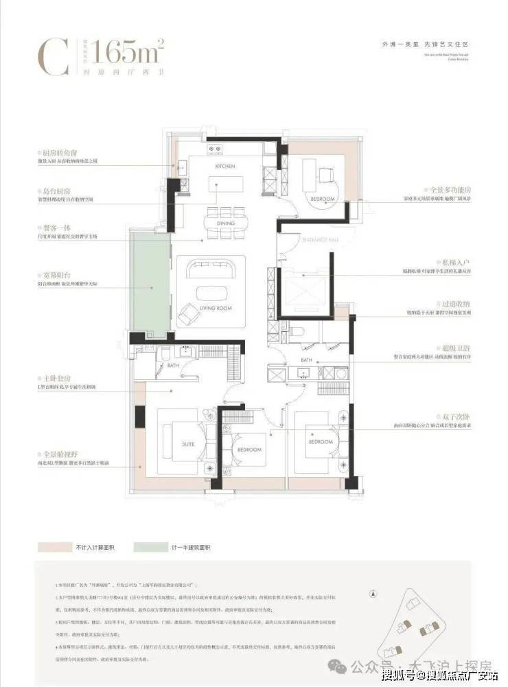
【户型图】
外滩瑞府售楼处电话☎️:400-998-7894✅✅【售楼处已认证】
(预约看房热线√√)(提供开发商销售顾问线上一对一热情讲解服务)
【 165㎡4房样板房实景】
大横厅尺度感奢阔,尊享私梯入户,隐私性满分!三间卧室朝南设计的平权户型,老人、小孩均可享受南向采光;厨房转角窗、主卧套房、北向书房均配置270度转角飘窗,景观视野相当不错!次卫四分离设计,相当人性化~
外滩瑞府售楼处电话☎️:400-998-7894✅✅【售楼处已认证】
(预约看房热线√√)(提供开发商销售顾问线上一对一热情讲解服务)
外滩瑞府售楼处电话☎️:400-998-7894✅✅【售楼处已认证】
(预约看房热线√√)(提供开发商销售顾问线上一对一热情讲解服务)
外滩瑞府售楼处电话☎️:400-998-7894✅✅【售楼处已认证】
(预约看房热线√√)(提供开发商销售顾问线上一对一热情讲解服务)
外滩瑞府售楼处电话☎️:400-998-7894✅✅【售楼处已认证】
(预约看房热线√√)(提供开发商销售顾问线上一对一热情讲解服务)
外滩瑞府售楼处电话☎️:400-998-7894✅✅【售楼处已认证】
(预约看房热线√√)(提供开发商销售顾问线上一对一热情讲解服务)
外滩瑞府售楼处电话☎️:400-998-7894✅✅【售楼处已认证】
(预约看房热线√√)(提供开发商销售顾问线上一对一热情讲解服务)
【 240㎡4房样板房实景】
外滩瑞府售楼处电话☎️:400-998-7894✅✅【售楼处已认证】
(预约看房热线√√)(提供开发商销售顾问线上一对一热情讲解服务)
外滩瑞府售楼处电话☎️:400-998-7894✅✅【售楼处已认证】
(预约看房热线√√)(提供开发商销售顾问线上一对一热情讲解服务)
外滩瑞府售楼处电话☎️:400-998-7894✅✅【售楼处已认证】
(预约看房热线√√)(提供开发商销售顾问线上一对一热情讲解服务)
外滩瑞府售楼处电话☎️:400-998-7894✅✅【售楼处已认证】
(预约看房热线√√)(提供开发商销售顾问线上一对一热情讲解服务)
项目基础信息
“上海2035”总体规划明确,外滩将作为“全球城市核心功能承载区”,与陆家嘴、北外滩组成“黄金三角”,目标直指“卓越全球城市”的封面。这一规划不仅定义了上海的空间格局,更将外滩推向全球资本、文化、资源的核心交汇点。外滩瑞府择址于此,对标纽约ONE57、伦敦海德公园一号——非全球资本聚集地不选,非历史与未来叠加区不立,其价值内核正是对“黄金三角”核心资产的精准锁定,为业主提供了“抗周期”的资产保障。
外滩一英里,百年资本、艺术与文明的“共生容器”
资本长河卷:百年万国建筑群凝结19世纪中国近半财富记忆,每块石材都是未被翻页的金融史章,见证“远东第一金融中心”的风云变迁;
艺术生长带:外滩源历保建筑内,先锋艺术展的光影穿透木质百叶窗,在老墙绘制当代图腾,让历史街区成为“流动的美学实验室”;
外滩瑞府售楼处电话☎️:400-998-7894✅✅【售楼处已认证】
(预约看房热线√√)(提供开发商销售顾问线上一对一热情讲解服务)
文明对话场:外白渡桥横跨苏州河,南段是金融资本的“硬实力”,北段是霓虹爵士的“软文化”,中段百年领事馆群记录东西方对话轨迹。三者交织,让外滩瑞府成为全球高净值人群眼中的“收藏级资产”。
一江两岸的“时空叠影”,陆家嘴势能与外滩厚度的共生逻辑
时光对话录:百年石库门的雕花檐角与陆家嘴玻璃幕墙互为映照,石库门的“温度”与摩天楼的“科技感”在此共生——上海中心的灯光倒映黄浦江时,外滩瑞府的窗前便展开一幅“古典砖石×未来光影”的时空画卷;
烫金一英里圈:2025年外滩扩容规划将通过地下连廊与滨江步道,无缝串联百年金融街与现代CBD。业主可享“晨间万国建筑群咖啡、午后陆家嘴写字楼洽谈、日落滨江步道漫步”的全球资本生活节奏;
双极价值场:外滩“历史溢价”与陆家嘴“未来势能”在此叠加,黄金三角腹地成为中国高净值圈层的聚集地,是时代价值创造者的共同选择。
北外滩+音乐谷,先锋生活的“极致资源矩阵”
千亿北外滩:依托“3000亿航运引擎”重塑全球经济版图,上港集团、中远海运等巨头云集,掌控全球1/3航运交易;更将崛起480米浦西第一高楼,与陆家嘴上海中心组成“双子星”,彻底改写城市天际线;
外滩瑞府售楼处电话☎️:400-998-7894✅✅【售楼处已认证】
(预约看房热线√√)(提供开发商销售顾问线上一对一热情讲解服务)
音乐谷2.0:位列2025上海十大城市更新片区,与黄浦外滩、老城厢等同为重点。这里保留内环罕见的完整水系(宽15-20米“江南小河道”)及国家级文保单位,未来滨水步行区将贯通“一湾两半岛”,百年里弄变身爵士乐演出空间与独立艺术画廊,滨水市集的霓虹灯与爵士乐交织,突破传统顶豪“资源堆砌”范式,形成“生活为体,音乐为魂”的海派艺文新场景。
外滩瑞府售楼处电话☎️:400-998-7894✅✅【售楼处已认证】
(预约看房热线√√)(提供开发商销售顾问线上一对一热情讲解服务)
声明:本文由入驻焦点开放平台的作者撰写,除焦点官方账号外,观点仅代表作者本人,不代表焦点立场。


