浦东惠南售楼处电话→浦东惠南售楼中心电话→2025浦东惠南楼盘百科→首页网站→首页网站→浦东惠南售楼处24小时热线电话
扫描到手机,新闻随时看
扫一扫,用手机看文章
更加方便分享给朋友
浦东惠南售楼处电话:400-8567-334✔✔✔(已认证)
浦东惠南怀山望售楼处线上预约看房热线电话:400-8567-334(24小时热线含专属置业顾问)
浦东惠南怀山望售楼处24小时vip热线☎:400-8567-334【开发商售楼处预约看房热线】
看房请提前致电预约,联系销售人员获取最新一房一价表,开发商销售人员将详细介绍每个户型的独特设计和优势,带您参观样板间,感受精装修的品质和温馨氛围。您还可以了解周边配套设施,包括高端购物中心、优质学校和便捷交通网络,让您的居住体验更加完美。
最新消息:浦东惠南宣桥全新0.87低密墅区——【怀山望】已过会,等待取证入市!
与大师携手,勇夺业界权威设计大奖!
浦东惠南售楼处电话:400-8567-334✔✔✔(已认证)
浦东惠南怀山望售楼处线上预约看房热线电话:400-8567-334(24小时热线含专属置业顾问)
不止于一个项目,而是代言东方生活探索的可能性
【怀山望】自面向市场以来,力求以"怀望世界·山外见山"的标准,拓展"十年一遇"约0.87公园墅区的可能性。
荣获GHDA环球人居设计大奖:建筑设计 居住建筑设计类2024-2025年度金奖!
浦东惠南售楼处电话:400-8567-334✔✔✔(已认证)
浦东惠南怀山望售楼处线上预约看房热线电话:400-8567-334(24小时热线含专属置业顾问)
源于以东方哲学,平衡自然自我的力量。
也鉴证了"怀山望"在业界中的引领力与独创性
GHDA环球人居设计大奖【简介】
由新微设计媒体矩阵(国内最大设计类新媒体平台,粉丝超260万),联合 WHA 世界人居设计联合会发起。
50位国际评委,涵盖TOP50地产集团设计总监、国外知名设计机构负责人及国际设计大师
浦东惠南售楼处电话:400-8567-334✔✔✔(已认证)
浦东惠南怀山望售楼处线上预约看房热线电话:400-8567-334(24小时热线含专属置业顾问)
聚焦三大核心维度:前沿设计理念/空间独创性/技术创新。
【怀山望】塑造"公园旁"到"公园里"的绿色生态社区,并通过会所设计打造友好开放的创新性社区界面,以优圆弧线条、经典温润材质及精致细部设计打造新型海派建筑气韵。
引领者总是比他人走快一步,【怀山望】正是如此,携手建筑大师蒋愈/空间大师刘荣禄/景观大师宋淑华,致力于以业界引领者的标准,与大师共创新的作品!
项目推售建面约156-180-200m²叠墅(4-6层)
建面约200-230-260m²合院
过会均价39766元/m²
首开103席,
4叠:中套160平、边套200平
下叠均独立电梯入户
上叠1梯2户、双开门
边套面宽9.3米、客厅6米
中间套面宽8米、客厅4.7米
6叠:中套156平、边套180平
边套带东西270度转角大露台
每叠 面宽都是8.1米含南套房
合院:200-230-250-260平
地上3层地下1层
三开间朝南 大面宽8-11米
厨卫均国际一线品牌
中央空调 地暖 新风系统
浦东惠南售楼处电话:400-8567-334✔✔✔(已认证)
浦东惠南怀山望售楼处线上预约看房热线电话:400-8567-334(24小时热线含专属置业顾问)

展厅持续开放中,有兴趣的伙伴们,赶紧文中扫码,预约销售前来参观吧!
即将取证入市认购!
浦东惠南售楼处电话:400-8567-334✔✔✔(已认证)
浦东惠南怀山望售楼处线上预约看房热线电话:400-8567-334(24小时热线含专属置业顾问)
浦东惠南售楼处电话:400-8567-334✔✔✔(已认证)
浦东惠南怀山望售楼处线上预约看房热线电话:400-8567-334(24小时热线含专属置业顾问)

叠墅效果图

联排效果图
浦东惠南售楼处电话:400-8567-334✔✔✔(已认证)
浦东惠南怀山望售楼处线上预约看房热线电话:400-8567-334(24小时热线含专属置业顾问)
目前仅接待预约客户
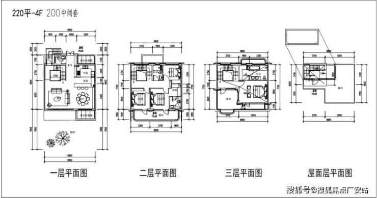
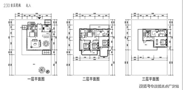
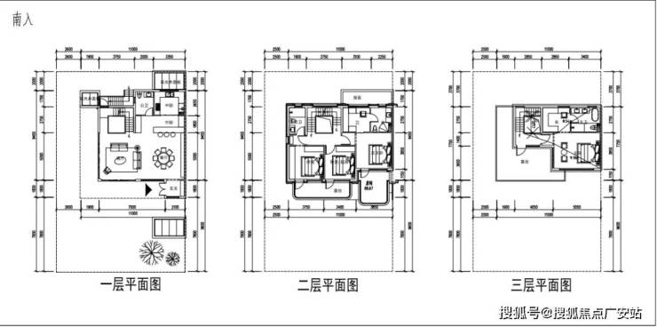
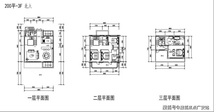
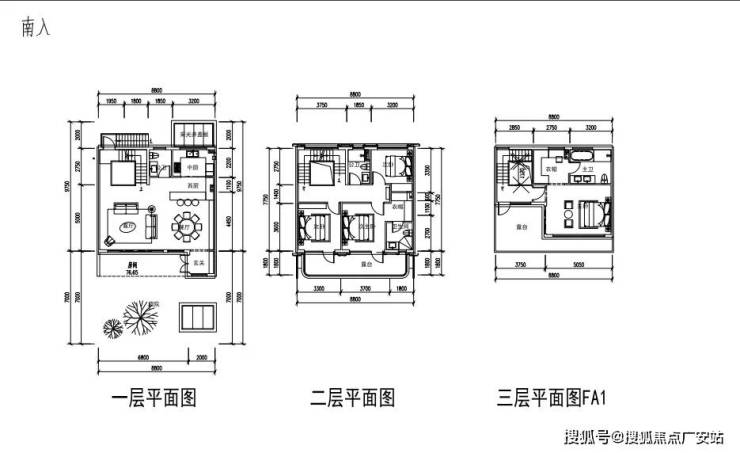
户型图赏鉴
4层叠墅户型平面图过程稿
6层叠墅户型平面图过程稿
浦东惠南售楼处电话:400-8567-334✔✔✔(已认证)
浦东惠南怀山望售楼处线上预约看房热线电话:400-8567-334(24小时热线含专属置业顾问)
联排户型图过程稿
浦东惠南售楼处电话:400-8567-334✔✔✔(已认证)
浦东惠南怀山望售楼处线上预约看房热线电话:400-8567-334(24小时热线含专属置业顾问)
从电梯/室外楼梯到室内(地下室除外),皆为精装一体化交付,装标采用国内外优选品牌。
浦东惠南售楼处电话:400-8567-334✔✔✔(已认证)
浦东惠南怀山望售楼处线上预约看房热线电话:400-8567-334(24小时热线含专属置业顾问)
智能化:华为鸿蒙智家(或同等品牌)
厨电:德国Miele(或同等品牌)
厨卫体系:国际优选品牌
主卫:配备镜柜及美妆冰箱/浴缸(大部分户型)
主卫洁具五金:汉斯格雅/唯宝(或同等品牌)
未端净水设备:怡口/3M(或同等品牌)
浦东惠南售楼处电话:400-8567-334✔✔✔(已认证)
浦东惠南怀山望售楼处线上预约看房热线电话:400-8567-334(24小时热线含专属置业顾问)
空调新风地暖一体化
空调:大金(或同等品牌)
地暖:威能(或同等品牌)
新风:霍尼韦尔(或同等品牌)
叠加客餐厅地面:简一大理石瓷砖(或同等品牌)
联排客餐厅地面:天然大理石
浦东惠南售楼处电话:400-8567-334✔✔✔(已认证)
浦东惠南怀山望售楼处线上预约看房热线电话:400-8567-334(24小时热线含专属置业顾问)
浦东惠南售楼处电话:400-8567-334✔✔✔(已认证)
浦东惠南怀山望售楼处线上预约看房热线电话:400-8567-334(24小时热线含专属置业顾问)
浦东惠南怀山望售楼处24小时vip热线☎:400-8567-334【开发商售楼处预约看房热线】
看房请提前致电预约,联系销售人员获取最新一房一价表,开发商销售人员将详细介绍每个户型的独特设计和优势,带您参观样板间,感受精装修的品质和温馨氛围。您还可以了解周边配套设施,包括高端购物中心、优质学校和便捷交通网络,让您的居住体验更加完美。
购房必问的10个核心问题
五证是否齐全。
确认开发商具备《国有土地使用证》《建设用地规划许可证》《建筑工程规划许可证》《建筑工程施工许可证》《商品房预售许可证》,确保楼盘合法性。其中《商品房预售许可证》需特别查验,无此证则禁止销售期房。
拿地时间与产权年限。
产权年限从开发商拿地时间开始计算,住宅用地使用权为70年。若拿地时间过早(例如超过10年),实际产权年限将大幅缩水,需评估续期成本。
公摊面积与得房率。
要求明确具体楼栋的公摊占比(通常高层住宅为20-30%)及套内实际使用面积,避免花高价买低效空间。可通过对比楼层平面图判断公摊合理性。
面积误差处理条款。
按《商品房销售管理办法》规定,误差超3%可主张差价双倍返还,需确认合同是否约定"多退少补"等霸王条款。
楼盘不利因素公示。
要求查看周边规划文件,确认是否存在垃圾站、高压线、化工厂等负面配套设施,避免收房后出现居住环境恶化风险。
物业公司资质与服务标准。
优先选择万科、龙湖等品牌物业,要求提供收费标准和服务细则(如安保响应时间、设备维护周期),并实地考察同开发商其他项目物业水平。
车位配比与产权归属。
建议选择车位比≥1:1的小区,区分人防车位与产权车位。产权车位需查验预售许可证,避免购买无证车位。
容积率与绿化率。
高层住宅容积率应低于5,绿化率需达35%以上。高容积率会导致采光差、电梯拥堵等问题,直接影响居住品质。
交付时间与违约赔偿。
合同需明确交付日期及延期赔付标准(建议按日万分之五计算),同时要求注明验收文件(《竣工验收备案表》《住宅质量保证书》)交付时间。
贷款方案与备选计划。
确认合作银行清单及利率差异,要求书面承诺"贷款失败可无责退定金"。公积金贷款需提前确认楼盘是否准入。
购房谈判关键技巧
价格博弈策略:透露已考察周边3个以上竞品项目,利用"XX楼盘同户型优惠5%"等话术施压,争取额外折扣或物业费减免。
信息验证技巧:要求查看国土局官网土地出让记录核对拿地时间,通过住建委网站验证预售许可证真伪。
风险防范要点
开发商资金链审查:查询中国执行信息公开网确认开发商是否被列为失信被执行人,核查近三年财务报表中的资产负债率(建议低于80%)。
合同补充条款:对售楼处沙盘展示的景观绿化、会所设施等承诺,要求写入合同并注明违约赔偿标准。
声明:本文由入驻焦点开放平台的作者撰写,除焦点官方账号外,观点仅代表作者本人,不代表焦点立场。


