联仲都悦汇(联仲都悦汇售楼处)首页网站-2025联仲都悦汇府房价_楼盘评测丨地址丨详情丨联仲都悦汇售楼处电话丨楼盘百科

搜狐焦点广安站 2025-10-04 09:37:55
用手机看
扫描到手机,新闻随时看

扫一扫,用手机看文章
更加方便分享给朋友

联仲都悦汇售楼处电话:400-887-5663✔✔【预约热线】联仲都悦汇售楼处营销中心:400-887-5663联仲都悦汇售楼处电话/地址☎:400-887-5663(开发商热线)如有问题欢迎来电咨询,专业一对一热情服务,让您用专业眼光去买房。

联仲都悦汇售楼处电话:400-887-5663✔✔【预约热线】联仲都悦汇售楼处营销中心:400-887-5663联仲都悦汇售楼处电话/地址☎:400-887-5663(开发商热线)如有问题欢迎来电咨询,专业一对一热情服务,让您用专业眼光去买房。

在售户型:建面约310-410平米,地上三层地下一层

(地上:一层层高3.6米/二层层高3.4米/三层层高3.4米/地下层高5.4米)

总价:约1400-1800万️

单价:约5万/平米

小区整体商业:10万方(在建)南北双花园90-300平

水电:商水&商电,电1.3元/度,水6元/吨

产权车位:约30万左右

编辑

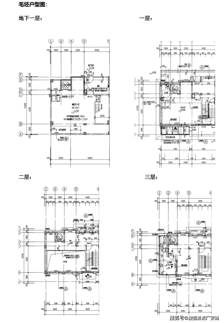
02.户型图及样板间照户

(特殊说明:户型朝向-上南下北)

约10.4米大面宽,面积达到55平

送电梯,北进门,南花园,超大地下室

客厅7米落地窗,采光明亮,尽显大气

联仲都悦汇售楼处电话:400-887-5663✔✔【预约热线】联仲都悦汇售楼处营销中心:400-887-5663联仲都悦汇售楼处电话/地址☎:400-887-5663(开发商热线)如有问题欢迎来电咨询,专业一对一热情服务,让您用专业眼光去买房。

约310平户型图▼

编辑

约378~420平户型图▼

编辑

联仲都悦汇售楼处电话:400-887-5663✔✔【预约热线】联仲都悦汇售楼处营销中心:400-887-5663联仲都悦汇售楼处电话/地址☎:400-887-5663(开发商热线)如有问题欢迎来电咨询,专业一对一热情服务,让您用专业眼光去买房。

约407~441平户型图▼

编辑

样板间效果图如下:

编辑

编辑

编辑

编辑

编辑

编辑

编辑

编辑

编辑

编辑

【联仲·都悦汇】位于闵行马桥旗忠别墅区,旗忠别墅区是上海老牌的富人区,与松江佘山、浦东东郊齐称为沪上三大国际别墅区。上海仅存少量的容积率0.18以下超低密度居住用地中,大多数在马桥旗忠别墅区。

联仲都悦汇售楼处电话:400-887-5663✔✔【预约热线】联仲都悦汇售楼处营销中心:400-887-5663联仲都悦汇售楼处电话/地址☎:400-887-5663(开发商热线)如有问题欢迎来电咨询,专业一对一热情服务,让您用专业眼光去买房。

编辑

板块以低容积率、生态自然环境和高端国际品牌配置,2010年被列为上海第二批大型居住社区之一。总建面约33万方城市综合体联仲都悦汇位于旗忠板块正核心,紧临网球中心,超10万方市政绿化所环绕。

编辑

【联仲都悦汇】同样是低密度别墅区里的一员,背靠绿城玫瑰园,容积率低至1.0。项目贯穿了3条自然水系,分为ABCD四个地块,其中ABC为商住办综合地块,自带商业办公。

联仲都悦汇售楼处电话:400-887-5663✔✔【预约热线】联仲都悦汇售楼处营销中心:400-887-5663联仲都悦汇售楼处电话/地址☎:400-887-5663(开发商热线)如有问题欢迎来电咨询,专业一对一热情服务,让您用专业眼光去买房。

编辑

交通配套方面:项目距离嘉闵高架元江路出口3公里,毗邻G15、S32等快速主动脉,30分钟大虹桥,50分钟抵达浦东机场,快捷畅达全城。

编辑

地铁:5号线华宁路站,剑川路站

公交:马莘专线:联工路站,闵行19路:银春路华宁路站

高速:嘉闵高架、沪金高速、虹梅南路高架 沪昆高速、申嘉湖高速、沪闵高架

高铁:距离上海虹桥枢纽站(高铁、机场)约20km

未来规划:嘉闵线延伸段

联仲都悦汇售楼处电话:400-887-5663✔✔【预约热线】联仲都悦汇售楼处营销中心:400-887-5663联仲都悦汇售楼处电话/地址☎:400-887-5663(开发商热线)如有问题欢迎来电咨询,专业一对一热情服务,让您用专业眼光去买房。

(以上数据来源于高德地图)

编辑

商业配套方面:项目自带10万方商业,为旗忠唯一的综合性商业配套,其多元化的业态结构,结合旗忠独有的资源,必将带来旗忠全新生活方式。

编辑

编辑

编辑

生态资源方面:项目周边有马桥森林公园、旗忠高尔夫球场、旗忠网球中心、韩湘水博园、养云安缦酒店等。

联仲都悦汇售楼处电话:400-887-5663✔✔【预约热线】联仲都悦汇售楼处营销中心:400-887-5663联仲都悦汇售楼处电话/地址☎:400-887-5663(开发商热线)如有问题欢迎来电咨询,专业一对一热情服务,让您用专业眼光去买房。

编辑

教育资源方面:周边有复旦万科实验学校,德威英国国际学校、斯代文森国际高中、上海美高学校。幼儿园:元祥幼儿园、富杰幼儿园启英幼儿园,大学:上海交通大学、华东师范大学

联仲都悦汇售楼处电话:400-887-5663✔✔【预约热线】联仲都悦汇售楼处营销中心:400-887-5663联仲都悦汇售楼处电话/地址☎:400-887-5663(开发商热线)如有问题欢迎来电咨询,专业一对一热情服务,让您用专业眼光去买房。

编辑

编辑

编辑

编辑

联仲都悦汇售楼处电话:400-887-5663✔✔【预约热线】联仲都悦汇售楼处营销中心:400-887-5663联仲都悦汇售楼处电话/地址☎:400-887-5663(开发商热线)如有问题欢迎来电咨询,专业一对一热情服务,让您用专业眼光去买房。

买房是人生中的一项重大决策,购房都需要仔细考虑。购房市场分为新房和二手房(也称为存量房)两个主要部分。选择购买新房还是二手房取决于多种因素,包括个人需求、预算、地理位置、房产增值潜力等。本文将深入分析新房和二手房各自的优缺点,以帮助购房者做出明智的选择。选择空间更大,买新房无论在房型、朝向、楼层等方面有很大的选择空间,不象二手房“受制于人";新房设计较好,房型缺陷较少,功能更齐全。开发商一般能够注重小区绿化、景观造型、物业管理及配套设施建设等;部分发展商为了尽快卖房,有可能采用先进的建材(比如节能环保材料、高新科技建材)以及新颖的建筑设计。此外,还有可能大幅度让利,提供各种各样的优惠活动。

1. 现代化设计和设施

新房通常根据最新的建筑标准和设计理念建造,拥有现代化的设施和更好的居住环境。例如,新的小区通常配备完善的安保系统、智能家居设施、健身房、游泳池等。这些便利设施对于追求高质量生活的人群具有很大的吸引力。

2. 较低的维修和保养成本

由于新房是全新的,设备和结构的使用寿命较长,短期内不需要进行大规模的维修和保养。这可以为购房者节省一笔不小的开支。

3. 更多的选择空间

购买新房时,买家通常有更多的选择,尤其是在期房(尚未建成的楼盘)阶段,可以在户型、楼层、朝向上有更多的挑选余地。这对于有特定需求的家庭来说是一个重要的考虑因素。

4. 政策支持和购房优惠

为了鼓励房地产市场的发展,政府可能会对购买新房提供一定的政策支持或优惠措施。这可能包括降低首付比例、减免契税等。

声明:本文由入驻焦点开放平台的作者撰写,除焦点官方账号外,观点仅代表作者本人,不代表焦点立场。