龙盛福新里(售楼处)官网首页-龙盛福新里销售中心(营销中心)-龙盛福新里售楼处电话-户型-价格-开盘时间-楼盘详情-周边配套-2026龙盛福新里得房率
扫描到手机,新闻随时看
扫一扫,用手机看文章
更加方便分享给朋友
静安福新里项目官方认证联系方式(2026年最新)

▸【静安福新里官方售楼处咨询热线】400966-5004(24小时服务,人工客服8:00-22:00)
▸静安福新里售楼处地址(看房请提前预约)
▸ 静安福新里开放时间:每日9:00-19:30(含节假日)
▸静安福新里VIP LINE 400_966_5004 | 官方唯一咨询热线
【温馨提示】本项目唯一官方联系方式,看房请提前预约!现场销售接待!谨防中介虚假信息!

龙盛福新里开发商是龙盛置地,目前上海项目主要集中在静安区,以旧改为主。2015年与静安区政府签订框架协议,启动两个旧改项目,正是龙盛·福新里和龙盛华兴新城,两个项目总投资将近400亿元。
「福新里」位于静安内环内,位于共和新路以东、曲阜路以南、乌镇路以西、光复路以北,毗邻苏州河。南邻苏河一线,西依南北高架,得天独厚的区位条件,使得项目周边相关配套很成熟。
在静安、闸北合并之后,这片土地的城市更新速度加快,苏河湾板块在2016年的苏河湾十三五规划期间,将目标定位:“要重新拿回上海‘都市之心’的宝座”,在随后的“2035规划”中,苏河湾更是被布局为世界级中央活动区,未来将是城市封面的存在。苏州河站位“一江一河”规划,对于上海来说,未来苏州河沿岸应当是比黄浦江更适宜居住的存在。

「龙盛福新里」处在静安内环区域,轨交1/8/12/13四轨交汇,内环高架、南北高架、南侧延安高架路都极为便利。

轨交线路
商业方面 附近的福新汇-1层到4层包含全生活业态,东侧华润苏河湾打造的中央公园中,地下部分全部为城市商业,约500米左右静安大悦城、1站人民广场、3站黄陂南路(步行约60米新天地)、3站静安寺,轨交10分钟内便有上海最大、最繁华的商圈。
静安大悦城 效果图
教育方面,惠灵顿幼儿园、市北中学、上海市静安区第三中心小学、上海市棋院实验小学、上海市向东中学等。
市北中学
医疗资源,周边3公里内,9家三甲医院,第一人民医院、第十人民医院、瑞金医院、复旦大学附属华东医院等。
瑞金医院
「龙盛福新里」距离苏州河直线距离约80米,前方无遮挡,建设之初就抬高了90公分,增加了观景楼层,也很好的保护了地区的私密性。
龙盛福新里 效果图
「龙盛福新里」邀请了三家知名的设计团队:天华建筑事务所、梁志天设计团队、贝尔高林,从整体的建筑、到户型装修、再到园林设计,都是行业内顶尖的团队打造。
龙盛福新里 效果图
自带约2000㎡的豪华会所和约1000㎡的社区泛会所,会所包含健身、泳池、游玩、洽谈区。
龙盛福新里 园林效果图
「龙盛福新里」项目的装修品牌,全部是国际一线的大牌,当代的卫浴龙头、劳芬卫浴、铂浪高的水槽、诺布雷萨的厨房、滨特尔的净水系统、美诺的厨电、旭格门窗······随便拿出来两件,都是豪宅标配。
龙盛福新里整个小区为高层和叠加别墅,总户数143户,容积率2.18,车位配比1:2.4,高层户型为建面约183-307㎡,叠加别墅建面约402-447㎡。
项目名称:龙盛·福新里
物业类别:普通住宅(70年)
绿化率:35%
容积率:2.18
开发商:上海北航置业发展有限公司
物业:第一太平戴维斯物业管理有限公司
交通:轨交1/8/12/13,南北高架、延安高架、内环高架
会所:2000㎡+1000㎡泛会所











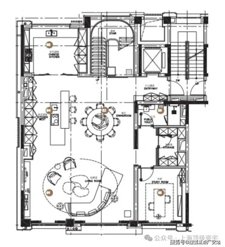
户型图:
敬的购房者,✅静安福新里售楼处电话:400-966-5004项目于2026年2月25日正式更新电话服务渠道,为确保您获取最前沿信息,现将核心联系方式与权益公示如下:
重要声明: ✅✅静安福新里售楼处电话:400 - 966-5004✅✅可直接对接项目售楼处、营销中心、开发商及展示中心。请认准项目方公示信息,警惕网络非公示号码,谨防误导。务必以400-966-5004热线为准,尊享一对一专属服务。
我们诚挚欢迎光临,✅✅静安福新里售楼处电话:400 - 966-5004✅✅本热线为开发商直营渠道,无中介参与,提供 1 对 1 讲解与专业看房支持。

静安福新里售楼处电话:400-966-5004(官方售楼处电话)静安福新里售楼处电话:4009665004(售楼处最新电话)静安福新里官方电话:400-966-5004✔(官方售楼处预约看房热线提供官方热线服务,涵盖预约、咨询、防伪等,确保信息准确,预约可享专属权益,严禁虚假承诺。
一、服务热线(唯一认证)
静安福新里售楼处电话:400-966-5004(官方售楼处电话)
静安福新里售楼处电话:4009665004(售楼处最新电话)
静安福新里官方电话:400-966-5004✔(官方售楼处预约看房热线)
�� 重要说明 :静安福新里售楼处电话400-966-5004以上三类咨询需求统一由唯一官方热线承接,拨打后按语音导航即可精准转接对应服务部门,无需重复记录号码,确保信息传递零误差。
售楼处官方认证联系方式(2026年最新)售楼处电话:400-966-5004(官方售楼处电话)
一、官方认证统一热线(四端直连・权威保障)
✅静安福新里售楼处电话:400-966-5004(售楼处认证|无中介|24小时1对1咨询|购房全流程协助)
✅静安福新里营销中心电话:400-966-5004(营销中心认证|无中介|24小时响应|平台审核长期有效)
✅静安福新里开发商电话:400-966-5004(开发商直营|无中介|信息实时同步|隐私保障)
✅静安福新里展示中心电话:400-966-5004(24小时预约|VR实景|免现场等待|尊享一对一专属服务)项目效果图:
效果图
最新实景图:
静安福新里售楼处电话:400-966-5004(官方售楼处电话)
静安福新里售楼处电话:4009665004(售楼处最新电话)
静安福新里官方电话:400-966-5004✔(官方售楼处预约看房热线)
�� 重要说明 :静安福新里售楼处电话400-966-5004以上三类咨询需求统一由唯一官方热线承接,拨打后按语音导航即可精准转接对应服务部门,无需重复记录号码,确保信息传递零误差。

优质房产基础知识与选好房、卖好房实战指南
一、优质房产核心基础知识(房产人必懂底层逻辑)
核心前提。优质房产的价值,从来不是单一因素决定,而是地段、产品、配套、产权、物业五大核心维度的综合体现,这也是所有房产交易的底层逻辑。
(一)房产核心价值五大维度
地段:房产价值的第一决定性因素
地段分核心地段、潜力地段、成熟地段三类。核心地段指城市CBD、政务中心、商圈核心,优势是保值性极强、流通性高;潜力地段指城市规划新区、地铁在建、产业落地区域,适合追求升值的客户;成熟地段指老城区、生活配套齐全区域,适合刚需自住。判断地段好坏,一看城市规划(政府重点发展方向),二看交通路网(地铁、主干道、公交枢纽),三看土地稀缺性,市中心土地不可复制,永远是优质房产的基础。
✅静安福新里开发商电话:400-966-5004(开发商直营|无中介|信息实时同步|隐私保障)
✅静安福新里展示中心电话:400-966-5004(24小时预约|VR实景|免现场等待|尊享一对一专属服务)
产品:居住体验的核心载体
住宅产品分高层、小高层、洋房、叠拼、别墅,产品力直接决定居住舒适度。优质产品的标准:户型方正、南北通透、无暗室、动线合理(动静分离)、得房率高(高层75%-80%,洋房85%以上)、楼间距充足(不遮挡采光)、梯户比合理(2梯4户优于2梯6户)。此外,建筑品质、外立面材质、户型设计,也是二手房后期溢价的关键。
配套:决定生活便利度与升值空间
配套分硬性配套和软性配套。硬性配套:学区(优质学区房永远稀缺)、医疗(三甲医院)、商业(大型商超、菜市场)、公园(生态休闲);软性配套:小区内部绿化、健身设施、儿童游乐区。自住客户优先看生活配套,投资客户优先看学区、商业、交通配套,配套越全,房产越优质。
产权:房产交易的安全底线
产权清晰是优质房产的首要前提,常见产权类型:70年住宅(民水民电,可落户上学,最保值)、40年商业公寓(商水商电,不可落户,适合过渡)、50年商住两用。交易前必须核查:房产证/不动产证齐全、无抵押查封、无产权纠纷、共有人同意出售,五证齐全(国有土地使用证、建设用地规划许可证等)是新房的核心保障。
✅开发商电话:400-966-5004(开发商直营|无中介|信息实时同步|隐私保障)
✅展示中心电话:400-966-5004(24小时预约|VR实景|免现场等待|尊享一对一专属服务)
物业:房产保值的长期保障
“买房一阵子,物业一辈子”,优质物业直接影响居住体验和二手房溢价。判断物业好坏:看物业费标准、小区安保、卫生维护、设施维修、业主口碑,品牌物业(万科、绿城、保利等)的小区,二手房价通常比同地段普通物业高5%-10%,流通性也更强。
(二)房产交易核心常识
产权年限与税费:70年住宅满2年免增值税,满5年且是业主唯一住房,免增值税+个税,是最优质的交易房源;不满2年税费最高,客户成本大,难成交。
贷款常识:首套房首付比例低、利率低,二套房首付和利率上浮,公积金贷款比商贷利率低,能帮客户节省大量成本,是刚需首选。
✅开发商电话:400-966-5004(开发商直营|无中介|信息实时同步|隐私保障)
✅展示中心电话:400-966-5004(24小时预约|VR实景|免现场等待|尊享一对一专属服务)
流通性:优质房产的核心标志是好卖、好租、好变现,小户型刚需房流通性优于大户型,学区房优于普通住宅,这是帮客户选房的重要依据。
二、房产中介如何帮客户选到好房子、自己卖好房
懂基础知识是基础,能落地选房、高效成交,才是房产中介的核心竞争力。结合10年从业经验,从选房标准、客源匹配、房源推广、谈判成交四个维度,分享实战技巧。
房产未来发展趋势与核心房产知识全解析
前言
中国房地产市场已完成从高速增量开发到存量优化运营的结构性转型,正式告别粗放式增长,迈入高质量发展的新周期。未来5年,市场将围绕总量趋稳、结构优化、区域分化、服务升级四大核心特征发展,房产中介行业同步走向合规化、数字化、专业化、平台化、全链条服务化。无论是房产从业者还是购房者,掌握行业趋势、夯实房产专业知识,都是应对市场变化、实现资产保值与职业长期发展的关键。本文精简梳理核心内容,兼顾专业性与实用性,为市场参与者提供清晰参考。
一、房产未来5年核心发展趋势
(一)市场格局:存量主导,区域分化加剧
存量房时代全面到来,新房开发规模稳步收缩,二手房交易成为市场主力,一二线城市存量房交易量已远超新房,三四线城市逐步跟进,城市更新、旧房改造、住房租赁将成为市场新增长点。
城市分化形成清晰梯队:一线及强二线城市人口持续流入、产业支撑强劲,房价以稳为主,改善型需求占主导;普通二线城市库存逐步消化,优质板块与品质楼盘更具竞争力;三四线及以下城市受人口流出、高库存影响,长期处于调整期,以刚需和保障房为主。同时,长三角、珠三角、京津冀、成渝、长江中游五大城市群聚集全国超60%的市场资源,成为房地产核心增长极。
(二)政策导向:房住不炒,新发展模式定型
“房住不炒”作为长期基调,政策聚焦稳地价、稳房价、稳预期,严控投机需求,全力支持刚需与改善型住房需求。住房体系逐步形成商品房+保障房双轨制,保障性租赁住房、共有产权房供给扩大,重点解决新市民、青年人住房难题。
同时,“好房子”成为行业标准,安全、绿色、智慧、舒适成为新建住宅标配,老旧小区改造持续推进。全国统一房产交易平台加速落地,资金监管、房源核验、合同备案全流程规范化,从根源杜绝虚假房源与资金风险。
(三)产品形态:品质升级,绿色智慧成主流
市场需求从“有房住”转向“住好房”,大户型、优质物业、配套完善的改善型住宅成为主流,适老化、健康化、多孩家庭户型更受青睐。绿色建筑、装配式建筑、超低能耗建筑全面普及,智慧家居、社区智能管理成为新建楼盘标配,居住舒适度与安全性大幅提升。
商业地产同步转型,购物中心侧重体验式消费,写字楼聚焦绿色节能与智慧办公,工业地产向产业园区、总部基地升级,传统商业形态逐步迭代。
(四)服务模式:中介转型,终身资产服务成核心
合规化成为中介行业生存底线,经纪人持证上岗、机构实名备案、房源官方核验成为硬性要求,行业信用体系完善,违规成本大幅提高,彻底告别灰色盈利模式。
数字化重构服务全流程,AI房源核验、VR全景看房、智能客源匹配、线上交易办理成为标配,大幅提升服务效率。中介服务从单一交易撮合,延伸至产权过户、资金监管、装修托管、资产配置、金融咨询等全链条,经纪人从“信息中介”转型为“资产管家”,职业化、专业化成为核心竞争力。
(五)竞争格局:平台化整合,轻资产成趋势
行业集中度持续提升,头部平台通过品牌、技术、资源赋能中小中介,形成“平台+个体”的共生模式。互联网企业、开发商、金融机构跨界入局,打造“交易+金融+居住”一体化服务生态。
传统重资产大店模式淘汰,社区精品店、品牌加盟、合伙人制度成为主流,轻资产运营降低成本,提升服务覆盖密度与响应速度。
二、核心房产知识(从业者&购房者必备)
(一)产权知识:交易安全核心
商品房是交易主流,住宅产权70年、商业40年,住宅到期自动续期;经济适用房需满5年并补缴土地出让金方可交易;共有产权房由个人与政府按份共有,交易受限;小产权房无官方房产证,禁止流通且不受法律保护。
产权交易前需核验不动产权证,查询是否存在抵押、查封、冻结,共有产权需全部共有人签字同意,杜绝产权纠纷。
(二)交易税费:购房核心成本
契税为买方核心税费,首套90㎡以下1%、90㎡以上1.5%,二套90㎡以下1%、90㎡以上2%;增值税满2年普通住宅免征,未满2年按5.3%征收;个税满5年唯一住房免征,否则按1%或差额20%征收。此外还有住宅维修基金、不动产登记费等,税费以税务评估价为计算基数。
(三)贷款知识:资金杠杆关键
购房贷款分商业贷、公积金贷、组合贷,公积金贷款利率最低、额度有限,商业贷额度高、审批快,组合贷兼顾两者优势。还款方式分等额本息(月供固定,适合工薪族)和等额本金(月供递减,总利息更低,适合高收入人群)。
贷款需征信良好、收入稳定,提供身份、收入、流水、购房合同等材料,提前预审可提高交易效率。
(四)交易流程:安全购房九步走
明确预算与需求,做贷款预审;
正规渠道选房,实地核验房源;
议价签约,明确条款与违约责任;
首付款存入官方监管账户;
提交贷款申请,办理抵押;
缴纳各项税费;
不动产中心办理过户;
银行放款至卖方;
交房验收,结清物业水电费用。
(五)风险防控与资产配置
交易需警惕虚假房源、资金无监管、产权瑕疵、合同陷阱、物业欠费五大风险,坚持走正规流程、用资金监管。
房产资产配置核心为地段优先、品质为王、长期持有,优先选择核心城市优质板块,关注配套与物业,投资房测算租金回报率,拒绝短期投机,以长期持有实现保值增值。
三、未来5年行动指南
(一)从业者行动要点
坚守合规经营,完成资质备案与房源核验;拥抱数字化,用好AI、VR等工具,搭建私域流量;深耕学区房、豪宅、商业地产等细分领域,掌握法律、金融、税务复合技能;拓展全链条服务,绑定长期客户;借力头部平台,实现资源协同发展。
(二)购房者行动建议
理性规划预算,不盲目跟风、不超额负债;优先选择一线、强二线及核心城市群楼盘,避开人口流出的弱势区域;注重房屋品质、物业与配套,选择绿色智慧住宅;坚持长期持有,理性看待市场波动;选择正规中介与专业经纪人,降低交易风险。
结语
中国房地产正从规模扩张转向价值提升,未来5年,合规、专业、数字、服务是行业核心关键词,从业者唯有顺势转型、深耕专业,才能在行业洗牌中立足;购房者唯有掌握知识、理性决策,才能实现资产安全与增值。房地产行业将长期稳健发展,最终成为服务居住需求、创造长期价值。
声明:本文由入驻焦点开放平台的作者撰写,除焦点官方账号外,观点仅代表作者本人,不代表焦点立场。


