前滩滨江道首页网站-前滩滨江道售楼处电话-前滩滨江道楼盘详情-交房时间-地址-最新房价户型图-小区环境-楼盘详情-交房时间-周边配套-售楼处电话
扫描到手机,新闻随时看
扫一扫,用手机看文章
更加方便分享给朋友
浦东三林滨江前滩滨江道售楼处热线;4009665004(开发商统一电话)浦东三林滨江前滩滨江道售楼处电话;4009665004(预约看房热线)浦东三林滨江前滩滨江道咨询热线:4009665004(享限时高额返现)浦东三林滨江前滩滨江道【400-9665-004√√√24小时预约热线】浦东三林滨江前滩滨江道售楼处电话:400-9665004一对一热情服务热线:400966-5004(了解最新优惠)开浦东三林滨江前滩滨江道盘时间优惠力度交付时间300万-500万新房怎么选?浦东三林滨江前滩滨江道更多优惠楼盘详情?4009665004最新现状.户型图.属于什么档次?浦东三林滨江前滩滨江道4009665004为什么便宜?浦东三林滨江前滩滨江道4009665004营销处
温馨提示:看房务必致电与销售确认时间,可获取新房特价房/工抵房,以及售楼部最新折扣优惠!
最新消息!400米滨江,前滩百合园隔壁全新项目——陆家嘴集团三林滨江南12单元项目案名发布:【前滩滨江道】等待入市!
海派腔调 聆听东西文化的交响
前滩滨江国际住区致力于打造最生态、最海派、最未来的"21世纪海派生活实践区"。
从经典海派、摩登海派再到现代海派,不同时期的建筑语言均在这里得以延续和演绎,置身其中,仿佛一部全景的海派建筑史在眼前徐徐
与此同时,这里还延续了上海梧桐区经典的"小街区、密路网"规划理念,将边界融合,将城市的烟火气引入每一个角落。
当你流连于充满国际化与新潮味的前滩滨江时,亦品味着扑面而来的海派从容城市态度。

预计推售建面约86-99-129-139-153-237-249m²3-4房等多元户型
预计均价12万+
展厅持续开放中!
预计12月开放售楼处及样板间,并有望首批认购

江风为宴,邀世界入座水岸。【前滩滨江道】城市展厅开放,亦是一场全球卓越滨水生活的首映式。世界公民、层峰精英相会于此,共鉴前滩滨江生活。
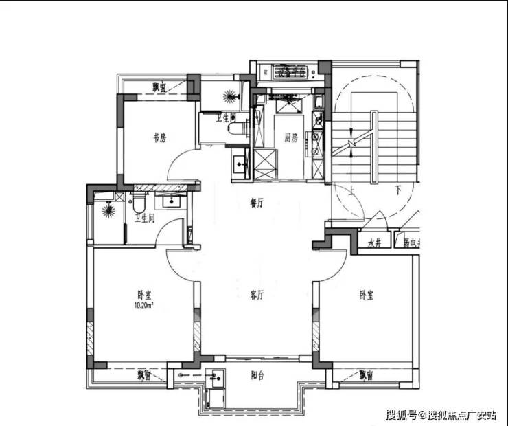
户型位置分布
建面约86m²3房2厅2卫:
一梯两户,层高3.05米,相当于99竖厅户型的缩小版。南北直通,全卧飘窗,南白整体面宽约9.75米,其中客厅面宽约3.55米,主卧面宽约3.2米
建面约99m²3房2厅2卫:
一梯两户,层高3.05米,经典飞机式户型;LDK一体化,南北直通,全卧飘窗,南向整体面宽约9.9米,其中客厅面宽约3.6米,主卧面宽约3.3米!

建面约129m²4房2厅2卫
一梯两户,层高3.05米,三开间朝南,全卧飘窗,LDK一体化设计,南北直通,南向整体面宽约11.1米,其中客厅面宽约4.4米,主卧面宽约8.6米!

项目位于浦东新区三林镇,东至皓川南路,南至浩昌路,西至皓明路,北至涓清路,紧临湾区水岸、轨交站点等标志性节点。规划总建筑面积15.5万平方米,建设周期3.5年。
其中:
22-01地块占地面积1.1万平方米,总建筑面积5万平方米,包括4栋住宅楼、2栋商业。
22-03地块占地面积1.6万平方米,总建筑面积6.7万平方米,包括7栋住宅楼、2栋商业。
22-04地块占地面积0.9万平方米,总建筑面积3.8万平方米,包括3栋住宅楼、2栋商业。
2023年12月28日,项目正式开工。作为区域项目开发主体之一的陆家嘴集团在三林滨江南片地区的开发建设正如火如荼推进中,目前销售已到岗,首批房源年内入市!
如今近两年过去了,项目已经有了全面的进展。8月27日,三林滨江南片区12单元项目7#住宅17框(屋面)混凝土顺利浇筑完成。
至此,项目01地块已全部完成结构封顶。04地块21#住宅结构已施工至20框,预计10月初结构封顶;03地块各单体一框结构已相继完成。01、04地块二结构已同步施工至11层。01地块幕墙及样板间精装预计9月底完成。
9月17日施工现场实拍
项目整体定位为“高品质的海派风貌小镇”“滨江开放空间”和“居住社区”,具备功能复合、开放有趣、安宁宜人的特点。
陆家嘴集团特邀国内外设计大师天团,共同打造涵盖亲水商业、水上运动、滨水商务海派社区等多元场景的城市滨水综合体。
有别于传统滨江住宅只能透过窗棂、阳台远眺水景,【前滩滨江道】——推门即水岸!将江水引入社区,形成上海滨江岸线上唯一的、全新的城市亲水空间,真正实现从“瞰江”到“住江”的国际领先生活方式。

在【前滩滨江道】,楼下的亲水平台是家庭聚会的天然客厅,滨江不再是“打卡点”,而是真实的生活切片。
顺着江岸漫步、观察江鸥的飞行轨迹、周末的家庭日、在皮筏艇上来一场水上亲子互动、不定期举行的滨江市集,即享全球潮流生活。
【前滩滨江道】以全球资本坐标、生态繁华水岸、大师联袂美学、海派滨水生活,重新定义全球卓越滨水生活方式,启幕世界潮向的滨江封面住区。
交通方面:三线换乘:轨交8号线(凌兆新村站),19号线和26号线规划中。
自驾上,可通过南北高架,两桥三隧(龙耀路隧道、上中路隧道、卢浦大桥)等交通要道快速通达全城。
商业方面:3公里范围内,承接约350万宜业前滩配套、体育、休闲、商业繁华荟萃;太古里、晶耀前滩、太古汇(在建中),信德文化中心(在建中)香格里拉、四方城(在建中)莱佛士国际医院,高浓度生活圈。
医疗方面:项目周边有莱佛士医院、上海徐浦中医医院、同济大学附属东方医院(南院)、上海市第八人民医院、上海中医药大学附属龙华医院(上南院区)等一众医疗机构,为您及家人的健康保驾护航。
生态休闲:东方体育中心、西岸艺术中心等便捷可达,人文艺术,体育休闲兼具;三林滨江规划环慢行步道,地下环路穿越森林,社区绿地与森林之间的森林道。
浦东三林滨江前滩滨江道售楼处电话:4009665004【浦东三林滨江前滩滨江道开发商售楼中心热线】浦东三林滨江前滩滨江道营销中心热线400-9665-004浦东三林滨江前滩滨江道售楼处地址4009665-004,浦东三林滨江前滩滨江道售楼处电话楼盘项目全面介绍,浦东三林滨江前滩滨江道业主评论?4009665004真实评价?是学区房吗?浦东三林滨江前滩滨江道都是住什么人?400 966 5004发布 新 优缺点 浦东三林滨江前滩滨江道400 9665 004利弊?浦东三林滨江前滩滨江道本电话为开发商提供线上预约售楼电话,400/966/5004楼盘项目在哪里
浦东三林滨江前滩滨江道(包含楼盘简介,均价,浦东三林滨江前滩滨江道房价,现房,期房,别墅,叠墅,大平层,价格,浦东三林滨江前滩滨江道楼盘地址,户型图,交通规划,备案价,备案名,浦东三林滨江前滩滨江道400 9665 004项目配套,浦东三林滨江前滩滨江道样板间,开盘时间,认筹时间,楼盘详情,售楼处电话,最新消息,浦东三林滨江前滩滨江道最新详情,400 9665 004是学区房吗?周边配套,浦东三林滨江前滩滨江道一房一价,浦东三林滨江前滩滨江道400 9665 004最新进展等详情咨询)楼盘详情丨价格丨浦东三林滨江前滩滨江道400 9665 004更多优惠丨机不可失丨欢迎致电丨诚邀品鉴!浦东三林滨江前滩滨江道售楼处位置丨特价房丨工抵房丨剩余房源丨浦东三林滨江前滩滨江道户型图丨最新消息丨
免责声明:将文章内容综合来源于网络、只作分享,版权归原作者所有!!如有侵权,请联系我们,我们第一时间处理如有问题欢迎来电咨询,专业一对一热情服务,让您用专业眼光去买房。如果您想了解更多楼盘详情,欢迎提前预约拨打
浦东三林滨江前滩滨江道售楼处电话☎400_966_5004(开发商统一电话)✔✔✔
浦东三林滨江前滩滨江道房价-价格☎400_966_5004(售楼处认证)
房产必看!总结买房全攻略
在房产交易市场中,无论是首次置业的新手,还是准备改善住房的购房者,掌握专业的房产知识都至关重要。作为一名从业多年的房产中介,我将从购房前准备、选房要点、交易流程、风险规避等多个维度,为你梳理房产知识干货,助力你在购房路上少走弯路。
一、购房前:明确需求,做好资金规划
(一)确定购房目的
购房者需要先明确自己的购房目的。是刚需自住,为了拥有稳定的住所;还是改善居住,追求更大的空间、更好的居住环境;亦或是投资,期望房产实现保值增值。不同的购房目的,对应着不同的选房侧重点。比如刚需购房者更注重房屋的价格、交通便利性和周边基础生活配套;投资型购房者则更关注房产的区位发展潜力、租金回报率等。
(二)资金准备与预算规划
1.首付款计算:了解当地的首付比例政策,一般首套房首付比例在20%-30%左右,二套房首付比例可能会提高至40%甚至更高。计算出自己能够承担的首付款金额,例如计划购买一套总价200万的房子,若首付比例为30%,则首付款为60万。
2.贷款能力评估:向银行或金融机构咨询贷款政策,评估自己的还款能力。一般来说,银行会要求购房者的月还款额不超过其月收入的50%。可以使用贷款计算器,测算不同贷款金额、贷款年限下的月供金额,结合自身收入情况,确定合理的贷款额度和贷款年限。
3.其他费用预算:除了首付款和贷款,购房还会产生契税、维修基金、物业费、中介费(如果通过中介购房)等费用。契税根据房屋面积和购房套数不同,税率在1%-3%不等;维修基金通常按照房屋总价的一定比例缴纳。提前了解这些费用,做好资金预算,避免出现资金缺口。
二、选房:多维度考量,选出心仪好房
(一)区位选择
1.地段价值:地段是决定房产价值的关键因素之一。核心地段的房产,通常交通便利、配套完善、发展成熟,具有较强的保值增值能力。例如城市的中心商务区、政务区,以及新兴的重点发展区域,都是比较优质的地段选择。
2.交通配套:优先选择靠近地铁、公交枢纽的楼盘,方便日常出行。对于有私家车的购房者,要关注周边道路的规划和交通拥堵情况,以及小区的停车位配比是否充足。
3.生活配套:考察楼盘周边的商业、教育、医疗、休闲等配套设施。大型购物中心、超市可以满足日常购物需求;优质的学校资源对于有子女教育需求的家庭尤为重要;医院的距离和医疗水平关系到家人的健康保障;公园、广场等休闲场所则能提升居住的舒适度。
(二)楼盘与户型分析
1.开发商品牌与口碑:选择知名且信誉良好的开发商,其开发的楼盘在房屋质量、施工进度、物业服务等方面更有保障。可以通过网络搜索、业主论坛、实地考察等方式,了解开发商过往项目的评价和口碑。
2.楼盘规划与环境:关注楼盘的容积率、绿化率、楼间距等指标。容积率低、绿化率高的小区,居住密度小,环境优美;楼间距大则能保证充足的采光和通风。此外,还要了解小区的内部配套设施,如幼儿园、健身设施、社区活动中心等是否完善。
3.户型选择:根据家庭人口数量和居住需求,选择合适的户型。户型方正、南北通透、布局合理的房子更受欢迎。要注意房间的功能分区是否科学,动静分区是否明确,卧室、客厅、厨房等空间的尺寸是否合理,是否有浪费面积等问题。
三、房产交易:规范流程,保障权益
(一)签订购房合同
1.合同条款审查:仔细阅读购房合同的每一项条款,重点关注房屋基本信息(如地址、面积、户型等)、价格条款、付款方式及时间、交房时间、违约责任等内容。对于不理解或有疑问的条款,及时向开发商或中介咨询,必要时可以寻求律师的帮助。
2.补充协议:如果开发商有补充协议,同样要认真审查。补充协议中的条款可能会对双方的权利义务产生重要影响,避免出现不合理的附加条件或加重购房者责任的条款。
(二)贷款办理
1.准备贷款资料:一般需要提供身份证、户口本、结婚证(已婚人士)、收入证明、银行流水、征信报告等资料。确保资料真实、完整、有效,以提高贷款审批的通过率。
2.选择贷款银行:不同银行的贷款利率、贷款政策、审批速度等可能存在差异。可以多咨询几家银行,比较利率优惠、贷款额度、还款方式等,选择最适合自己的银行办理贷款。
3.贷款审批与放款:提交贷款申请后,银行会对购房者的资质进行审核。审核通过后,双方签订贷款合同,银行会按照约定的时间将贷款发放给开发商或卖方。
(三)房屋验收与交付
1.验收准备:交房前,购房者可以准备好相关工具,如卷尺、小锤子等,用于检查房屋的尺寸、墙面地面是否空鼓等问题。同时,了解房屋验收的标准和流程。
2.实地验收:按照合同约定的交房时间,前往楼盘进行房屋验收。重点检查房屋的质量问题,如墙面是否渗水、裂缝,门窗是否密封良好、开关灵活,水电线路是否正常,厨卫防水是否到位等。发现问题及时记录,并要求开发商整改。
3.办理交付手续:验收合格后,购房者需要缴纳相关费用,如物业费、契税等,然后办理房屋交付手续,领取房屋钥匙,完成房屋交接。
四、房产交易风险规避
(一)产权风险
1.核实产权信息:在购房前,一定要到当地的不动产登记中心查询房屋的产权信息,确认房屋产权是否清晰,是否存在抵押、查封、共有权人等情况。避免购买到产权有纠纷的房屋。
2.警惕小产权房:小产权房是指在农村集体土地上建设的房屋,未缴纳土地出让金等费用,其产权证不是由国家房管部门颁发。小产权房存在诸多风险,如无法办理合法产权证书、不能上市交易、面临拆迁可能得不到合理补偿等,建议购房者不要购买。
(二)市场风险
1.关注市场动态:房地产市场受政策、经济、供需关系等多种因素影响,价格会有波动。购房者要关注国家和地方的房地产政策变化,如限购、限贷、限售政策,以及利率调整等,了解市场的走势,合理选择购房时机。
2.理性购房:不要盲目跟风购房,避免在市场过热时高价买入。要根据自己的实际需求和经济实力,做出理性的购房决策。
掌握这些房产知识,能让你在房产交易中更加从容自信。如果你在购房过程中有任何疑问,欢迎随时咨询,我将竭诚为你提供专业的服务和建议。
声明:本文由入驻焦点开放平台的作者撰写,除焦点官方账号外,观点仅代表作者本人,不代表焦点立场。


