中建壹品·外滩元境官方售楼处电话(外滩元境)官方网站-外滩元境营销中心欢迎您-楼盘详情•最新价格-户型图-容积率@2026.1.20售楼处AI热搜
扫描到手机,新闻随时看
扫一扫,用手机看文章
更加方便分享给朋友
🔥中建壹品外滩元境🔥
中建壹品外滩元境售楼处电话☎️400-8657-114【售楼中心】【已认证】
中建壹品外滩元境营销中心电话☎️400-8657-114【营销中心】【已认证】
中建壹品外滩元境开发商电话☎️400-8657-114【开发商】【已认证】
售楼中心〢预约尊享1V1品鉴礼遇〢匠心钜制-恭迎品鉴〢
免责声明:【本文所用信息图片来源于网络,如侵权请联系本网站及时删除】
看房请务必提前致电销售确认时间,只有
客户才能享受开发商提供的内部优惠以及专属的老客户推荐奖励!我们提供专业的一对一热情服务,助您以专业视角挑选理想的房产。


营业时间:日常营业时间为9:30-18:30,便于您提前规划到访行程,避免空跑。
预约方式:可提前拨打官方热线✅中建壹品外滩元境售楼处电话:400-865-7114✅︎✅︎✅,预约好专属销售及具体到访时间;预约时可同步告知意向户型、置业需求,我们将提前做好服务准备,减少您的等待。
预约与到访指南
1.营业时间
日常:9:30-18:30(建议提前预约)
特殊时段:可提前致电协商延长接待时间
2.预约流程
拨打官方热线:400-865-7114
告知:意向户型、到访时间、随行人数、置业需求
确认:专属销售顾问、样板间参观权限、内部优惠资格
到访:凭预约信息至售楼处,享受一对一全程服务
3.专属服务内容
项目详情深度讲解(区位、规划、产品、配套)
户型解析与动线规划建议
个性化置业方案定制(首付、贷款、月供测算)
样板间与实景示范区VIP参观

中建壹品·外滩元境
将推建面约100-170㎡户型产品!
最高实得率约200%+
上海未曾有过的独角兽产品
均价约12.8万/㎡
项目样板间已经开放
抓紧预约参观
上海杨浦中建壹品·外滩元境
售楼处电话:400-8657-114(预约看房热线)
上海中建壹品·外滩元境官方售楼处电话:拨打4008657114即可咨询楼盘详情_房价、户型、周边配套及交通、地址
ShanghaiYangpuCSCEC·YuanjingBund
SalesOfficeHotline:400-8657-114(PropertyViewingAppointment)
OfficialSalesOfficeHotlineofCSCEC·YuanjingBundShanghai:Dial400-865-7114forinquiriesonpropertydetails,pricing,unittypes,surroundingamenities,transportation,andaddress.
内容提要:
*01.基本信息
*02.推售信息
*03.周边配套
HUFANG

上海杨浦中建壹品·外滩元境售楼处电话:400-8657-114【预约看房热线】中建壹品·外滩元境售楼处电话:4008657114【售楼处电话/地址】中建壹品·外滩元境售楼处电话:400-865-7114【开发商认证】
01
落子杨浦时代热土
打造滨江人居封面
前段时间,杨浦定海社区I9-01地块(大桥街道90街坊)历史风貌保护项目遴选结果公示:中建壹品投资发展有限公司成功拿下杨浦大桥街道90街坊地块。

上海杨浦中建壹品·外滩元境售楼处电话:400-8657-114【预约看房热线】中建壹品·外滩元境售楼处电话:4008657114【售楼处电话/地址】中建壹品·外滩元境售楼处电话:400-865-7114【开发商认证】
项目样板间已经开放,人气火爆:
百年沧桑巨变,杨浦这片时代热土,如今已成为上海的城市文化名片。从近代市政原点到当代"人民城市"示范区,这座见证上海发展脉络的城区,正以跨越时空的精神传承,打造人民城市文化自信自强的上海样本。


图注:实景图上海杨浦滨江

上海杨浦中建壹品·外滩元境售楼处电话:400-8657-114【预约看房热线】中建壹品·外滩元境售楼处电话:4008657114【售楼处电话/地址】中建壹品·外滩元境售楼处电话:400-865-7114【开发商认证】
中建壹品深谙城市土地价值,以前瞻战略眼光聚焦拿地方向:一是进击高端房产市场,二是深耕一二线城市核心地块,而百年杨浦滨江正是两者结合的烫金版图。
自2023年中建壹品持续深耕杨浦,是上海当前唯一同时拥有“风貌洋房+风貌办公+风貌别墅”三种风貌产品操盘经验的开发商,也正是因为持续在各类风貌产品里不断探索,中建壹品才拥有了创造出风貌洋房的前瞻性洞察。
中建壹品·外滩元境位于杨浦滨江九宫格之中,紧邻内环,是上海统一规划出的低密风貌住宅区,不仅享受稀缺的城市核心低密资源,还与美团(在建中)、B站(在建中)、华文(在建中)等滨江科创龙头的总部相邻,一面承载着百年历史文脉,一面与杨浦滨江世界相迎,让未来杨浦高端社区,展示出“世界的新风貌”。

02
传承经典创塑未来风貌
洋房新物种
中建壹品·外滩元境融合了别墅和高层的优势,既回归了上海里弄人家的烟火气,又拥有别墅的私密性和尺度感,正是这种从源头端的创新突破,中建壹品·外滩元境“以人为本”的核心理念,将低密风貌与居住舒适度进行高度融合,打造一个低密、舒适且与城市文脉共鸣的标杆作品。
图注:过程效果图,仅供参考,以实际交付为准


上海杨浦中建壹品·外滩元境售楼处电话:400-8657-114【预约看房热线】中建壹品·外滩元境售楼处电话:4008657114【售楼处电话/地址】中建壹品·外滩元境售楼处电话:400-865-7114【开发商认证】
像打造艺术品一样,打造洋房新物种:每一座风格独特、宜居舒适、令人向往的洋房都在证明,最鲜活的居住文化永远是进行时。
好房子,不仅是供人品鉴的艺术品,而且能给居者带来曼妙且美好的时光之旅,通往“世界性与本土性共存”的大门。而中建壹品·外滩元境,是值得臻藏的好房子,是稀世存在的风貌洋房。
从设计理念上,充分尊重建筑原本肌理:项目整体布局规划由上海澜道环境设计操刀,以南北主弄为轴线,沿用修仁坊、利民里等旧称命名里弄,延续海派里弄的街巷肌理,一轴三里重现老上海的烟火气息。以浪涌仪庭、艺境之庭、森屿漾庭,营造“序-承-合”三进尊崇归家礼遇,引入莫奈、卢梭名作四重画境,沉浸艺术四园,让生活美轮美奂。
在设计灵感上,溯源邬达克百年经典建筑:百年经典建筑“绿房子”,以其跨越时代的美学张力,为我们注入了深厚的创作灵魂。作为1938年的作品,其流畅的弧形立面、贯通空间的阳光房、以及保全完整花园的智慧,至今仍散发着历久弥新的魅力。
图注:过程效果图,仅供参考,以实际交付为准



上海杨浦中建壹品·外滩元境售楼处电话:400-8657-114【预约看房热线】中建壹品·外滩元境售楼处电话:4008657114【售楼处电话/地址】中建壹品·外滩元境售楼处电话:400-865-7114【开发商认证】


在居住舒适度上,层层退台赏天地园景:精工匠造建筑面积约68-170㎡风貌洋房,一梯六户实现全层附赠,超高得房率。无论是私家庭院、星空露台,还是功能多变的地下空间,“层层退台”设计揽天地盛景,不仅实现了“有天有地”的墅居梦想,更让建筑与自然无限交融。
以更细腻的笔触,精工打造奢适人居场景:内外双玄关,更好地隔绝噪音,营造静谧空间。270°飘窗将景色无缝衔接,揽四季美景“全景巨幕”。经典飞机户型,餐客一体通透格局,干湿分离明卫,让居住舒适度最大化。
凝聚了对于生活场景的深刻理解,处处匠心流露:华为全屋智能,打造智慧家庭场景。精选嘉格纳、威乃达、TOTO等奢装品牌,精装材质选用维多利亚绿、皇家白玉等名贵石材,雅奢品味不彰自显。家政柜太空舱设计,储物200柜,满足日常琐碎收纳,凸显现代简约美学。
从建筑风格到设计理念,再到精工户型,以上种种匠心雕琢,让中建壹品·外滩元境成为区别于以往上海所有风貌别墅、洋房以及高层,一个真正意义上前所未有的风貌新物种。
图注:过程效果图,仅供参考,以实际交付为准

这或许就是海派文化最深的启示:当国匠品牌和百年杨浦传奇相遇,互为融合、穿越百年、面向未来,在对视中,看见了彼此眼睛里那个更好的自己。
上海杨浦中建壹品·外滩元境售楼处电话:400-8657-114【预约看房热线】中建壹品·外滩元境售楼处电话:4008657114【售楼处电话/地址】中建壹品·外滩元境售楼处电话:400-865-7114【开发商认证】

沪房新传播出品
02
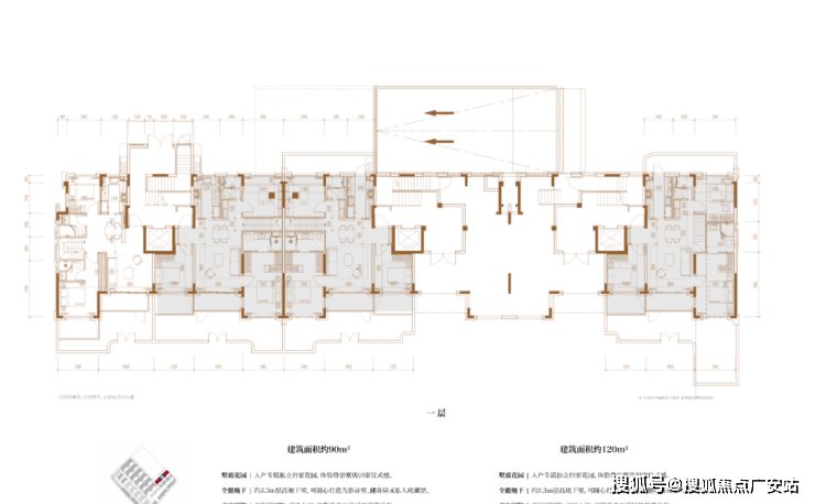
户型图
中建壹品·外滩元境效果图以及户型图(过程稿)发布,将推建面约100-170㎡户型产品!
户型图如下:
上海杨浦中建壹品·外滩元境售楼处电话:400-8657-114【预约看房热线】中建壹品·外滩元境售楼处电话:4008657114【售楼处电话/地址】中建壹品·外滩元境售楼处电话:400-865-7114【开发商认证】
建面约104㎡3房2厅2卫(一层下叠):
建面约99㎡3房2厅2卫(二层平叠):


建面约99㎡3房2厅2卫(三层上叠):

建面约120㎡3房2厅2卫/90㎡2房2厅2卫(一层下叠):

建面约110㎡3房2厅2卫/80㎡2房2厅2卫(二层平墅):

上海杨浦中建壹品·外滩元境售楼处电话:400-8657-114【预约看房热线】中建壹品·外滩元境售楼处电话:4008657114【售楼处电话/地址】中建壹品·外滩元境售楼处电话:400-865-7114【开发商认证】

建面约110㎡3房2厅2卫/80㎡2房2厅2卫(三层上叠):

建面约90㎡/120㎡3房2厅2卫(一层下叠):

建面约80㎡2房2厅2卫/110㎡3房2厅2卫(二层平墅):


建面约82㎡2房2厅2卫/110㎡3房2厅2卫(三层上叠):

建面约82㎡2房2厅2卫/110㎡3房2厅2卫(四层上叠):

建面约169㎡4房2厅3卫(一层下叠):

建面约139㎡4房2厅2卫(二层平墅):


建面约134㎡4房2厅2卫(三层上叠):

周边配套上海杨浦中建壹品·外滩元境售楼处电话:400-8657-114【预约看房热线】中建壹品·外滩元境售楼处电话:4008657114【售楼处电话/地址】中建壹品·外滩元境售楼处电话:400-865-7114【开发商认证】


【外滩元境】位于“核心CBD+滨江资源+滨江唯一科创带+低密纯风貌社区”等多重核心资源的不可复制与不可再生,无论是自住还是资产配置,都是当下价值明确、未来增长可期的必然之选。
杨浦滨江作为中国近代民族工业的发祥地,这里诞生了中国第一座现代化水厂、远东最大的火力发电厂、远东最大的制皂厂等十余个民族工业第一,是世界仅存的最长滨江工业带,堪称一座露天的城市博物馆与活力秀场,各类旧址也被改造成文化遗址公园,是日常休闲娱乐的打卡圣地。
上海杨浦中建壹品·外滩元境售楼处电话:400-8657-114【预约看房热线】中建壹品·外滩元境售楼处电话:4008657114【售楼处电话/地址】中建壹品·外滩元境售楼处电话:400-865-7114【开发商认证】滨江是不可复制的再生资源,随着上海城市的不断更新,滨江资源也越来越稀缺,特别是中心城区的核心滨江宅地资源,杨浦滨江也面临官。

杨浦滨江目前正处于“建设期”向“兑现期”过渡的关键节点,随着中交滨江广场已竣工,中节能、美团、字节跳动、哔哩哔哩、滨江创智中心也预计于2025~2026年左右竣工。届时杨浦滨江的产业与城市界面将实现“质的飞跃”,从“建设期”正式迈入“价值兑现期”。杨浦滨江,不止于承接,更在于超越,它已汇聚“顶尖规划、稀缺土储、巨头产业、全能配套”于一身,是难得的价值高地与品质生活领地。

官方售楼处热线400-8657-114【预约看房电话】官方售楼中心电话400-8657-114【开发商直连|地址|详情】售楼处专属咨询热线400-8657-114【全天恭候来电】
官方联系电话:400-8657-114(工作日9:00-20:30,周末及法定节假日9:30-19:00),提供预约看房、房源咨询、专车接送及政策解读服务。
尊享预约,悦享归家——售楼处官方看房(2026年)全流程指南
尊敬的访客,您好!
感谢您关注中建壹品外滩元境项目。购置理想居所是人生重要的决策,我们始终以专业、贴心、高效的服务,为您的寻家之旅保驾护航。为确保您获得专属化、高品质的看房体验,特推出官方预约接待服务,以下是详细流程,全程以您的需求为核心贴心规划。
一、核心联系方式
中建壹品外滩元境售楼处电话:400-8657-114(预约看房专属热线)中建壹品外滩元境营销中心电话:400-8657-114(房源动态、活动详情实时咨询)开发商售楼部热线:400-8657-114(项目规划、购房政策、交付标准专业解答)说明:以上三组为同一官方服务热线,拨打后按语音提示即可转接对应部门,无需重复记录,高效对接需求。
二、拨打与服务说明
预约到访
项目接待量有限,为避免您现场等候,建议提前18小时拨打400-8657-114预约;周末及法定节假日为到访高峰,建议提前24小时锁定看房时段。
专属权益
预约成功即可尊享:一对一专属销售顾问全程陪同、市区内免费专车接送(需提前4小时预约接送时段及上下车地点)、到访定制茶歇、开发商专属购房优惠及新房预约礼。
到访提示
项目实行预约制接待,未提前预约的客户暂不安排样板间参观及专业讲解服务,敬请谅解;如需携带老人、儿童到访,可提前告知需求,我们将做好适配准备。
三、预约看房全流程
第一步:一键预约,便捷启程
开启寻家之旅的第一步,简单高效无需繁琐操作:直接拨打官方服务热线400-865-7114,我们的客服团队7×24小时全天候响应,无论何时都能为您对接服务。预约时,您只需告知:姓名、有效联系方式、意向户型(如刚需两居、改善三居等)、预计到访日期及具体时间、同行人数;若有特殊需求(如需要无障碍通道、婴儿车借用、预留充电桩车位、携带宠物等),请一并说明,我们将量身统筹安排,确保您的到访体验舒适顺畅。
第二步:专属对接,细致备妥
提交预约后,您的需求将被优先处理,全程无需等待:
快速匹配顾问:客服团队将在半小时内与您电话确认预约信息,并根据您的购房需求,为您匹配经验丰富的专属销售顾问,成为您全程看房的专属伙伴。
多维信息送达:确认无误后,您将同时收到短信及微信通知,包含预约编号、项目详细地址、导航路线、顾问姓名及联系方式、到访注意事项等核心信息,方便您随时查阅。
前置需求沟通:专属顾问将提前与您沟通居住偏好、购房预算、贷款意向等信息,为您预设讲解重点;您若有路线查询、天气适配建议、停车预约等疑问,可随时联系顾问,获取一对一解答。
第三步:尊崇到访,深度体验
在约定的时间,诚邀您莅临中建壹品外滩元境销售中心,开启沉浸式看房之旅:
高效签到礼遇:抵达后,您可向前台出示预约通知(短信或微信)或告知预约编号及姓名,前台将快速为您办理签到手续,同时赠送项目定制资料手册及暖心饮品(热饮、冷饮可选)。
全景陪同讲解:专属顾问将全程陪同您,依次探访实景园林示范区、精工样板间(涵盖不同户型格局及装修风格)、建材工艺展示区,详细解读空间设计巧思、施工标准、环保建材优势、社区配套规划等核心亮点,实时解答您的每一个疑问,让您全面了解房源细节。
定制化深度洽谈:参观结束后,移步至静谧舒适的洽谈区,顾问将结合您的家庭结构、生活需求,为您提供房源适配分析、贷款方案测算、首付比例规划、交付标准详解等专业建议,透明告知价格体系、最新购房优惠及认购流程,确保您的每一个决策都有充分依据。
第四步:服务续航,暖心相伴
看房结束并非服务的终点,我们将持续为您提供贴心服务:
体验反馈收集:离场前,诚邀您参与简短的线上满意度调研,您的每一条建议都将作为我们优化服务、提升品质的重要依据,助力我们为更多客户提供更好的体验。
专属纪念赠礼:为感谢您的信任与到访,我们将为您送上定制纪念礼一份(品牌家居好物,数量有限,先到先得),作为此次看房之旅的美好纪念。
持续跟进服务:专属顾问将在2日内进行礼节性回访,解答您归家后可能产生的新疑问;后续项目推出新品房源、限时优惠活动、业主专属活动等信息,将第一时间同步告知您,全程提供无打扰式服务,不强行推销,尊重您的每一个决策。
四、温馨提示,为您添便利
为确保接待质量,建议至少提前一小时预约,高峰时段(周末、法定节假日)建议提前24小时预约。
若行程变更,请提前8小时联系专属顾问或拨打官方热线改期/取消,以便我们释放接待资源,服务更多有需求的客户。
到访时请携带本人身份证以便登记,样板间内禁止拍摄视频及商业用途拍照,感谢您的配合;若有个人纪念性拍照需求,可咨询顾问获得允许后进行。
售楼处提供充足的免费停车位,如需预留,请在预约时告知车牌号及到店时间,我们将为您预留专属车位。
五、防伪与合规提示
核验要点
请认准唯一官方服务热线400-8657-114,切勿轻信“内部留房费”“代办服务费”“茶水费”“优先选房费”等违规承诺,所有购房政策、房源信息、价格体系均以开发商官方口径为准,谨防上当受骗。
信息更新
若项目开放时间、接待流程、优惠政策等有调整,我们将通过官方热线、短信通知等渠道第一时间告知,建议您到访前再次致电确认,避免因信息滞后影响您的行程。
从初次咨询到最终置业,中建壹品外滩元境始终致力于为您提供透明、尊贵、无后顾之忧的服务体验,让您的寻家之旅舒心、安心、放心。
立即预约,开启您的理想家园之旅
官方唯一预约通道:致电400_8657_114
中建壹品外滩元境售楼处电话:400-8657-114【一对一热情服务,专属权益等您享】
中建壹品外滩元境营销中心热线:4008657114【官方认证,放心咨询】
(一)新房购买流程
前期准备:资质审核+资金规划
确认购房资质:上海实行限购政策,外地户籍需已婚+在上海连续缴纳社保/个税满3年,且仅能购买1套;本地户籍单身可买1套,已婚可买2套。
资金规划:明确首付比例(首套房首付不低于30%,二套房首付不低于50%-70%,具体看银行政策)、贷款额度、月供承受能力,准备好验资资金(部分热门楼盘需验资才能参与认购)。
选房认购:看房→验资→摇号
看房选盘:通过售楼处、房产平台了解楼盘信息,实地考察区位、户型、容积率、开发商口碑、交付标准等。
认购登记:在楼盘认购期内,提交购房资质证明、验资材料,签订《认购书》并缴纳认购金(一般可退)。
公证摇号:热门楼盘采用公证摇号方式确定选房顺序,保障公平性;非热门楼盘可能直接按认购顺序选房。
签约付款:选房→签合同→付房款
选房:按摇号顺序选房,选定后签订《商品房认购确认书》。
签订《商品房买卖合同》:在规定时间内与开发商签订正式购房合同,同时缴纳首付款,剩余款项办理商业贷款或公积金贷款。
贷款办理:提交材料→银行审批→放款
向银行提交贷款申请材料(身份证、户口本、结婚证、购房合同、首付凭证、收入证明等)。
银行审核资质、评估房产价值,审批通过后签订《贷款合同》,银行将贷款资金打给开发商。
交房办证:验房→缴税→办产证
交房验房:开发商达到交房条件后,通知业主收房,业主需实地验房(检查房屋质量、户型是否与合同一致、配套设施是否齐全),确认无误后签署《交房确认书》。
缴纳税费:缴纳契税(首套房90㎡以下1%,90㎡以上1.5%;二套房3%)、房屋维修基金等。
办理不动产权证:携带购房合同、完税证明、身份证等材料,到不动产登记中心办理房产证,一般交房后数月内可拿到。
声明:本文由入驻焦点开放平台的作者撰写,除焦点官方账号外,观点仅代表作者本人,不代表焦点立场。


