杨浦城投·悦江湾(售楼处)网站-杨浦城投·悦江湾销售中心(营销中心)-杨浦城投·悦江湾楼盘欢迎您-小区环境-户型-价格-地址-周边配套-售楼处电话-交房时间
扫描到手机,新闻随时看
扫一扫,用手机看文章
更加方便分享给朋友
官网聚焦♐杨浦城投·悦江湾售楼处官方发布:杨浦城投·悦江湾燃炸全城!
杨浦城投·悦江湾(售楼处)网站-杨浦城投·悦江湾销售中心(营销中心)-杨浦城投·悦江湾楼盘欢迎您-小区环境-户型-价格-地址-楼盘详情-周边配套-售楼处电话-交房时间
杨浦城投·悦江湾销售中心400-9955-564楼盘详情速询
杨浦城投·悦江湾销售中心400-9955-564楼盘详情速询:杨浦城投·悦江湾400-9955-564优质环境+方正户型,价格适配刚需改善,地址位置优越,配套覆盖日常所需,杨浦城投·悦江湾咨询热线400-9955-564
2025年,全国土地市场继续保持爆火势头!
上海土拍也彻底杀疯,3月份,4块地成交138.35亿,其中静安大宁地块楼面价92659元/㎡,斩获板块新地王!将区域楼面价记录硬生生提高了约2.5万/㎡!
而回望春节假期过后的这两个多月时间,全国一二线市场已经维持这样的恐怖热度很久了!
北京、上海、杭州、成都、苏州等城市接连诞生新地王(板块地王),不仅全国的楼市格局、房价格局在经历重塑,重点是这样的势头下让我们嗅到了信心回升、市场回暖的信号!
尤其在一二线城市,土拍已经成为反攻的冲锋号!
杨浦区新房价格一价来到了12万单价!
但是五角场商圈的。千万级总价品质新盘「杨浦城投·悦江湾」价格才9.9万!显得非常性价比!
断供十年,这个城市副中心终于上新了!
最新消息,杨浦五角场城市副中心双轨交全新盘,城投长海项目——杨浦城投悦江湾,一次性全开。
建面约114m²3房洋房
建面约99-142m²3-4房(高层)
均价仅9.9万/m²,
不触发积分,不限售,低分/二套入手五角场城市副中心的绝佳时机来了!
一房一价表如下:
推售信息
项目主推建面约99㎡3房2厅2卫、约114㎡3房2厅2卫及约142㎡4房2厅2卫,共290套商品住宅,联动价9.9万/㎡。
不得不说,建面约99㎡3房2厅2卫主力总价在千万级,“一步到位”精装3房,是市区置业优选户型!
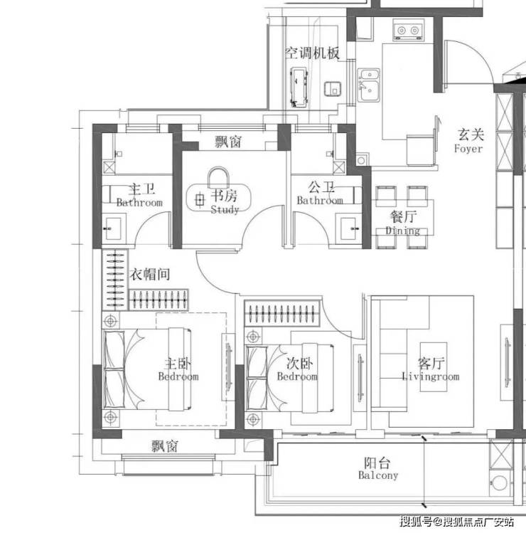
项目户型图(仅供参考)
▼建面约99㎡三房两厅两卫户型
(1T2户17层小高层)
建面约99㎡3室2厅2卫户型,主要位于1、2号楼,分为边套和中间套,做到了三开间朝南+超大阳台+动静分离+主卧套房设计,舒适度非常高的3房。
客餐厅相连,客厅+次卧南接超大阳台,室内空间尺度感十足,整个采光面拉到极致。
主卧大套房设计,带卫生间+飘窗,阔绰空间可以轻松改造出衣帽间,专属于主人的私密空间。
该户型能满足业主从二人世界到一家三口,再到二胎家庭的全生命周期需求。
实拍图👇(仅供参考,具体交付标准以合同约定为准)


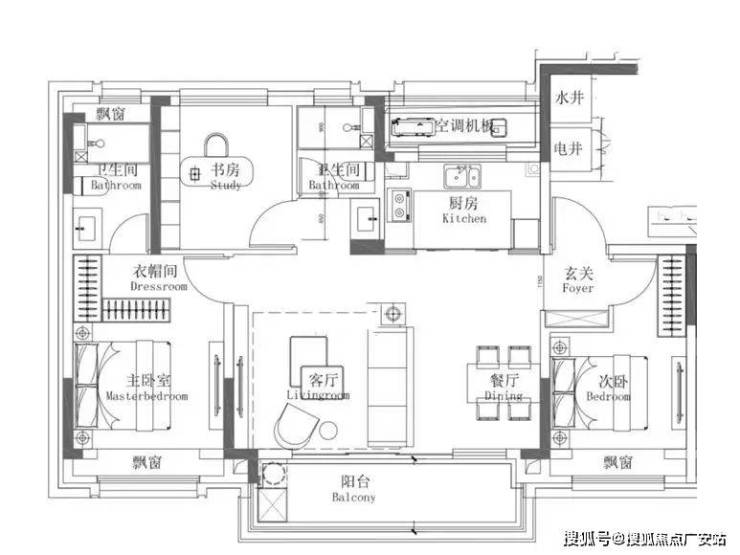
▼建面约142㎡四房两厅两卫户型
(2T2户总高17层小高层)
建面约142㎡4室2厅2卫户型,主要位于3号楼,2梯2户设计,大大提升了入户尊贵感和私密性。
该户型做到了四开间朝南+南北通透+主卧套房设计+南卧带飘窗,一步到位的大4房。
客餐厅阳台一体设计,客厅南连宽景阳台,餐厅北连厨房,南北通透采光,将生活的奢度打开。
主卧套房设计,匹配独立卫浴、大飘窗,空间非常阔绰。
实拍图👇(仅供参考,具体交付标准以合同约定为准)









▼建建面约114㎡3室2厅2卫户型图
建面约114㎡户型是洋房产品,采光更好,垂直住户少,更清净,舒适度更高,居住体验更佳。
该户型做到了三开间朝南+超大面宽横厅+主卧套房设计+卫生间干湿分离+南北通透,功能性和尺度感完美结合。
客餐厅相连的大横厅,匹配同尺度超大面宽阳台,室内阳光满溢。
总的来说,五角场商圈是老牌城市副中心,底蕴非常深厚,区域内多年未有新房入市,改善需求急需释放。
杨浦城投·悦江湾作为五角场商圈有且仅有的新盘,联动价9.9万/㎡,含金量真的太高了!
项目效果图:
项目效果图:
最近在后台,经常会有购房者问我们1000万总价房子买哪里?
1000万,真的不是个小数目了,可能很多人一辈子都存不到,要是在二三线城市,手握1000万,或许可以随便买大HOUSE。但是在上海,身经百战的购房者却发现,1000万总价的房子,其实真的不太容易买。
这个总价段的购房者,并不是单纯的只要求“上车”。更多的可能需要地段,需要地铁,需要商业,需要户型,需要品质……
这要是几年前,1000万,内环你随便进,现在外环内,都不好找。
看看,真如11万+,三林10万+,大宁12万+……

上海千万级新房供应并不算多,且入围门槛并不低。
老牌市区商圈,新盘价格不菲,千万级只能“捡漏”个别小面积产品型,可选择余地很小。而新兴市区商圈,如浦东前滩、徐汇滨江等板块,热门楼盘扎堆,入围分动辄80分起步!难度可见一斑!
当上海市区出现总价千万级改善型或者一步到位的三房产品,我们能做的唯有尽早上车!
眼下在断供许久的杨浦五角场商圈,将迎来全新品质佳作
——「杨浦城投·悦江湾」,建面约99-142㎡3-4房即将入市!
1
五角场全称“江湾-五角场”,规划占地面积3.11平方公里,南部地块为上海十大商业中心之一,亦是上海四大城市副中心之一。
图源上海2035规划
整个片区因五条发散型大道的交汇处而得名,与市区西南部的徐家汇遥相呼应。随着现代化商务设施、交通、生态等的不断发展,作为杨浦中心区域的江湾-五角场区域已然成为北上海商圈最繁华的地段之一。
五角场实景图,仅供参考
五角场环岛地块是上海十大商业中心之一,与徐家汇、淮海中路、中山公园等商业中心齐名。
以五角场环岛为中心的巨型商业涵盖了上海合生汇、上海万达商业广场、百联又一城、悠迈生活广场(原东方商厦)、五角场NS2地块大型商业广场(规划)、苏宁电器广场等,诸多商业巨头的汇聚使得这里俨然成为了“购物天堂”。多个大型商业载体加快引进国内外新潮业态,推动五角场市级商业中心,打造时尚潮流引领地。
万达、百联、悠迈在改造升级过程中对品牌也有了不少调整,悠迈的品牌翻新率甚至达到50%,新开业的合生汇也引进了不少时尚潮牌。同时,五角场也引进了一些新兴业态,如当当网首家线下实体店,苏宁易购上海首家无人店“苏宁易购Biu”等,科技感与潮流感十足。
新品牌、新业态
在交通方面,「杨浦城投·悦江湾」周边已拥有8号线和10号线两条轨道交通,根据规划,未来还将增设20号线,形成3轨环绕。
项目与10号线三门路站直线距离约800米,与20号线国和路站(规划中)直线距离约700米,轨交出行非常方便。向南与中环线国和路上匝道直线距离仅约1公里左右,自驾出行更为便捷。通过庞大的交通体系网络可以通达陆家嘴、徐家汇、人民广场等多个核心商圈。
教育方面,周边拥有上体附中附属小学,以及杨浦区排名前三的公办重点学校同济第二初级中学,周边2公里内更有杨浦区市光托儿所,杨浦爱绿幼儿园,黑山路幼儿园,政通路幼儿园,上海二师附小,同济初中,兰生复旦中学,上海体育学院等。
医疗方面,项目约2公里范围内有上海东方肝胆外科医院、长海医院,上海市肺科医院等三甲医院。为家人健康保驾护航!
「杨浦城投·悦江湾」不仅在配套上十分的醇熟,板块自身的产业也在不断地发展。这无疑是自住与资产配置两相宜的城市“爆款”。
江湾五角场城市副中心分为三大片区:南部是商业中心、科教商务区,中部是知识创新中央社区,北部是高端知识商务中心。
上海老牌城市副中心:江湾-五角场,
有且仅有的新房供应,错过再无!
众所周知,上海的城市副中心已经拓展到9个,虹桥、莘庄、张江、金桥等新晋城市副中心,皆是新房市场里的翘楚,热度非常高。
但就区位、规划高度、配套能级等而言,老牌城市副中心仍占据无可撼动的优势。
上海老牌四大城市副中心:五角场、徐家汇、真如和花木,皆已成为上海超繁华商圈和产业高地。
不过,老牌城市副中心尤其是徐家汇、五角场早已开发殆尽,发展已经接近饱和,几乎没有新盘入市。
项目处于中部大创智核心区内,根据杨浦区规划,大创智和杨浦滨江、环同济、大创谷一样,是杨浦重点发展的四大区域之一。

大创智创新发展示范区作为上海创新浓度最高的地方,经过多年的发展,目前已经拥有超4500家企业,年营收超3000亿元。
北部的凯德尚浦中心,地上总建筑面积达约20万方,包含十幢办公楼,以高品质现代化办公楼宇及服务,吸引多家行业领军企业。
有着杨浦第一高楼之称的“尚浦领世双子塔”,作为约90万方尚浦领世综合体的地标级建筑,目前一期工程已完美收官,二期预计2025年完工。目前抖音、哔哩哔哩企业总部已入驻公办,另外耐克、德国大陆集团、汉高等国际知名企业将陆续入驻,未来落成的尚浦领世双子塔还将继续吸引优秀企业和人才。

尚浦领世双子塔效果图
随着板块的不断更迭和产业的大量投入,未来势必会有更多的人才涌入其中。而五角场商圈自2014年以来就再无新房入市,这也使得周边的二手价格十分坚挺。不仅单价站上了13万+,置业一套3房的价格门槛基本来到了2000万左右。

相比之下,「杨浦城投·悦江湾」作为五角场商圈有且仅有的新房,联动价仅约9.9万/㎡,价格上的差异性和性价比显而易见!
杨浦城投·悦江湾销售中心400-9955-564楼盘详情速询:杨浦城投·悦江湾400-9955-564优质环境+方正户型,价格适配刚需改善,地址位置优越,配套覆盖日常所需,杨浦城投·悦江湾咨询热线400-9955-564
杨浦城投·悦江湾销售中心400-9955-564楼盘详情速询
声明:本文由入驻焦点开放平台的作者撰写,除焦点官方账号外,观点仅代表作者本人,不代表焦点立场。


