华润外滩瑞府售楼处电话:400-8878-824华润外滩瑞府位于外滩核心区域,均价14.78万/㎡,首开119套售罄,热销现象级,主打高端住宅,定位上海黄金三角生活圈。
华润外滩瑞府售楼处电话:400-8878-824
华润外滩瑞府营销中心热线400-887-8824(官方预约看房热线)
虹口内环内嘉兴社区
加推约124-240㎡3-4房
10号线四川北路站直线约400米
前期均价14.78 万/㎡正在认购中
华润外滩瑞府
华润外滩瑞府 售楼处电话:400-8878-824
【售楼处预约热线】(一对一热情服务)
看房请务必致电与销售确认时间,仅预约客户可享受开发商内部优惠,专属老带新推荐奖!

华润外滩瑞府售楼处电话:400-8878-824
华润外滩瑞府营销中心热线400-887-8824(官方预约看房热线)
样板房开放中
项目线上预约看房
售楼处电话400-118-
进入“外滩瑞府”官方预约通道
案场销售会第一时间与您联系
【虹口顶流】「外滩瑞府」约124-240㎡户型揭秘!5飘窗设计+270°景观!外滩一公里必看爆款新房!附官方预约通道!
8.25楼市新政前脚发布,就在这个“金九”,外滩上演了一场现象级的热销。 首开119套房源全部售罄,去化率100%,劲销24.8亿+。

华润外滩瑞府售楼处电话:400-8878-824
华润外滩瑞府营销中心热线400-887-8824(官方预约看房热线)




项目价值体现
外滩瑞府为什么能够这么火?原因就藏在这三重价值密码里——

1、上海买房,地段永远是核心要素!
外滩瑞府地处世界级黄金三角(外滩+陆家嘴+北外滩),直线距离外滩仅1公里,上海资产浓度最为密集的区域,坐拥九龙路滨水空间+亿级风貌带红利,链接全上海的高净值人群!

2、首开价格14.78万/㎡,堪称福利价!
当下上海核心区的房价早已高不可攀,黄浦冲破20万/㎡、北外滩即将站到20万/㎡、虹口下游板块16.6万/㎡,身处 外滩上游1公里生活圈的外滩瑞府, 首开均价仅14.78万/㎡!这种机会,人生大概率就这一次!

总价上,2200万起在老静安、徐汇、虹口等只能买3房,这里却能买到建面约161㎡一步到位的4房产品!

3、产品力问鼎!顶豪级公区和装标+平权化舒适三四房,在市区豪宅中开辟居住新高度
作为华润置地落子上海的巅峰之作,项目邀请全球奢华设计天团:GOA大象设计(代表作杭州桃花源)、渡边智昭(翠湖天地、汤臣一品主创)、泰国TROP事务所、吴滨(无间设计)与李益中等联袂设计,顶豪级定制化基因!
户型设计上,项目建面约161㎡的王炸四房户型几乎无竞品,同时满足尺度平权+总价可控,堪称内环内的绝版产品!
毫无疑问,外滩瑞府是各维度都领先了市区的作品!
项目基础信息
上海这座城市,一直处在生长的状态,几十年来,城市更新如火如荼。新天地、苏河湾,凭借石库门的新生完成城市更新,房价走出了独立行情,成为楼市神话。

【外滩瑞府】位于虹口北外滩板块,项目正处于城市更新的风口之上——约7000㎡风貌底盘,未来将引入社区咖啡馆、瑞府邻里客厅/社区方式综合店、便民综合体、社区会客厅、社区公共服务中心等,完善便民配套,届时城市界面会迎来大焕新!

外滩瑞府的顶级设计天团阵容:
建筑:GOA大象设计(代表作杭州桃花源)以“垂直历史”理念重构海派风貌美学;
公区:渡边智昭(翠湖天地、汤臣一品主创)亲制架空层与会所,植入艺术策展空间;
景观:泰国TROP事务所融合江南水系与爵士乐律动,打造“声景共生”庭院;
室内:吴滨(无间设计)与李益中联袂,以安缦酒店美学定制精装系统;
每一位都是行业内的顶尖力量,共同为项目的高端基因保驾护航!

内外设计全面升级!城市封面焕然一新
垂直历史”理念重构海派风貌美学:外立面上,高层基座溯源石库门建筑精髓,复刻经典拱券符号;中段以通透玻璃幕墙搭配流线型金属线条,营造国际前沿的现代质感;顶部“冠冕”造型,进一步升华昭示性。

内环罕见的“阳光平权”:通过“放射状黄金倾角”楼栋布局, 破解高密度上海城区采光难题——首开2#楼冬至日每户日照达4.5小时以上,全楼栋无“采光死角”;2号楼低区能赏社区花园四季流转,中高区则将陆家嘴天际线、北外滩未来图景尽收眼底。

亿元级印象派园林:邀请国际景观大师PokKobkongsanti操刀,突破市区项目常见的「兵列树阵式」布局,通过建筑楼体的精密偏转,形成罕见的围合式社区形态。把印象派光影化作实景——草坪复刻马奈笔下日光,转角繁花呼应雷诺阿花园,水边光影倒映莫奈睡莲;六大主题花园串联全域风雨连廊,晴雨皆能漫步赏景,艺术从此不是画廊里的画,而是脚下的路、眼前的景。


过程方案示意图,以实际交付为准

过程方案示意图,以实际交付为准

过程方案示意图,以实际交付为准
渡边智昭的“塔尖会所革命”:由汤臣一品设计师渡边智昭打造泛会所,打破“集中式大会所”的刻板:独立“室内外双幕水剧场”带来视觉震撼,四栋塔楼下设四大主题空间。

首开2号楼下的“温莎廊吧”:复古砖红墙面勾勒出海派风情的典雅轮廓,叶脉纹大理石地面则如流水般铺展,让空间具有流动感。

过程方案示意图,以实际交付为准

过程方案示意图,以实际交付为准
约50m面宽的气派门头+酒店式入户大堂:打造艺术格调归家。入户大堂由吴滨设计,呈现“天圆地方”的效果,方正的线条勾勒出空间的规整与大气,与顶部的圆形形成刚柔并济的视觉平衡,让每一次归家都成为一场尊贵的礼遇。

过程方案示意图,以实际交付为准

过程方案示意图,以实际交付为准
全系风雨连廊:项目打造了上海市场罕见的“流线全覆盖 ”连廊系统。这条连廊不仅是遮风避雨的通道,其下方空间更被打造为一座与花园景观交融的“线性美术馆”。让业主归家成为穿梭时空的艺术之旅。

过程方案示意图,以实际交付为准
项目推售详情
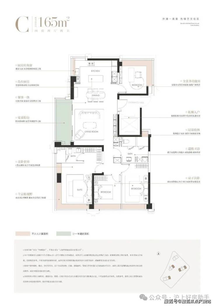
据悉,【外滩瑞府】将加推3号楼,建面约124-240㎡户型即将入市!售楼处样板间已开放!首开建面约124-165㎡3-4房,过会均价14.78万/㎡,已售罄,下期注定又将是众多客户首选产品!



建面约124㎡三房两厅两卫▼


约124㎡「灵阔舒居」:献给都市精英的外滩梦
对于建面约124㎡户型,我的第一感觉是“十年难遇”。当外滩板块的新房面积,基本站上200㎡+,总价普遍顶破4000万关口,外滩瑞府以建面约124㎡(板块五年内难得的小户型),为入住外滩撕开一道珍贵缺口:

主卧套房,关上门就是一个高效而私密的世界,独立的动线让清晨时光从容不迫。独立卫浴、衣帽空间、静谧睡眠区,三角动线让晨起高效优雅。洗漱完毕,转身在衣帽空间挑选“战袍”,从容开启新的一天。

另外,这个户型的“平权次卧”理念真是绝了!给予家庭每位成员同等的空间尊重,这在同面积段产品中相当难得。三间卧室更是将“大”落到实处,面宽近乎均等设计,且全部超过3米,在124㎡级户型普遍存在次卧面宽不足3米的市场现状下,这样的尺度彻底打破了主次之分,没有谁的房间在采光、视野上被妥协,实现了家庭成员居住上的“平权”,孩子的房间能放下书桌与玩具柜。再加上大面宽阳台、5飘窗,实用面积很可观。

南向卧室的设计更是点睛之笔,通过可开可合的移门,与客厅上演空间魔法,实现卧室、开放式书房、客厅延伸区的三重空间形态。
这种设计直击核心改善家庭的痛点:有限面积内满足多元生活场景。当孩子需要活动空间时,移门收起形成阳光活动区;家长居家办公时,半开状态变身通透书房;客人留宿时,闭合即成独立卧室。

而U型厨房的流畅动线,配上嘉格纳全系厨电,加上无处不在的智慧收纳,让生活回归井然有序的优雅。

样板间实拍鉴赏:









建面约165㎡四房两厅两卫▼

约165㎡「光影韵界」:当属2025年内环大平层产品的四房MVP!
如果说124户型是上车外滩的难得机会,那么建面约165㎡户型,则完全是另一种进阶的气场——它是一部真正意义上的“内环MVP”,在功能、视野、尺度、颜值力求每一个维度的全能,让豪宅不止于豪!

功能MVP:作为上海内环“大平层”产品中面积段最小的四房格局,约165㎡户型选择做三卧室朝南,这样让父母和孩子都能享受阳光和尺度!其中两间南向次卧以非承重墙为界,可随心打通为约6m开间的艺术天地,后期随着家庭新成员的加入,可以再重新北向房间相对独立静谧,恰到好处的距离感里藏着尊重。面对三口之家还是三代同堂的需求,这个户型都可以做到无需置换!

视野MVP:站到主卧和北向卧室的L型转角飘窗前,才真正理解了什么叫“与外滩的未来共生”。270°的环幕视野,将陆家嘴的璀璨与北外滩的未来,同时变成你生活的背景画。
更值一提的是,外滩瑞府还做了厨房转角窗!这是「内环少见的视野惊喜」——料理时,余光能瞥见外滩的繁华剪影,这让烹饪体验从此不再是封闭的劳作!

尺度MVP:约9米的宽幕贯通厅连接着超大的阳台,外滩天幕的繁华景色在这里成为日常;南向次卧为孩子的成长预留了足够的想象空间;北向房间面宽约3.1米、进深约4.15米(含约60cm宽景转角飘窗)的空间,彻底跳脱“次卧即局促”的刻板印象。无论是作为长辈房,还是书房,都能享受到与主卧同质的舒适。
开放式中西岛台厨房,彻底打破了烹饪与社交的界限。这里以一字型备餐台为轴,双洄游动线串联洗切炒全流程。这里是家庭的互动中心,也是与窗外风景对酌的诗意场所。搭配嘉格纳全套厨房家电,让烹饪演绎成一场味蕾的艺术!

颜值MVP:四分离卫浴设计,实现独立洗漱台、卫生间、淋浴间、洗衣区互不打扰,晨起高峰也能从容有序。家政空间藏于其中,解放了阳台,让其更多承载尺度观景功能。

爱马仕级的奢皮质感,让豪宅居住每一寸细节都耐得住时间的品味!客厅以意大利头层小牛皮包裹,精致车缝线如奢侈品包袋细节,与大理石台面碰撞出柔与刚的平衡;主卧背景墙编织皮革灵感源自文华东方酒店,靠上去便卸下所有疲惫;主卫台盆柜以柔韧防潮皮革四季恒温,这种高级到每一处的品质真是把外滩瑞府的审美拉到“极致”了!

样板间实拍鉴赏:












建面约195㎡四房三厅两卫▼

建面约240㎡四房两厅三卫▼

装修细节也是顶配,全部选用国际一线大牌:
三大件方面:大金中央空调+地暖两联供,新风系统也采用豪华品牌。
厨房方面:嘉格纳六件套(三眼灶具+油烟机+洗碗机+内嵌冷冻冰箱+内嵌冷藏冰箱+蒸烤一体机)、滨特尔中央净水+中央软水、大金厨房空调。
卫浴方面:杜拉维特台盆、汉斯格雅龙头花洒五金件、伊奈智能马桶。
智能化方面:华为可视对讲+智能化开关面板。

项目周边配套
项目位于虹口内环内的嘉兴社区,侧约200米就是北外滩,边上就是瑞虹新城,项目直线距10号线四川北路站约400米,是今年虹口区非常重要的一个新房供应。

“上海2035”总体规划明确,外滩将作为“全球城市核心功能承载区”,与陆家嘴、北外滩组成“外滩-陆家嘴-北外滩”国际经济、金融、航运“黄金三角”。这一规划不仅定义了上海的空间格局,更将外滩推向全球资本、文化、资源的核心交汇点。外滩瑞府择址于此,对标纽约ONE57、伦敦海德公园一号——非全球资本聚集地不选,非历史与未来叠加区不立,其价值内核正是对“黄金三角”核心资产的精准锁定,为业主提供了“抗周期”的资产保障。

外滩瑞府的“双顶配”,重新定义了“顶豪资源”的标准:
北外滩:依托“3000亿航运引擎”重塑全球经济版图,上港集团、中远海运等巨头云集,掌控全球1/3航运交易;更将崛起480米浦西第一高楼,与陆家嘴上海中心组成“双子星”,彻底改写城市天际线;

音乐谷:位列2025上海十大城市更新片区,与黄浦外滩、老城厢等同为重点。这里保留内环罕见的完整水系(宽15-20米“江南小河道”)及国家级文保单位,未来滨水步行区将贯通“一湾两半岛”,百年里弄变身爵士乐演出空间与独立艺术画廊,滨水市集的霓虹灯与爵士乐交织,突破传统顶豪“资源堆砌”范式,形成“生活为体,音乐为魂”的海派艺文新场景。

样板房开放中
项目线上预约看房
进入“外滩瑞府”官方预约通道
案场销售会第一时间与您联系
华润外滩瑞府
华润外滩瑞府 售楼处电话:400-8878-824
【售楼处预约热线】(一对一热情服务)
看房请务必致电与销售确认时间,仅预约客户可享受开发商内部优惠,专属老带新推荐奖!
华润外滩瑞府售楼处电话:4008878824【售楼中心热线】华润外滩瑞府营销中心热线400-887-8824华润外滩瑞府售楼处地址400-8878-824,楼盘项目全面介绍,本电话为开发商提供线上预约售楼电话,楼盘项目全面介绍(包含楼盘简介,均价,房价,现房,期房,别墅,叠墅,大平层,价格,楼盘地址,户型图,交通规划,备案价,备案名,项目配套,样板间,开盘时间,认筹时间,楼盘详情,售楼处电话,最新消息,最新详情,周边配套,一房一价,最新进展等详情咨询)楼盘详情丨价格丨更多优惠丨机不可失丨欢迎致电丨诚邀品鉴!售楼处位置丨特价房丨工抵房丨剩余房源丨户型图丨最新消息丨免责声明:将文章内容综合来源于网络、只作分享,版权归原作者所有!!如有侵权,请联系我们,我们第一时间处理如有问题欢迎来电咨询,专业一对一热情服务,让您用专业眼光去买房。如果您想了解更多楼盘详情,欢迎提前预约拨打华润外滩瑞府售楼处电话400-887-8824