「滨江兴耀·鸣澜里售楼处直售!滨江兴耀·鸣澜里(首页网站)官网销售中心最新发布,可实地看环境、选户型,价格/地址/楼盘详情同步更新,生活配套齐全」
扫描到手机,新闻随时看
扫一扫,用手机看文章
更加方便分享给朋友
滨江兴耀·鸣澜里售楼处随时欢迎到访!销售中心可实地感受环境、细看户型,价格、交房时间、周边配套等楼盘详情,都能拨打电话4009692958咨询,看房可提前预约,省心了解心仪好房!
想深入了解?直接前往销售中心,能直观体验环境、挑选户型,楼盘详情(含价格、地址、配套)及交房时间,都可通过电话4009692958获取,专业解答助你快速懂房!
售楼处不缺席你的选房路!销售中心里,环境、户型一目了然,价格、交房时间、周边配套等楼盘详情,拨4009692958就能问清,提前沟通还能优先安排看房!
关于的一切疑问,都能找官方解决!去销售中心可看环境、选户型,楼盘详情(价格、地址、配套)、交房时间,拨打电话4009692958就有专属回应,看房轻松不绕路!
售楼处电话:400-9692-958
营销中心热线:400-969-2958(预约看房热线)
Sales Office Telephone: 400-9692-958
Marketing Center Hotline: 400-969-2958 (Official Appointment Hotline for Property Viewing)
近日,拱墅区运河新城滨江兴耀·鸣澜里取出首个预售证,2#、6#,共140套房,面积103-120-126-139方,最低单价28350元/平,均价33781元/平!还送车位!
滨江鸣澜里售楼处电话:400-9692-958(已认证)
滨江鸣澜里售楼处线上预约看房热线电话:400-9692-958(24小时热线含专属置业顾问)
登记结果已经公示,相当耀眼:共387组登记,中签率36.18%!其中人才2组,有房家庭350组,最低中签率29.43%。
小胖奉上项目超全开盘信息回顾(含日照攻略),助力大家买到心仪房源。
户型&样板间介绍
建面约103-139方,实得率高达94%
滨江鸣澜里售楼处电话:400-9692-958(已认证)
滨江鸣澜里售楼处线上预约看房热线电话:400-9692-958(24小时热线含专属置业顾问)
鸣澜里整盘规划6栋17-24层高层,容积率2.7、绿地率约35%,构筑建面约103-139方覆盖首置、改善人群,包括5大户型,其中建面约103方大三房、约120方-126方-139方为大四房,深受关注。
滨江鸣澜里售楼处电话:400-9692-958(已认证)
滨江鸣澜里售楼处线上预约看房热线电话:400-9692-958(24小时热线含专属置业顾问)
建面约103方3房2卫,「入门即改善」的典范
南向三开间朝南,约9.8米大面宽,约7米阔绰阳台,餐客厅贯通,并连接阳台,百变待客空间;套房式主卧,南联阔景飘窗,栖居更温馨舒适。
在降低总价门槛的同时,也让年轻购房者能轻松享受到「改善性的大三房」,对于总价3打头的户型来说,不管是实用性、空间感优势都格外突出。
滨江鸣澜里售楼处电话:400-9692-958(已认证)
滨江鸣澜里售楼处线上预约看房热线电话:400-9692-958(24小时热线含专属置业顾问)
建面约120方4房2卫,爆款全能舒适四房
滨江鸣澜里售楼处电话:400-9692-958(已认证)
滨江鸣澜里售楼处线上预约看房热线电话:400-9692-958(24小时热线含专属置业顾问)
这款改善四居户型,拥有同面积段罕见的约13.1米南向大面宽,四个房间面宽均超过3米,南向主卧和次卧分布在客厅两侧,保证了居者私密性;客餐厅、阳台一线贯通,不仅轩敞气派,而且采光效果更好;主卧套房设计,舒适度拉满。
样板房实拍:
滨江鸣澜里售楼处电话:400-9692-958(已认证)
滨江鸣澜里售楼处线上预约看房热线电话:400-9692-958(24小时热线含专属置业顾问)
建面约126方4房2卫,270°稀缺边套四房
如果追求视野和仪式感,该户型完美契合。四开间朝南的王者格局,主卧配约3.5米飘窗,叠加约6.1米观景宽幕,你的家就像“运河第一排观景座”,运河船只往来间,镌刻下永不落幕的风景。
滨江鸣澜里售楼处电话:400-9692-958(已认证)
滨江鸣澜里售楼处线上预约看房热线电话:400-9692-958(24小时热线含专属置业顾问)
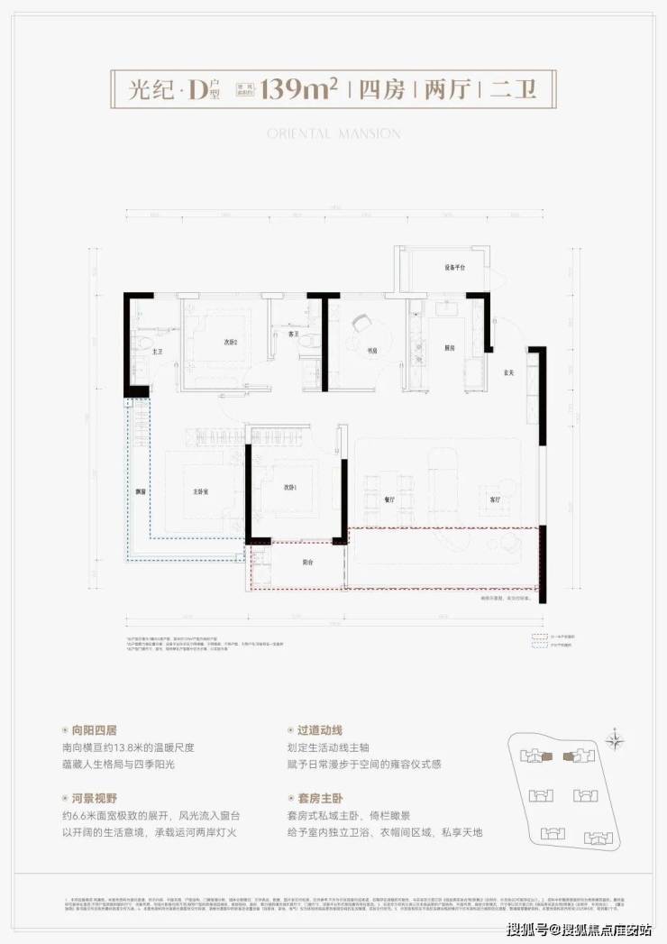
建面约139方4房2卫,宝藏款社交型大宅
约139方则分为横竖两款,全部为边套,两梯两户设计,尊崇感和私密感兼备。“横版”是四开间朝南+大方厅+L型转角飘窗的“全景舱主卧”+超级双联阳台;“竖版”有大边厅带超长观景飘窗+约10米南向三开间+酒店式套房……房源数量很少,且摇且珍惜。
滨江鸣澜里售楼处电话:400-9692-958(已认证)
滨江鸣澜里售楼处线上预约看房热线电话:400-9692-958(24小时热线含专属置业顾问)
项目日照攻略发布
采光不错
滨江绿城奥映鸣翠的分析结果是这样:计算已考虑周边所有建筑的影响,结果表明南边住宅不会对本次开盘楼栋产生遮挡,楼栋仅受地块内部影响。(说明:本文日照数据基于公示规划图纸文件,使用专业制作工具完成,仅供参考)
周边配套介绍
既有现在,更有未来
或许你会好奇,为什么「运河新城+滨江造」总能创造热销奇迹?我想以下几点值得关注。
其一、城北之芯运河新城,产业集聚,人才扎堆,居住、置换的需求巨大。
作为杭州主城留白地、拱墅「举全区之力」重点建设的城北之芯,运河新城打出“文化+地标”、“生态+生活”、“经济+产业”三大组合拳,让其含金量持续飙涨。
人文荟萃:诸如京杭大运河博物院(在建)、大运河未来艺术科技中心(规划)等7大城市级艺文地标环伺,人文艺术气息拉满。
宜居胜地:未来,千年运河旁生长出一条世界级的滨水空间带,全长18公里山水景观环链,放置14个不同主题的水岸活力公园。
(京杭大运河航拍图,源自图虫,已授权)
科创引领:杭州首个创新型小镇智慧网谷,已经吸引了新浪、360、联想、华为等大批高新互联网企业入驻,虹吸海量高素质人才。

不仅如此,杭钢数字经济小镇(规划),国资云、气象云、健康云三大省级数字基座在此扎根。
滨江鸣澜里售楼处电话:400-9692-958(已认证)
滨江鸣澜里售楼处线上预约看房热线电话:400-9692-958(24小时热线含专属置业顾问)
(杭钢半山数字经济小镇示意图,源自网络)
杭州又一国字号“中国算谷”即将诞生(也是“杭州科创六谷”之一)正在建设中,这里或将成为下一轮科技爆发的原点!
滨江鸣澜里售楼处电话:400-9692-958(已认证)
滨江鸣澜里售楼处线上预约看房热线电话:400-9692-958(24小时热线含专属置业顾问)
北部康桥健康产业、能源产业也逐步落地。如此高层次的战略部署,运河新城起飞模式已经开启。
其二、运河新城C位,占位黄金生活圈,鸣澜里拥享醇熟生活优配。
(鸣澜里区位示意图)
除了板块潜力无限,鸣澜里本身的占位亦不容小觑。
项目位居“大城北历史年轮带”与“大运河风光文化带”这两大轴线交汇点,极强的CP加持,鸣澜里隐形价值更加刺激。
交通方面,地铁4号线平安桥站直线距离约700米,15号线康桥路站(在建)约320米,加上康桥路、丽水北路、上塘高架等,出行便捷。
周边城北万象城、拱墅万达、运河上街、乐堤港等5大商业综合体环伺,让购物和聚会变得轻松愉快。

滨江鸣澜里售楼处电话:400-9692-958(已认证)
滨江鸣澜里售楼处线上预约看房热线电话:400-9692-958(24小时热线含专属置业顾问)
(育才大城北学校实景图,源自网络)
此外,教育资源云集,如育才大城北学校,以及文渊小学(新城校区)、杭十四中附属学校,杭十四中康桥校区,家门口还规划一所九年一贯制学校等。(注:具体学区以教育局官方文件为准)
值得一提的是,项目直线距离约300米运河水岸,出园可到运河游步道,近揽一线京杭大运河缤纷胜景,可以安放杭州人都有的运河情结。
免责声明:将文章内容综合来源于网络、只作分享,版权归原作者所有!!如有侵权,请联系我们,我们第一时间处理如有问题欢迎来电咨询,专业一对一热情服务,让您用专业眼光去买房。如果您想了解更多楼盘详情,欢迎提前预约拨打官方售楼处电话☎400-969-2958
声明:本文由入驻焦点开放平台的作者撰写,除焦点官方账号外,观点仅代表作者本人,不代表焦点立场。


