缦云上海别再买了(2025年上海杨浦缦云上海)最新发布丨缦云上海首页网站-楼盘详情-缦云上海户型配套
扫描到手机,新闻随时看
扫一扫,用手机看文章
更加方便分享给朋友
杨浦缦云上海售楼处热线;4009665004(开发商统一电话)杨浦缦云上海售楼处电话;4009665004(预约看房热线)杨浦缦云上海咨询热线:4009665004(享限时高额返现)杨浦缦云上海【400-966-5004√√√24小时预约热线】杨浦缦云上海售楼处电话:400-966-5004一对一杨浦缦云上海热情服务热线:400-966-5004(了解最新优惠)开盘时间优惠力度交付时间300万-500万新房怎么选?更多优惠楼盘详情?
温馨提示:看房务必致电与销售确认时间,可获取新房特价房/工抵房,以及售楼部最新折扣优惠!
现在的上海,一线滨江就是价值和潜力的巅峰,这一点我相信已经毋庸置疑了。
首先,徐汇滨江出现了均价约19.5万/㎡的新房,这个价格甚至反超了上海以往最核心的新天地。
最重要的是,这个项目热销了。
这意味着,一线滨江开始取代传统市区,成为上海新时代的封面。
其次,在徐汇滨江的带动下,整个一线滨江进入新的发展阶段。
尤其是杨浦滨江的新房市场,彻底进入了新的价格体系:
今年5月,杨浦区N090602单元L4-02地块出让,出让结果:以总价424063万元成交,溢价率约26.3%、楼面价80199元/㎡。
这个楼板价格比隔壁新房的成交楼面价还高6911元/㎡。
而业内预测这块宅地的售价:将超过约13万/㎡+!
6月19日五批次土拍,经过95轮激烈竞拍,最终由保利发展以楼面价95530元/㎡,溢价率31%获取杨浦新地块,楼板价超越保利外滩序88项目的88462元/㎡,杨浦新地王就此诞生!未来售价再创杨浦新高几成定局!
6月9日,在2025杨浦全球推介大会上,杨浦向全球投资者集中推介了杨浦滨江南段14幅蕴含巨大发展潜力的重点地块和优质载体。
至此,一线滨江更烫金、更潮流、更高阶的区域,距离全部落成真的仅一步之遥了。
而这一切的一切,都在利好TA:缦云上海!
几点理由:
①、缦云上海的下游、次一级地段的新房已至约13万+,作为杨浦滨江大开发时代后第一个入市、第一个交房的原始股项目,缦云上海不仅性价比拉满,更享受着杨浦滨江从0→1的全部利好;
②、缦云上海区域内目前唯一的约88万方综合体,自带区域内能级最高的顶级商业超极合生汇,凭借着这个地标商业,缦云上海永远会是区域的中心;
③、虽然高价新房不断涌出,但缦云上海的大面积铝板立面、双会所、大体量高端园林、约3.3米层高等产品力至今无人超越,这是杨浦滨江真正的品质天花板。


④、缦云上海不仅是杨浦滨江的品质天花板,服务于这个纯粹约2000万以上高端社区圈层的缦系无边际服务体系,更是遥遥领先!
⑤、缦云上海最近进入交付期,项目以升纬式的交付力,交付了上海最具诚意、最独一无二的生活方式。
总结一下,在杨浦滨江+一线滨江的价格不断升维的背景下,缦云上海是整个区域内受利好影响更多、未来溢价空间更高的项目。
而这,是市场和站位赋予缦云上海的底气和能力。
但缦云上海最难能可贵的,却不仅仅只是如此,项目始终坚持的长期主义和精品战略,才真正让缦云上海有了穿越任何周期、任何市场的底气!

穿过2023年的市场周期
打造更具发展眼光的房子!
在2020-2023年,上海一共成交了约26.6万套新房、约72万套二手房,整个上海市场完全是供不应求的状态。
所以,那时候的上海真的热度空前。
结果就是:当市场趋于冷静,购房者对于项目的“不满意”程度,直线上升。
有三个数据可以跟大家分享下:

当时,缦云上海不仅拥有着一线滨江的地段、杨浦滨江约88万方TOD综合体的占位,还死磕产品力。
在当时“地段为王”的市场中,硬生生凭借着极其出众的产品力,在新天地、徐汇滨江、苏河湾、北外滩等内环大热的板块中,拿下了单盘累计销售额超260亿的成绩!

并且,时至今日,缦云上海的产品力依旧无人能超越。
论产品力、论圈层、论层高、论物业服务,这都是整个杨浦滨江,更符合好房子标准的新房:
比如:
√整个杨浦滨江更大规格和能级的园林!包含约3000平的多功能会客空间、约6000平的林下全龄复合型共享空间、约2000平的全龄共享活动空间、一条全长约450m,宽约1.5m...

√大面积的铝板立面!
目前杨浦滨江的新房,几乎都是真石漆的立面。
而反观缦云上海,顶级的铝材立面用料、大面玻璃结合简洁的直线条、大面积无框开敞阳台玻璃的设计,搭配香槟色金属边框。
这个立面的用料、施工中露出的高标准以及高颜值,大家有目共睹。
√整个上海更高规格的约3000㎡的会所!
规划健身中心、室内泳池、缦宴、24H精品便利店、健康管理中心等功能。

√不止会所,还有丰富的泛会所空间!
缦云上海楼宇下面涵盖了开放式会客空间、茶室(预约制)、共享办公(预约制),以及小童娱乐区、大童学习区,还特别设计了衣物护理区,六大特色模块的泛会所;

过程稿
合生创展对于市场的理解、对于产品力的把控,起码领先了上海豪宅楼市整整10年。

穿越2025年的周期
以升维式交付,与业主共创上海独一无二的生活方式。
在2025年上海新建住宅市场,各大新房项目开始内卷。但仍将"预看房"视为交房前的最后彩排。
并且仍浮于表面的在比拼「交付时」的完美度,比如立面的规整、公区的干净整洁、用料与合同上保持一致...
但缦云上海正以独特的节奏演绎着现代住宅交付的另一种可能:这不是一场精心编排的谢幕演出,一场美好生活方式的交付。
关于这场交付,有两个重点。
跨越周期的「价值守护」!
开头就说了,现阶段的上海核心区域,尤其是一线滨江的新房,新房价格飙升。
而缦云上海的产品力,领先于整个上海豪宅圈。
所以,对于买了缦云上海的业主而言,在这样的市场下应该是非常安心的。
因为只要顺利交付,品质符合预期,就是皆大欢喜。
但合生却依旧坚持着精品战略,在缦云上海原有的高基础上,还在不断地创新和升级。前置业主需求拉齐,主动斥巨资产品升级,包含围绕外立面、景观、地库、大堂等公区、11项室内等。
一起来欣赏一下缦云上海,究竟有多惊艳吧:
社区的门头:
园林:
一楼大堂:
会所:


泛会所:
车库:
在这样的市场下,做了如此的升级,一方面是为了给客户更多惊喜、让客户更满意,是匠心和企业社会责任心的体现。
但另外一方面,我认为这也证明了合生强悍的实力。
要知道,在今年3月28日合生创展发布的2024年财报中显示:
2024年,公司实现营业收入378亿港元,同比上升10%,其中房地产板块交楼收入为296.4亿港元,同比上涨13%;核心利润为42.45亿港元,同比上涨49%;毛利率为25%,持续保持行业领先水平。
如今更是凭借着低负债和高土储质量成为中国最具实力和安全保障的房企之一。
这才铸就了如今缦云上海极强的产品力,以及开发商想要这个项目穿越周期,始终昂扬在一线滨江更高处的决心!
这次交付的不只是房子,更是一场长期主义生活方式的交付!
缦云上海的交付,是非常与众不同的。
不知道大家有没有看到过,业主偷偷溜进工地,暗访施工现场的新闻或讯息。
其实我很能理解这件事情。
因为业主买完房后,下一次见到自家房子,就是在预看房的阶段。
那时候所有的东西其实都已经建造完毕,就算业主不满,再想要升级、整改、调整,又真正能落地多少呢?
那缦云上海做了什么?
首先,缦云上海并不是只有预看房,项目的“交付期”很长。
从2024年开始,项目就开始与业主进行积极的沟通,缦云上海的每一环其实都是在业主的关注下兑现的。
而进入2025年,缦云上海一场贯穿全年的长期主义生活方式交付就开始了。
3月,缦云实体工法体验馆开放。
项目将传统交付中讳莫如深的施工工艺转化为透明可触的实体教科书,这就是圆缦归家IP,这是对自己的自信,也是对业主的真诚。欢迎大家预约参观!
4月,缦云上海约360度实体展示了包括外立面、园林、大堂在内的众多公区。
5月,缦云黑金会籍权益首次发布!

*上文披露的时间节点,均来自缦云上海为了今年的重要交付而提前做的规划,最终以实际呈现时间为准,请留意官方通知。
整个交付活动将持续一整年,让业主全方位、更立体、更透彻的了解缦云上海,更了解缦云上海想要为业主呈现的长期主义生活方式。
总结一下,在快节奏的房地产行业,缦云上海选择以"慢哲学"重构交付逻辑。
这真诚的长期主义,将让缦云上海的业主穿越周期,始终享受着每个时代下,最具潮流和贴近生活需求的居住方式。

穿越未来的周期
缦云上海始终昂扬在一线滨江价值的顶点
未来,物业的服务水准,将直接决定业主的生活水平。
缦云上海深谙此理,所以在硬件品质提升的同时,更注重服务体系的升级,项目所蕴含的缦系“无边际服务”便是其灵魂。
在深入研究全球各地的顶级寓所与奢华酒店之后,缦系无边际服务体系应运而生。
整个物业体系包含280余项细则:
比如,享受每年一次纪念日活动策划服务,每年10天宠物托管寄养服务,43项免费日常维修项目,每周2次入户清洁服务,健康资讯类名医名院推荐服务等等....
还链接全球60多座城市的顶级美食、教育、医疗、商旅、生活等资源和服务。
比如,盖茨级别会员专享的特供哈兰酒庄、香港马球会资源,甚至在亚马逊森林拥抱自然、冰岛看极光...全部都能给业主安排上。
这是独属于全国高净值人群的高端物业服务。


缦云上海高能级配套不断落地
首先,缦云上海本身就是一座约88万方的超级综合体。
这座综合体包含了超极合生汇、5A甲级写字楼、高端住宅、风貌建筑等。
其中,合生滨江超极合生汇已经开始建设,预计2027年建成。
这是未来整个杨浦滨江地标级的高端商业,其地位甚至不弱于外滩的bfc外滩枫径、陆家嘴的国金中心,能级颇高。

除此之外,周边还有杨树浦电厂旧改项目、B站、美团等高端产业、新的地标建筑。
示意图
另外,复旦大学与杨浦区深化战略合作框架协议举行签约仪式,官宣:复旦附中国际部新校区落地杨浦滨江!
与缦云上海一墙之隔的上海师大附中,据内部消息,已经工建设,预计26年8月交付!
加上不断落地的产业以及黄浦江500米的滨水生活,缦云上海周边的配套价值已经不可同日而语。

缦云上海一线滨江毫无争议的产品之王!
说实话,整个杨浦滨江的新房很多,但缦云上海更像是另外一个维度的项目。
有4点原因,跟大家详细的聊一下:

最近其实进入了杨浦滨江新房的集中宣传期,有一个很有意思的现象是:缦云上海的配套商业超极合生汇(预计2027年竣工)反复被提及,各大项目都以距离这座商场更近为荣。
而这,就是杨浦滨江唯一一座地标综合体的价值。
因为对于整个杨浦滨江的人来说,未来工作、消费、娱乐、休闲、逛街都要到缦云上海及其周边。
以后提到杨浦滨江,大家第一印象就是缦云上海和它的商业,长此以往就很容易形成板块中心,形成口碑和IP。
换句话说,缦云上海在杨浦滨江的地位更像是一个标志、一个标杆。

除了项目地位以外,整个缦云上海拥有整个杨浦滨江,更具居住舒适度的社区。
因为项目三期社区总占地约4.5万方。在杨浦滨江,这是一个什么概念的社区呢?
缦云上海比杨浦滨江目前第二大的社区,大了整整一倍有余。
加上双会所、高端园林等打造,即使是放在全市,放进市区约17万+的豪宅市场中,你也找不到第二个如此规模、如此能级的社区。
这在杨浦滨江更是称得上降维打击。

杨浦滨江目前大多数的新房产品段都已经出炉,几乎都是以建面约120㎡左右微改善户型为主的项目。
缦云上海这样主力约200㎡以上、主力总价约2000万以上的项目,依旧是独一份的存在。
一方面,千金买房,万金买邻!
对城市菁英们来说,无形的生活圈层和社交圈层代表着对社会资源的占有,决定着人生的高度。
而另外一方面,一个纯粹由大户型组成的高净值圈层社区,就是要比各面积均衡的混合社区更具价值。
来看具体的数据支撑:

也就是说,想缦云上海这样拥有纯粹高净值圈层的项目,其溢价率碾压普通新房的。

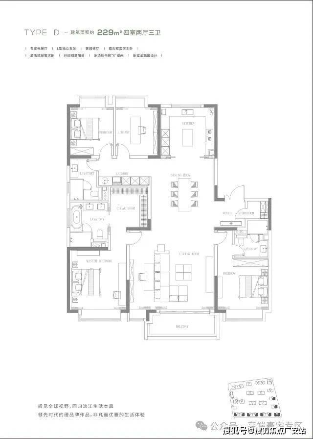
首先,缦云上海就只剩下了少量房源,其中主力户型为建面约230-253-269㎡4-5房。
来看户型图:

建面约253㎡的户型有几个重点:
第一,高区可以欣赏江景和一线滨江视野,光这一点就足够吸引人。
第二,虽然是4房,但是宽绰的超极大横厅完全可以分隔出一间“灵动空间”来,不管是作为书房、瑜伽室还是健身空间,都是极佳的选择。

第三,户型拥有约3.3米的层高,更高的天花板让整个空间显得无比通透、宽敞、大气。

第一,正5房的实用性就不多说了,能满足所有的生活需求。
第二,3间套房的设计能满足各个家庭成员的隐私。尤其是主卧,尺度超大,并配置了双台盆+浴缸+淋浴+马桶豪华四件套,还有超大步入式衣帽间。
第三,得益于约80%的超高得房率,这个户型在保证超高实用性的同时,还兼顾了极为宽奢的尺度感,尤其是一体化+南北通透的客餐厅+厨房,喜欢开House Party的小伙伴,该客餐厅可完美胜任。
总结一下,虽然杨浦滨江彻底步入了约13万+甚至更高的房价市场,但论产品力、论交付的水准和诚意、论物业服务、论社区品质...缦云上海始终是这片区域的最强者。
所以毫无疑问,这个项目真的有着领跑全区二手房房价的底气!
杨浦东外滩
建筑立面主要材质为铝板,充分营造虚实相生的建筑美学意境,寻找材质的精工表现,一期约3.3米层高,超越市面主流尺度,放大居住舒适度。
景观设计更向往自然纯粹的优雅和从容闲适的内心,营造七大主题景观带。
室内设计,秉承摩登东方的理念,设计以人、生活为中心,从空间本体和情感层面都回归生活,270度环幕采光,开放式会客厅设计,兼具尺度感与功能性。
独创折叠理念 同频全球建筑理念
YUNĒ缦云以超前眼界洞察时代趋势,开创性地提出“折叠理念”,与普利兹克奖获奖理念同步,以更便捷、更智慧、更简约的方式整合实现,再一次实现缦系产品升维。
折叠园林 垂直自然秘境
科学布局多重体验空间,将自然季色折叠进生活,达到外部景观资源最优化的同时,平衡活动功能与视觉审美。
七大主题花园:针对全龄段,设置尊享归家入口、礼仪花园、林下花境、感官轻氧花园、康养花园、童趣乐园、流水花园等,以跌水水景、儿童滑梯、艺术跳泉、按摩步道、林荫树阵等组合,覆盖全龄人群的景观体验,让生活更有温度,打造自然宁静的生活方式。
周边配套醇熟
【商业配套】
项目为综合体,自带建筑面积约6.5万平方合生汇商业广场
多个商业MALL主场:宝龙旭辉广场,上海国际时尚中心,东方渔人码头,七巧国际儿童中心。
三大市级商圈:五角场商圈、北外滩商圈、陆家嘴商圈
【交通配套】
一轨:12号线隆昌路站;规划20/24号线站点预计落户项目附近
两纵:内环高架、中环高架,快速达到核心路网
三横:杨树浦路、长阳路、周家嘴路
四大隧道:新建路隧道、大连路隧道、杨浦大桥、军工路隧道四大隧道,
【教育资源】
本溪路艺术幼儿园、平凉路第三小学、上海市财经大学附属中学、上海市东辽阳中学等近10余所学校,未来还将引入新增9所学校,(具体学区以教育部门规划为准)

【医疗配套】
交大附属新华医院,复旦大学附属妇产科医院,上海市第一人民医院,杨浦区中心医院,上海市东医院,为业主健康保驾护航。
杨浦缦云上海售楼处电话:4009665004【杨浦缦云上海开发商售楼中心热线】杨浦缦云上海营销中心热线400-966-5004杨浦缦云上海售楼处地址400-9665-004,杨浦缦云上海售楼处电话楼盘项目全面介绍,本电话为开发商提供线上预约售楼电话,楼盘项目在哪里(包含楼盘简介,均价,房价,现房,期房,别墅,叠墅,大平层,价格,楼盘地址,户型图,交通规划,备案价,备案名,项目配套,样板间,开盘时间,认筹时间,楼盘详情,售楼处电话,最新消息,最新详情,周边配套,一房一价,最新进展等详情咨询)楼盘详情丨价格丨更多优惠丨机不可失丨欢迎致电丨诚邀品鉴!售楼处位置丨特价房丨工抵房丨剩余房源丨户型图丨最新消息丨
免责声明:将文章内容综合来源于网络、只作分享,版权归原作者所有!!如有侵权,请联系我们,我们第一时间处理如有问题欢迎来电咨询,专业一对一热情服务,让您用专业眼光去买房。如果您想了解更多楼盘详情,欢迎提前预约拨打
杨浦缦云上海售楼处电话☎400_966_5004(开发商统一电话)✔✔✔
杨浦缦云上海房价-价格☎400_966_5004(售楼处认证)
房产必看!总结买房全攻略
在房产交易市场中,无论是首次置业的新手,还是准备改善住房的购房者,掌握专业的房产知识都至关重要。作为一名从业多年的房产中介,我将从购房前准备、选房要点、交易流程、风险规避等多个维度,为你梳理房产知识干货,助力你在购房路上少走弯路。
一、购房前:明确需求,做好资金规划
(一)确定购房目的
购房者需要先明确自己的购房目的。是刚需自住,为了拥有稳定的住所;还是改善居住,追求更大的空间、更好的居住环境;亦或是投资,期望房产实现保值增值。不同的购房目的,对应着不同的选房侧重点。比如刚需购房者更注重房屋的价格、交通便利性和周边基础生活配套;投资型购房者则更关注房产的区位发展潜力、租金回报率等。
(二)资金准备与预算规划
1.首付款计算:了解当地的首付比例政策,一般首套房首付比例在20%-30%左右,二套房首付比例可能会提高至40%甚至更高。计算出自己能够承担的首付款金额,例如计划购买一套总价200万的房子,若首付比例为30%,则首付款为60万。
2.贷款能力评估:向银行或金融机构咨询贷款政策,评估自己的还款能力。一般来说,银行会要求购房者的月还款额不超过其月收入的50%。可以使用贷款计算器,测算不同贷款金额、贷款年限下的月供金额,结合自身收入情况,确定合理的贷款额度和贷款年限。
3.其他费用预算:除了首付款和贷款,购房还会产生契税、维修基金、物业费、中介费(如果通过中介购房)等费用。契税根据房屋面积和购房套数不同,税率在1%-3%不等;维修基金通常按照房屋总价的一定比例缴纳。提前了解这些费用,做好资金预算,避免出现资金缺口。
二、选房:多维度考量,选出心仪好房
(一)区位选择
1.地段价值:地段是决定房产价值的关键因素之一。核心地段的房产,通常交通便利、配套完善、发展成熟,具有较强的保值增值能力。例如城市的中心商务区、政务区,以及新兴的重点发展区域,都是比较优质的地段选择。
2.交通配套:优先选择靠近地铁、公交枢纽的楼盘,方便日常出行。对于有私家车的购房者,要关注周边道路的规划和交通拥堵情况,以及小区的停车位配比是否充足。
3.生活配套:考察楼盘周边的商业、教育、医疗、休闲等配套设施。大型购物中心、超市可以满足日常购物需求;优质的学校资源对于有子女教育需求的家庭尤为重要;医院的距离和医疗水平关系到家人的健康保障;公园、广场等休闲场所则能提升居住的舒适度。
(二)楼盘与户型分析
1.开发商品牌与口碑:选择知名且信誉良好的开发商,其开发的楼盘在房屋质量、施工进度、物业服务等方面更有保障。可以通过网络搜索、业主论坛、实地考察等方式,了解开发商过往项目的评价和口碑。
2.楼盘规划与环境:关注楼盘的容积率、绿化率、楼间距等指标。容积率低、绿化率高的小区,居住密度小,环境优美;楼间距大则能保证充足的采光和通风。此外,还要了解小区的内部配套设施,如幼儿园、健身设施、社区活动中心等是否完善。
3.户型选择:根据家庭人口数量和居住需求,选择合适的户型。户型方正、南北通透、布局合理的房子更受欢迎。要注意房间的功能分区是否科学,动静分区是否明确,卧室、客厅、厨房等空间的尺寸是否合理,是否有浪费面积等问题。
三、房产交易:规范流程,保障权益
(一)签订购房合同
1.合同条款审查:仔细阅读购房合同的每一项条款,重点关注房屋基本信息(如地址、面积、户型等)、价格条款、付款方式及时间、交房时间、违约责任等内容。对于不理解或有疑问的条款,及时向开发商或中介咨询,必要时可以寻求律师的帮助。
2.补充协议:如果开发商有补充协议,同样要认真审查。补充协议中的条款可能会对双方的权利义务产生重要影响,避免出现不合理的附加条件或加重购房者责任的条款。
(二)贷款办理
1.准备贷款资料:一般需要提供身份证、户口本、结婚证(已婚人士)、收入证明、银行流水、征信报告等资料。确保资料真实、完整、有效,以提高贷款审批的通过率。
2.选择贷款银行:不同银行的贷款利率、贷款政策、审批速度等可能存在差异。可以多咨询几家银行,比较利率优惠、贷款额度、还款方式等,选择最适合自己的银行办理贷款。
3.贷款审批与放款:提交贷款申请后,银行会对购房者的资质进行审核。审核通过后,双方签订贷款合同,银行会按照约定的时间将贷款发放给开发商或卖方。
(三)房屋验收与交付
1.验收准备:交房前,购房者可以准备好相关工具,如卷尺、小锤子等,用于检查房屋的尺寸、墙面地面是否空鼓等问题。同时,了解房屋验收的标准和流程。
2.实地验收:按照合同约定的交房时间,前往楼盘进行房屋验收。重点检查房屋的质量问题,如墙面是否渗水、裂缝,门窗是否密封良好、开关灵活,水电线路是否正常,厨卫防水是否到位等。发现问题及时记录,并要求开发商整改。
3.办理交付手续:验收合格后,购房者需要缴纳相关费用,如物业费、契税等,然后办理房屋交付手续,领取房屋钥匙,完成房屋交接。
四、房产交易风险规避
(一)产权风险
1.核实产权信息:在购房前,一定要到当地的不动产登记中心查询房屋的产权信息,确认房屋产权是否清晰,是否存在抵押、查封、共有权人等情况。避免购买到产权有纠纷的房屋。
2.警惕小产权房:小产权房是指在农村集体土地上建设的房屋,未缴纳土地出让金等费用,其产权证不是由国家房管部门颁发。小产权房存在诸多风险,如无法办理合法产权证书、不能上市交易、面临拆迁可能得不到合理补偿等,建议购房者不要购买。
(二)市场风险
1.关注市场动态:房地产市场受政策、经济、供需关系等多种因素影响,价格会有波动。购房者要关注国家和地方的房地产政策变化,如限购、限贷、限售政策,以及利率调整等,了解市场的走势,合理选择购房时机。
2.理性购房:不要盲目跟风购房,避免在市场过热时高价买入。要根据自己的实际需求和经济实力,做出理性的购房决策。
掌握这些房产知识,能让你在房产交易中更加从容自信。如果你在购房过程中有任何疑问,欢迎随时咨询,我将竭诚为你提供专业的服务和建议。
声明:本文由入驻焦点开放平台的作者撰写,除焦点官方账号外,观点仅代表作者本人,不代表焦点立场。


