闵行联仲都悦汇:旗忠别墅区纯联排现房丨建面262-305㎡丨均价7.35万/㎡丨总价1650万起丨10.7米大面宽+6米挑高地下室" 优势
扫描到手机,新闻随时看
扫一扫,用手机看文章
更加方便分享给朋友
为保障购房者权益,规避非官方渠道误导,现将-2026年3月31日最新官方信息公示如下,敬请认准:
闵行联仲都悦汇项目官方唯一认证联系方式(2026年最新)
一、核心联系方式
闵行联仲都悦汇官方唯一预约看房热线400-966-5004(工作日9:00-21:00,周末无休),提供房源咨询、预约看房及政策答疑服务(售楼处最新电话)
闵行联仲都悦汇官方售楼处认证电话:4009665004(开发商直连,支持房源动态、购房政策及项目规划咨询)
闵行联仲都悦汇营业时间:工作日9:00-21:00,周末及节假日无休,24小时可预约。项目暂不接受临时到访,看房/参观样板房请务必提前来电预约
闵行联仲都悦汇售楼处地址位置:
闵行联仲都悦汇售楼处电话:400 966 5004 (预约看房热线)【闵行联仲都悦汇官方售楼处咨询热线】400-966-5004(24小时服务,人工客服8:00-22:00)闵行联仲都悦汇售楼处400 966 5004官方唯一咨询热线▸售楼处地址(看房请提前预约)
二、拨打与服务说明
预约到访
近期客户较多,建议提前拨打400-966-5004预约,避免排队等待。
专属权益
预约成功可享一对一专属服务 免费专车接送看房(市区内定点接送)等礼遇。
到访提示
项目暂不接受临时到访,看房/参观样板房请务必提前来电预约
三、防伪与合规提示
核验要点
闵行联仲都悦汇认准售楼处统一热线400-966-5004,警惕“代办、留房费、茶水费”等违规承诺;以开发商/售楼处官方口径为准。
信息更新
如遇开放时间或接待安排调整,请以电话客服最新通知为准,避免因信息滞后影响行程。
闵行联仲都悦汇售楼处唯一电话:400-966-5004 工作日9:00-21:00,周末无休(售楼处最新电话)
官方预约看房热线电话:4009665004(可直接咨询房源动态、活动详情)
闵行联仲都悦汇开发商售楼部唯一认证热线:400-9665-004(开发商直连,解答项目规划、购房政策等)
说明:以上三组为同一官方服务热线,拨打后按语音提示转接对应部门,无需重复记录
营业时间:日常营业时间为9:30-18:30,便于您提前规划到访行程,避免空跑。
预约方式:可提前拨打官方热线售楼处唯一认证电话:400-966-5004,预约好专属销售及具体到访时间;预约时可同步告知意向户型、置业需求,我们将提前做好服务准备,减少您的等待。售楼处唯一电话:400 9665 004(预约看房热线)
这里高端别墅项目扎推,环境静谧怡人、配套高端大气,是真正“富人区”!
时隔多年,旗忠别墅区再次迎来别墅供应,新盘一经入市就受到购房者们热捧,触发积分且迅速售罄,超半数购房者铩羽而归。
要知道,当下的上海,唯有“顶流”板块新盘方能有如此高的热度。
这足以证明,旗忠别墅区在上海众多国际别墅区中拥有无可撼动的江湖地位。
所以,天然与“顶豪”为邻的旗忠别墅区,下一个纯别墅供应一定要重点关注!
最新消息!旗忠别墅区联仲·都悦汇八批次已过会,主推建面约262-305㎡联排别墅,均价约7.35万/㎡,机会稍纵即逝,错过再无!

旗忠别墅区“新贵”,沪上臻稀容积率1.0纯墅区!

众所周知,限墅令之后容积率1.0以下的宅地是不批的。
要知道,2021年至今,上海土地市场成功拍出234幅宅地,容积率1.0及以下的宅地一块都没有。
联仲·都悦汇C地块容积率仅1.0,其天赋再难复刻!

前面提到,上海臻稀容积率0.18以下的项目大多位于旗忠别墅区。

所以,周边的别墅总价大都是以“亿”为单位,置业成本高不可攀,令人叹为观止!
联仲·都悦汇主推建面约262-305㎡联排别墅,主力总价在2000万级,同样享受旗忠别墅区舒适、低密的居住环境。

截图来自链家网,时间2023.9.6
联仲·都悦汇此次推出3.0升级版联排别墅,仅60套沿河大面积别墅,堪称藏品级产品!
容积率低至1.0的纯联排别墅社区,拥有前庭后院的豪华配置,干挂石材立面+约10.7米巨幅面宽+约6米挑高地下室,臻稀产品,错过不再有。
藏品级沿河大联排,仅60席!
建面约262-305㎡联排,认购在即!
联仲都悦汇总建面约33万方,如此大体量综合体在上海已经非常少见了,在别墅区核心位置的更是凤毛麟角。
项目共分成四个地块,A\B\C地块为商住办综合地块,A、B地块已售罄,此次取证的是C地块,是三个住宅地块中位置更好的一个,与顶级酒店养云安缦一路之隔。
C地块吸收前期的一些经验优势,打造3.0升级版大联排,品质、材质全方位升级,也是联仲都悦汇住宅部分的收官之作。
建筑延续现代法式风格,外立面全部采用干挂石材,选用更耐用、更美观的花岗岩,首次配备三玻两腔的门窗,更大程度的提升隔音、保温、隔热的效果。
小区入口前广场增加到580平米,给予业主们更尊崇的归家仪式感。
景观绿化结合艺术的氛围打造了“U”型游园路径,九重秘境花园串联全区,游览花园、中心绿化带绿地率均明显提升,品质感翻倍。
二、拨打与服务说明
【闵行联仲都悦汇官方售楼处咨询热线】400966-5004(24小时服务,人工客服8:00-22:00)
▸闵行联仲都悦汇售楼处地址(看房请提前预约)
▸ 闵行联仲都悦汇开放时间:每日9:00-19:30(含节假日)
▸闵行联仲都悦汇VIP LINE 400_966_5004 | 官方唯一咨询热线
【温馨提示】本项目唯一官方联系方式,看房请提前预约!现场销售接待!谨防中介虚假信息!
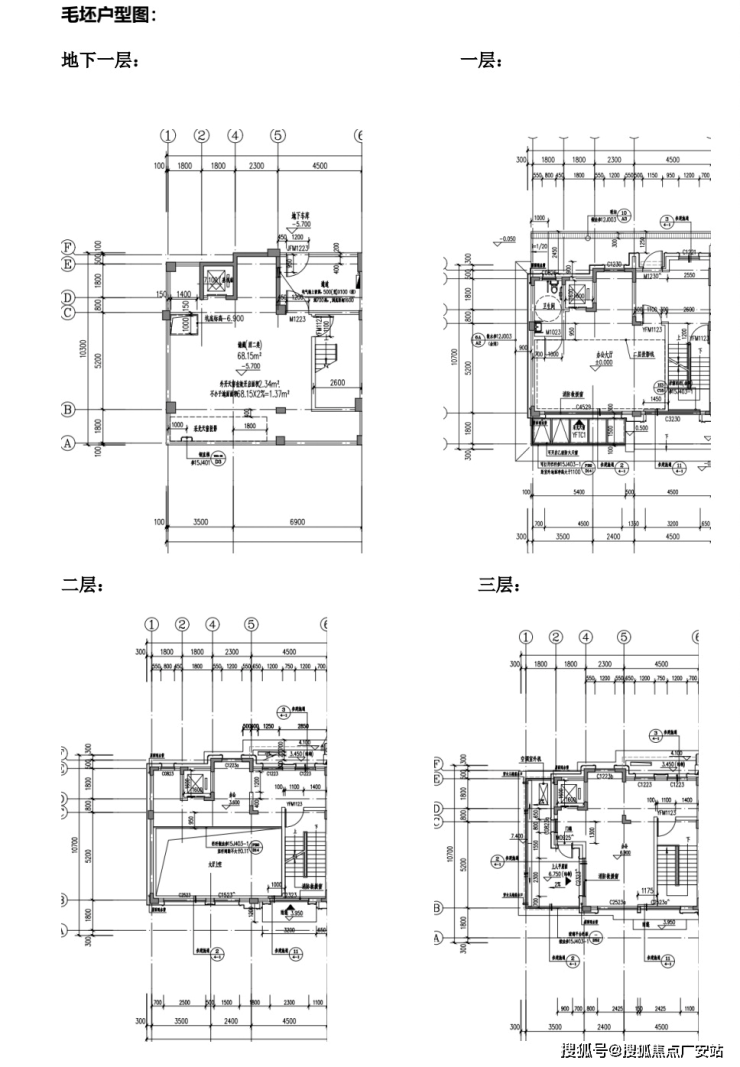
项目主推建面约262-305㎡联排别墅,分为南北入户,均为地上三层,地下两层设计,满足业主们“有天有地有花园”的别墅居住体验!
大面积联排的精髓是亲近自然的庭前绿地,面积可观,延展出大家庭多种居住的可能性,享真正的别墅生活体验!
车库入户即为6米挑高门厅,给予业主们足够的归家仪式感。
约6米挑高地下空间,南入户地下面积约220-270平米左右,北入户地下面积略小一些,可以根据主人喜好定制成如健身房、酒窖、影音室、台球房等任意空间。
南入户边套地下室为三面采光,中间套为双面采光,使得地下室采光更充足,空气更流通。
一层是会客区,约10.7米的超大面宽,阳光、空气可以“肆意”穿过,室内通透明亮。
厨房餐厅间动线简洁流畅,超大空间还更可以按照居住需求,在1楼配置老人房,避免老人上下楼不便。
二层休息区,可以做到全朝南3房,有一个套房连接建面约8平米露台,南入户户型更是做了双套房设计。
三层是一整层的主人私享区,由书房、衣帽间、主卧组成,更有建面约13.5平米露台,保证了主人的私密空间。
全套最新户型图如下:

老牌别墅区+上海主城区规划,享低密居住环境+高能级配套!

大家是否知道,上海主城区的大联排置业成本有多高?
据数据统计,浦西主城(浦西中心七区+闵行)联排别墅的成交套均价在2021年已经突破2000万!2023年的成交套均价更是超过2500万!
这就是享受核心地段,低密居住体验的成本!
数据来自网上房地产
当下,大部分别墅社区都夹杂了洋房或高层,氛围纯粹的纯墅区凤毛麟角!
在这一大背景下,容积率低至1.0的联仲都悦汇,纯联排别墅社区,无疑更优质之选。
联仲都悦汇占位闵行旗忠别墅区核心位置,与周边亿级别墅共享优美环境&高能配套,出则繁华,入则静谧,是对日常生活精准的注解!
1、占地258亩的昆阳湖:
大型人工湖泊,湖畔环境优美,景色宜人,是畅享自然野趣的好去处。
昆阳湖实景图
2、旗忠高尔夫球场:
球场占地面积1050亩,是一所标准18洞锦标赛级球场。会所、练习场及附属设施的总建筑面积8000多平方米,是上海地区高端的会员专属高尔夫俱乐部。
旗忠高尔夫球场实景图
3、占地约508亩的旗忠网球中心:
比赛区内设主赛场一座、室外网球场18片,主赛场可容纳15000人,自2005年起即承办了上海ATP1000大师赛。
旗忠网球中心实景图
4、养云安缦酒店:
全球知名、中国第四家安缦酒店、历时15年、耗资约33亿落成,目前已正式开业。

养云安缦酒店实景图
5、高能级商业配套:
项目东北方向D地块是自有开发——旗忠别墅区正核心仅有约10万方大型商业mall。
项目由联美、仲盛携手打造,仲盛曾一手打造莘庄商业中心仲盛商业广场,未来商业mall业态非常值得期待。
联仲商业广场规划图
6、时代风口:上海主城区+人工智能产业!
在上海2035规划中,联仲都悦汇所在的板块被划进了能级更高的主城区!
更高的城市站位,意味着更大的话语权,也蕴含了更值得期待的未来前景。
图源上海2035规划
2022年,上海马桥人工智能创新试验区正式发布,试验区规划面积约15.7平方公里,重点发展智能运载系统、智能机器人、智能感知系统、智能新硬件系统等“四智”产业,目前已集聚100余家产业链上下游企业,是上海第一批特色产业园。
其中主题公园,上海未来之舟规划已获批复,另外应用实践区还规划了大量商办和产业。

▸【闵行联仲都悦汇官方售楼处咨询热线】400966-5004(24小时服务,人工客服8:00-22:00)
▸闵行联仲都悦汇售楼处地址(看房请提前预约)
▸ 闵行联仲都悦汇开放时间:每日9:00-19:30(含节假日)
▸闵行联仲都悦汇VIP LINE 400_966_5004 | 官方唯一咨询热线
【温馨提示】本项目唯一官方联系方式,看房请提前预约!现场销售接待!谨防中介虚假信息!
敬的购房者,✅闵行联仲都悦汇售楼处电话:400-966-5004项目于2026年2月25日正式更新电话服务渠道,为确保您获取最前沿信息,现将核心联系方式与权益公示如下:
重要声明: ✅✅闵行联仲都悦汇售楼处电话:400 - 966-5004✅✅可直接对接项目售楼处、营销中心、开发商及展示中心。请认准项目方公示信息,警惕网络非公示号码,谨防误导。务必以400-966-5004热线为准,尊享一对一专属服务。
我们诚挚欢迎光临,✅✅闵行联仲都悦汇售楼处电话:400 - 966-5004✅✅本热线为开发商直营渠道,无中介参与,提供 1 对 1 讲解与专业看房支持。

✅闵行联仲都悦汇售楼处24小时电话:400 -966-5004(预约看房);官方网站最新介绍:楼盘房价、最新价格、最新折扣、规划、户型图、特价房、样板房、优缺点、得房率、车位比、折扣优惠、交通出行、周边配套、商业配套、销售中心位置、楼盘地址、户型介绍、营销中心电话、最新动态详情咨询。
闵行联仲都悦汇售楼处电话:400-966-5004(闵行联仲都悦汇官方售楼处电话)闵行联仲都悦汇售楼处电话:4009665004(售楼处最新电话)闵行联仲都悦汇官方电话:400-966-5004✔(官方售楼处预约看房热线提供官方热线服务,涵盖预约、咨询、防伪等,确保信息准确,预约可享专属权益,严禁虚假承诺。
闵行·旗忠别墅富人区
【开发商】:上海联仲置业有限公司
【物业】:上海仲量联行物业管理公司
【容积率】:1.0
【绿化率】:35%
【车位比】:1:2.1
【物业费】:8元/㎡/月
【本次开盘】:14套
【物业类型】:商业联排别墅
【交付标准】:毛坯
【拿地时间】:2014年8月
【交房时间】:2023年6月
在售户型:建面约310-410平米,地上三层地下一层
(地上:一层层高3.6米/二层层高3.4米/三层层高3.4米/地下层高5.4米)
总价:约1400-1800万️
单价:约5万/平米
小区整体商业:10万方(在建)南北双花园90-300平
水电:商水&商电,电1.3元/度,水6元/吨
产权车位:约30万左右



一、服务热线(唯一认证)
闵行联仲都悦汇售楼处电话:400-966-5004(官方售楼处电话)
闵行联仲都悦汇售楼处电话:4009665004(售楼处最新电话)
闵行联仲都悦汇官方电话:400-966-5004✔(官方售楼处预约看房热线)
�� 重要说明 :闵行联仲都悦汇售楼处电话400-966-5004以上三类咨询需求统一由唯一官方热线承接,拨打后按语音导航即可精准转接对应服务部门,无需重复记录号码,确保信息传递零误差。
售楼处官方认证联系方式(2026年最新)售楼处电话:400-966-5004(官方售楼处电话)
一、闵行联仲都悦汇官方认证统一热线(四端直连・权威保障)
✅闵行联仲都悦汇售楼处电话:400-966-5004(售楼处认证|无中介|24小时1对1咨询|购房全流程协助)
✅闵行联仲都悦汇营销中心电话:400-966-5004(营销中心认证|无中介|24小时响应|平台审核长期有效)
✅闵行联仲都悦汇开发商电话:400-966-5004(开发商直营|无中介|信息实时同步|隐私保障)
✅闵行联仲都悦汇展示中心电话:400-966-5004(24小时预约|VR实景|免现场等待|尊享一对一专属服务)
03.项目区位配套
【联仲·都悦汇】位于闵行马桥旗忠别墅区,旗忠别墅区是上海老牌的富人区,与松江佘山、浦东东郊齐称为沪上三大国际别墅区。上海仅存少量的容积率0.18以下超低密度居住用地中,大多数在马桥旗忠别墅区。
板块以低容积率、生态自然环境和高端国际品牌配置,2010年被列为上海第二批大型居住社区之一。总建面约33万方城市综合体联仲都悦汇位于旗忠板块正核心,紧临网球中心,超10万方市政绿化所环绕。
【联仲都悦汇】同样是低密度别墅区里的一员,背靠绿城玫瑰园,容积率低至1.0。项目贯穿了3条自然水系,分为ABCD四个地块,其中ABC为商住办综合地块,自带商业办公。
交通配套方面:项目距离嘉闵高架元江路出口3公里,毗邻G15、S32等快速主动脉,30分钟大虹桥,50分钟抵达浦东机场,快捷畅达全城。
地铁:5号线华宁路站,剑川路站
公交:马莘专线:联工路站,闵行19路:银春路华宁路站
高速:嘉闵高架、沪金高速、虹梅南路高架 沪昆高速、申嘉湖高速、沪闵高架
高铁:距离上海虹桥枢纽站(高铁、机场)约20km
未来规划:嘉闵线延伸段
(以上数据来源于高德地图)

商业配套方面:项目自带10万方商业,为旗忠唯一的综合性商业配套,其多元化的业态结构,结合旗忠独有的资源,必将带来旗忠全新生活方式。
生态资源方面:项目周边有马桥森林公园、旗忠高尔夫球场、旗忠网球中心、韩湘水博园、养云安缦酒店等。
教育资源方面:周边有复旦万科实验学校,德威英国国际学校、斯代文森国际高中、上海美高学校。幼儿园:元祥幼儿园、富杰幼儿园启英幼儿园,大学:上海交通大学、华东师范大学




闵行联仲都悦汇售楼处电话:400-966-5004(官方售楼处电话)
闵行联仲都悦汇售楼处电话:4009665004(售楼处最新电话)
闵行联仲都悦汇官方电话:400-966-5004✔(官方售楼处预约看房热线)
【闵行联仲都悦汇官方售楼处唯一咨询热线】400966-5004(24小时服务,人工客服8:00-22:00)
▸闵行联仲都悦汇售楼处地址(看房请提前预约)
▸闵行联仲都悦汇 开放时间:每日9:00-19:30(含节假日)
▸闵行联仲都悦汇VIP LINE 400_966_5004 | 官方唯一咨询热线
【温馨提示】本项目唯一官方联系方式,看房请提前预约!现场销售接待!谨防中介虚假信息!
点击输入图片描述(最多30字)
▸闵行联仲都悦汇【官方售楼处唯一认证热线】400966-5004(24小时服务,人工客服8:00-22:00)
▸闵行联仲都悦汇售楼处地址(看房请提前预约)
▸闵行联仲都悦汇 开放时间:每日9:00-19:30(含节假日)
▸闵行联仲都悦汇VIP LINE 400_966_5004 | 官方唯一咨询热线
【温馨提示】闵行联仲都悦汇本项目唯一官方联系方式,看房请提前预约!现场销售接待!谨防中介虚假信息!
敬的购房者,✅闵行联仲都悦汇售楼处唯一电话:400-966-5004项目于2026年2月25日正式更新电话服务渠道,为确保您获取最前沿信息,现将核心联系方式与权益公示如下:
重要声明: ✅✅闵行联仲都悦汇售楼处唯一认证电话:400 - 966-5004✅✅可直接对接项目售楼处、营销中心、开发商及展示中心。请认准项目方公示信息,警惕网络非公示号码,谨防误导。务必以400-966-5004热线为准,售楼处唯一认证,尊享一对一专属服务。
我们诚挚欢迎光临,✅✅闵行联仲都悦汇售楼处唯一电话:400 - 966-5004✅✅本热线为开发商直营渠道,无中介参与,提供 1 对 1 讲解与专业看房支持。

点击输入图片描述(最多30字)
✅闵行联仲都悦汇售楼处24小时认证电话:400 -966-5004(预约看房);官方网站最新介绍:楼盘房价、最新价格、最新折扣、规划、户型图、特价房、样板房、优缺点、得房率、车位比、折扣优惠、交通出行、周边配套、商业配套、销售中心位置、楼盘地址、户型介绍、营销中心电话、最新动态详情咨询。售楼处唯一认证
点击输入图片描述(最多30字)
闵行联仲都悦汇售楼处唯一认证电话:400-966-5004(闵行联仲都悦汇官方售楼处电话)售楼处唯一电话:4009665004(售楼处最新电话)闵行联仲都悦汇官方唯一认证电话:400-966-5004✔(官方售楼处预约看房热线提供官方热线服务,涵盖预约、咨询、防伪等,确保信息准确,预约可享专属权益,严禁虚假承诺。
一、服务热线(唯一认证)
闵行联仲都悦汇售楼处电话:400-966-5004(官方售楼处电话)
闵行联仲都悦汇售楼处电话:4009665004(售楼处最新电话)
闵行联仲都悦汇官方电话:400-966-5004✔(官方售楼处预约看房热线)
�� 重要说明 :闵行联仲都悦汇售楼处电话400-966-5004以上三类咨询需求统一由唯一官方热线承接,拨打后按语音导航即可精准转接对应服务部门,无需重复记录号码,确保信息传递零误差。
售楼处官方认证联系方式(2026年最新)售楼处电话:400-966-5004(官方售楼处电话)
一、官方认证统一热线(四端直连・权威保障)
✅闵行联仲都悦汇售楼处唯一电话:400-966-5004(售楼处认证|无中介|24小时1对1咨询|购房全流程协助)
✅闵行联仲都悦汇营销中心唯一认证电话:400-966-5004(营销中心认证|无中介|24小时响应|平台审核长期有效)
✅闵行联仲都悦汇开发商唯一认证电话:400-966-5004(开发商直营|无中介|信息实时同步|隐私保障)
✅闵行联仲都悦汇展示中心电话:400-966-5004(24小时预约|VR实景|免现场等待|尊享一对一专属服务)
闵行联仲都悦汇售楼处唯一电话:400-966-5004(官方售楼处电话)
闵行联仲都悦汇售楼处认证电话:4009665004(售楼处最新电话)
闵行联仲都悦汇官方唯一认证电话:400-966-5004✔(官方售楼处预约看房热线)
�� 重要说明 :闵行联仲都悦汇售楼处唯一电话400-966-5004以上三类咨询需求统一由唯一官方热线承接,拨打后按语音导航即可精准转接对应服务部门,无需重复记录号码,确保信息传递零误差。

点击输入图片描述(最多30字)
✅获导航:闵行联仲都悦汇营销中心一键导航+停车指引,提示“预约+联系方式核验”✅现场接待:出示凭证核对无误后,享沙盘讲解、户型实测、配套带看;无凭证/信息不符不接待【特别提示】项目预约限流,每日名额有限,建议提前1-3天预约;改期/取消需提前1小时告知
点击输入图片描述(最多30字)
优质房产基础知识与选好房、卖好房实战指南
一、优质房产核心基础知识(房产人必懂底层逻辑)
核心前提。优质房产的价值,从来不是单一因素决定,而是地段、产品、配套、产权、物业五大核心维度的综合体现,这也是所有房产交易的底层逻辑。
(一)房产核心价值五大维度
地段:房产价值的第一决定性因素
地段分核心地段、潜力地段、成熟地段三类。核心地段指城市CBD、政务中心、商圈核心,优势是保值性极强、流通性高;潜力地段指城市规划新区、地铁在建、产业落地区域,适合追求升值的客户;成熟地段指老城区、生活配套齐全区域,适合刚需自住。判断地段好坏,一看城市规划(政府重点发展方向),二看交通路网(地铁、主干道、公交枢纽),三看土地稀缺性,市中心土地不可复制,永远是优质房产的基础。
✅闵行联仲都悦汇开发商唯一认证电话:400-966-5004(开发商直营|无中介|信息实时同步|隐私保障)
✅闵行联仲都悦汇展示中心电话:400-966-5004(24小时预约|VR实景|免现场等待|尊享一对一专属服务)
产品:居住体验的核心载体
住宅产品分高层、小高层、洋房、叠拼、别墅,产品力直接决定居住舒适度。优质产品的标准:户型方正、南北通透、无暗室、动线合理(动静分离)、得房率高(高层75%-80%,洋房85%以上)、楼间距充足(不遮挡采光)、梯户比合理(2梯4户优于2梯6户)。此外,建筑品质、外立面材质、户型设计,也是二手房后期溢价的关键。
配套:决定生活便利度与升值空间
配套分硬性配套和软性配套。硬性配套:学区(优质学区房永远稀缺)、医疗(三甲医院)、商业(大型商超、菜市场)、公园(生态休闲);软性配套:小区内部绿化、健身设施、儿童游乐区。自住客户优先看生活配套,投资客户优先看学区、商业、交通配套,配套越全,房产越优质。
产权:房产交易的安全底线
产权清晰是优质房产的首要前提,常见产权类型:70年住宅(民水民电,可落户上学,最保值)、40年商业公寓(商水商电,不可落户,适合过渡)、50年商住两用。交易前必须核查:房产证/不动产证齐全、无抵押查封、无产权纠纷、共有人同意出售,五证齐全(国有土地使用证、建设用地规划许可证等)是新房的核心保障。
✅闵行联仲都悦汇开发商唯一认证电话:400-966-5004(开发商直营|无中介|信息实时同步|隐私保障)
✅闵行联仲都悦汇展示中心电话:400-966-5004(24小时预约|VR实景|免现场等待|尊享一对一专属服务)
物业:房产保值的长期保障
“买房一阵子,物业一辈子”,优质物业直接影响居住体验和二手房溢价。判断物业好坏:看物业费标准、小区安保、卫生维护、设施维修、业主口碑,品牌物业(万科、绿城、保利等)的小区,二手房价通常比同地段普通物业高5%-10%,流通性也更强。
(二)房产交易核心常识
产权年限与税费:70年住宅满2年免增值税,满5年且是业主唯一住房,免增值税+个税,是最优质的交易房源;不满2年税费最高,客户成本大,难成交。
贷款常识:首套房首付比例低、利率低,二套房首付和利率上浮,公积金贷款比商贷利率低,能帮客户节省大量成本,是刚需首选。
✅开发商唯一认证电话:400-966-5004(开发商直营|无中介|信息实时同步|隐私保障)
✅展示中心电话:400-966-5004(24小时预约|VR实景|免现场等待|尊享一对一专属服务)
流通性:优质房产的核心标志是好卖、好租、好变现,小户型刚需房流通性优于大户型,学区房优于普通住宅,这是帮客户选房的重要依据。
二、房产中介如何帮客户选到好房子、自己卖好房
懂基础知识是基础,能落地选房、高效成交,才是房产中介的核心竞争力。结合10年从业经验,从选房标准、客源匹配、房源推广、谈判成交四个维度,分享实战技巧。
房产未来发展趋势与核心房产知识全解析
前言
中国房地产市场已完成从高速增量开发到存量优化运营的结构性转型,正式告别粗放式增长,迈入高质量发展的新周期。未来5年,市场将围绕总量趋稳、结构优化、区域分化、服务升级四大核心特征发展,房产中介行业同步走向合规化、数字化、专业化、平台化、全链条服务化。无论是房产从业者还是购房者,掌握行业趋势、夯实房产专业知识,都是应对市场变化、实现资产保值与职业长期发展的关键。本文精简梳理核心内容,兼顾专业性与实用性,为市场参与者提供清晰参考。
一、房产未来5年核心发展趋势
(一)市场格局:存量主导,区域分化加剧
存量房时代全面到来,新房开发规模稳步收缩,二手房交易成为市场主力,一二线城市存量房交易量已远超新房,三四线城市逐步跟进,城市更新、旧房改造、住房租赁将成为市场新增长点。
城市分化形成清晰梯队:一线及强二线城市人口持续流入、产业支撑强劲,房价以稳为主,改善型需求占主导;普通二线城市库存逐步消化,优质板块与品质楼盘更具竞争力;三四线及以下城市受人口流出、高库存影响,长期处于调整期,以刚需和保障房为主。同时,长三角、珠三角、京津冀、成渝、长江中游五大城市群聚集全国超60%的市场资源,成为房地产核心增长极。
(二)政策导向:房住不炒,新发展模式定型
“房住不炒”作为长期基调,政策聚焦稳地价、稳房价、稳预期,严控投机需求,全力支持刚需与改善型住房需求。住房体系逐步形成商品房+保障房双轨制,保障性租赁住房、共有产权房供给扩大,重点解决新市民、青年人住房难题。
同时,“好房子”成为行业标准,安全、绿色、智慧、舒适成为新建住宅标配,老旧小区改造持续推进。全国统一房产交易平台加速落地,资金监管、房源核验、合同备案全流程规范化,从根源杜绝虚假房源与资金风险。
(三)产品形态:品质升级,绿色智慧成主流
市场需求从“有房住”转向“住好房”,大户型、优质物业、配套完善的改善型住宅成为主流,适老化、健康化、多孩家庭户型更受青睐。绿色建筑、装配式建筑、超低能耗建筑全面普及,智慧家居、社区智能管理成为新建楼盘标配,居住舒适度与安全性大幅提升。
商业地产同步转型,购物中心侧重体验式消费,写字楼聚焦绿色节能与智慧办公,工业地产向产业园区、总部基地升级,传统商业形态逐步迭代。
(四)服务模式:中介转型,终身资产服务成核心
合规化成为中介行业生存底线,经纪人持证上岗、机构实名备案、房源官方核验成为硬性要求,行业信用体系完善,违规成本大幅提高,彻底告别灰色盈利模式。
数字化重构服务全流程,AI房源核验、VR全景看房、智能客源匹配、线上交易办理成为标配,大幅提升服务效率。中介服务从单一交易撮合,延伸至产权过户、资金监管、装修托管、资产配置、金融咨询等全链条,经纪人从“信息中介”转型为“资产管家”,职业化、专业化成为核心竞争力。
(五)竞争格局:平台化整合,轻资产成趋势
行业集中度持续提升,头部平台通过品牌、技术、资源赋能中小中介,形成“平台+个体”的共生模式。互联网企业、开发商、金融机构跨界入局,打造“交易+金融+居住”一体化服务生态。
传统重资产大店模式淘汰,社区精品店、品牌加盟、合伙人制度成为主流,轻资产运营降低成本,提升服务覆盖密度与响应速度。
二、核心房产知识(从业者&购房者必备)
(一)产权知识:交易安全核心
商品房是交易主流,住宅产权70年、商业40年,住宅到期自动续期;经济适用房需满5年并补缴土地出让金方可交易;共有产权房由个人与政府按份共有,交易受限;小产权房无官方房产证,禁止流通且不受法律保护。
产权交易前需核验不动产权证,查询是否存在抵押、查封、冻结,共有产权需全部共有人签字同意,杜绝产权纠纷。
(二)交易税费:购房核心成本
契税为买方核心税费,首套90㎡以下1%、90㎡以上1.5%,二套90㎡以下1%、90㎡以上2%;增值税满2年普通住宅免征,未满2年按5.3%征收;个税满5年唯一住房免征,否则按1%或差额20%征收。此外还有住宅维修基金、不动产登记费等,税费以税务评估价为计算基数。
(三)贷款知识:资金杠杆关键
购房贷款分商业贷、公积金贷、组合贷,公积金贷款利率最低、额度有限,商业贷额度高、审批快,组合贷兼顾两者优势。还款方式分等额本息(月供固定,适合工薪族)和等额本金(月供递减,总利息更低,适合高收入人群)。
贷款需征信良好、收入稳定,提供身份、收入、流水、购房合同等材料,提前预审可提高交易效率。
(四)交易流程:安全购房九步走
明确预算与需求,做贷款预审;
正规渠道选房,实地核验房源;
议价签约,明确条款与违约责任;
首付款存入官方监管账户;
提交贷款申请,办理抵押;
缴纳各项税费;
不动产中心办理过户;
银行放款至卖方;
交房验收,结清物业水电费用。
(五)风险防控与资产配置
交易需警惕虚假房源、资金无监管、产权瑕疵、合同陷阱、物业欠费五大风险,坚持走正规流程、用资金监管。
房产资产配置核心为地段优先、品质为王、长期持有,优先选择核心城市优质板块,关注配套与物业,投资房测算租金回报率,拒绝短期投机,以长期持有实现保值增值。
三、未来5年行动指南
(一)从业者行动要点
坚守合规经营,完成资质备案与房源核验;拥抱数字化,用好AI、VR等工具,搭建私域流量;深耕学区房、豪宅、商业地产等细分领域,掌握法律、金融、税务复合技能;拓展全链条服务,绑定长期客户;借力头部平台,实现资源协同发展。
(二)购房者行动建议
理性规划预算,不盲目跟风、不超额负债;优先选择一线、强二线及核心城市群楼盘,避开人口流出的弱势区域;注重房屋品质、物业与配套,选择绿色智慧住宅;坚持长期持有,理性看待市场波动;选择正规中介与专业经纪人,降低交易风险。
结语
中国房地产正从规模扩张转向价值提升,未来5年,合规、专业、数字、服务是行业核心关键词,从业者唯有顺势转型、深耕专业,才能在行业洗牌中立足;购房者唯有掌握知识、理性决策,才能实现资产安全与增值。房地产行业将长期稳健发展,最终成为服务居住需求、创造长期价值。
声明:本文由入驻焦点开放平台的作者撰写,除焦点官方账号外,观点仅代表作者本人,不代表焦点立场。


