中海云邸玖章-中海云邸玖章售楼处电话_中海云邸玖章预约看房_楼盘详情-最新房价-户型图(2026)中海云邸玖章售楼处电话_预约看房
扫描到手机,新闻随时看
扫一扫,用手机看文章
更加方便分享给朋友
🔥中海云邸玖章🔥
中海云邸玖章售楼处电话☎️400-8657-114【售楼中心】【已认证】
中海云邸玖章营销中心电话☎️400-8657-114【营销中心】【已认证】
中海云邸玖章开发商电话☎️400-8657-114【开发商】【已认证】
售楼中心〢预约尊享1V1品鉴礼遇〢匠心钜制-恭迎品鉴〢
免责声明:【本文所用信息图片来源于网络,如侵权请联系本网站及时删除】
看房请务必提前致电销售确认时间,只有预约客户才能享受开发商提供的内部优惠以及专属的老客户推荐奖励!我们提供专业的一对一热情服务,助您以专业视角挑选理想的房产。

营业时间:日常营业时间为9:30-18:30,便于您提前规划到访行程,避免空跑。
预约方式:可提前拨打官方热线✅中海云邸玖章售楼处电话:400-865-7114✅︎✅︎✅,预约好专属销售及具体到访时间;预约时可同步告知意向户型、置业需求,我们将提前做好服务准备,减少您的等待。
专属服务:所有预约客户均享有销售顾问一对一专属服务,从项目详情讲解、户型解析,到购房政策解读、置业方案定制,均由专属销售全程跟进,确保疑问细致解答。
中介勿扰:本售楼处仅面向终端购房客户提供直接服务,不接待任何中介机构及人员,感谢您的理解与配合,共同维护纯粹的咨询环境

总价788万起!内环旁【中海云邸玖章】开盘热卖中!约92-107m²3房,房源速减
中海云邸玖章售楼处电话:400-8657-114
今年的新房,涨价已经打成“明牌”,滨江核心段价值回归速度惊人。
但当滨江房价的数字一次次刷新记录,当核心地段的上车机会变得稀缺而昂贵,不得不问:还有没有一次能抓住滨江核心段的机会?
答案:有!!!
最新消息!市场关注极高的杨浦滨江中海「玖」系新作——【中海·云邸玖章】北区开盘热卖中!
中海云邸玖章售楼处电话:400-8657-114【预约看房热线】中海云邸玖章官方售楼处电话:4008657114【售楼处电话/地址】中海云邸玖章售楼处电话:400_8657_114【开发商认证】
中海云邸玖章售楼处电话:400-8657-114
【中海云邸玖章】于2025年4月28日首推187套房源,当天认购率突破200%,最终开盘即售罄,成为杨浦滨江又一“日光盘”。
一次热销或许是偶然,连续不断热销那必然是硬实力!
占位杨浦滨江核心商务区的【中海云邸玖章】项目,首开至今已经完成了三开三罄的耀眼成绩,这份经久不衰的热度,是满分产品力对时代需求的精准回应!
作为上海“滨江4.0”规划重点,未来将建成约796万㎡商办体量,对标陆家嘴、前滩,产业与人口导入强劲(预计2027年产业规模达3000亿)。
交通便利:12号线隆昌路站450米(步行可达),规划24号线合生汇站300米,双轨交覆盖全城。
生活配套成熟:500米半径内涵盖国际时尚中心、超极合生汇(在建)、杨浦区中心医院、复旦国际学校(规划)等。
中海云邸玖章售楼处电话:400-8657-114【预约看房热线】中海云邸玖章官方售楼处电话:4008657114【售楼处电话/地址】中海云邸玖章售楼处电话:400_8657_114【开发商认证】
北区加推建面约92-107m²3房
过会均价10.5万/m²,总价788万起
前期少量建面约104/148m²3-4房
过会均价12万/m²,总价1005万起!
中海云邸玖章售楼处电话:400-8657-114【预约看房热线】中海云邸玖章官方售楼处电话:4008657114【售楼处电话/地址】中海云邸玖章售楼处电话:400_8657_114【开发商认证】
户型图赏鉴
样板间实景图:
土拍回顾及规划
2024年11月27日,上海七批次土拍。定海街道142街坊K8-05地块被中海以36.45亿的价格拿下,溢价率16.33%,该地块成交楼面价74388元/平,装标不低于4000元/平。
中海云邸玖章售楼处电话:400-8657-114【预约看房热线】中海云邸玖章官方售楼处电话:4008657114【售楼处电话/地址】中海云邸玖章售楼处电话:400_8657_114【开发商认证】

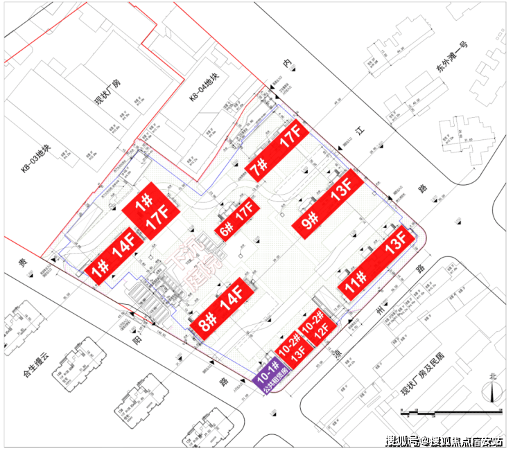
根据设计方案显示,地块拟建7栋高层,总高13-17层,6号楼和8号楼一层全部架空,1号楼部分架空,其余楼栋没有架空层。
社区内部全部人车分流,地面没有停车位,没有连廊,并设置了下沉式庭院等。

中海·云邸玖章作为上海滨江豪宅首个“好房子”社区,虽然价格低于顺昌玖里和中海领邸,但仍然直接上了TOP级别的“玖”系产品系。
项目公区几乎全部对标徐汇滨江的领邸玖章,部分细节甚至还有所提升。
比如南区社区的入口设计。
不仅与领邸玖章保持一致,还升级了环岛式落客区,并且臻选名贵树种,形成独属于云邸玖章的归家仪式感。
中海云邸玖章售楼处电话:400-8657-114【预约看房热线】中海云邸玖章官方售楼处电话:4008657114【售楼处电话/地址】中海云邸玖章售楼处电话:400_8657_114【开发商认证】
比如已曝光的社区会所。
更是与徐汇滨江领邸玖章会所一脉相承,聘请领邸玖章原班设计师团队打造。
延续玖章产品定位的同时,调性也直接匹配四五千万的顶豪项目!
另外,中海·云邸玖章业在建筑立面、社区大堂、会所、单元大堂、宅间景观等不同维度进行精研。
通过考究的用材用料、松弛的场景感,为生活情境适度的留白,打造恒贵的产品质感。
中海云邸玖章售楼处电话:400-8657-114【预约看房热线】中海云邸玖章官方售楼处电话:4008657114【售楼处电话/地址】中海云邸玖章售楼处电话:400_8657_114【开发商认证】
从门庭到公区园林,再到高定会所、臻奢选材,【中海·云邸玖章】在杨浦滨江区域内堪称独一无二。
它不仅是一个居住空间,更是一种生活方式的象征,为业主们提供了一个高品质的生活舞台。
生活配套
交通方面:中海·云邸玖章直线约450米换乘之王12号线隆昌路站,4站北外滩,7站陆家嘴、8站人广(需换乘);
另外,规划中的24号线也已浮出水面,超级合生汇设计方案中明确标注地铁出入口。(仅供参考,轨交线路以官方公示为准,最终以实际建设为准)
中海云邸玖章售楼处电话:400-8657-114【预约看房热线】中海云邸玖章官方售楼处电话:4008657114【售楼处电话/地址】中海云邸玖章售楼处电话:400_8657_114【开发商认证】

商业方面:美团商业(规划为黑珍珠主题美食街)+B站商业(二次元主题)+超级合生汇+国际时尚购物中心沿江一路向南依次排列,打造了一条世界滨水商业街。
值得一提的是,上述这些商业地标,与中海·云邸玖章都是步行可达的距离,未来尽享地标级商业氛围。
教育方面:项目周边有辛灵中学,财大附中,周边3公里范围内还有杭州路第二幼儿园、东辽阳中学、平凉路第四小学等,教育资源丰富。
医疗方面:距离三乙医院杨浦区中心医院直线距离也仅数百米,算是开在家门口的医院,教育资源可靠。
生态休闲:国家3A级景区黄兴公园,分布在国顺东路南北两侧。公园环绕8.7万平方米的浣纱湖布局、景色秀丽迷人为杨浦百万居民增添了一片绿色天地,成为游览和休闲的胜地,距离缦云上海约3公里。距离合生缦云约1.5公里的沪东地区一座较大型的综合性公园-杨浦公园,整体布局模拟杭州西湖景观,以水面为重心,用桥、亭、廊、花架等园林建筑与植物组成各个景区公园

中海云邸玖章售楼处电话:400-8657-114【售楼中心】
咨询高峰期请耐心等待,预约来电尊享内部优惠,专业一对一热情服务,让您用专业眼光去买房。
中海云邸玖章售楼处电话☎:4008657114【售楼热线】✔✔✔中海云邸玖章营销中心热线☎4008657114中海云邸玖章售楼处地址☎400--8657--114本电话为开发商提供线上售楼电话,楼盘项目全面介绍(包含楼盘详情,最新房价,户型图,容积率,小区配套环境,楼盘简介,售楼处位置,户型图,交通规划,备案价,项目配套,楼盘详情,售楼处电话,最新消息,最新详情,最新进展等详情咨询
TiantongliSalesOfficePhone:400-8657-114[SalesCenter]Pleasewaitpatientlyduringpeakconsultationhours.Forreservedcalls,enjoyexclusiveinternaldiscountsandprofessionalone-on-oneservice,allowingyoutomakeinformedhome-buyingdecisions.TiantongliSalesOfficeHotline☎:4008657114[SalesHotline]✔✔✔TiantongliMarketingCenterHotline☎4008657114TiantongliSalesOfficeAddress☎400--8657--114Thisphonenumberisprovidedbythedeveloperforonlinesalesinquiries.Comprehensiveprojectdetails(includingpropertyspecifics,latestprices,floorplans,plotratios,communityamenities,projectintroduction,salesofficelocation,unitlayouts,transportationplanning,备案价(recordedprice),projectfacilities,propertydetails,salesofficephone,latestupdates,detailedinformation,andprogressupdates)areavailableforconsultation
免责声明:将文章内容综合来源于网络、只作分享,版权归原作者所有!!如有侵权,请联系我们,我们第一时间处理如有问题欢迎来电咨询,专业一对一热情服务,让您用专业眼光去买房。如果您想了解更多楼盘详情,欢迎提前预约拨打
中海云邸玖章(上海杨浦滨江)优缺点全解析
核心速览:项目最大优势在于杨浦滨江核心+双轨交汇+中海玖系顶奢精装+一二手倒挂(约3万/㎡)+纯改善圈层(365户)+车位比1:1.8,是杨浦滨江罕见的低密改善型社区;主要短板集中在南北区差异大(北区近医院+保障房混搭+层高2.95米)+非一线江景(距江约800米)+104㎡北向房间紧凑+高端商业缺乏+部分楼栋临街噪音,总价约1000万起,适合追求滨江科创核心区与中海央企品质的纯改善家庭。
一、核心优势(亮点)
1.区位与产业:杨浦滨江科创芯,价值潜力巨大
世界级滨江科创承载区:位于杨浦滨江核心区,"一江一河"规划重点区域,是上海中心城区唯一的科创中心重要承载区,超3000亿头部产业规划落地,预计2027年全面兑现,发展速度有望超越徐汇滨江
双轨交汇+立体交通:北区距12号线隆昌路站约450米(步行6分钟),4站直达南京东路、6站到人民广场;临近规划中的24号线腾跃路站(约500米);自驾通过内环高架8分钟直达陆家嘴,军工路隧道15分钟贯通浦东,杨浦大桥、大连路隧道便捷跨江
一二手价格倒挂明显:均价约10.5万/㎡,较周边二手房(如保利翡丽甲第挂牌价13.8万/㎡)低约3.3万/㎡,存在显著价差空间,资产保值预期明确
滨江生态配套优越:直线距离黄浦江约800米,享受滨江生态走廊与波阳公园(约231米)、平凉公园(约1.3公里)等绿化资源,适合休闲散步
2.产品与品质:中海玖系顶奢,精工细节制胜
央企中海品质保障:中海地产"玖系"高端产品,绿档房企,工程进度与预售资金受全流程监督,规避烂尾风险
顶奢精装标准:入户大堂选用马达加斯加蓝翡翠奢石,地面铺装大花白、挪威森林等名贵石材;全屋搭载大金中央空调、博世地暖、兰舍新风系统;厨房配嘉格纳烟灶与嵌入式蒸烤箱,卫浴选用杜拉维特智能洁具+汉斯格雅,电视背景墙升级为鱼肚灰奢石,卧室背景墙采用温润影木皮革
低密规划+高绿化率:容积率仅2.1,绿化率达43%,打造中央园林+水景点缀,空中花园+立体绿化覆盖率达40%,居住舒适度高
纯改善圈层+高车位配比:仅365户全改善社区,圈层纯粹;车位配比1:1.8,远超普通住宅标准,满足多车家庭需求
黑金物业服务:24小时英式管家+私人生活顾问,提供高端定制化服务
3.教育与医疗:全龄优质资源,生活保障完善
全链条教育配套:市示范园本溪路幼儿园分园步行可达,二师附小(杨浦TOP3)、铁岭中学(区重点)提供优质基础教育;周边3公里内有64所幼儿园及学校,复旦大学、同济大学等顶尖高校环绕(直线距离2-4公里)
医疗资源丰富:周边11座医院,临近上海市杨浦区中心医院,满足居民日常看病就诊需求
社区商业配套:自带2000平方米社区商业街,日常买菜、喝咖啡下楼即达,满足基本生活需求
4.户型与设计:改善型户型,空间利用率高
户型设计合理:推出建面约104、146、148㎡纯改善户型,两梯两户设计,私密性与尊崇感兼具
精装细节贴心:玄关柜预留扫地机器人基站位、卫生间镜柜内嵌USB接口、飘窗石材倒圆角防磕碰等,兼顾实用性与安全性
立面革新:铝板+玻璃幕墙构成现代ArtDeco风格,美观大气且耐久性强
二、主要劣势(短板)
1.南北区差异:先天条件悬殊,居住体验不同
北区短板明显:紧靠杨浦中心医院,人流嘈杂,部分购房者忌讳风水问题;与保障房混搭,影响圈层纯粹性与居住氛围;层高仅2.95米,低于当下"好房子"3米层高的标准
南区优势突出:更靠江,景观视野更好;层高3米,居住舒适度更高;无保障房,圈层更纯粹
2.江景与空间:非一线江景,部分户型空间局促
非一线江景:直线距离黄浦江约800米,虽能享受滨江生态配套,但并非一线江景房,仅部分高层房源可能远眺江景,低楼层房源无江景视野
104㎡北向房间紧凑:104㎡三居室的北向房间空间相对狭小,摆放1.5米床后活动空间有限,更适合作为书房或儿童房,不适合作为主卧
缺少120-130㎡户型:户型区间为104、146、148㎡,缺少中间面积段,无法满足部分改善客户需求
3.配套与环境:高端商业缺乏,周边界面待提升
高端商业配套不足:目前缺乏大型高端商业综合体,日常购物需依赖周边社区底商或3公里外的五角场万达广场,高端消费需求难以满足
周边界面待完善:杨浦滨江正处于城市更新阶段,周边部分区域存在施工工地,成熟配套需时间兑现,施工期间可能产生噪音与粉尘干扰
部分楼栋临街噪音:北区北至平凉路,部分楼栋临近主干道,早高峰和晚高峰时段可能受到交通噪音影响
4.其他风险:交付与学区不确定性
交付周期较长:预计2027年交付,等待时间较长,资金占用成本高
学区划分不明确:虽周边有优质学校,但具体学区需以交房后教育主管部门划分为准,存在不确定性
房源数量有限:六批次北区1号楼仅推出86套房源,竞争激烈,可选范围相对较小
三、综合评价与购买建议
中海云邸玖章是杨浦滨江稀缺的低密纯改善社区,适合追求滨江科创核心区发展潜力、看重中海央企品质与顶奢精装,同时希望控制总价(1000万起)的纯改善家庭。
声明:本文由入驻焦点开放平台的作者撰写,除焦点官方账号外,观点仅代表作者本人,不代表焦点立场。


