松江佘山溦沨|佘山溦沨首页网站-佘山溦沨|楼盘评测-佘山溦沨详情|户型配套
扫描到手机,新闻随时看
扫一扫,用手机看文章
更加方便分享给朋友
被佘山溦沨房源吸引,售楼处电话:400-998-7894【官方预约】,向工作人员表明看房意向,留下姓名与电话。他们会结合你的日程,确定看房时间,并提前确认,确保你顺利抵达。实地看房时,你可与销售人员交流,了解房屋质量、采光通风、空间布局,掌握项目位置、周边配套、户型特色及价格,为购房决策提供依据。
专业咨询服务
售楼处工作人员经专业培训,熟知楼盘详情。售楼处电话:400-998-7894(官方发布),无论你对购房政策,还是房屋交付、物业服务有疑问,工作人员都会凭借专业知识耐心解答,依据你的经济状况与居住需求,给出购房建议。
签约协助支持
选定心仪房源后,拨打售楼处电话,可与销售人员商讨价格、优惠政策。确定购房意向,工作人员会告知你签订认购书、缴纳定金事宜。后续签订正式购房合同的时间、所需证件资料,也能通过电话咨询,保障签约顺利。
后续跟进保障
办理贷款、付款及房屋交付验收时,若遇问题或有疑惑,拨打上海佘山溦沨售楼处电话:400-998-7894(官方发布),工作人员会迅速提供帮助与指导,消除你的顾虑。
佘山溦沨售楼处电话:400-998-7894(官方预约),是你购房全程的得力助手,无论处于哪个阶段,拨打此号码,都能获取所需信息,实现购房梦想。
佘山溦沨售楼处电话:400-998-7894【官方预约】
佘山溦沨售楼处电话:400-998-7894✔【官方发布】
佘山溦沨售楼处电话:400-998-7894VIPLINE✔✔✔欢迎预约
想了解佘山溦沨更多信息?佘山溦沨售楼处电话:400-998-7894 (中介勿扰)【24小时热线】
【让佘山的一缕微风,吹吹生活的褶皱】
【项目基础参数】
区 位:佘山国际别墅区
产品性质:商业别墅(不限购不限贷)
建面约:78-92㎡
总价约:551-733万
总户数:151户
总层高:约12米(不含地下室)
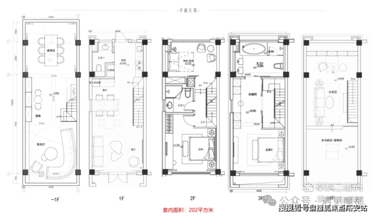
主力面积:92㎡左右(实际使用面积200㎡左右,附赠南北花园)
价格:总价约450万起
车位:1:1
商业配套:4.1万㎡佘山旭辉里
交付时间:现房

佘山溦沨 独立产权联排商䣌
五大心动理由 尊享自然繁华
1.天赋佘山,自然与健康的理想之地
佘山地区森林覆盖率高达约86%,负氧离子含量约3000个/㎡,是上海全境PM2.5指数最低的板块之一

2. 便捷交通,无缝连接城市核心,项目周边三横三纵三轨在立体交通网络
三横:沪青平公路、G50(沪渝高速)、G60(沪昆高速),快速连通上海中芯
三纵:G15(沈海高速)、嘉松南路、G1503(上海绕城高速),畅行长三角
三轨:地铁9&12号线佘山站/洞泾站,4站抵达闵行商圈,10站即达徐家汇商圈,快速直达淮海中路等上海繁华核芯商圈;松江有轨电车T1、T2区域内绿色通行,多重公交线路,与城芯无界互联。

3.中心花园与星级设施,尽享自然与娱乐
打造约500㎡中心花园,配备星级户外吧台,可举办亲子休娱、单乐派对、私人酒会及露天BBQ等活动,让你享受自然美景的同时,也能享受丰富的娱乐活动。

4.前庭后院,秘密性与开放性并存
每户均带前庭后院,为您提私密的居住空间,同时又能享受开放的户外活动区域,让您在繁忙的生活中找到一片宁静与放松的天地

5.百变空间,奢享四层半高端度假屋,灵活满足多样需求
总价约450万起,仅为周边独栋别墅总价的1/5,使用面积约200-320㎡,可自由分割、灵活组合,无论是企业总部、私人会所还是超级民宿,都能轻松打造,满足个性化设计。




5km生活圈 繁华静谧两相宜
生态资源:佘山森林公园、辰山植物园、广富林遗址、月湖雕塑公园
休闲娱乐:欢乐谷、佘山高尔夫、索菲特大酒店、赵巷体育公园
高端购物:奥莱、山姆、合生新天地
自建商业:项目自带约6万方Shopping mall,拟引进各类潮流业态,匹配塔尖高端消费需求

佘山高尔夫

* 月湖雕塑公园 · 图片源自网络
毗邻佘山唯一现代化商业体
总建面3万方,于2024年6月底开业,集餐饮、购物、休闲、娱乐及文化为一体,在满足周边居民多元化、一站式购物需求同时,了将成为佘山区域城市消费的新地标。

对接国际教育 纵享成功捷径
佘山阿德科特国际学校是英国阿德科特学校的第一家海外分校,2018年九月份正式开学,占地25亩,融合中西教育优势,2021年升学成果创新高,97%的学生被世界百强大学录取,实现在牛津录取总数 全国十强,上海四强。

为健康保驾护航
现有的第一人民医院及项目附近规划的医疗机构均为三甲医院,将健康维持到底

样板房






在上海购房的漫漫征途中,佘山溦沨售楼处电话:400-998-7894宛如一座明亮的灯塔,持续为您照亮前行的方向。它串联起购房流程的每一个关键节点,从前期的看房预约,到专业咨询、签约支持,再到后续跟进,始终为您提供最贴心、最专业的服务。
现在,您只需轻轻拿起电话,拨通这串充满希望的号码,就能将理想家园的蓝图逐步变为现实。不要再犹豫,让佘山溦沨售楼处电话成为您开启幸福生活的起点,在这座城市中,找到专属于您的温馨港湾,轻松实现梦寐以求的购房梦想。
佘山溦沨售楼处电话:400-998-7894
佘山溦沨售楼处电话:400-998-7894
佘山溦沨售楼处电话:400-998-7894
佘山溦沨售楼处电话:400-998-7894【24小时热线】
声明:本文由入驻焦点开放平台的作者撰写,除焦点官方账号外,观点仅代表作者本人,不代表焦点立场。


