杨浦保利誉滨江售楼处电话-保利誉滨江(售楼中心)首页网站-保利誉滨江最新房价-户型-容积率-小区配套-楼盘详情/价格/户型/价格/交房时间
扫描到手机,新闻随时看
扫一扫,用手机看文章
更加方便分享给朋友
保利誉滨江售楼处电话:400-887-5663✔✔【预约热线】保利誉滨江售楼中心:400-887-5663保利誉滨江售楼处电话/地址☎:400-887-5663(开发商热线)如有问题欢迎来电咨询,专业一对一热情服务,让您用专业眼光去买房。

保利誉滨江售楼处电话:400-887-5663✔✔【预约热线】保利誉滨江售楼中心:400-887-5663保利誉滨江售楼处电话/地址☎:400-887-5663(开发商热线)如有问题欢迎来电咨询,专业一对一热情服务,让您用专业眼光去买房。
保利誉滨江是杨浦滨江片区内首个引入叠拼别墅产品的住宅项目。
根据方案,项目规划建造8栋5-17层住宅,产品类型涵盖高层、洋房和叠拼,主推115㎡三房和137㎡四房,预计年底入市。
部分楼栋设有架空层,社区设置下沉式庭院、泳池会所,并配建部分社区配套与公共租赁住房。
产品上也引入270°转角玻璃、双阳台、N+1灵动空间等设计
2025年5月,在上海四批次土拍中,保利置业经过72轮激烈竞价,豪掷42.4亿,拿下杨浦区定海社区N090602单元L4-02地块,溢价率26.3%。

保利誉滨江售楼处电话:400-887-5663✔✔【预约热线】保利誉滨江售楼中心:400-887-5663保利誉滨江售楼处电话/地址☎:400-887-5663(开发商热线)如有问题欢迎来电咨询,专业一对一热情服务,让您用专业眼光去买房。
据杨浦区官网显示,半个月后,地块规划方案就公示。
不久前,项目规划进行了调整。从首份规划公示到此次调整,间隔36天。
整体来看,楼盘的布局没有变动,仍规划建设8幢住宅,包含高层、洋房、叠拼,同时配建社区配套与公租房。
此次重点对叠拼楼栋的高度和层数做了调整,甚至连造型也变了。毕竟,这将是杨浦滨江第一个带有叠拼别墅的项目。
今年以来,杨浦滨江的地价逐渐走高,竞争日趋激烈。保利置业这块地的先天条件并不十分优秀,南偏东近50度。
不过,保利置业在现行楼市规则下,把能想到的优势都做足了,市面上流行的配置一样不落:
会所、架空层、风雨连廊、一梯一户、多阳台、多飘窗,还有270度转角飘窗,在产品力上做到了极致。
经济技术指标有变化:总建筑面积减少
总建筑面积由92800㎡减少至89997.98㎡。
地上建筑面积由59300㎡减少至57421.9㎡。
计容建筑面积不变,仍然是52876.15㎡。
地下建筑面积由33500㎡减少至32576.08㎡。
新建围墙长度由650米减少至520米,高度不变,仍是2.2米。
区位方面,该地块位于杨浦滨江南段的黄金位置,直线距离黄浦江仅约500米。
周边配套一应俱全,交通上北横通道、中环军工路等主干道环绕周围,距离12号线爱国路站步行距离约700米。

保利誉滨江售楼处电话:400-887-5663✔✔【预约热线】保利誉滨江售楼中心:400-887-5663保利誉滨江售楼处电话/地址☎:400-887-5663(开发商热线)如有问题欢迎来电咨询,专业一对一热情服务,让您用专业眼光去买房。
教育上有平凉路第三小学、东辽阳中学、上海市第二十五中学,还有规划中的复旦国际学校。商业上有上海国际时尚中心和在建的超极合生汇。
此外,周围还有波阳公园、杨树浦电厂遗迹公园、上海市总工会沪东工人文化宫、白洋淀足球场馆等配套,能够满足文体休闲需求。

保利誉滨江售楼处电话:400-887-5663✔✔【预约热线】保利誉滨江售楼中心:400-887-5663保利誉滨江售楼处电话/地址☎:400-887-5663(开发商热线)如有问题欢迎来电咨询,专业一对一热情服务,让您用专业眼光去买房。
从地理位置上来看,没有多大硬伤,加上东外滩的发展规划,以及复兴岛的产业加持,未来会有不错的预期。
四个独家爆料
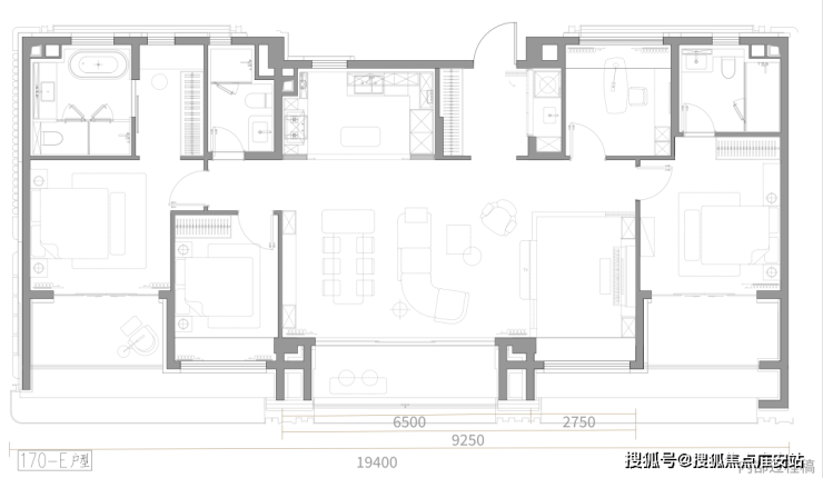
独家爆料一:稀缺户型首曝光:170㎡六开间江景奢宅

保利誉滨江售楼处电话:400-887-5663✔✔【预约热线】保利誉滨江售楼中心:400-887-5663保利誉滨江售楼处电话/地址☎:400-887-5663(开发商热线)如有问题欢迎来电咨询,专业一对一热情服务,让您用专业眼光去买房。
保利誉滨江推出市场罕见的170㎡六开间户型,总面宽近20米。
客厅与活动室组合宽度达约9.25米,搭配双套房设计,实现极致空间感。
加上难得的一线江景,东外滩的首个3.5代宅,此类户型在杨浦滨江乃至上海高端市场中均属稀缺,尤其适合追求“一步到位”的改善家庭。
独家爆料二:代建约6000㎡量子公园
除了户型本身的稀缺性,保利誉滨江在周边配套上也下足了功夫。
据悉,保利·誉滨项目更是代建约6000㎡量子公园,成为项目专属后花园。
不同于普通社区公园,量子公园以多重维度立体空间,设有二楼观景台等特色设施,,互相叠加交织进行规划。
保利誉滨江售楼处电话:400-887-5663✔✔【预约热线】保利誉滨江售楼中心:400-887-5663保利誉滨江售楼处电话/地址☎:400-887-5663(开发商热线)如有问题欢迎来电咨询,专业一对一热情服务,让您用专业眼光去买房。
保利誉滨江售楼处电话:400-887-5663✔✔【预约热线】保利誉滨江售楼中心:400-887-5663保利誉滨江售楼处电话/地址☎:400-887-5663(开发商热线)如有问题欢迎来电咨询,专业一对一热情服务,让您用专业眼光去买房。
同时加入科技感与潮流感,以链接复兴岛,成为迭代新的活力聚场;契合复兴岛“复兴时刻12刻度”理念,形成全龄友好的休闲交流活力场所;同时延续复兴岛的植物脉络,形成四季观赏区。
这个公园将成为居民休闲娱乐的绝佳场所,无论是清晨的晨练,还是傍晚的散步,都能在这里找到属于自己的宁静与惬意。
独家爆料三:“潮鸣东方”同款立体景观园林设计
相得益彰的,是项目内部的园林景观设计。
据悉,社区内将部以“三轴五园”巨制打造8大园林场景。
下沉式的庭院+架空层,带来立体式多重景观园林的体验,从效果图看和绿城潮鸣东方非常接近!
既展现了东方文化的韵味,又不失现代生活的舒适与便利。
保利誉滨江售楼处电话:400-887-5663✔✔【预约热线】保利誉滨江售楼中心:400-887-5663保利誉滨江售楼处电话/地址☎:400-887-5663(开发商热线)如有问题欢迎来电咨询,专业一对一热情服务,让您用专业眼光去买房。
独家爆料四:地下会所+架空层泛会所
社区规划约1500㎡地下会所,涵盖健身房、洽谈区、恒温泳池、瑜伽室等功能空间
地下会所+架空层泛会所,整体体量约3000㎡,保利置业超大手笔打造项目公区,
保利誉滨江售楼处电话:400-887-5663✔✔【预约热线】保利誉滨江售楼中心:400-887-5663保利誉滨江售楼处电话/地址☎:400-887-5663(开发商热线)如有问题欢迎来电咨询,专业一对一热情服务,让您用专业眼光去买房。
土拍回顾
2025年5月,在上海四批次土拍中,保利置业经过72轮激烈竞价,豪掷42.4亿,拿下杨浦区定海社区N090602单元L4-02地块,溢价率26.3%。
据杨浦区官网显示,半个月后,地块规划方案就公示。

保利誉滨江售楼处电话:400-887-5663✔✔【预约热线】保利誉滨江售楼中心:400-887-5663保利誉滨江售楼处电话/地址☎:400-887-5663(开发商热线)如有问题欢迎来电咨询,专业一对一热情服务,让您用专业眼光去买房。
不久前,项目规划进行了调整。
从首份规划公示到此次调整,间隔36天。
整体来看,楼盘的布局没有变动,仍规划建设8幢

保利誉滨江售楼处电话:400-887-5663✔✔【预约热线】保利誉滨江售楼中心:400-887-5663保利誉滨江售楼处电话/地址☎:400-887-5663(开发商热线)如有问题欢迎来电咨询,专业一对一热情服务,让您用专业眼光去买房。楼盘项目全面介绍(包含楼盘简介,均价,房价,现房,期房,别墅,叠墅,大平层,价格,楼盘地址,户型图,交通规划,备案价,备案名,项目配套,样板间,开盘时间,认筹时间,楼盘详情,售楼处电话,最新消息,最新详情,周边配套,一房一价,最新进展等详情咨询)楼盘详情丨价格丨更多优惠丨机不可失丨欢迎致电丨诚邀品鉴!售楼处位置丨特价房丨工抵房丨剩余房源丨户型图丨最新消息配套设施是反映楼盘生活便利程度的重要因素,包括小区内的运动场所、停车场、公共设施等。物业服务则直接关系到居住者的生活品质,包括安保服务、保洁服务、设备维护等。具体到街道、区域名称,临近交通线路、自驾路线。商业、教育、医疗等配套设施分布,总占地面积、总建筑面积数据,容积率,绿化率,得房率,梯户比,物业费,小高层、洋房、高层、独栋别墅、叠加别墅、联排别墅,总户数、楼层分布,面积范围,均价/总价。首付比例、贷款政策,精装交付,含中央空调、地暖等系统,70年住宅产权,物业公司及资质,预计交付时间或施工进度,当前购房优惠政策
一、价格买房
需要、考虑月收入、预期还贷能力、贷款方式、银行利率、地段升值潜力等诸多因素。当然,最好还是听听专家建议。
二、位置
好位置的房子通常具有以下特征:1.城市上风上水。2.交通便捷。3.城市化水平高。4.生活便利。5.环境宜人,自然、人文景观优雅。
三、面积
根据建设部《商品房销售面积计算及公用建筑面积分摊规则》的规定,房屋销售仍按建筑面积计算价格,那么单元住宅的销售面积怎样测算?商品房按“套”或“单元”出售,商品房的销售面积即为购房者所购买的套内或单元内建筑面积(以下简称套内建筑面积)与应分摊的公用建筑面积之和。
四、室内格局
1.一般会考虑再次装修,室内有无横穿的大梁或回水管道要先看清楚,因为梁底的高度将直接影响到吊顶的高度,否则将暴露横梁。
2.注意整个室内格局力求方方正正,避免有三角形(尖角形)等不规则形状出现,也应避免室内中央有拄穿过。因为会影响家具布置,造成的浪费面积多。
3.对房内各功能居室的配置安排及行走动线,要做仔细考量。
4.主卧室应有良好的隔音和充足的光线尽量避免与邻栋建筑的门窗相对,以免破坏机密性,给生活造成不便。
5.厨房与卫生间应选择明卫与明厨,因为自然通风与采光对厨房与卫生间的洁净干燥效果是最佳的。
6.浴厕应考虑自然通风与采光,位置应处在隐密次要处。
五、户型结构
1.根据使用选择户型
住宅的户型按平面组织可分为:独幢公寓、二室一厅、二室二厅、三室一厅、三室二厅、四室二厅等。按剖面变化可分为:复式,跃层式,错层式等。消费者在挑选时,应结合平面、剖面一起考虑。
2.各地户型各有差异
由于历史的原因,各地的房产户型存在着差异,相比上海、深圳等城市,北京的户型设备确实是相对落后。其中主要是两方面的原因:首先是北京对限高、楼距等要求十分严格,出于容积率的考虑,开发商为了尽可能多出面积的考虑,只好牺牲了户型的合理性。
3.室外景观成新宠
客户在购房时,住宅的面积、居室数、朝向、内部布局都是应该考虑的重要因素,但客户挑选住房时有一个新的趋势,即客户选房时对居室朝向有逐渐淡化的倾向,而对室外景观的重视程度正日渐加强。如果室外景观优美,即使传统上让为较差的朝北户型也会受到认可。
4.先厅后卧,顺序选择
在购房时考虑居室各部分的优先顺序是:第一看起居室(厅)是否好用,包括厅的面积、布局等;第二是主卧室的合理性,如面积、采光条件、居室私密性;第三是相对独立的餐厅的功能;第四考虑的是厨房的环境,一个宽敞好用的厨房,往往比次卧室更为客户所看重;第五才是次卧室(书房、客房);最后考虑阳台。
六、朝向
在中国,挑选住宅商品房的客厅,以朝南为最佳。其它朝向的优劣顺序大致为东南、东、西南、北、西。其次,消费者应挑卧室的朝向。一套房内,卧室一般有二三间,其朝向也不会完全一致。而且在大多数情况下是有好有差。
七、楼层
低层建筑一般为一至二层。多层建筑一般为三至七层。高屋建筑一般为八至三十层。超高层建筑一般为三十层以上。因此,这就为建筑层数的挑选提供了可能和广阔的天地。
在挑选底层时一定要看各排水管道、系统是否经过特殊处理;如果底层四周下水道管处理不当、化粪池处理不当,往往会造成臭气熏天、蚊虫苍蝇滋生。底层也最容易接受地面环境的影响,如果地面植物繁茂、景色优美,底层的住户当然是“近水楼台先得月”。
八、设施
一个好的家园,环境应该是干净、整洁、方便,有树、有花、有草,车、人各行其道,访客停车方便。
园林建设可以发挥业主的积极性,如一楼的住户可在开发商以树篱或其他方式标出的花园内种树、种花、种草,不仅可以美化环境,突出个性,而且不用花开发商和以后的物业管理一分钱。
至于会所,当然是很必要的,高档社区更少不了。但是,会所体量应与项目大小相匹配,也就是利用率和维护费用的问题。
另外,会所内容也很重要。除其他设施外,有两样设施必不可少,特别是对高档家园而言:一是健身设施,包括健身器械室,还有可用于健美操等的室内空间;二是室内游泳池。保利誉滨江售楼处电话:400-887-5663✔✔【预约热线】保利誉滨江售楼中心:400-887-5663保利誉滨江售楼处电话/地址☎:400-887-5663(开发商热线)如有问题欢迎来电咨询,专业一对一热情服务,让您用专业眼光去买房。
声明:本文由入驻焦点开放平台的作者撰写,除焦点官方账号外,观点仅代表作者本人,不代表焦点立场。


