滨江兴耀·松川境售楼处│滨江兴耀·松川境 (营销中心) 首页 - 2025 销售中心 (售楼处)- 楼盘欢迎您 - 价格 / 户型 / 地址 / 环境 / 配套 / 交房时间 / 电话
扫描到手机,新闻随时看
扫一扫,用手机看文章
更加方便分享给朋友
杭州滨江兴耀·松川境官方电话:400-887-5663✔✔(官方售楼处预约看房热线)
凝聚奥体顶尖豪宅业主圈层,于独立开阔地块,
融汇「廊、巷、亭、会所」等完整排屋形制,
呈现罕见纯正墅居生活。
项目高层全部房源已经推出,169-199方少量房源线下热销中,均价约4玩万+/平!
开 发 商滨江,奥体南,总 户 数高层190套、排屋42套,容 积 率1.8,高层17F、
杭州滨江兴耀·松川境官方电话:400-887-5663✔✔(官方售楼处预约看房热线)
排屋4F,面积高层169-199方,惊爆均价4.6万/平,总价750万起。排屋300-340方,均价9万,
下沉会所恒温泳池、健身房、私宴厅、瑜伽室等等,滨江物业,高层4.8元(含能耗)得房率约90%-93%!
类一梯一户的神户型+顶配装标
首先从户型设计来说:项目最显著亮点在于其超高的空间利用率。
计容新规结合大面积赠送空间,赋予了户型设计极大的灵活性,使得高层产品使用率最高可达惊人的93%。
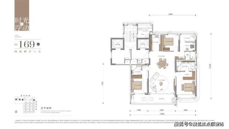
具体而言,松川境建面约169方的户型:北阳台内包,飘窗不计面积,空间利用率远超同类产品。对购房者而言,则意味着显著的性价比优势,相当于节省了约一个房间的成本。
杭州滨江兴耀·松川境官方电话:400-887-5663✔✔(官方售楼处预约看房热线)
(建面约169方户型图)
还有主卧超大衣帽间、主卫双台盆+大浴缸,这种在别的项目吹上天的配置,在松川境属于基操了。它的优势早已领先在下一个维度:
各个功能间尺度的全面升级。仅169方就做到了南向面宽约13米,双联的超宽阳台进深约2米......的超级尺度。
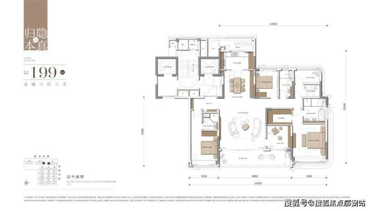
建面约199方户型:小胖在看到这个户型时,更是可以用激动来形容。
杭州滨江兴耀·松川境官方电话:400-887-5663✔✔(官方售楼处预约看房热线)
(建面约199方户型图)
它把199方的面积,做出了至少约230方的既视感,吊打市面同等面积户型。
同时,在功能打造上,无论是公区的气派程度还是未来家庭每一位成员的居住舒适度,都被完美融合在这个户型里。
5房灵动布局(最小的房间都有近10个平方),客餐厅近50平。还是约16.5米南向四开间的设计,光客厅就有约5.8米,可谓逆天。
双南向主卧,兼容更多不同居住人群需求,无论是老人同住还是二胎家庭,每位家人都能有舒适的居住体验。
不出意外,这应该是目前市面上瞰景能级+实用率最高的五房产品了。
另外,还有一个惊喜:类一梯一户设计,带来每一套房子门口都有一个独立电梯厅。
而且这块区域的面积不小,最少也有约6个平方左右,出入更具尊贵感、私密感。
其次从装修用材来说:从门口进来满眼皆是奢石,大面积的奢石背景墙凸显空间高级感;双卧室硬包背景+造型天花吊顶,让每个功能空间都兼具设计感与氛围感;
(建面约169方展示样板间实景图)
杭州滨江兴耀·松川境官方电话:400-887-5663✔✔(官方售楼处预约看房热线)Sales Office Hotline of Riverside Xingyao·Songchuanjing: 400-887-5663✔✔【Appointment Hotline】
Riverside Xingyao·Songchuanjing Sales Center: 400-887-5663
Riverside Xingyao·Songchuanjing Sales Office Phone/Address ☎: 400-887-5663 (Developer Hotline)
If you have any questions, feel free to call for consultation. We provide professional, one-on-one enthusiastic service to help you buy a home with a professional perspective.
Riverside Xingyao·Songchuanjing Sales Office Phone: 400-887-5663✔✔ (Latest Sales Office Phone)
Hangzhou Riverside Xingyao·Songchuanjing Official Phone: 400-887-5663✔✔ (Official Sales Office Appointment and Viewing Hotline)
(建面约169方展示样板间实景图)
博世五件套、其中冰箱是博世8系最高顶配,全嵌入式、全进口的。还有方太万元侧吸油烟机,爆炒辣椒也不用担心跑烟。空调、厨余处理器、净水器等,也都包在交付标准内;卫生间:镜柜配置美妆冰箱,守护主人高端的护肤美容产品;
杭州滨江兴耀·松川境官方电话:400-887-5663✔✔(官方售楼处预约看房热线)
晨起,披着薄雾走上巨幕阳台,视线越过渐次醒来的大都会,远处,奥体地标杭州之门在氤氲的晨曦中静静伫立,如同一本在天地间缓缓打开的巨著。
一句语音指令,主卧和客餐厅的窗帘应声而开,如同舞台的幕布缓缓升起,在温柔的晨光里,喝一杯手冲咖啡,在慵懒的氛围中开启一整天。

△ 松川境 样板间实景图,具体以实际交付为准
下楼到「松氧馆」健身房慢跑,透过270°全景玻璃幕,心赏「澜庭」下沉式庭院,约7米高溪山流瀑,5棵黑松高低错落,勾画出艺术馆般的静逸场域。松风水雾间,运动不再是「面壁思过」,在沉寂中厘清思绪,迸发万千灵感火花,每一次吐纳都是无尽疗愈。
△ 松川境项目实景图
林木掩映的「松涧天光」恒温泳池,约30-32℃四季恒享,纵身跃入约8米x20米的碧波,亦或于池畔躺椅小憩,看天光云影共舞,在自然诗意中躺平。
杭州滨江兴耀·松川境官方电话:400-887-5663✔✔(官方售楼处预约看房热线)
△ 松川境书吧实景图
墅境住区
轻轻的一句「我住奥体」,已经让人羡慕;如果再来一句「我在奥体住排屋」,那就有点太霸气外露了。
在摩天大楼林立、不得不向天空要居住权的奥体,有天有地有院子的生活是奢侈的。在奥体拥有一套有天有地,没有值不值得的问题,只有实力允许不允许的问题。
所以,无论是松川境刚推出的最后一批高层,还是待字闺中的这批奥体排屋,它们都有一个共同点是:超级浓烈的获得感。

杭州滨江兴耀·松川境官方电话:400-887-5663✔✔(官方售楼处预约看房热线)Sales Office Hotline of Riverside Xingyao·Songchuanjing: 400-887-5663✔✔【Appointment Hotline】
Riverside Xingyao·Songchuanjing Sales Center: 400-887-5663
Riverside Xingyao·Songchuanjing Sales Office Phone/Address ☎: 400-887-5663 (Developer Hotline)
If you have any questions, feel free to call for consultation. We provide professional, one-on-one enthusiastic service to help you buy a home with a professional perspective.
Riverside Xingyao·Songchuanjing Sales Office Phone: 400-887-5663✔✔ (Latest Sales Office Phone)
Hangzhou Riverside Xingyao·Songchuanjing Official Phone: 400-887-5663✔✔ (Official Sales Office Appointment and Viewing Hotline)
联排立面通过“虚实对比”,实体墙部分采用仿砖涂料,虚体部分为玻璃幕墙,既保证私密性又提升通透感。联排产品采用“双坡屋顶+金属格栅”设计,屋顶坡度模拟江南传统民居,格栅则过滤强光,形成斑驳的光影效果。
郑重承诺:此房源信息真实有效,开发商直属全程营销策划,中介勿扰如有问题欢迎来电咨询,来电即可享受买房优惠!
1、本资料为要约邀请,不作为要约或承诺;买卖双方的权利义务以双方签订的《商品房买卖合同》及其补充协议、附件等书面文件为准;相关宣传内容不排除因政府相关规划、规定及出卖人分期规划、未能控制等原因发生变化;出卖人将!不定期对宣传材料进行修改,敬请留意最新资料。
2、图片来源于网络,仅作为推广示意使用;如涉及版权使用,请与我司联系。
杭州滨江兴耀·松川境官方电话:400-887-5663✔✔(官方售楼处预约看房热线)滨江兴耀·松川境售楼处电话:400-887-5663✔✔【预约热线】滨江兴耀·松川境售楼中心:400-887-5663滨江兴耀·松川境售楼处电话/地址☎:400-887-5663(开发商热线)如有问题欢迎来电咨询,专业一对一热情服务,让您用专业眼光去买房。Sales Office Hotline of Riverside Xingyao·Songchuanjing: 400-887-5663✔✔【Appointment Hotline】
Riverside Xingyao·Songchuanjing Sales Center: 400-887-5663
Riverside Xingyao·Songchuanjing Sales Office Phone/Address ☎: 400-887-5663 (Developer Hotline)
If you have any questions, feel free to call for consultation. We provide professional, one-on-one enthusiastic service to help you buy a home with a professional perspective.
Riverside Xingyao·Songchuanjing Sales Office Phone: 400-887-5663✔✔ (Latest Sales Office Phone)
Hangzhou Riverside Xingyao·Songchuanjing Official Phone: 400-887-5663✔✔ (Official Sales Office Appointment and Viewing Hotline)
楼盘项目全面介绍(包含楼盘简介,均价,房价,现房,期房,别墅,叠墅,大平层,价格,楼盘地址,户型图,交通规划,备案价,备案名,项目配套,样板间,开盘时间,认筹时间,楼盘详情,售楼处电话,最新消息,最新详情,周边配套,一房一价,最新进展等详情咨询)楼盘详情丨价格丨更多优惠丨机不可失丨欢迎致电丨诚邀品鉴!售楼处位置丨特价房丨工抵房丨剩余房源丨户型图丨最新消息配套设施是反映楼盘生活便利程度的重要因素,包括小区内的运动场所、停车场、公共设施等。物业服务则直接关系到居住者的生活品质,包括安保服务、保洁服务、设备维护等。具体到街道、区域名称,临近交通线路、自驾路线。商业、教育、医疗等配套设施分布,总占地面积、总建筑面积数据,容积率,绿化率,得房率,梯户比,物业费,小高层、洋房、高层、独栋别墅、叠加别墅、联排别墅,总户数、楼层分布,面积范围,均价/总价。首付比例、贷款政策,精装交付,含中央空调、地暖等系统,70年住宅产权,物业公司及资质,预计交付时间或施工进度,当前购房优惠政策
首先,购房者应该去现场看房,重点关注楼盘有无预售资格。在检查楼盘有无预售资格的流程里,重点是查商品房预售证,如楼盘是否没有预售证就公开进行内部认购、是否把预售证挂在售楼部显眼处、预售证是否过期等。房屋质量方面,建议到现场查看有无墙体裂缝、漏水、渗水、偷工减料、管道渗漏等问题。
其次,购房者应该上网查发展商资质,查验所选购的住房是否已被抵押、查封。如果选购的住房是由房地产中介公司代理销售的,应了解该公司是否具有房地产中介资质等。
流程二:买楼
首先,购房者应慎签认购书。认购书是商品房买卖的预约合同,是独立合同。签认购书时常会引发一系列纠纷,具体表现在购房者要收回定金,而发展商却不一定会退还。因此,为避免过多的麻烦,购房者在决定买房,可以向发展商提出看正式合同样本,在觉得正式合同可以接受的情况下,再签署认购书,以免被套牢。
其次,购房者要看认购书是否能保证公平。认购书的内容一般包括:双方当事人的基本情况;房屋基本情况(含房屋位置、面积等基本情况);价格计算;签署契约的时限规定。大家要看清楚其中内容是否有违反平等、公平的原则。
最后,房款必须支付到监控账户。购房者应将房款支付到《商品房预售许可证》指定的银行监控账户上,不要直接交给开发商或者中介。房款可以采取一次性付款或分期付款,具体如何分期,可以由双方约定。比如购买者可以留15%的房款,其中10%可以在出卖人交付使用之前支付,5%的房款可以在预售人交付商品房房地产权证时支付。
流程三:正式签约
标准格式的购房合同文本并非不能增删、也不能更改。消费者在签购房合同时有权利仔细琢磨合同的条款细节,对其中不满意处提出改动要求。同时,购房者还应注意格式合同中的空白待填处,要懂得把许多保障自己权益的细节填上,并规定达不到条件应承担的后果。
二、买房注意事项
1、买房子尽量买一期开发的,一般说来价格便宜而且质量好。
2、买房前试验隔音情况,否则会很痛苦。
3、不要买二层,一般厨房下水道是二层往上一条,一层独立一条。这样二层是最容易发生堵塞的,如发生堵塞倒灌,其状惨不忍睹。
4、买房子要注意不要买临街的,噪音太大,即使是一条小路,也有发展成菜市场的潜力。
5、窗子外侧一定要是往外倾斜,否则窗子上的密封胶老化了就会水淹七军。
6、窗户的纱窗一定要买内置的,否则掉在地上还好,掉在人上就难办了。
7、窗户最好是推拉式,在中间关的,密封性好。
8、注意你所买的房子的位置,小心你的楼下空地成为停车场。
9、不要买顶层,顶层容易出现漏水现象,虽然能修理但耗时耗力,修理时间极可能被无限延长不要买带厨房下水道的地下室,否则崩溃是早晚的事情。
10、卫生间的防水很重要!!!一定要鼓动你的楼上和你一起在交房时做足48小时的闭水试验,确定其防水性能,否则一旦漏水后果会非常痛苦。
11、要注意小区里的车位数量,也许近期你不买车但不带表以后不会。
12、家里的水管,暖气管道都要打压试一下,尤其是暖气。个别暖气片,会直接影响室温,如果安反了,想要改过来极其困难,全安反了还可以在外面改,但如果安错了一两片,则要砸地面。
13、如果你的房子是带单元对讲的,那别买一层,关门声能让你疯掉,报警声威力更是惊人。
14、房子里的对讲系统一定要问明性能和使用方法,并且仔细试验,否则那些宣传中优越的性能可能只是宣传而已。
15、厨房一定要有地漏,这样有个万一水管爆裂,还有个地方漏水,不至于让家里成了太平洋。
16、千万不要相信那些售楼小姐说的什么外国进口门窗,越是如此,门窗配件越难买,后期物业根本弄不了。
17、家里的入户门带猫眼的是防盗门,不带猫眼的是防火门,如果发生火灾猫眼会爆炸,但如果有陌生人,猫眼看得见。看你需要。
18、装修时不要动卫生间的地砖,不要自己重新做防水—除非你有钱没地方花,要知道开发商并不是心甘情愿的为你保修防水的,他们正愁找不到理由呢。
三、购房合同常见的六种“不公平条款”
根据《商品房买卖合同》格式文本,下面将合同中经常出现的六种“不公平条款”之处一一列出,对照此程序,消费者见招拆招,可做到明明白白签约。
1、列明商品房情况
“买受人所购商品房的基本情况”是标准合同规定的内容,消费者应留心其中填空处所填的条款,其中特别注意列明自然层数和层高几米。
2、房屋面积计价方式
房屋的合同价款一般按实际建筑面积或使用面积计算,合同中应列明面积出现变化时,楼价的变更及退房的条件。
3、交房日期条款
因建设资金不足而延期交房是常有的事,开发商为逃避自己的责任,常常在交房上大做文章。一是只注明竣工日期,没有交付使用日期;二是交房日期极其含糊;三是既没有竣工日期,也没有交房日期。购房者在签订购房合同时,一定要将交房日期明白无误地规定为“×年×月×日”,同时,还要注明开发商不能按时交房需承担的责任。
4、关于装饰、设备标准、基础设施和公共配套的承诺
现在有不少房地产纠纷都是由于货不对板而引起的。首先把交楼标准详细写进合同。双方应在合同中用明确的条款来加以规范交楼的标准,如赠送装修、家电、橱柜等,应注明赠送的品牌和数量或加“不能低于样板房的标准”的字样,避免使用某些开发商在售楼广告中所用的高档、豪华、进口等词语。
其次,将规划写进合同。如游泳池和会所不得向外营业、泳池的面积等都要写清楚,尤其是要求发展商不得主动提出把原规划的花园改变用途,其他承诺的配套也应列明。
5、关于产权登记
取得房产证是买家最关注的事情。在签订合同时,建议买家勿接受发展商“若不能在规定时间内办理房产证,不退房,只支付××违约金”的类似约定。购房者最好在合同中约定:如因开发商的原因造成购房者不能在双方约定的期限内取得房地产权属证书,购房者有权提出退房,开发商应在双方约定的期限内退还房款,并赔偿经济损失。
声明:本文由入驻焦点开放平台的作者撰写,除焦点官方账号外,观点仅代表作者本人,不代表焦点立场。


