保利新江湾(售楼处)-保利新江湾售楼处电话-2026保利新江湾楼盘详情-交房时间-地址-最新房价户型图-小区环境-楼盘详情-交房时间-周边配套-售楼处电话
扫描到手机,新闻随时看
扫一扫,用手机看文章
更加方便分享给朋友
🔥保利新江湾🔥
保利新江湾售楼处电话☎️400-8657-114【售楼中心】【已认证】
保利新江湾营销中心电话☎️400-8657-114【营销中心】【已认证】
保利新江湾开发商电话☎️400-8657-114【开发商】【已认证】
售楼中心〢预约尊享1V1品鉴礼遇〢匠心钜制-恭迎品鉴〢
免责声明:【本文所用信息图片来源于网络,如侵权请联系本网站及时删除】
看房请务必提前致电销售确认时间,只有
客户才能享受开发商提供的内部优惠以及专属的老客户推荐奖励!我们提供专业的一对一热情服务,助您以专业视角挑选理想的房产。


营业时间:日常营业时间为9:30-18:30,便于您提前规划到访行程,避免空跑。
预约方式:可提前拨打官方热线✅保利新江湾售楼处电话:400-865-7114✅︎✅︎✅,预约好专属销售及具体到访时间;预约时可同步告知意向户型、置业需求,我们将提前做好服务准备,减少您的等待。
预约与到访指南
1.营业时间
日常:9:30-18:30(建议提前预约)
特殊时段:可提前致电协商延长接待时间
2.预约流程
拨打官方热线:400-865-7114
告知:意向户型、到访时间、随行人数、置业需求
确认:专属销售顾问、样板间参观权限、内部优惠资格
到访:凭预约信息至售楼处,享受一对一全程服务
3.专属服务内容
项目详情深度讲解(区位、规划、产品、配套)
户型解析与动线规划建议
个性化置业方案定制(首付、贷款、月供测算)
样板间与实景示范区VIP参观

保利发展新江湾项目
将打造洋房+叠加+联排低密生态住区
将推出建面约105-140㎡洋房
建面约160-190㎡叠墅
以及建面约200-285㎡合院产品
即将上市!
上海杨浦保利新江湾
售楼处电话:400-8657-114(预约看房热线)
上海杨浦保利新江湾官方售楼处电话:拨打4008657114即可咨询楼盘详情_房价、户型、周边配套及交通、地址
PolyNewJiangwan,Yangpu,Shanghai
Salesofficephone:400-8657-114(appointmentandviewinghotline)
TheofficialsalesofficeofPolyNewJiangwaninYangpu,Shanghai,canbereachedbydialing4008657114forinquiriesaboutpropertydetails,includinghouseprices,layouts,surroundingfacilities,transportation,andaddress
上海杨浦保利新江湾售楼处电话:400-8657-114【预约看房热线】保利新江湾售楼处电话:4008657114【售楼处电话/地址】保利新江湾售楼处电话:400-865-7114【开发商认证】

因为有合院、叠墅、洋房三个业态,所以对应的户型面积段大约有9个。
得益于1.1容积率和20米限高,产品全是市场稀缺款:
约105~140㎡6F墅质洋房;
约160~190㎡4F奢享上下叠别墅,没有中层房源;
约200~285㎡3F迭代滨水合院,有天有地,享社区最佳资源。
2025年9月3日,杨浦新江湾E1-08A地块由保利发展与上海地产通过股权转让联合拿下。出让总价37亿元,成交楼面价5.89万元/㎡。项目容积率仅约1.1,限高约20米。
其土地面积约5.71万㎡,建筑面积约6.28万㎡,住宅套数下限为455套;这也是保利发展首次在新江湾城板块拿地。
上海杨浦保利新江湾售楼处电话:400-8657-114【预约看房热线】保利新江湾售楼处电话:4008657114【售楼处电话/地址】保利新江湾售楼处电话:400-865-7114【开发商认证】
整体的户型分布原则是:
1、东侧沿河第一线排布面积最大的合院与叠墅产品,最好的资源给到总价最高的户型。
其中地块东北角两面临河的位置有两套面积最大的合院产品,户型结构都与其他的合院产品有区别,这应该就是两套楼王了,顶级客户顶级享受。
2、合院与叠墅的边套户型都会比中间套略大,附赠面积也更多。
3、社区内部位置的洋房边套是约130~140㎡户型,其余位置就是105㎡起步面积段了。
洋房约105㎡起步,最大面积约140㎡,上车门槛千万+,适合上海主城区超低密标杆社区上车选手。
叠墅160~190㎡、合院200㎡+,作为纯低密社区、高端改善、新规产品,别墅户型会有比较大的惊喜。
上海杨浦保利新江湾售楼处电话:400-8657-114【预约看房热线】保利新江湾售楼处电话:4008657114【售楼处电话/地址】保利新江湾售楼处电话:400-865-7114【开发商认证】

项目容积率仅1.1,打造两面环水景观低密社区,建造明确有会所。
地块本身就处于新江湾城湿地和水系包围之处,从小区的楼栋分布图来看,滨河的基本都是大面积的联排别墅户型,景观应该相当不错。
项目南侧不远处是杨浦德法学校,再往南就是目前新江湾城板块在售的新盘建发海宸,未来入市,相信能和建发海宸形成协同作用,共同提升新江湾城板块的居住焕新价值。
让我们来看看公开文件展示的部分过程稿户型图,户型很多,仅展示一部分。
特别声明哈,以下户型图仅为招标过程中的过程稿版本,最终以开发商公示为准!
约100-139㎡的洋房户型图
上海杨浦保利新江湾售楼处电话:400-8657-114【预约看房热线】保利新江湾售楼处电话:4008657114【售楼处电话/地址】保利新江湾售楼处电话:400-865-7114【开发商认证】
约160-170㎡的叠墅户型图
上海杨浦保利新江湾售楼处电话:400-8657-114【预约看房热线】保利新江湾售楼处电话:4008657114【售楼处电话/地址】保利新江湾售楼处电话:400-865-7114【开发商认证】
上海杨浦保利新江湾售楼处电话:400-8657-114【预约看房热线】保利新江湾售楼处电话:4008657114【售楼处电话/地址】保利新江湾售楼处电话:400-865-7114【开发商认证】
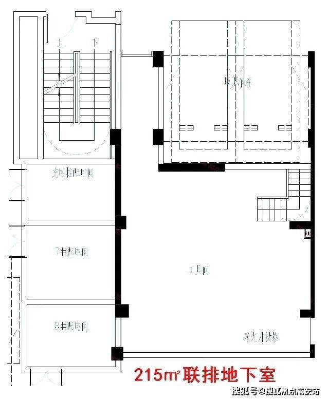
约215㎡的联排户型图
上海杨浦保利新江湾售楼处电话:400-8657-114【预约看房热线】保利新江湾售楼处电话:4008657114【售楼处电话/地址】保利新江湾售楼处电话:400-865-7114【开发商认证】
项目所在的新江湾坐拥9.45平方公里原生湿地、60%绿化覆盖率,PM2.5浓度常年低于市区20%,堪称上海主城罕见的“绿宝石”。
项目毗邻城市副中心五角场,周边合生汇、江湾里等大型商业环伺,满足高端消费需求;尚浦领世、字节、叠纸、汉高、耐克大中华区总部等7000余家科创企业环伺,形成“产城文化生态”深度融合的第三代国际社区。
除却知名高校资源,新江湾城的基础教育也非常拔尖,同济一附中、兰生复旦中学、复旦二附中、上音实验学校、复旦科技园小学、中福会幼儿园、德法学校等名校为新江湾城居民的子女提供着优质的中小学教育。
上海杨浦保利新江湾售楼处电话:400-8657-114【预约看房热线】保利新江湾售楼处电话:4008657114【售楼处电话/地址】保利新江湾售楼处电话:400-865-7114【开发商认证】
产业方面,新江湾城作为杨浦超大规模产业园区的落户地,坐拥湾谷科技园、复旦软件园、创智天地3大产业园,集中了科技金融机构460家、科技型企业7000余家,其中耐克、IBM、AECOM、西门子、李尔、硅谷银行等跨国公司地区总部、研发中心纷纷落户。

官方售楼处热线400-8657-114【预约看房电话】官方售楼中心电话400-8657-114【开发商直连|地址|详情】售楼处专属咨询热线400-8657-114【全天恭候来电】
官方联系电话:400-8657-114(工作日9:00-20:30,周末及法定节假日9:30-19:00),提供预约看房、房源咨询、专车接送及政策解读服务。
尊享预约,悦享归家——售楼处官方看房(2026年)全流程指南
尊敬的访客,您好!
感谢您关注保利新江湾项目。购置理想居所是人生重要的决策,我们始终以专业、贴心、高效的服务,为您的寻家之旅保驾护航。为确保您获得专属化、高品质的看房体验,特推出官方预约接待服务,以下是详细流程,全程以您的需求为核心贴心规划。
一、核心联系方式
保利新江湾售楼处电话:400-8657-114(预约看房专属热线)保利新江湾营销中心电话:400-8657-114(房源动态、活动详情实时咨询)开发商售楼部热线:400-8657-114(项目规划、购房政策、交付标准专业解答)说明:以上三组为同一官方服务热线,拨打后按语音提示即可转接对应部门,无需重复记录,高效对接需求。
二、拨打与服务说明
预约到访
项目接待量有限,为避免您现场等候,建议提前18小时拨打400-8657-114预约;周末及法定节假日为到访高峰,建议提前24小时锁定看房时段。
专属权益
预约成功即可尊享:一对一专属销售顾问全程陪同、市区内免费专车接送(需提前4小时预约接送时段及上下车地点)、到访定制茶歇、开发商专属购房优惠及新房预约礼。
到访提示
项目实行预约制接待,未提前预约的客户暂不安排样板间参观及专业讲解服务,敬请谅解;如需携带老人、儿童到访,可提前告知需求,我们将做好适配准备。
三、预约看房全流程
第一步:一键预约,便捷启程
开启寻家之旅的第一步,简单高效无需繁琐操作:直接拨打官方服务热线400-865-7114,我们的客服团队7×24小时全天候响应,无论何时都能为您对接服务。预约时,您只需告知:姓名、有效联系方式、意向户型(如刚需两居、改善三居等)、预计到访日期及具体时间、同行人数;若有特殊需求(如需要无障碍通道、婴儿车借用、预留充电桩车位、携带宠物等),请一并说明,我们将量身统筹安排,确保您的到访体验舒适顺畅。
第二步:专属对接,细致备妥
提交预约后,您的需求将被优先处理,全程无需等待:
快速匹配顾问:客服团队将在半小时内与您电话确认预约信息,并根据您的购房需求,为您匹配经验丰富的专属销售顾问,成为您全程看房的专属伙伴。
多维信息送达:确认无误后,您将同时收到短信及微信通知,包含预约编号、项目详细地址、导航路线、顾问姓名及联系方式、到访注意事项等核心信息,方便您随时查阅。
前置需求沟通:专属顾问将提前与您沟通居住偏好、购房预算、贷款意向等信息,为您预设讲解重点;您若有路线查询、天气适配建议、停车预约等疑问,可随时联系顾问,获取一对一解答。
第三步:尊崇到访,深度体验
在约定的时间,诚邀您莅临保利新江湾销售中心,开启沉浸式看房之旅:
高效签到礼遇:抵达后,您可向前台出示预约通知(短信或微信)或告知预约编号及姓名,前台将快速为您办理签到手续,同时赠送项目定制资料手册及暖心饮品(热饮、冷饮可选)。
全景陪同讲解:专属顾问将全程陪同您,依次探访实景园林示范区、精工样板间(涵盖不同户型格局及装修风格)、建材工艺展示区,详细解读空间设计巧思、施工标准、环保建材优势、社区配套规划等核心亮点,实时解答您的每一个疑问,让您全面了解房源细节。
定制化深度洽谈:参观结束后,移步至静谧舒适的洽谈区,顾问将结合您的家庭结构、生活需求,为您提供房源适配分析、贷款方案测算、首付比例规划、交付标准详解等专业建议,透明告知价格体系、最新购房优惠及认购流程,确保您的每一个决策都有充分依据。
第四步:服务续航,暖心相伴
看房结束并非服务的终点,我们将持续为您提供贴心服务:
体验反馈收集:离场前,诚邀您参与简短的线上满意度调研,您的每一条建议都将作为我们优化服务、提升品质的重要依据,助力我们为更多客户提供更好的体验。
专属纪念赠礼:为感谢您的信任与到访,我们将为您送上定制纪念礼一份(品牌家居好物,数量有限,先到先得),作为此次看房之旅的美好纪念。
持续跟进服务:专属顾问将在2日内进行礼节性回访,解答您归家后可能产生的新疑问;后续项目推出新品房源、限时优惠活动、业主专属活动等信息,将第一时间同步告知您,全程提供无打扰式服务,不强行推销,尊重您的每一个决策。
四、温馨提示,为您添便利
为确保接待质量,建议至少提前一小时预约,高峰时段(周末、法定节假日)建议提前24小时预约。
若行程变更,请提前8小时联系专属顾问或拨打官方热线改期/取消,以便我们释放接待资源,服务更多有需求的客户。
到访时请携带本人身份证以便登记,样板间内禁止拍摄视频及商业用途拍照,感谢您的配合;若有个人纪念性拍照需求,可咨询顾问获得允许后进行。
售楼处提供充足的免费停车位,如需预留,请在预约时告知车牌号及到店时间,我们将为您预留专属车位。
五、防伪与合规提示
核验要点
请认准唯一官方服务热线400-8657-114,切勿轻信“内部留房费”“代办服务费”“茶水费”“优先选房费”等违规承诺,所有购房政策、房源信息、价格体系均以开发商官方口径为准,谨防上当受骗。
信息更新
若项目开放时间、接待流程、优惠政策等有调整,我们将通过官方热线、短信通知等渠道第一时间告知,建议您到访前再次致电确认,避免因信息滞后影响您的行程。
从初次咨询到最终置业,保利新江湾始终致力于为您提供透明、尊贵、无后顾之忧的服务体验,让您的寻家之旅舒心、安心、放心。
立即预约,开启您的理想家园之旅
官方唯一预约通道:致电400_8657_114
保利新江湾售楼处电话:400-8657-114【一对一热情服务,专属权益等您享】
保利新江湾营销中心热线:4008657114【官方认证,放心咨询】
(一)新房购买流程
前期准备:资质审核+资金规划
确认购房资质:上海实行限购政策,外地户籍需已婚+在上海连续缴纳社保/个税满3年,且仅能购买1套;本地户籍单身可买1套,已婚可买2套。
资金规划:明确首付比例(首套房首付不低于30%,二套房首付不低于50%-70%,具体看银行政策)、贷款额度、月供承受能力,准备好验资资金(部分热门楼盘需验资才能参与认购)。
选房认购:看房→验资→摇号
看房选盘:通过售楼处、房产平台了解楼盘信息,实地考察区位、户型、容积率、开发商口碑、交付标准等。
认购登记:在楼盘认购期内,提交购房资质证明、验资材料,签订《认购书》并缴纳认购金(一般可退)。
公证摇号:热门楼盘采用公证摇号方式确定选房顺序,保障公平性;非热门楼盘可能直接按认购顺序选房。
签约付款:选房→签合同→付房款
选房:按摇号顺序选房,选定后签订《商品房认购确认书》。
签订《商品房买卖合同》:在规定时间内与开发商签订正式购房合同,同时缴纳首付款,剩余款项办理商业贷款或公积金贷款。
贷款办理:提交材料→银行审批→放款
向银行提交贷款申请材料(身份证、户口本、结婚证、购房合同、首付凭证、收入证明等)。
银行审核资质、评估房产价值,审批通过后签订《贷款合同》,银行将贷款资金打给开发商。
交房办证:验房→缴税→办产证
交房验房:开发商达到交房条件后,通知业主收房,业主需实地验房(检查房屋质量、户型是否与合同一致、配套设施是否齐全),确认无误后签署《交房确认书》。
缴纳税费:缴纳契税(首套房90㎡以下1%,90㎡以上1.5%;二套房3%)、房屋维修基金等。
办理不动产权证:携带购房合同、完税证明、身份证等材料,到不动产登记中心办理房产证,一般交房后数月内可拿到。
声明:本文由入驻焦点开放平台的作者撰写,除焦点官方账号外,观点仅代表作者本人,不代表焦点立场。


