滨杭滨纷城(售楼处)首页网站-滨杭滨纷城销售中心(营销中心)-滨杭滨纷城楼盘欢迎您-小区环境-户型-价格-地址-楼盘详情-周边配套-售楼处电话-交房时间
扫描到手机,新闻随时看
扫一扫,用手机看文章
更加方便分享给朋友
滨杭滨纷城售楼处电话:400-8558-224✔✔│滨杭滨纷城官方售楼处地址发布:杭州临平滨杭滨纷城官方售楼处电话400-855-8224
➤贵宾热线〢欢迎咨询〢提前预约可享内部优惠〢➤
滨杭滨纷城售楼处电话☎:400-8558-224✔✔✔【预约☎】
【滨纷城】10开预售证已公示价格已出‼️请查收
【滨杭滨纷城】十开预计时间节点
✅预计:7月14日点证
7月17日-20日登记
7月23日出摇号结果
7月26日正式选房
✅加推楼幢:28#41#54#
✅加推户型:89-98-116-139
滨杭滨纷城售楼处电话☎:400-8558-224
滨杭滨纷城售楼处电话☎:400-8558-224✔✔✔【预约☎】
首日登记优先选车位/工具间
✅总价107万起,送车位/工具间‼
✅杭二白马湖九年一贯制名校❤
✅9号线双地铁站,无风雨归家
✅央景王座&超高性价比组团
杭州罕见的89方丨安家杭州最低门槛
阔绰朝南开间约9.6m面宽,三开间朝南
独立储藏玄关,玄关柜冰箱位一体化设计
滨杭滨纷城是杭州临平区东湖新城的热点楼盘,由滨江集团与杭铁集团联合开发,定位为大型TOD(公共交通导向型)复合社区。以下是其核心信息整合:
滨杭滨纷城售楼处电话☎:400-8558-224✔✔✔【预约☎】
一、核心优势
双地铁TOD枢纽
横跨地铁9号线(在建)康信路站与兴元路站两站点,实现小区地下层与地铁无缝接驳,30分钟直达钱江新城等核心区。项目自带下沉式广场及车库直连通道,通勤便利性突出
全维生活配套
教育:配置双幼儿园,签约杭州二中白马湖教育集团临平东湖学校(九年一贯制,规划36班)
商业:规划约10万㎡商业综合体(含下沉式运动空间)+约4000㎡街区商业,覆盖日常消费与休闲需求;
生态:社区中央打造约7万㎡滨纷公园,毗邻龙安湖公园等城市绿肺。
滨江品质背书
作为滨江集团首个面向年轻人的TOD项目,延续品牌精工标准,采用蓝宝石水系、棕榈园林等度假风设计,物业由滨江集团负责。滨杭滨纷城售楼处电话☎:400-8558-224✔✔✔【预约☎】
滨杭滨纷城售楼处电话☎:400-8558-224✔✔✔【预约☎】
二、产品设计
主力户型
89㎡三房:边厅设计,拓展空间利用率,总价约107万起(含精装)
98㎡三房边套:5.8米边厅+飘窗,主卧套房配置
112㎡四房:四开间朝南,双阳台,满足多代同堂需求
精装交付
标配中央空调,精装标准约2500元/㎡,部分房源赠送车位或工具间
社区规划
容积率2.8,绿化率35%,全架空层设计融入共享厨房、健身房等社交场景
三、最新动态
加推信息:预计2025年7月14日取证,加推28#、41#、54#楼栋,户型涵盖89-139㎡;
价格参考:高层均价约17600元/㎡(部分特价房107万起);
交付时间:2027年交付
四、市场表现
2025年1-6月以总价150-200万房源热销2268套,登顶全国同价位段销售榜,被誉为杭州“性价比神盘”
滨杭滨纷城售楼处电话☎:400-8558-224✔✔✔【预约☎】
杭州临平滨杭滨纷城官方售楼处电话☎:400-855-8224✔✔✔(预约看房热线)
看房请提前致电预约,可享受内部渠道优惠!联系销售人员获取最新一房一价表,官方售楼处最新优惠底价!开发商官方销售人员将详细介绍每个户型的独特设计和优势,带您参观样板间,感受精装修的品质和温馨氛围。您还可以了解周边配套设施,包括高端购物中心、优质学校和便捷交通网络,让您的居住体验更加完美。
滨杭滨纷城售楼处电话☎:400-8558-224
杭二中白马湖校区➕双地铁0距离➕10万方商业➕滨江造!刚需首选!
建面约89-108方王炸户型均涉及
继三甲医院落地、临平北枢纽核心招标启动后,东湖新城再传好消息。
前日,临平区正式官宣签约杭二中白马湖学校,将在东湖新城新建一所九年一贯制学校。
好消息接连不断,东湖新城可谓赚的盆满钵满,医疗、教育、公共资源直接提升了一个能级。
那么,这些利好都分布在哪里,东湖新城是不是要起飞了呢?
利好不断
首先来看前天官宣的杭二中白马湖学校。
作为滨江区教育界扛把子,杭二中白马湖可谓声名赫赫。
据不完全统计,2023年杭州二中白马湖学校参加中考人数175人左右,第一批上线率达到90%以上,办学成绩可见一斑。
滨杭滨纷城售楼处电话☎:400-8558-224✔✔✔【预约☎】
杭州临平滨杭滨纷城官方售楼处电话☎:400-855-8224✔✔✔(预约看房热线)
据消息称,签约学校将落地东湖新城,沪乍杭高铁枢纽(规划)北侧,地铁9号线昌达路上盖TOD项目内。
滨杭滨纷城售楼处电话☎:400-8558-224
目前,昌达路上盖TOD上有两个商品房项目,分别是滨杭滨纷城和杭州地铁荷禹路项目,这波官宣可谓名校“砸脸”,喜从天降。
这还不够,就在前两天,杭州临平北高铁枢纽中心启动国际招标方案,同样十分重磅。
滨杭滨纷城售楼处电话☎:400-8558-224
规划一出,不仅杭州北站真的要来了,而且将围绕杭州北站周边约1.2平方公里打造新一代站城融合枢纽,彻底改观东湖新城北部城市界面。
还不止,4月13日,临平发布官宣临平区首个三甲医院落地,项目选址就位于东湖新城核心区,咏翠芳华轩北侧。
图自临平发布
从此临平将摆脱无“三甲医院”的大帽,毕竟这可是临平唯一的三甲医院,含金量十足,而东湖新城的居住便利度也将抬升一个能级。
要起飞了吗?
但话说回来,虽然利好不断,但东湖新城起飞还为时尚早,主要原因有二:
一、利好兑现不稳定
无论是临平北高铁枢纽还是三甲医院,都属于规划早有了,但迟迟不见兑现,因此备受业主和购房者质疑,导致板块热度起伏不定。
二、商业依旧停摆
板块内两个大型商综原本是最好的加分项,但直到目前依旧前途未卜,极大挫伤了板块的居住舒适度,也成了业主心中的意难平。
滨杭滨纷城售楼处电话☎:400-8558-224✔✔✔【预约☎】
杭州临平滨杭滨纷城官方售楼处电话☎:400-855-8224✔✔✔(预约看房热线)
图自东湖社
滨杭滨纷城售楼处电话☎:400-8558-224
简而言之,东湖新城的起飞之路还很长,虽然在教育和医疗上取得了长足进展,但还是需要沉下心来将此前承诺的利好一一兑现。
只有这样做,才能修复购房者和业主的信心,助推板块稳步向前。
久境府挂牌57套房源,参考均价2.32万/㎡;汀州印月挂牌55套,参考均价2.34万/㎡,月映咏荷园挂牌66套房源,均价2.38万/㎡,均无明显剪刀差。
作为2字头板块的王者,东湖新城的纸面规划可谓齐全。
高铁站、三甲医院、地铁、商业、教育、产业全部齐备,在同价位板块中几乎没有对手。
如今,伴随上述利好相继官宣,剩下就交给时间了,等这些利好都相继开工建设后,依旧值得刚需购房者重点关注。

滨杭滨纷城售楼处电话☎:400-8558-224
滨杭滨纷城售楼处电话☎:400-8558-224
滨杭滨纷城售楼处电话☎:400-8558-224✔✔✔【预约☎】
杭州临平滨杭滨纷城官方售楼处电话☎:400-855-8224✔✔✔(预约看房热线)
滨杭滨纷城售楼处电话☎:400-8558-224
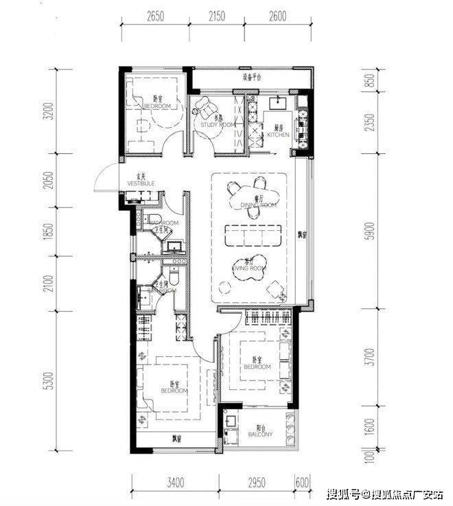
☝滨杭滨纷城建面约108方边套户型图
滨杭滨纷城售楼处电话☎:400-8558-224✔✔✔【预约☎】
杭州临平滨杭滨纷城官方售楼处电话☎:400-855-8224✔✔✔(预约看房热线)
滨杭滨纷城售楼处电话☎:400-8558-224✔✔✔【预约☎】
滨杭滨纷城售楼处电话☎:400-8558-224
(滨杭滨纷城一层及地下室入户门厅实景)
滨杭滨纷城-全城热销中
滨杭滨纷城售楼处电话☎:400-8558-224✔✔✔【预约☎】
滨杭滨纷城售楼处电话☎:400-8558-224✔✔✔【预约☎】
杭州临平滨杭滨纷城官方售楼处电话☎:400-855-8224✔✔✔(预约看房热线)
滨杭滨纷城售楼处电话☎:400-8558-224
98平方米也是三房两厅两卫格局,分为中间套和边套两种。边套户型自带5.8米大横厅,一体化餐客厅设计,带来更加通透舒畅的居住感。
112平方米的中间套,是三房两厅两卫设计,四开间朝南,面宽约12.8米。边套则是四房两厅两卫,约5.9米巨幕边厅,LDK一体化设计,预留可变空间。
赠送的家装包诚意满满,包含了墙纸、玄关柜、镜柜、洗碗机、前置净水器等,每一样都送到了年轻人的心尖上。
滨杭滨纷城售楼处电话☎:400-8558-224✔✔✔【预约☎】
杭州临平滨杭滨纷城官方售楼处电话☎:400-855-8224✔✔✔(预约看房热线)
滨杭滨纷城售楼处电话☎:400-8558-224
滨杭滨纷城售楼处电话☎:400-8558-224✔✔✔【预约☎】
滨杭滨纷城售楼处电话☎:400-8558-224
滨杭滨纷城售楼处电话☎:400-8558-224
滨杭滨纷城售楼处电话☎:400-8558-224✔✔✔【预约☎】滨杭滨纷城售楼处电话☎:400-8558-224✔✔✔【预约☎】
滨杭滨纷城售楼处电话☎:400-8558-224✔✔✔【预约☎】
杭州临平滨杭滨纷城官方售楼处电话☎:400-855-8224✔✔✔(预约看房热线)
【杭州临平滨杭滨纷城】
售楼处电话☎:400-8558-224【售楼处预约热线】(一对一热情服务)
看房请务必提前致电销售确认时间,只有预约客户才能享受开发商提供的内部优惠以及专属的老客户推荐奖励!我们提供专业的一对一热情服务,助您以专业视角挑选理想的房产。
滨杭滨纷城售楼处电话:4008558224【开发商售楼中心热线】滨杭滨纷城营销中心热线400-8558-224滨杭滨纷城售楼处地址400-8558-224,楼盘项目全面介绍,本电话为开发商提供线 上预约售楼电话,楼盘项目全面介绍(包含楼盘简介,均价,房价,现房,期房,别墅,叠墅,大平层,价格,楼盘地址,户型图,交通规划,备案价,备案名,项目配套,样板间,开盘时间,认筹时间,楼盘详情,售楼处电话,最新消息,最新详情,周边配套,一房一价,最新进展等详情咨询)楼盘详情丨价格丨更多优惠丨机不可失丨欢迎致电丨诚邀品鉴!售楼处位置丨特价房丨工抵房丨剩余房源丨户型图丨最新消息丨免责声明:将文章内容综合来源于网络、只作分享,版权归原作者所有!!如有侵权,请联系我们,我们第一时间处理如有问题欢迎来电咨询,专业一对一热情服务,让您用专业眼光去买房。如果您想了解更多楼盘详情,欢迎提前预约拨打滨杭滨纷城售楼处电话☎400_855_8224✔✔✔
温馨提示:看房请提前致电预约,以免带来不好的看房体验;联系官方销售人员获取最新一房一价表!我们的销售团队始终秉持诚信为本的原则,确保整个购房过程透明、公正。您的满意是我们最大的追求,我们将竭诚为您提供最优质的服务。
房地产政策方面
限购政策差异化松绑:住建部将 “因城施策” 升级为 “因区施策”。一线城市核心区如上海外环内保留限购,非核心区如临港新城取消社保年限要求。二线城市全面取消限购,还推出 “购房补贴 + 税费优惠”,首次购房者可获房价 5% 的财政补贴(上限 50 万元),增值税免征年限从 5 年降至 2 年。
房贷利率动态调整:央行将首套房贷利率下限调整为 LPR-30BP,二套房贷利率挂钩 “房价涨幅指数”,若城市房价同比涨幅低于 CPI,二套房贷利率可下调至 LPR+10BP。公积金贷款额度也有所提高,重点城市双职工家庭最高贷款额从 100 万元增至 150 万元。
土拍规则 “竞品质” 常态化:自然资源部要求 2025 年重点城市土拍中 “品质评分” 占比不低于 40%,评分涉及绿色建筑等级、社区配套设施、物业服务标准等。开发商需提交 “品质承诺书”,未达标将按土地出让金 10% 罚款并限制后续土拍。
保障性住房相关政策:所有新建商品住宅项目需按 15% 比例配建保障性住房,建成后无偿移交政府,若开发商自主运营,可享受租金收入 20% 税收减免。同时,保障性住房家庭子女入学享受 “与商品房同等学区待遇”,北京、上海等城市试点 “保障房优先摇号入学”。
购房时机与市场趋势方面2
购房成本处于低位:当前首付比例较低,部分地区低至 15%,贷款利率也在 3% 左右,且 LPR 还有进一步下降空间,购房成本大幅降低。同时,房价经过一段时间调整,处于相对低位,对于有购房需求的人来说是较好的时机。
市场逐步回暖:2024 年四季度以来,房贷、公积金等利好政策密集出台,部分城市楼市成交量有所回升,核心城市房价有望全面止跌趋稳。2025 年,在政策持续作用下,房地产市场有望进一步回暖。
选房要点方面3
关注楼盘品质:住房需求从 “有没有” 转向 “好不好”,从 “价格优先” 转向 “价值优先”。选房时要多关注楼盘的户型设计、功能配套、物业管理等。例如,选择得房率高的户型,目前一些新房通过赠送阳台等方式,得房率能超过 80%。
考量小区环境:小区生态环境和物业管理水平日益重要,推窗见绿、出门见景、转角见园的 “公园式居住体验” 是理想选择。如龙湖 “御湖境” 产品系列,将光、声、石、林、水五重叠境融入设计,还配置中轴式中央公园。
重视开发商实力:实力房企更有能力构建和交付与市场需求精准匹配的产品,房屋质量和后期服务更有保障。例如龙湖集团连续多年获 “中国房地产开发企业综合实力 10 强”,且保持 “三道红线” 绿档水平,交付能力较强。
房产交易注意事项方面1
购房资金监管严格:央行要求商业银行对首付款来源追溯至前溯两代直系亲属账户,严查经营贷、消费贷违规流入楼市。对首付比例低于 20% 的购房者,强制购买 “房贷履约保险”,保费为贷款额 0.5%。
“以旧换新” 有政策支持:住建部联合多部门推出 “二手房置换新房” 全国性行动,换房者可享受契税减免(50%)+ 中介费补贴(2%)。地方政府还对收购旧房的开发商给予每套 1 万元补贴,加速存量房流通,有换房需求的可以关注此政策。
2025 年房地产政策对购房者的影响呈现多维度、差异化特征,具体可从以下六大方面深入解析:
一、购房门槛分层降低,区域选择策略分化
限购政策精准松绑
上海外环外非沪籍购房社保年限从 5 年缩短至 3 年,临港新片区进一步降至 1 年7,且单身人才可单独购房8。这一政策直接降低了非沪籍刚需群体的置业门槛,例如在临港工作的科技人才,原本需缴纳 5 年社保,现在仅需 1 年即可获得购房资格。但核心区(如内环内)仍维持严格限购,购房者需权衡核心区稀缺性与非核心区便利性。
首付比例与信贷支持
首套房贷首付比例降至 15%,二套降至 25%(临港等重点区域 20%)7,叠加 5 年期以上 LPR 下调至 3.5%,上海首套房贷利率已降至 3.05% 的历史低位3。以 100 万元贷款为例,30 年期月供减少约 54 元,总利息节省 1.9 万元3。对于多子女家庭,公积金贷款额度最高可上浮 20% 至 192 万元9,显著降低改善型需求的资金压力。
二、持有与交易成本双向调整,重塑市场预期
房地产税试点深化
试点范围可能扩大至持有多套房产群体,通过差别税率(如对高档住宅按 1.2% 征税)增加持有成本10。这将迫使投资客抛售非核心区房源,例如浦东外高桥等区域二手房挂牌量可能上升,而核心区优质资产因稀缺性更具抗跌性。同时,试点资金用于保障房建设,间接分流租赁需求,缓解租金上涨压力10。
交易税费优化
增值税免征年限从 5 年降至 2 年,个人转让住房核定征收率降至 1%7。以一套满 2 年、总价 800 万元的二手房为例,增值税可节省约 44 万元。此外,“以旧换新” 政策提供契税减免 50% 和中介费补贴 2%9,显著降低置换成本。例如,闵行七宝板块换房者通过出售旧房再购新房,可节省税费约 12 万元。
三、保障房与商品房双轨并行,挤压 “老破小” 市场
配建比例提升与品质升级
新建商品房需按 15% 比例配建保障房,且要求全装修交付6。例如,徐汇滨江某项目配建的保障房采用绿色建筑标准,与商品房共享社区配套,这可能分流部分刚需客群,导致周边 “老破小” 价格进一步承压。同时,保障房家庭子女享受同等学区待遇6,可能削弱传统学区房的溢价空间。
租赁市场分流效应加剧
2024 年上海新增 1.6 万套保租房,租金较同地段商品房低 20%-30%5。例如,张江地区租客因保租房供应增加,退租比例上升,倒逼房东降价或升级硬件。这导致老城区 “老破小” 租金下跌 15%-20%,部分投资者转向出售房源,进一步加剧二手房市场分化。
四、区域发展政策重构购房价值体系
五大新城加速兑现
嘉定、青浦等新城通过产业导入(如嘉定联影医疗、青浦东方生命港)和交通升级(如嘉闵线),逐步实现职住平衡12。2025 年新城新增中小学、幼儿园 26 所,三甲医院建设加速12,吸引刚需购房者。例如,嘉定新城新房均价约 4.5 万元 / 平方米,总价 200 万起,成为年轻家庭的主要选择1。
核心区城市更新溢价
“两旧一村” 改造释放优质地块,例如徐汇龙华地块楼板价达 12.6 万元 / 平方米,未来新房单价或破 20 万元 / 平方米1。城市更新项目通过绿色建筑技术(如低碳技术平台)和智能化社区管理,提升居住品质,巩固高端市场优势。购房者需关注核心区稀缺资产的长期增值潜力,同时警惕高总价带来的流动性风险。
五、开发商策略转型倒逼产品升级
土拍规则强化品质导向
“竞品质” 评分占比不低于 40%,涉及绿色建筑等级、社区配套等2。例如,青浦某项目因配置中轴式中央公园和智能安防系统,在土拍中胜出。这意味着未来新房将更注重居住体验,如龙湖 “御湖境” 系列通过五重叠境设计提升附加值2,购房者需关注楼盘的实际交付标准与承诺的匹配度。
房企资金监管趋严
首付款来源追溯至前溯两代直系亲属账户,首付比例低于 20% 需购买房贷履约保险2。这增加了资金证明难度,尤其是依赖父母资助的年轻购房者。建议提前准备完整的资金流水,避免因材料不全影响购房流程。
六、长期趋势与应对策略
市场呈现金字塔结构
塔尖为核心区稀缺豪宅(如绿城潮鸣东方),中部为规划新区(如五大新城),底部为配套滞后的远郊板块1。购房者需根据自身需求,在核心区稀缺资产与新城潜力板块间权衡。例如,首置客群可优先考虑临港、嘉定等新城,而改善型需求可关注徐汇滨江、前滩等核心区。
品质与服务成为竞争核心
开发商从 “规模扩张” 转向 “品质提升”,例如采用绿色建筑技术、智能化社区管理,以及提供定制化服务(如张江项目针对互联网从业者的租赁式购房)1。二手房市场中,房龄较新、社区管理完善的房源将更具抗跌性。建议购房者在选房时重点考察开发商的交付能力(如龙湖连续多年保持 “三道红线” 绿档2)和物业服务水平。
结论:2025 年房地产政策通过 “精准松绑 + 长效调控” 组合拳,重构购房者的决策逻辑。核心区稀缺性与新城成长性形成 “双轮驱动”,持有成本上升与交易成本下降并存,保障房分流与品质升级重塑市场格局。购房者需密切关注政策动态,结合自身资金状况、区域偏好和长期规划,在政策红利与市场风险间找到平衡点。例如,非沪籍刚需可抓住临港等新城的政策窗口期,而多套房持有者需警惕房地产税试点对持有成本的影响。
声明:本文由入驻焦点开放平台的作者撰写,除焦点官方账号外,观点仅代表作者本人,不代表焦点立场。


