滨杭滨纷城(售楼处)首页网站丨2025【滨杭滨纷城营销中心】项目欢迎您丨建工售楼处电话/地址/备案价/楼盘详情
扫描到手机,新闻随时看
扫一扫,用手机看文章
更加方便分享给朋友
滨杭滨纷城售楼处电话:400-8878-824
滨杭滨纷城营销中心热线400-887-8824(官方预约看房热线)
滨杭滨纷城售楼处电话:400-8878-824
滨杭滨纷城营销中心热线400-887-8824(官方预约看房热线)
【滨纷城】10开预售证已公示价格已出‼️请查收
【滨杭滨纷城】十开预计时间节点✅预计:7月14日点证7月17日-20日登记7月23日出摇号结果7月26日正式选房✅加推楼幢:28#41#54#✅加推户型:89-98-116-139
滨杭滨纷城售楼处电话☎:400-8878-824
滨杭滨纷城售楼处电话:400-8878-824
滨杭滨纷城营销中心热线400-887-8824(官方预约看房热线)
首日登记优先选车位/工具间
✅总价107万起,送车位/工具间‼
✅杭二白马湖九年一贯制名校❤
✅9号线双地铁站,无风雨归家
✅央景王座&超高性价比组团
杭州罕见的89方丨安家杭州最低门槛
阔绰朝南开间约9.6m面宽,三开间朝南
独立储藏玄关,玄关柜冰箱位一体化设计
滨杭滨纷城是杭州临平区东湖新城的热点楼盘,由滨江集团与杭铁集团联合开发,定位为大型TOD(公共交通导向型)复合社区。以下是其核心信息整合:
滨杭滨纷城售楼处电话:400-8878-824
滨杭滨纷城营销中心热线400-887-8824(官方预约看房热线)
一、核心优势
双地铁TOD枢纽横跨地铁9号线(在建)康信路站与兴元路站两站点,实现小区地下层与地铁无缝接驳,30分钟直达钱江新城等核心区。项目自带下沉式广场及车库直连通道,通勤便利性突出
全维生活配套
教育:配置双幼儿园,签约杭州二中白马湖教育集团临平东湖学校(九年一贯制,规划36班)
商业:规划约10万㎡商业综合体(含下沉式运动空间)+约4000㎡街区商业,覆盖日常消费与休闲需求;
生态:社区中央打造约7万㎡滨纷公园,毗邻龙安湖公园等城市绿肺。
滨江品质背书作为滨江集团首个面向年轻人的TOD项目,延续品牌精工标准,采用蓝宝石水系、棕榈园林等度假风设计,物业由滨江集团负责。滨杭滨纷城售楼处电话☎:400-8878-824✔✔✔【预约☎】
滨杭滨纷城售楼处电话:400-8878-824
滨杭滨纷城营销中心热线400-887-8824(官方预约看房热线)
二、产品设计
主力户型
89㎡三房:边厅设计,拓展空间利用率,总价约107万起(含精装)
98㎡三房边套:5.8米边厅+飘窗,主卧套房配置
112㎡四房:四开间朝南,双阳台,满足多代同堂需求
精装交付标配中央空调,精装标准约2500元/㎡,部分房源赠送车位或工具间
社区规划容积率2.8,绿化率35%,全架空层设计融入共享厨房、健身房等社交场景
三、最新动态
加推信息:预计2025年7月14日取证,加推28#、41#、54#楼栋,户型涵盖89-139㎡;
价格参考:高层均价约17600元/㎡(部分特价房107万起);
交付时间:2027年交付
四、市场表现
2025年1-6月以总价150-200万房源热销2268套,登顶全国同价位段销售榜,被誉为杭州“性价比神盘”
滨杭滨纷城售楼处电话☎:400-8878-824✔✔✔【预约☎】
杭州临平滨杭滨纷城官方售楼处电话☎:400-887-8824✔✔✔(预约看房热线)
看房请提前致电预约,可享受内部渠道优惠!联系销售人员获取最新一房一价表,官方售楼处最新优惠底价!开发商官方销售人员将详细介绍每个户型的独特设计和优势,带您参观样板间,感受精装修的品质和温馨氛围。您还可以了解周边配套设施,包括高端购物中心、优质学校和便捷交通网络,让您的居住体验更加完美。
滨杭滨纷城售楼处电话:400-8878-824
滨杭滨纷城营销中心热线400-887-8824(官方预约看房热线)
滨杭滨纷城售楼处电话:400-8878-824
滨杭滨纷城营销中心热线400-887-8824(官方预约看房热线)
杭二中白马湖校区➕双地铁0距离➕10万方商业➕滨江造!刚需首选!
滨杭滨纷城售楼处电话:400-8878-824
滨杭滨纷城营销中心热线400-887-8824(官方预约看房热线)
建面约89-108方王炸户型均涉及
滨杭滨纷城售楼处电话:400-8878-824
滨杭滨纷城营销中心热线400-887-8824(官方预约看房热线)
继三甲医院落地、临平北枢纽核心招标启动后,东湖新城再传好消息。
前日,临平区正式官宣签约杭二中白马湖学校,将在东湖新城新建一所九年一贯制学校。
好消息接连不断,东湖新城可谓赚的盆满钵满,医疗、教育、公共资源直接提升了一个能级。
那么,这些利好都分布在哪里,东湖新城是不是要起飞了呢?
利好不断
首先来看前天官宣的杭二中白马湖学校。
作为滨江区教育界扛把子,杭二中白马湖可谓声名赫赫。
据不完全统计,2023年杭州二中白马湖学校参加中考人数175人左右,第一批上线率达到90%以上,办学成绩可见一斑。
滨杭滨纷城售楼处电话☎:400-8878-824✔✔✔【预约☎】
杭州临平滨杭滨纷城官方售楼处电话☎:400-887-8824✔✔✔(预约看房热线)
据消息称,签约学校将落地东湖新城,沪乍杭高铁枢纽(规划)北侧,地铁9号线昌达路上盖TOD项目内。
滨杭滨纷城售楼处电话☎:400-8878-824
目前,昌达路上盖TOD上有两个商品房项目,分别是滨杭滨纷城和杭州地铁荷禹路项目,这波官宣可谓名校“砸脸”,喜从天降。
这还不够,就在前两天,杭州临平北高铁枢纽中心启动国际招标方案,同样十分重磅。
滨杭滨纷城售楼处电话☎:400-8878-824
规划一出,不仅杭州北站真的要来了,而且将围绕杭州北站周边约1.2平方公里打造新一代站城融合枢纽,彻底改观东湖新城北部城市界面。
还不止,4月13日,临平发布官宣临平区首个三甲医院落地,项目选址就位于东湖新城核心区,咏翠芳华轩北侧。
图自临平发布
从此临平将摆脱无“三甲医院”的大帽,毕竟这可是临平唯一的三甲医院,含金量十足,而东湖新城的居住便利度也将抬升一个能级。
要起飞了吗?
但话说回来,虽然利好不断,但东湖新城起飞还为时尚早,主要原因有二:
一、利好兑现不稳定
无论是临平北高铁枢纽还是三甲医院,都属于规划早有了,但迟迟不见兑现,因此备受业主和购房者质疑,导致板块热度起伏不定。
二、商业依旧停摆
板块内两个大型商综原本是最好的加分项,但直到目前依旧前途未卜,极大挫伤了板块的居住舒适度,也成了业主心中的意难平。
滨杭滨纷城售楼处电话☎:400-8878-824✔✔✔【预约☎】
杭州临平滨杭滨纷城官方售楼处电话☎:400-887-8824✔✔✔(预约看房热线)
图自东湖社
滨杭滨纷城售楼处电话☎:400-8878-824
简而言之,东湖新城的起飞之路还很长,虽然在教育和医疗上取得了长足进展,但还是需要沉下心来将此前承诺的利好一一兑现。
只有这样做,才能修复购房者和业主的信心,助推板块稳步向前。
久境府挂牌57套房源,参考均价2.32万/㎡;汀州印月挂牌55套,参考均价2.34万/㎡,月映咏荷园挂牌66套房源,均价2.38万/㎡,均无明显剪刀差。
作为2字头板块的王者,东湖新城的纸面规划可谓齐全。
高铁站、三甲医院、地铁、商业、教育、产业全部齐备,在同价位板块中几乎没有对手。
如今,伴随上述利好相继官宣,剩下就交给时间了,等这些利好都相继开工建设后,依旧值得刚需购房者重点关注。

滨杭滨纷城售楼处电话☎:400-8878-824
滨杭滨纷城售楼处电话☎:400-8878-824
滨杭滨纷城售楼处电话☎:400-8878-824✔✔✔【预约☎】
杭州临平滨杭滨纷城官方售楼处电话☎:400-887-8824✔✔✔(预约看房热线)
滨杭滨纷城售楼处电话☎:400-8878-824
☝滨杭滨纷城建面约108方边套户型图
滨杭滨纷城售楼处电话☎:400-8878-824✔✔✔【预约☎】
杭州临平滨杭滨纷城官方售楼处电话☎:400-887-8824✔✔✔(预约看房热线)
滨杭滨纷城售楼处电话☎:400-8878-824✔✔✔【预约☎】
滨杭滨纷城售楼处电话☎:400-8878-824
(滨杭滨纷城一层及地下室入户门厅实景)
滨杭滨纷城-全城热销中
滨杭滨纷城售楼处电话☎:400-8878-824✔✔✔【预约☎】
滨杭滨纷城售楼处电话☎:400-8878-824✔✔✔【预约☎】
杭州临平滨杭滨纷城官方售楼处电话☎:400-887-8824✔✔✔(预约看房热线)
滨杭滨纷城售楼处电话☎:400-8878-824
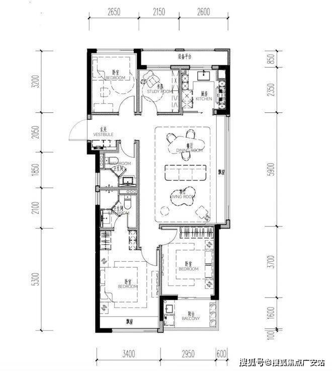
98平方米也是三房两厅两卫格局,分为中间套和边套两种。边套户型自带5.8米大横厅,一体化餐客厅设计,带来更加通透舒畅的居住感。
112平方米的中间套,是三房两厅两卫设计,四开间朝南,面宽约12.8米。边套则是四房两厅两卫,约5.9米巨幕边厅,LDK一体化设计,预留可变空间。
赠送的家装包诚意满满,包含了墙纸、玄关柜、镜柜、洗碗机、前置净水器等,每一样都送到了年轻人的心尖上。
滨杭滨纷城售楼处电话☎:400-8878-824✔✔✔【预约☎】
杭州临平滨杭滨纷城官方售楼处电话☎:400-887-8824✔✔✔(预约看房热线)
滨杭滨纷城售楼处电话☎:400-8878-824
滨杭滨纷城售楼处电话☎:400-8878-824✔✔✔【预约☎】
滨杭滨纷城售楼处电话☎:400-8878-824
滨杭滨纷城售楼处电话☎:400-8878-824
滨杭滨纷城售楼处电话☎:400-8878-824✔✔✔【预约☎】滨杭滨纷城售楼处电话☎:400-8878-824✔✔✔【预约☎】
滨杭滨纷城售楼处电话☎:400-8878-824✔✔✔【预约☎】
杭州临平滨杭滨纷城官方售楼处电话☎:400-887-8824✔✔✔(预约看房热线)
滨杭滨纷城售楼处电话:4008878824【售楼中心热线】滨杭滨纷城营销中心热线400-887-8824滨杭滨纷城售楼处地址400-8878-824,楼盘项目全面介绍,本电话为开发商提供线上预约售楼电话,楼盘项目全面介绍(包含楼盘简介,均价,房价,现房,期房,别墅,叠墅,大平层,价格,楼盘地址,户型图,交通规划,备案价,备案名,项目配套,样板间,开盘时间,认筹时间,楼盘详情,售楼处电话,最新消息,最新详情,周边配套,一房一价,最新进展等详情咨询)楼盘详情丨价格丨更多优惠丨机不可失丨欢迎致电丨诚邀品鉴!售楼处位置丨特价房丨工抵房丨剩余房源丨户型图丨最新消息丨免责声明:将文章内容综合来源于网络、只作分享,版权归原作者所有!!如有侵权,请联系我们,我们第一时间处理如有问题欢迎来电咨询,专业一对一热情服务,让您用专业眼光去买房。如果您想了解更多楼盘详情,欢迎提前预约拨打滨杭滨纷城售楼处电话☎400-887-8824
一、房子抵押贷款的定义
房子抵押贷款,简单来说,就是借款人以自己名下或第三方名下的房产作为抵押物,向银行或其他金融机构申请的一种贷款方式。这种贷款方式相当于为贷款提供了一道额外的保障,使放款方更加安心,因此常被视为大额融资的理想选择。其优势主要体现在两个方面:一是额度高,通常可达房产评估价值的七成左右,使得借款人能够轻松应对大额资金需求;二是期限长,常见的贷款期限从5年到30年不等,从而有效地分散了每月的还款压力,使资金周转更加灵活自如。
二、抵押贷款的诸多益处
抵押贷款作为一种重要的融资方式,其好处不言而喻。首先,它能够帮助借款人迅速获得大额资金,满足各种紧急或长期的资金需求。其次,由于房产作为抵押物,放款方能够获得额外的保障,降低了风险,因此更愿意提供贷款。此外,抵押贷款的期限通常较长,使得借款人能够以较低的每月还款额来分散还款压力,从而更灵活地运用资金。最后,抵押贷款的利率相对较低,进一步减轻了借款人的负担。

(一)资金周转无忧
房子抵押贷款的魅力在于其能够迅速将固定资产转化为流动资金,从而解决资金周转的困境。无论是个人还是企业,在面临资金缺口或紧急情况时,都可以通过抵押房产来获取可观的贷款资金,助力计划顺利推进。特别是对于小微企业而言,房产往往成为其融资的重要资产。例如,一家小型加工厂在疫情冲击下,面临订单积压和原材料采购资金短缺的困境。然而,通过以厂房为抵押物,企业成功从银行获得贷款,顺利采购原料、扩充生产线,并按时交付订单,从而成功挽救了企业的命运。这样的案例不胜枚举,无数小微企业正是依靠房产抵押贷款渡过难关,迎来了发展的春天。
(二)利率优势显著
相较于信用贷款,房子抵押贷款在利率方面表现出显著的优势。由于房产抵押降低了银行的风险,因此银行能够提供更为亲民的利率水平。通常,银行的房产抵押贷款年利率在3.85%至5.8%之间,且对于资质良好的借款人,还有可能争取到更优惠的利率。以贷款100万为例,信用贷款的年利率可能高达10%,而房产抵押贷款的年利率仅为4%,这意味着利息支出将大幅减少。这样的利率优势不仅能够减轻借款人的还款负担,还能为借款人腾出更多的资金用于新的发展机会,实现财富的增值。
三、操作流程详解
接下来,让我们深入了解房子抵押贷款的操作流程。这一环节将详细介绍从申请到放款的每一个步骤,帮助您更好地理解和把握整个流程。

(一)贷前准备
在开始抵押贷款的申请之前,必须进行充分的准备。首要任务是明确贷款的具体用途,因为银行对此有严格的监管要求,仅限于装修、经营、教育等合规领域。若用于炒房或炒股,一旦被发现,不仅可能导致贷款被拒,还可能被金融机构列入黑名单。其次,准确评估自家房产的价值至关重要,因为地段、房龄、面积和装修等因素都会影响估值。建议参考周边房价或咨询房产中介以获取初步信息。此外,自查征信记录也是不可或缺的一环,因为这是金融活动的“身份证”。任何逾期或欠款记录都可能影响贷款的审批。最后,务必按照要求准备齐全所有申请材料,如身份证、户口本、结婚证、房产证和收入证明等,以确保申请流程的顺利进行。
(二)挑选贷款机构
市场上贷款机构众多,选择合适的机构对于贷款的成功至关重要。银行通常以资金雄厚、利率低廉和流程规范见长,但审批过程可能较为严格。相比之下,正规金融机构如信托和小贷公司可能提供更高的灵活度,放款速度也更快,但利率可能稍高。另外,网贷平台虽然申请便捷,但利率高且可能存在风险。因此,在选择时,应综合考虑自身情况,优先选择银行,并谨慎考虑其他正规途径。
(三)申请提交
申请过程可以通过线上或线下方式进行。线上申请通常通过银行APP或官网进行,操作简便且高效;而线下申请则需要直接前往银行网点,与客户经理进行面对面交流。在提交申请时,务必确保所填写信息和上传资料准确无误,任何细微的错误都可能导致审批延误。通常需要提交的材料包括个人身份证明、房产证明、收入证明以及征信报告等。
(四)房产评估
接下来是房产评估环节。这一步骤旨在确定抵押房产的市场价值,为贷款审批提供依据。评估过程可能涉及对房产的实地考察和与专业评估师的沟通。请注意,房产评估结果可能影响贷款额度和利率水平,因此确保房产的真实价值和市场状况得到准确反映至关重要。
专业评估机构对房产进行深入勘察,包括房屋面积、户型、装修、房龄等细节,同时参考周边同类房价,运用市场比较法、收益法等方法,科学计算出房产的公允价格。这个价格将直接影响贷款额度,住宅通常能贷到评估值的七成左右,而商铺、写字楼等商业房产的贷款额度则相对较低。如果您对评估结果有异议,有权申请复核,这可能为您带来更高的贷款额度。
接下来是银行的审核环节。银行将严格核查您的征信记录,评估您的信用状况;同时,审核您的收入情况,以确保您具备足够的还款能力;还会对房产进行再次核实,确保抵押物足值。在这一过程中,银行可能会通过电话等方式核实您提供的信息的真实性。一旦审核通过,贷款发放将指日可待。
放款环节同样重要。银行会将贷款资金转账至您指定的账户,经营性贷款可能需打给上下游合作商,而消费性贷款则直接给到您个人。在放款前,请务必仔细阅读合同条款,确保您完全理解贷款利率、还款方式、贷款期限以及违约责任等相关内容。如有任何疑问,务必向银行咨询清楚后再签字,以避免日后可能出现的纠纷。
四、注意事项早知道
(一)理性贷款,量力而行
贷款并非越多越好,而是需要依据个人的还款能力来合理规划。在申请贷款前,务必仔细盘算每月的收入和支出,确保有足够的生活费用,并合理规划剩余资金用于还款。避免盲目贷大额款项,以免每月还款负担过重,一旦资金链断裂,可能导致逾期、违约等不良后果,不仅影响个人征信,还可能面临房产被银行拍卖的风险。
(二)真实材料,诚信为本
在申请贷款时,务必提供真实、准确的材料。任何伪造或虚报的行为都可能被银行和金融机构的严格审核所揭穿。大数据和实地核查等手段将确保材料的真实性。一旦发现提供虚假材料,不仅贷款申请会被拒绝,还会被列入征信“黑名单”,影响未来的贷款和信用卡申请,甚至可能涉嫌诈骗,承担法律责任。因此,务必保持诚信,用真实的材料申请贷款,才是正道。
五、常见问题解答
在申请贷款的过程中,可能会遇到各种疑问和困惑。本部分将针对一些常见问题进行详细解答,帮助您更好地理解和应对贷款申请中的各种情况。

(一)关于房产产权的规定是什么?
房产产权的明晰是贷款申请的关键。通常,小产权房、未满五年的经济适用房以及军产房等由于产权受限,风险较高,因此银行往往不接受其作为抵押物。相比之下,商品房在产权方面通常较为明确,但若涉及纠纷或被查封,则无法进行抵押。此外,共有房产抵押时必须得到全体共有人的书面同意,否则抵押行为将无效,这旨在保护共有人的权益,避免未来可能出现的纠纷。
(二)贷款用途有哪些限制?
银行对贷款用途有明确的规定。消费贷款主要应用于装修、教育、医疗、旅游等合规消费领域。而经营贷款则必须用于企业生产、采购和运营活动。若贷款被用于炒房、炒股或投资理财等非合规领域,一经查实,银行有权提前收回贷款并可能加罚利息,因此务必确保专款专用。
(三)无法偿还贷款时该如何应对?
遇到无法偿还贷款的情况时,应积极与银行联系并说明情况。逾期还款会对个人征信产生严重影响,可能导致未来贷款和信用卡申请受限。银行通常会采取催收措施,如电话、短信提醒等,若仍无法还款,可能会采取法律手段。因此,在遇到困难时,建议提前与银行沟通,尝试协商延期还款、调整还款计划或申请转贷置换等解决方案,以避免逾期带来的不良后果。
六、结语
通过上述讨论,我们了解了房产产权对贷款申请的影响,以及银行对贷款用途的限制。在面临无法偿还贷款的困境时,与银行的积极沟通和协商显得尤为重要。希望这些信息能帮助您更好地理解贷款相关事宜,为您的财务规划提供有益的参考。

声明:本文由入驻焦点开放平台的作者撰写,除焦点官方账号外,观点仅代表作者本人,不代表焦点立场。


