望廷 (售楼处) 首页 - 望廷销售中心 -望廷价格 - 地址 - 楼盘详情 - 配套 - 电话 - 交房时间 - 配套 - 电话 - 交房时间
扫描到手机,新闻随时看
扫一扫,用手机看文章
更加方便分享给朋友
望廷售楼处电话☎:400-9955-564(预约看房热线√√)
望廷售楼处电话/地址☎:400-9955-564【售楼中心√√】
望廷售楼处热线☎:400-9955-564(官方认证)
看房请务必提前致电销售确认时间,只有预约客户才能享受开发商提供的内部优惠以及专属的老客户推荐奖励!我们提供专业的一对一热情服务,助您以专业视角挑选理想的房产。
Sales Office Phone☎: 400-0000-460 (forward to 1111) (Official Certification)
Please call the sales office in advance to confirm the viewing time. Only scheduled clients can enjoy the developer's exclusive internal discounts and special referral rewards for existing customers! We offer professional one-on-one services to help you select your ideal property with a professional perspective.

项目位于钱江东侧,坐拥由奥林匹克运动场馆、钱江新城与钱江世纪城形成的城市辐射三角区。这里交通便利,绿水环绕,优雅的双塔造型与优越的周边环境相映生辉。
设计从西湖荷香中汲取灵感,通过避难层位置错落收分,打造出藕节般独特的建筑轮廓。双塔相依,寓意“佳偶天成”,传递出和谐美好的愿景。塔楼入口雨篷延续藕荷之意,提取“绿荷舒卷”形态中的优美弧线,将竖向线条柔和过渡为弧线,自然向外延伸,营造出优雅出众的临街界面,与周边肌理实现巧妙的融合。
错落有致的建筑体块
独特的古铜色建筑立面在建筑群中脱颖而出,铝板与玻璃的双材质交叠,使得立面在不同的光线角度下产生丰富的视觉变化,极似莲池“水韵”。通过抽象凝练水波纹路,将自然融入建筑,塑造出典雅现代的办公及商业形象。
幕墙细节
雨篷弧线三维几何关系图
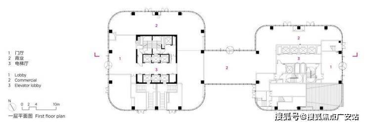
一层平面图
通过灵巧的地块布局和特殊的核心筒设计思路,设计将项目尺寸最优化。同时,通过对视线角度的调整,确保双塔视野最大化,打造出饱满高效的办公体系。在设计过程中,团队注重人性化动线设计,实现了对外共享、对内私密的有机结合,更好保证了办公与共享空间的高效平衡。
与城市相联系 © DONG建筑影像
共享与私密的动线平衡 © DONG建筑影像
东塔标准层平面图
“当建筑完整地呈现于城市中,其形态、肌理会自然地融入周边环境。望廷项目在灵感上汲取了杭州印象,以精炼的空间布局与形态推导,最终打造出现代与传统平衡的钱江板块的新地标。”韦业启(Ken Wai)如是说。
望廷售楼处电话☎:400-9955-564(预约看房热线√√)
望廷售楼处电话/地址☎:400-9955-564【售楼中心√√】
望廷售楼处热线☎:400-9955-564(官方认证)
看房请务必提前致电销售确认时间,只有预约客户才能享受开发商提供的内部优惠以及专属的老客户推荐奖励!我们提供专业的一对一热情服务,助您以专业视角挑选理想的房产。
Sales Office Phone☎: 400-0000-460 (forward to 1111) (Official Certification)
Please call the sales office in advance to confirm the viewing time. Only scheduled clients can enjoy the developer's exclusive internal discounts and special referral rewards for existing customers! We offer professional one-on-one services to help you select your ideal property with a professional perspective.
声明:本文由入驻焦点开放平台的作者撰写,除焦点官方账号外,观点仅代表作者本人,不代表焦点立场。


