佘山溦沨(售楼处)首页网站丨2025【佘山溦沨营销中心】项目欢迎您丨佘山溦沨售楼处电话/地址/备案价/楼盘详情
扫描到手机,新闻随时看
扫一扫,用手机看文章
更加方便分享给朋友
佘山溦沨售楼处电话:400-9988-414
佘山溦沨营销中心电话:400-9988-414
佘山溦沨售楼中心:400-998-8414
上海·松江·佘山
建面约92㎡商业联排别墅
地上三层 送阁楼 送地下室
佘山溦沨售楼处电话☎:400-9988-414✔✔欢迎来电咨询! (预约看房热线)可预约销售人员,专业一对一热情服务,让您用专业眼光去买房。
实用5层 层高约12米(不含地下室)
实际使用面积约200㎡左右
附赠南北花园 总价约490万起
可两套打通 可三套打通 无承重墙
自带4.1万商业 不限购 不限贷
佘山溦沨售楼处电话:400-9988-414
佘山溦沨营销中心电话:400-9988-414
佘山溦沨售楼中心:400-998-8414
产品性质:商业别墅(不限购不限贷)
总户数:151户
总层高:约12米(不含地下室)
主力面积:92㎡左右(实际使用面积200㎡左右,附赠南北花园)
价格:总价约490万起
水:5.8元/顿
电:1.2元/度
煤气:3.05
物业费:未定
拿地时间:2016
竣工时间:2019
交房时间:2023年6月30日
停车费:未定
产权年限:40年
商业:自带4.1万㎡商业
佘山溦沨售楼处电话:400-9988-414
佘山溦沨营销中心电话:400-9988-414
佘山溦沨售楼中心:400-998-8414
让佘山的一缕微风
吹吹生活的褶皱
后疫情时代,出境游、出省游存在诸多不安全因素。囿于时空的限制,城市里的动物们,亟需一处自然场域放放风,抛却内心噪音,回归自我——近两年,近郊游微度假模式崛起,成为一种主流的休闲生活方式。
根据调研数据显示,佘山、崇明岛、滴水湖等成为上海近郊游的热门阵地,近郊民宿市场迎来机遇。
【佘山溦沨】匿于佘山连绵绿脉之中,离尘不离城,151席精筑度假屋,静候您开场惬意自如的第二人生。
佘山溦沨 独立产权
奢牌度假屋 5大心动理由
1、使用面积约200-3200㎡:可自由分割,灵活组合,打造百变空间,企业总部、私人会所、超级民宿……满足不同需求。
佘山溦沨售楼处电话:400-9988-414
佘山溦沨营销中心电话:400-9988-414
佘山溦沨售楼中心:400-998-8414
2、总价约490万起:约1/5周边独栋别墅总价,奢享同品级四层半高端奢牌度假屋。
佘山溦沨售楼处电话:400-9988-414
佘山溦沨营销中心电话:400-9988-414
佘山溦沨售楼中心:400-998-8414
3、打造约500㎡中心花园:配备星级户外吧台,可打造沉浸式开放会所,亲子休娱、音乐派对、私人酒会、露天BBQ......享你所想;每户带前庭后院。
4、可自住·可出租:能赚能玩的资产
佘山溦沨售楼处电话:400-9988-414
佘山溦沨营销中心电话:400-9988-414
佘山溦沨售楼中心:400-998-8414
5、席位臻贵,准现房,错过难再有。
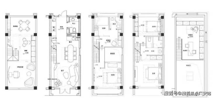
项目户型图及样板实景图
项目户型图▼
样板房实景图▼
佘山溦沨售楼处电话:400-9988-414
佘山溦沨营销中心电话:400-9988-414
佘山溦沨售楼中心:400-998-8414
佘山溦沨售楼处电话:400-9988-414
佘山溦沨营销中心电话:400-9988-414
佘山溦沨售楼中心:400-998-8414
佘山溦沨售楼处电话:400-9988-414
佘山溦沨营销中心电话:400-9988-414
佘山溦沨售楼中心:400-998-8414
佘山溦沨售楼处电话:400-9988-414
佘山溦沨营销中心电话:400-9988-414
佘山溦沨售楼中心:400-998-8414
一、天赋佘山自然大境
负氧离子含量约3000个/m³
上海全境PM2.5指数最低板块之一
不仅是上海近郊游的最佳去处,也是峰层人士云集的首选之地
二、5km生活圈 繁华静谧两相宜
生态资源:佘山森林公园、辰山植物园、广富林遗址、月湖雕塑公园
休闲娱乐:欢乐谷、佘山高尔夫、索菲特大酒店、赵巷体育公园
高端购物:奥莱、山姆、合生新天地
自建商业:项目自带约6万方Shopping mall,拟引进各类潮流业态,匹配塔尖高端消费需求
佘山溦沨售楼处电话:400-9988-414
佘山溦沨营销中心电话:400-9988-414
佘山溦沨售楼中心:400-998-8414
三、三横三纵三轨 便捷立体交通
三横:沪青平公路、G50(沪渝高速)、G60(沪昆高速),快速连通上海中芯
三纵:G15(沈海高速)、嘉松南路、G1503(上海绕城高速),畅行长三角
三轨:地铁9&12号线佘山站/洞泾站,4站抵达闵行商圈,10站即达徐家汇商圈,快速直达淮海中路等上海繁华核芯商圈;松江有轨电车T1、T2区域内绿色通行,多重公交线路,与城芯无界互联
上海·松江·佘山
【佘山星辰】【佘山溦沨】
建面约92㎡商业联排别墅
地上三层 送阁楼 送地下室
实用5层 层高约12米(不含地下室)
实际使用面积约200㎡左右
附赠南北花园 总价约490万起
可两套打通 可三套打通 无承重墙
自带4.1万商业 不限购 不限贷
佘山溦沨售楼处电话☎:400-9988-414✔✔欢迎来电咨询! (预约看房热线)可预约销售人员,专业一对一热情服务,让您用专业眼光去买房。
佘山溦沨售楼处电话:400-9988-414佘山溦沨营销中心电话:400-9988-414佘山溦沨售楼中心:400-998-8414楼盘项目全面介绍,本电话为开发商提供线上预约售楼电话,楼盘项目全面介绍(包含楼盘简介,均价,房价,现房,期房,别墅,叠墅,大平层,价格,楼盘地址,户型图,交通规划,备案价,备案名,项目配套,样板间,开盘时间,认筹时间,楼盘详情,售楼处电话,最新消息,最新详情,周边配套,一房一价,最新进展等详情咨询)楼盘详情丨价格丨更多优惠丨机不可失丨欢迎致电丨诚邀品鉴!售楼处位置丨特价房丨工抵房丨剩余房源丨户型图丨最新消息丨免责声明:将文章内容综合来源于网络、只作分享,版权归原作者所有!!如有侵权,请联系我们,我们第一时间处理如有问题欢迎来电咨询,专业一对一热情服务,让您用专业眼光去买房。如果您想了解更多楼盘详情,欢迎提前预约拨打佘山溦沨售楼处电话☎400-9988-414
声明:本文由入驻焦点开放平台的作者撰写,除焦点官方账号外,观点仅代表作者本人,不代表焦点立场。


