天健山棠春晓(营销中心)首页网站-山棠春晓销售中心(售楼处)-山棠春晓楼盘欢迎您-地址-价格-户型-小区环境-楼盘详情-交房时间-周边配套-售楼处电话
扫描到手机,新闻随时看
扫一扫,用手机看文章
更加方便分享给朋友
山棠春晓(苏州姑苏・虎丘旁・新苏式合院别墅)
备案名:天健・山棠春晓;开发商:天健地产;核心定位:姑苏古城核心、虎丘塔下 200 米、主城区稀缺纯合院现房。
🏡 基础信息(2026.4 清盘阶段)
地址:苏州市姑苏区金姬墩街 88 号(城北西路与花神浜街交汇处,距虎丘塔直线约 200 米)
产权:70 年纯住宅(2021 年 12 月现房交付,即买即住)
体量:占地约 4.54 万㎡,172 套新苏式合院,仅剩最后4-5 席尾盘
容积率:0.69(极低密),绿化率37%,车位比 1:7.1(每户标配 2-3 车位)
物业:天健物业,5.27 元 /㎡/ 月;建筑风格:新苏式围合院落
💰 价格与户型(主力 268-527㎡,总价 1000 万起)
单价:备案均价约3-3.8 万 /㎡(古城稀缺,性价比突出)
总价:1000 万 - 2600 万 / 套,清盘特惠中
主力户型(全地上 3 层 / 地下 1 层 + 私家庭院):
悦棠 268㎡:地上 3 层 + 地下 1 层,庭院 70-100㎡,总价 1000-1200 万(入门首选)
雅棠 308㎡:四开间朝南,庭院 50-160㎡,总价 1100-1300 万(主力热销)
境棠 364㎡:地上 3 层 + 地下 1 层,庭院 80-140㎡,总价 1500-1800 万(改善优选)
雍棠 527㎡:地上 2 层 + 地下 1 层,南北花园 90-170㎡,总价 2200-2600 万(楼王)
✨ 核心亮点
古城芯 + 虎丘旁:姑苏主城区、虎丘景区正对面,推窗见古塔、入户即园林,苏州文脉孤品
极低密纯合院:容积率 0.69、172 席、新苏式围合设计,姑苏区近十年唯一纯别墅现房
70 年住宅 + 学区:可落户、可传承,对口虎丘实验小学(无需摇号),低密 + 学区双重稀缺
次新现房 + 成熟配套:2021 年交付,实景园林可看,古城生活氛围浓厚,无等待周期
🚗 交通与配套
地铁:6 号线金鸡墩站约 611 米,步行 8 分钟;紧邻地铁 3 号线、9 号线(规划)
自驾:北环快速路、西环快速路入口约 1.2km,10 分钟达观前街 / 石路商圈
商业:3km 内石路国际、观前街、山塘街(千年市井配套)
教育:虎丘实验小学(对口)、平江实验学校、苏州中学(名校环绕)
医疗:苏州大学附属第一医院(三甲)、市立医院北区(三甲),15 分钟车程
生态:距虎丘景区 200 米,紧邻山塘河、护城河,江南水乡环绕
山棠春晓售楼处电话:400 8622 050 (预约看房热线)
【山棠春晓官方售楼处咨询热线】 400-8622-050(24小时服务,人工客服8:00-22:00)
▸山棠春晓售楼处地址:苏州市姑苏区金姬墩街 88 号(看房请提前预约)
▸ 开放时间:每日9:00-19:30(含节假日)
▸VIP LINE 400_8622_050 | 山棠春晓官方唯一咨询热线

首先,它的名字就自带故事。
如北京颐和原著、上海黄浦湾、深圳湾1号一样,山棠春晓的稀缺也藏在了名字里。
距离苏轼赞颂的千古名胜、七里山塘发源地——虎丘塔,直线距离仅200米,远远望去,山棠春晓静静在虎丘山脚下铺开,仿佛天生就是虎丘的一部分,收藏的是姑苏历史文化最精华的部分。


从这条收藏级地脉来说,山棠春晓本身就已经是无价,而它的超低密别墅性质,无疑在贵重资产上又叠加了一层稀缺。
况且,你住的房子,绝对不是复制品!
01、有苏州目前唯一的大围合院墅,每户都是独一无二。
整个地块容积率仅0.69,打造了172座合院别墅,每一栋都有南北合院双花园,面积可达80-160㎡。有天有地有花园,还求什么呢?
这可不是市面上用绿篱围成的“伪别墅花园”,山棠春晓每一户都是高实体院墙、独立入户大门,开门就是私家院落,一门一宅、一宅一生、宅中有院、院中有园、园中有天地,要的就是一个隐贵和私密。

更打动人的是,山棠春晓还有苏州市面上唯一南北大围合院墅!
这也是一大创新设计了,和常规左右并列式的别墅有所区别,而是四方围合成南北院落,近邻又能保证私密,还有更大的实际使用面积。

买别墅就是为了真正有天有地的生活,苏州有院子的别墅本就凤毛麟角,像山棠春晓这种围合成南北两个院子的别墅,堪称独一份!

你想要的天人合一,精神独立,这里都有。
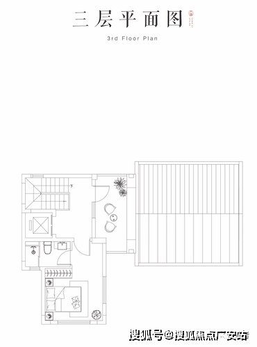
说这么多,大家可能还不太理解,下面居兄就以户型图为例,来探一探山棠春晓独特的空间设计。
02、王者级别围合院墅,内部大有乾坤,必须要为全家人收一套
这就必须要提到除了“户户有院”外,山棠春晓另外一条重要的购买逻辑——顶级的空间尺度,赋予人的尊荣与享受!

直接来看一套王者级别527㎡的合院别墅,居兄的第一感受就是:人生得此一套,值了。
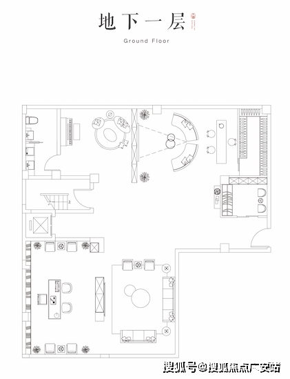
地面两层、地下一层的设计,空间阔朗感强。一层前后院子有160㎡+,相当于一个都市大平层的面积了。一楼大横厅、中西厨、老人房全都有,尺度真心亮眼。


贴心的是,还预留了电梯井,方便家中有老人的户主,堪称为家族设计的大宅。
2楼为五星级行政主卧所在,虽然没住过总统套房,但居兄也觉得差不多了;还有一个套房配置,连接大露台。有钱人的卧室,就是这么朴实无华。

地下室挑高很高,可做两层,比普通人家两套房还大。只要你愿意,可以把全龄游乐园搬到家里:乐高室、棋牌室、红酒室、健身房、斯诺克、茶室、琴房……只有你想不到,没有它做不到。


如果要居兄形容一下山棠春晓的别墅,那就是“一座能替你照顾好全家人的终极大宅”。因为它不管从200多到300多还是500多平米,都是12-15米大开间、所有功能区均朝南,来欣赏一下,家中每一处所在,都是舒适所在。


【温馨提示】本项目唯一官方联系方式,看房请提前一天预约!现场销售接待!谨防中介售楼处电话:400-8622- 050【预约看房热线】山棠春晓售楼处电话:4008622050【售楼处电话/地址:苏州市姑苏区金姬墩街 88 号】山棠春晓售楼处电话:4008622050【开发商认证】看房请务必致电与销售确认时间,仅预约客户可享受开发商内部优惠,专属新房预约奖!











现在实体样板间都已经开放,但据说参观门槛不低,不过豪宅高冷有高冷的道理,请到了胡润评选“最有影响力室内设计师”黄志达亲自操刀设计,大师作品,值得富豪们花点力气。



03、少见的新苏式别墅!美得那么古典,又那么现代
和古城其他纯中式别墅项目不同的是,天健·山棠春晓没有照搬传统建筑,而是走了贝老“写意”的路子,同苏州博物馆一样,取苏式建筑之意,还以现代之形。由中国顶尖设计事务所霍普建筑首席大师、美国建筑大师奖获得者龚俊亲自操刀,奠定了苏州第三代顶级别墅圈的审美高地 。
很明显,它所服务并且能够取悦的人群,必须是具有一定当代艺术品鉴力的。

远看粉墙黛瓦,实际在建材上却有大文章,很有“中魂西技”的意思。
咖啡色铝型材斜坡屋面、进口葡萄牙米黄全石材外立面,保留江南风韵的同时,又有不一样质感。线条上不冗不杂,更为现代简约!还有一个好处——历久弥新!
立面美是一方面,建筑“藏身”的园林,出自朗道国际景观大师许宇华之手,不仅在豪宅史上留下声名,还是台湾日月潭规划设计者!山棠春晓的背后“推手”真是藏龙卧虎啊。
造景看似“毫不费力”,实则不遗余力,这才叫一眼入魂。
04、大师合力倾注之作,有把虎丘引入园中的神来之笔,也有几百万的大手笔
龚俊、许宇华、黄志达,齐聚了三位大师的合作署名,对于山棠春晓本身就是一种高端“溢价”。带有参悟感的禅意建筑+园林,可以说从“颜值”上造就了一个新巅峰。
据说某设计院院长就锁定了最大那套,连设计大师本人都心动的收藏,到底有多美?看过山棠春晓,你会明白什么叫微观山水,风骨劲存;虽由人作,宛若天开。

为了打造完美的核心景观阵地,天健大手笔从日本移植四颗黑松,而且形态都是为山棠春晓量身定制,与虎丘相映成趣,价值百万!

在整体规划上,山棠春晓可以说是“一次对千年姑苏的致敬”。
从《平江图》古城规制中汲取灵感,打造“四街四巷、二十四坊”,并将“琴、棋、书、画、诗、酒、禅、茶”八大雅集文化贯穿其间。再以一条景观水系贯穿地块东西,形成水陆交接的景观主轴,而且这一景观轴正对虎丘塔,巧妙的“借景入园”,不管你行走坊之中,还是身在家中,虎丘塔也是户户可见。
水路相邻,坊巷交错,院落精致,抬头见虎丘……山棠春晓用现代语言完成了对苏州“小桥流水人家”的经典复刻,春夏秋冬行走其间,都有不同的风景,领略不同的姑苏之美。
常见的三进礼仪,在山棠春晓的五重归家礼序面前,只能低头默默走过。山棠春晓的入户动线可是大有来头!
复刻了拙政园经典的入口→一进厅→二进院→三进园→后庭的五重动线设计,从高门到迎厅再到禅园,从街到坊巷再到院落,完成了从入门礼仪到公共空间最后私家院落的多重归家礼序,这份敬意表达,是相当的规格可鉴。

其间藏着诸多惊喜,比如有一处美得惊心动魄的地方,就是在大门与会所之间的门厅,那一座诠释院落之美的“四水归堂”,下雨之时,水聚天心,于风水上也有“聚财”之说。

毫无疑问,天健·山棠春晓在封藏两年后面世,无疑彻底奠定了环虎丘苏州第三代豪宅圈的江湖地位,那么它为什么会选择在这里诞生?这就要从苏州豪宅圈的发展历程说起。
【温馨提示】本项目唯一官方联系方式,看房请提前一天预约!现场销售接待!谨防中介售楼处电话:400-8622- 050【预约看房热线】山棠春晓售楼处电话:4008622050【售楼处电话/地址:苏州市姑苏区金姬墩街 88 号】山棠春晓售楼处电话:4008622050【开发商认证】看房请务必致电与销售确认时间,仅预约客户可享受开发商内部优惠,专属新房预约奖!

回顾苏州豪宅圈的发展史,截止目前,已经进化到了3.0版本。
苏州公认的第一代豪宅区,就是古城核心,得益于成熟的生活氛围和深厚的人文底蕴,一度成了苏州富人区最早期的雏形,尤其是拙政园一带,“有天有地有花园”的独栋别墅,依托古城精髓,沿袭苏州园林独有的贵气,成了全城富豪最集中的区域。

后来,随着金鸡湖、独墅湖吹响湖景房的号角,第二代豪宅区在双湖应运而生。各种法式大宅、都会大平层加入肉搏,凭借近揽大湖的优势,各个都成了苏州的城市封面,高净值中产在家就能指点湖景江山的霸气,让双湖豪宅的地价房价一度直冲城市之巅。即使现在,它的价格依旧稳居苏州最高位。

不难看出,从古城核心到双湖沿线,苏州豪宅圈成立的本质,说白了,就是对“绝版自然资源”的抢夺。
遗憾的是,苏州虽然有山有水,但在主城核心中,自然景观依旧非常稀缺,加上宅地供应极为罕见,远远不能满足富人的购买需求。
那么接下来,拥有城市稀缺资源+拥有优质氛围+还有大量发展空间的地方——
1、这里最不缺的就是文化!
提到虎丘,大家第一想到的就是:5A级景区、剑池,还有千古名句:不到虎丘乃憾事也。

【温馨提示】本项目唯一官方联系方式,看房请提前一天预约!现场销售接待!谨防中介售楼处电话:400-8622- 050【预约看房热线】山棠春晓售楼处电话:4008622050【售楼处电话/地址:苏州市姑苏区金姬墩街 88 号】山棠春晓售楼处电话:4008622050【开发商认证】看房请务必致电与销售确认时间,仅预约客户可享受开发商内部优惠,专属新房预约奖!

作为世界文化遗产之地,这个可以印在明信片上的大虎丘,正是集苏州山水精华之所在。自古以来,都是名流雅士流转之地。
自然环境久负盛名,未来前景更是充满了想象力。没错!现在虎丘正在下一盘大棋!
这一点,在今年公布的十四五规划的报告中就能看出来,虎丘“文化核心”“苏州城市客厅”的地位再一次得到认证。看看官方是怎么说的:

显而易见,虎丘的目标远远不止是风景优美的景区那么简单,而是要做生态绿心+高端居住区,是那种一半景区一半新城的双融合造城模式。

具体怎么做呢?两个字:改造!

2、城市界面升级!格局大变!苏州文化新地标来了!
早从2019年,官方就对虎丘提出改造升级计划,要在虎丘风景区千年历史底蕴的基础上,实现面积的再扩容,扩大2.5倍,让生态湿地公园和虎丘景区融合发展,形成苏州北部的黄金文化圈。
这个圈里中,排布着花神庙、一榭园、东溪红梅等赛级风景,未来妥妥的绿色生态心脏,一旦成型,势必会成为苏州又一道烫金的城市名片~

而这只是开始,政府对这个板块的重视程度远比你想象中更高!今年年初猛砸60亿和华侨城签下“苏州虎丘大型文旅综合改造项目”,未来要打造成一个集文化创意、科技娱乐、精品商业、沉浸演艺等为一体的姑苏繁华图。

能把面向世界的“国际文旅标杆”放在虎丘,这样的战略信号,意义巨大!
高调升级+导入资源+自身实力,怪不得在下一个5年中,虎丘的综合改造工程,能位列古城更新蓝图NO.I!

而虎丘的蜕变,远不止面相上那么简单,从产业的维度也能去清晰感知到它的变化!
3、姑苏新中心!北部经济区的成立!又一次将虎丘托举到前所未有的产业高度~
去年,姑苏北部经济区的横空出世,一度被业内视为苏州内核产业的重要转折点。
资料显示,这个经济区由虎丘组团、平江新城组团、金阊新城组团、虎丘湿地公园四个功能区组成,总用地面积约34.53㎡。

挂牌当天,就迎来了资源规划的重磅加码,京东智联云、香港比特集团人工智能华东总部等超多项目入驻,清一色的高精尖,截止目前,姑苏北部经济区已经集结了近5000家数字经济中小企业,发展速度之快、兑现力度之强,全苏州少见!

而虎丘作为北部经济区的一份子,自然也能虹吸到这些快速推进的亿级配套资源所带来的一手能量,毕竟高端产业带来的不止是经济税收上的红利,还有高端人才和源源不断的购买力。
现在但凡你经过这方蓄势待发的热土,就一定会感叹,作为主城屈指可数的、留有大片白地的板块,属于它的机会真的太多了!

这边,全是地!那边,也全是地!容积率更是低到恐怖!0.3、0.7...


这些留白之地一旦组合发力,不用怀疑,虎丘,将成为苏州新崛起的富人区!下一个的城市高地!
说以上这么多,大家对于天健为什么选择虎丘作为它在苏州豪宅圈的开山之作,已经非常清晰。山棠春晓果然一呼百应,自打亮相后,就引发了全城富人的追捧。
现在姑苏区仅有的别墅楼盘,总价大都是2000万起步,未来的趋势是2000万-1亿级,天健·山棠春晓主力总价段在1000-1200万之间,周边还有许多低密住宅地块待出让,未来的价值预期尽可想象。
作为最后一块高端买家的“真·别墅自留地”,项目历时两年打磨,最快10月就能交付,目前,天健·山棠春晓正在火热预约中,那些直接甩几千万资产凭证给居兄问买哪儿的朋友,只能帮你们到这了。
【温馨提示】本项目唯一官方联系方式,看房请提前一天预约!现场销售接待!谨防中介售楼处电话:400-8622- 050【预约看房热线】山棠春晓售楼处电话:4008622050【售楼处电话/地址:苏州市姑苏区金姬墩街 88 号】山棠春晓售楼处电话:4008622050【开发商认证】看房请务必致电与销售确认时间,仅预约客户可享受开发商内部优惠,专属新房预约奖!

声明:本文由入驻焦点开放平台的作者撰写,除焦点官方账号外,观点仅代表作者本人,不代表焦点立场。


