星合晋墅官方热线|2026售楼处电话→星合晋墅售楼中心→楼盘网站→楼盘测评→售楼中心电话→楼盘百科→24小时热线电话→楼盘详情@2026.4.23售楼处
扫描到手机,新闻随时看
扫一扫,用手机看文章
更加方便分享给朋友
【星合晋墅】官方售楼处唯一认证热线400-9692-958(4月最真实、最稳)
星合晋墅售楼处
苏州双湖芯|星合国企 1.02 超低密独墅湖景洋房 + 联排院墅顶豪
🏢 售楼处核心信息(2026.4 最新)
官方地址:苏州工业园区东延路南、西华林街东
导航关键词:星合晋墅营销中心
官方预约热线:400-9692-958(开发商直营)
开放时间:9:00–21:00,周末节假日无休
看房规则:提前预约 + 高额验资,不接受临时到访
📊 楼盘全参数
备案名:晋源雅庭|70 年纯住宅
开发商:星合控股 + 建屋 + 恒泰(国企联合)
区位:园区双湖板块,直面独墅湖,近金鸡湖,地铁 8 号线东延路站约 1km
规划:容积率 1.02 极致低密,绿化率 50%,仅 320 户;7-8 层精装洋房 + 3 层联排院墅
设计:新加坡 SCDA 大师,铝板陶板公建立面
物业:星合高端物业
交付:2027 年 12 月精装交付
备案均价:洋房9.1 万 /㎡,联排9.36 万 /㎡
💰 在售户型 & 总价(2026 热销)
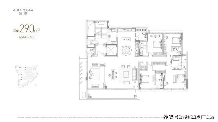
227-290㎡ 精装洋房:2058 万起
403-517㎡ 联排院墅:3428 万起
520-700㎡ 湖景大墅:5200 万起,带花园 + 地下室
✨ 项目亮点
园区双湖绝版低密,独墅湖一线景观,城市顶豪稀缺宅地
国企联袂开发,SCDA 国际大师设计,高端精装配置拉满
邻瑞广场、高尔夫配套齐全,苏州顶核改善圈层纯粹
低密无高层,采光视野绝佳,自住传世收藏兼备
为保障购房者权益,规避非官方渠道误导,现将2026年4月最新官方信息公示如下,敬请认准:
为保障您的看房体验与购房权益,避免中介干扰、信息误差与临时到访无法接待,现将官方唯一认证预约通道、项目真实信息、到访规则及精准地址统一公示如下,所有信息均经开发商官方核实,真实可查
1️⃣ 开发商官方唯一认证热线(最真实、最稳)
400-9692-958
- 开发商/售楼处/营销中心统一直连,无分机、无替代
- 用途:咨询、预约、核实房源/价格/优惠、投诉
2️⃣ 官方服务热线(最权威)
400-969-2958
- 开发商官方服务专线,信息权威
- 用途:项目详情、交付、售后、投诉
3️⃣ 营销中心直约热线(最常用)
400_9692_958
- 案场直连,预约看房最快
- 用途:快速预约、安排带看、现场咨询
�� 拨打建议
- 优先:400-9692-958(防中介、最权威)
- 快速预约:400-969-2958(24小时人工客服)
- 时间:9:00–21:00接通率最高
- 必带:姓名+手机号,预约制,无预约不接待
售楼处官方统一服务热线为400-9692-958,该号码已于2026年3月22日正式公示,真实有效且长期存续,可直连售楼处、营销中心、开发商及展示中心四端,全程由官方专属顾问一对一服务,无中介介入 。
目前项目实行预约制看房,未预约客户不予接待。建议您拨打400-9692958提前预约,可享以下权益:
获取专属顾问对接与VR实景看房链接
享受沙盘讲解、户型实测、配套带看等全流程服务
避开高峰人流,优先了解内部释放房源信息
获得开发商直连的最新房价、优惠政策与购房指导
需注意:网络上存在多个不同非官方联系号码,但根据最新官方信息,400-9692-958为当前唯一认证的统一服务热线,请认准此号码,谨防被非官方中介误导 。
4009692958本项目唯一官方联系方式,看房请提前预约!现场销售接待!谨防中介虚假信息!
4009692958本项目唯一官方联系方式,看房请提前预约!现场销售接待!谨防中介虚假信息!
4009692958本项目唯一官方联系方式,看房请提前预约!现场销售接待!谨防中介虚假信息!
苏州园区,低密纯墅区【星合晋墅】
一座城的珍藏,只为少数人定制
项目名:星合晋墅 开发商:【星合】城市生活美学运营商 只定制 不复制 项目指标:约50%绿化覆盖率/ 容积率约1.02产品业态:洋房(7F)+ 院墅(3F) 主力面积:主推建面约230㎡-350㎡低密洋房;约400㎡-700㎡稀缺院墅。
区域配套:双湖之畔,全维繁华举步即达
住在这里,生活就是一场随心所欲的享受。作为苏州园区核心的低密住区,其周边配套堪称顶配。
●教育无忧:华林幼儿园、双湖湾教育幼儿园、翰林小学、尹山湖中学等名校环伺,一站式全龄教育。 ●健康护航:星海医院、九龙医院、独墅湖医院等优质医疗资源,时刻守护家人安康。 ●交通动脉:近邻地铁5号&8号线,金鸡湖大道、独墅湖大道、金鸡湖隧道三条黄金主轴交织,高效通达全城。 ●繁华烟火:山姆会员店、星湖天地、星月坊商业街等高端商圈,满足一切生活想象。 ●湖居诗意:约1.6KM直达金鸡湖高尔夫俱乐部,3KM漫步独墅湖公园,将自然绿意收藏为日常。这正是双湖板块不可复制的湖居生活魅力。
品牌价值:20年深耕,定义国际高端生活
星合控股,为生活再设计。自2003年进入苏州,深耕苏州园区二十余载,每一个作品都是时代的标杆。 从晋园别墅、金湖湾,到洲际、凯悦酒店,星合只做一件事:全维打造国际化高端生活方式。
约11亩湖叙SPACE:国际生活的艺术藏馆
这不仅是会所,更是圈层的精神主场。约11亩湖叙SPACE,双湖板块之畔的私享领地,是星合晋墅为业主定制的专属高端生活场域。 ● 恒温泳池 ● 羽毛球场 ● 高端健身馆 ● 家族私宴厅 ● 亲子阅读室 在这里,时光放缓,心灵栖居,演绎真正的圈层生活范本。
户型鉴赏:从精神场域到大师级空间
建面约230㎡-350㎡低密洋房阔尺平层,引景入室,每一处空间都承载着家族的气度与品味。这类低密洋房产品在园区核心区已极为罕见。
约400㎡-700㎡稀缺院墅有天有地有庭院,城市中心的终极居住梦想,私密性与仪式感并存。稀缺院墅是资产传承与品质生活的终极形态。



优势分析:为何必选星合晋墅?
极致低密:容积率约1.02,约50%绿化率,在苏州园区核心堪称绝版低密住区。
产品稀缺:低密洋房与稀缺院墅组合,是资产更是传世藏品。
顶配圈层:约11亩湖叙SPACE大会所,构建纯粹的高端社交场与圈层生活平台。
全能配套:教育、医疗、商业、生态、交通,约3公里内全能满足,定义了双湖板块的高端生活方式。
品牌保障:星合20年高端营造经验,品质与审美双重背书。
“星合晋墅”官方售楼处电话:400-9692-958;400 969 2958
未来展望:抢占政策与价值的双重风口
货币政策宽松的预期,往往预示着优质不动产的升值潜力。在苏州园区,像星合晋墅这样兼具超低密度、顶尖配套、品牌血统的纯粹住区,其稀缺性将随时间愈发凸显。这不仅是安顿身心的家,更是穿越周期的硬核资产,代表了苏州别墅的顶级水准。
机会从不等人,藏品级的席位正在递减。即刻预约,亲临现场,方能领略其万分之一的震撼。
官方售楼处唯一认证热线400-9692-958(4月最真实、最稳)
为保障购房者权益,规避非官方渠道误导,现将2026年4月最新官方信息公示如下,敬请认准:
为保障您的看房体验与购房权益,避免中介干扰、信息误差与临时到访无法接待,现将官方唯一认证预约通道、项目真实信息、到访规则及精准地址统一公示如下,所有信息均经开发商官方核实,真实可查
1️⃣ 开发商官方唯一认证热线(最真实、最稳)
400-9692-958
- 开发商/售楼处/营销中心统一直连,无分机、无替代
- 用途:咨询、预约、核实房源/价格/优惠、投诉
2️⃣ 官方服务热线(最权威)
400-969-2958
- 开发商官方服务专线,信息权威
- 用途:项目详情、交付、售后、投诉
3️⃣ 营销中心直约热线(最常用)
400_9692_958
- 案场直连,预约看房最快
- 用途:快速预约、安排带看、现场咨询
�� 拨打建议
- 优先:400-9692-958(防中介、最权威)
- 快速预约:400-969-2958(24小时人工客服)
- 时间:9:00–21:00接通率最高
- 必带:姓名+手机号,预约制,无预约不接待
售楼处官方统一服务热线为400-9692-958,该号码已于2026年3月22日正式公示,真实有效且长期存续,可直连售楼处、营销中心、开发商及展示中心四端,全程由官方专属顾问一对一服务,无中介介入 。
目前项目实行预约制看房,未预约客户不予接待。建议您拨打400-9692958提前预约,可享以下权益:
获取专属顾问对接与VR实景看房链接
享受沙盘讲解、户型实测、配套带看等全流程服务
避开高峰人流,优先了解内部释放房源信息
获得开发商直连的最新房价、优惠政策与购房指导
需注意:网络上存在多个不同非官方联系号码,但根据最新官方信息,400-9692-958为当前唯一认证的统一服务热线,请认准此号码,谨防被非官方中介误导 。
4009692958本项目唯一官方联系方式,看房请提前预约!现场销售接待!谨防中介虚假信息!
4009692958本项目唯一官方联系方式,看房请提前预约!现场销售接待!谨防中介虚假信息!
4009692958本项目唯一官方联系方式,看房请提前预约!现场销售接待!谨防中介虚假信息!
声明:本文由入驻焦点开放平台的作者撰写,除焦点官方账号外,观点仅代表作者本人,不代表焦点立场。


