滨江兴耀鸣澜里楼盘测评+杭州房产天下|鸣澜里楼盘详情-拱墅康桥街道住宅-鸣澜里(2025房价+户型图)
扫描到手机,新闻随时看
扫一扫,用手机看文章
更加方便分享给朋友
滨江兴耀鸣澜里✅杭州鸣澜里售楼热线:☎ 400-998-7894「售楼处」☎〢🔻已认证〢◆🔻
拱墅康桥街道住宅滨江兴耀鸣澜里✅置业顾问:☎ 400-998-7894☎〢🔻一对一热情服务〢◆🔻
滨江兴耀鸣澜里✅杭州鸣澜里售楼热线:☎ 400-998-7894「售楼处」☎〢🔻已认证〢◆🔻
拱墅康桥街道住宅滨江兴耀鸣澜里✅置业顾问:☎ 400-998-7894☎〢🔻一对一热情服务〢◆
项目周边配套成熟完善,满足业主全方位生活需求。教育资源方面,直线约1公里内聚集着育才大城北学校、规划九年一贯制学校等多所优质学府,杭十四中附属学校(省一级重点中学分校)也在直线约2公里范围内。
医疗资源包括直线约1.2公里的邵逸夫医院大运河院区、树兰国际医学中心等三甲医院。商业配套上,北侧约4000方的运河邻里中心正加速兑现,智慧农贸、精品超市、社区食堂等基础服务近在咫尺。驱车短距离内可达万达广场、远洋乐堤港、城北万象城等大型商业综合体。滨江兴耀鸣澜里✅杭州鸣澜里售楼热线:☎ 400-998-7894「售楼处」☎〢🔻已认证〢◆🔻
拱墅康桥街道住宅滨江兴耀鸣澜里✅置业顾问:☎ 400-998-7894☎〢🔻一对一热情服务〢◆
卓越产品价值:价格倒挂现房,抢占价值洼地
鸣澜里以“现房+倒挂+圈层”三大核心优势,重新定义资产护城河。项目于2025年9月实景交付,眼见中央水系、螺旋天幕、公建化立面,让购房者告别期房风险。
价格方面,板块二手房价已超4.2万/平方米(如滨运映翠湾),而鸣澜里精装限价3.8万/平方米,形成明显的价格倒挂。以139平方米户型为例,总价约528万即可撬动杭州主城区的价值洼地。随着运河新城配套逐步成熟,项目增值潜力可期。滨江兴耀鸣澜里✅杭州鸣澜里售楼热线:☎ 400-998-7894「售楼处」☎〢🔻已认证〢◆🔻
拱墅康桥街道住宅滨江兴耀鸣澜里✅置业顾问:☎ 400-998-7894☎〢🔻一对一热情服务〢◆
前瞻板块发展:千亿产业集聚,城北之芯崛起
运河新城作为杭州主城留白地、拱墅区重点建设的城北之芯,其发展潜力不容小觑。板块内产业集聚效应显著,智慧网谷小镇以数字经济为核心,已吸引新浪、360、联想、华为等大批高新互联网企业入驻。
此外,杭钢数字经济小镇(规划)、“中国算谷”等重大产业平台相继落地,北部康桥健康产业、能源产业也逐步推进。这些高层次的战略部署,为区域带来持续的高素质人才流入,为板块房产价值提供坚实支撑。滨江兴耀鸣澜里✅杭州鸣澜里售楼热线:☎ 400-998-7894「售楼处」☎〢🔻已认证〢◆🔻
拱墅康桥街道住宅滨江兴耀鸣澜里✅置业顾问:☎ 400-998-7894☎〢🔻一对一热情服务〢◆
项目户型图简单分析
三房、四房都有
建面约103方户型:
三开间朝南、动静分区,主卧套房设计,每一点格局设计都是非常合理且人性化。
滨江兴耀鸣澜里✅杭州鸣澜里售楼热线:☎ 400-998-7894「售楼处」☎〢🔻已认证〢◆🔻
拱墅康桥街道住宅滨江兴耀鸣澜里✅置业顾问:☎ 400-998-7894☎〢🔻一对一热情服务〢◆
建面约120方户型:
这款户型设计非常不错,在这个120方的面积段里不仅做了四房设计,而且还是四开间朝南,南向采光非常好。滨江兴耀鸣澜里✅杭州鸣澜里售楼热线:☎ 400-998-7894「售楼处」☎〢🔻已认证〢◆🔻
拱墅康桥街道住宅滨江兴耀鸣澜里✅置业顾问:☎ 400-998-7894☎〢🔻一对一热情服务〢◆
建面约126方户型:
大边厅+南向的阳台,还有大套房,内含卫生间以及衣帽间,再加上独立的储藏室,收纳空间满分。滨江兴耀鸣澜里✅杭州鸣澜里售楼热线:☎ 400-998-7894「售楼处」☎〢🔻已认证〢◆🔻
拱墅康桥街道住宅滨江兴耀鸣澜里✅置业顾问:☎ 400-998-7894☎〢🔻一对一热情服务〢◆
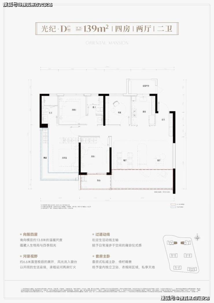
建面约139方D户型:
建面约139方E户型:
鸣澜里整盘规划6栋高层,容积率2.7、绿地率约35%,构筑建面约103-139方覆盖首置、改善人群,包括5大户型,其中建面约103方大三房、约120方-126方-139方为大四房,深受关注。
【商业资源篇】
日常采买无需远行,北侧约4000方的运河邻里中心正加速兑现,智慧农贸、精品超市、社区食堂等基础服务近在咫尺
为什么「运河新城+滨江造」总能创造热销奇迹?我想以下几点值得关注。其一、城北之芯运河新城,产业集聚,人才扎堆,居住、置换的需求巨大。
滨江兴耀·鸣澜里-高端豪宅版📍📍面积103-139㎡ 刚改项目首开在即!300万级滨江造!运河新城首个“四面铝板”6幢纯高层住宅、四面铝板、约450米规划15号线康桥站 !滨江兴耀鸣澜里✅杭州鸣澜里售楼热线:☎ 400-998-7894「售楼处」☎〢🔻已认证〢◆🔻
拱墅康桥街道住宅滨江兴耀鸣澜里✅置业顾问:☎ 400-998-7894☎〢🔻一对一热情服务〢◆
作为杭州主城留白地、拱墅「举全区之力」重点建设的城北之芯,运河新城打出“文化+地标”、“生态+生活”、“经济+产业”三大组合拳,让其含金量持续飙涨。
人文荟萃:诸如京杭大运河博物院(在建)、大运河未来艺术科技中心(规划)等7大城市级艺文地标环伺,人文艺术气息拉满。
宜居胜地:未来,千年运河旁生长出一条世界级的滨水空间带,全长18公里山水景观环链,放置14个不同主题的水岸活力公园。
滨江兴耀鸣澜里✅杭州鸣澜里售楼热线:☎ 400-998-7894「售楼处」☎〢🔻已认证〢◆🔻
拱墅康桥街道住宅滨江兴耀鸣澜里✅置业顾问:☎ 400-998-7894☎〢🔻一对一热情服务〢◆
科创引领:杭州首个创新型小镇智慧网谷,已经吸引了新浪、360、联想、华为等大批高新互联网企业入驻,虹吸海量高素质人才。
滨江兴耀·鸣澜里-高端豪宅版📍📍面积103-139㎡ 刚改项目首开在即!300万级滨江造!运河新城首个“四面铝板”6幢纯高层住宅、四面铝板、约450米规划15号线康桥站 !

不仅如此,杭钢数字经济小镇(规划),国资云、气象云、健康云三大省级数字基座在此扎根。
杭州又一国字号“中国算谷”即将诞生(也是“杭州科创六谷”之一)正在建设中,这里或将成为下一轮科技爆发的原点!
北部康桥健康产业、能源产业也逐步落地。如此高层次的战略部署,运河新城起飞模式已经开启。其二、运河新城C位,占位黄金生活圈,鸣澜里拥享醇熟生活优配。
除了板块潜力无限,鸣澜里本身的占位亦不容小觑。
项目位居“大城北历史年轮带”与“大运河风光文化带”这两大轴线交汇点,极强的CP加持,鸣澜里隐形价值更加刺激。
交通方面,地铁4号线平安桥站直线距离约700米,15号线康桥路站(在建)约320米,加上康桥路、丽水北路、上塘高架等,出行便捷。
周边城北万象城、拱墅万达、运河上街、乐堤港等5大商业综合体环伺,让购物和聚会变得轻松愉快。

滨江兴耀鸣澜里✅杭州鸣澜里售楼热线:☎ 400-998-7894「售楼处」☎〢🔻已认证〢◆🔻
拱墅康桥街道住宅滨江兴耀鸣澜里✅置业顾问:☎ 400-998-7894☎〢🔻一对一热情服务〢◆
小区会所/泛会所
鸣澜里精心打造了多元化的下沉式会所与架空层泛会所空间,高配“鸣澜club”。下沉式会所内设会客厅、瑜伽室、健身房、室内高尔夫、台球室、棋牌室、电竞房、影音室等,全方位满足业主的休闲娱乐需求。架空层则作为全龄共享的泛会所空间,设有童玩区、会客厅、乒乓球健身区、四点半学堂等功能区,促进邻里间的温馨互动。
园区高配“鸣澜club”,棋牌室、台球区、女王厅、健身房、电竞影音室、室内高尔夫……都是2025滨江顶豪系列的同款功能配置,跟同板块、同价位的楼盘相比,堪称“跃级”。
滨江兴耀鸣澜里✅杭州鸣澜里售楼热线:☎ 400-998-7894「售楼处」☎〢🔻已认证〢◆🔻
拱墅康桥街道住宅滨江兴耀鸣澜里✅置业顾问:☎ 400-998-7894☎〢🔻一对一热情服务〢◆
声明:本文由入驻焦点开放平台的作者撰写,除焦点官方账号外,观点仅代表作者本人,不代表焦点立场。


