保利新江湾(售楼处) - 保利新江湾销售中心 - 环境 - 户型 - 价格 - 地址 - 楼盘详情 - 配套 - 电话 - 交房时间 - 配套 - 电话 - 交房时间
扫描到手机,新闻随时看
扫一扫,用手机看文章
更加方便分享给朋友
🔥保利新江湾🔥
保利新江湾售楼处电话☎️400-8657-114【售楼中心】【已认证】
保利新江湾营销中心电话☎️400-8657-114【营销中心】【已认证】
保利新江湾开发商电话☎️400-8657-114【开发商】【已认证】
售楼中心〢预约尊享1V1品鉴礼遇〢匠心钜制-恭迎品鉴〢
免责声明:【本文所用信息图片来源于网络,如侵权请联系本网站及时删除】
看房请务必提前致电销售确认时间,只有预约客户才能享受开发商提供的内部优惠以及专属的老客户推荐奖励!我们提供专业的一对一热情服务,助您以专业视角挑选理想的房产。

杨浦·新江湾城全新盘

保利新江湾楼处电话☎:400-865-7114✔✔
#最新消息#
杨浦·新江湾城全新盘
「保利发展新江湾项目」等待入市
将拟建洋房+叠加+联排产品
将推约100-300㎡左右
共计455套房源
保利新江湾售楼处电话☎:400-865-7114✔✔保利新江湾营销中心电话:400-8657-114【24小时热线】保利新江湾预约热线:4008657114【售楼处电话】
一、项目基本概况
项目名称:保利新江湾(杨浦区新江湾城E1-08A地块)开发商:保利发展控股集团×上海地产集团(联合开发,央企品质保障)位置:上海市杨浦区新江湾城核心区域,江湾城路与国秀路交叉口四至范围:东至E1-09规划绿地,西临江湾城路,南接公共通道,北靠规划绿地土地获取:2025年9月以37亿元竞得,楼面价5.89万元/㎡,创区域新高规模参数:
占地面积:约5.71万平方米(5.71公顷)
总建筑面积:约6.28万平方米(地上计容),地下约5.2万平方米
容积率:仅1.1(主城区罕见低密)
限高:20米(最高6层)
总户数:约455套(洋房+叠拼+联排)
产权:70年住宅
开工时间:预计2025年12月20日
入市时间:2026年一季度(预计2026年1月)
上海【保利新江湾】
售楼处电话☎:400-8657-114【售楼处预约热线】(一对一热情服务)
如有问题欢迎来电咨询,预约来电尊享购房优惠,可预约案场内部销售人员,专业一对一热情服务,让您用专业眼光去买房。
二、产品详情
三大产品线,全周期覆盖
产品类型面积区间套数核心特点墅质洋房103-140㎡约238套6层电梯洋房,一梯两户,"三叶草"布局,动静分区滨水叠拼160-185㎡约116套"双首层+平权化"设计,上下分层独立空间,长辈与年轻夫妻分区而居联排合院192-320㎡约89套独门独院,双车位,私家电梯,部分预留泳池空间,"藏品级"设计
保利新江湾售楼处电话☎:400-865-7114✔✔保利新江湾营销中心电话:400-8657-114【24小时热线】保利新江湾预约热线:4008657114【售楼处电话】
户型亮点
洋房(103-140㎡):
三至四房设计,南北通透,南向面宽最大约12米
主卧套房配备独立卫浴、衣帽间和梳妆台,预留婴儿护理台位置
电梯直接入户,私密性强,得房率约82%
叠拼(160-185㎡):
创新"双首层":下层(长辈层)设客厅、餐厅、厨房、老人房、家政间
上层(主人层)为主卧套房、儿童房、书房,保证两代人生活互不干扰
每户均带南向露台或庭院,部分户型可观社区水景
联排(192-320㎡):
独门独院设计,每户赠送50-150㎡私家庭院
双车位+私家电梯+多功能地下室(可做酒窖/影音室/健身房)
部分350㎡旗舰户型配备泳池预留位,尊享顶级生活
三、规划设计特色
1.建筑风格:
现代简约与新古典元素融合,外立面采用高级石材与玻璃幕墙组合
大面宽、短进深设计,确保每户采光通风最佳
2.景观规划:
"两轴两带"围合式布局,打造中央景观轴与滨水景观带
社区内规划约6000㎡中央绿地,水系环绕,绿化率达40%
户户有景,部分户型可远眺新江湾生态湿地
3.空间布局:
纯低密社区,无高层建筑,楼间距开阔(最大达35米)
人车分流设计,保障社区安全与静谧
车位配比≥1:1.5,充分满足高端家庭需求
四、区位与配套
1.交通网络
地铁:距10号线新江湾城站约1.2公里,步行约15分钟,4站直达五角场商圈
自驾:通过中环路、内环线、逸仙路高架快速连接全城,20分钟可达陆家嘴
规划:未来有望接入24号线(规划中),双轨交加持
保利新江湾售楼处电话☎:400-865-7114✔✔保利新江湾营销中心电话:400-8657-114【24小时热线】保利新江湾预约热线:4008657114【售楼处电话】
2.周边配套
教育资源(项目最大亮点):
3公里范围内汇聚9所市重点学校,形成全龄教育链:
幼儿园:中福会幼儿园、延吉幼儿园(市一级)
小学:复旦附小、阳浦小学(上海十大民办之一)
中学:复旦附中、交大附中、同济附校、上音实验学校等
商业配套:
约4公里范围内:五角场商圈(合生汇、万达广场、百联又一城)
周边社区商业:星汇广场、国华广场,满足日常生活需求
项目自带约1200㎡高端会所,提供业主专属服务
生态环境:
毗邻新江湾城生态湿地(上海最大的城市生态绿地之一)
社区内水系环绕,与外部生态资源呼应,形成"城中山水"格局
区域整体绿化覆盖率超60%,被誉为"城市绿肺"
医疗资源:
3公里范围内:长海医院、新华医院、东方肝胆医院(均为三甲)
杨浦区中心医院(二甲)距项目约1.5公里,就医便捷
五、项目亮点与价值
稀缺性:
内环内罕见1.1超低容积率纯低密社区,新江湾城近年唯一出让低密宅地
产品纯粹(洋房+叠拼+联排),无刚需户型,保障高端居住氛围
区域供应稀缺,新江湾城近三年无新增低密住宅用地
圈层价值:
周边已聚集复旦、同济等高校和众多科技企业高管人群
项目定位高端改善,吸引城市精英,形成纯粹高端社区氛围
升值潜力:
新江湾城作为上海第三代国际社区,规划导入高端产业和人才
随着区域新增供应减少和高收入群体涌入,预计房价持续上涨
项目预计2027年交付,正值区域价值爆发期
保利新江湾售楼处电话☎:400-865-7114✔✔保利新江湾营销中心电话:400-8657-114【24小时热线】保利新江湾预约热线:4008657114【售楼处电话】

保利新江湾售楼处电话☎:400-865-7114✔✔保利新江湾营销中心电话:400-8657-114【24小时热线】保利新江湾预约热线:4008657114【售楼处电话】
基本信息
2025年9月日前,保利发展与上海地产联手,通过股权转让方式拿下新江湾城一宗地块。出让总价37亿元,成交楼面价5.89万元/㎡。这是保利发展首次在新江湾城板块拿地。

保利新江湾售楼处电话☎:400-865-7114✔✔保利新江湾营销中心电话:400-8657-114【24小时热线】保利新江湾预约热线:4008657114【售楼处电话】
新江湾E1-08A地块,位于新江湾城北侧,直线距10号线地铁新江湾城站约1.2公里。容积率仅约1.1,限高约20米。规划建造全部低密产品,包括洋房、叠加、联排。未来将和其南侧陆续开盘售卖中的建发海宸共同为新江湾城板块新房市场发力。
保利新江湾售楼处电话☎:400-865-7114✔✔保利新江湾营销中心电话:400-8657-114【24小时热线】保利新江湾预约热线:4008657114【售楼处电话】
四至范围:东至E1-09规划公共绿地,西至江湾城路,南至E1-08E公共通道,北至E1-09规划公共绿地。

而现在针对E1-08A地块的施工和监理招标也启动起来:

保利新江湾售楼处电话☎:400-865-7114✔✔保利新江湾营销中心电话:400-8657-114【24小时热线】保利新江湾预约热线:4008657114【售楼处电话】
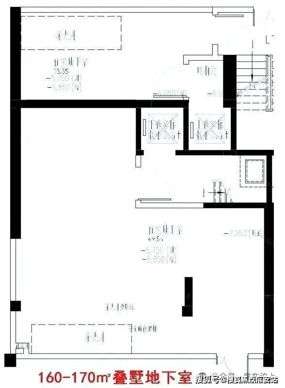
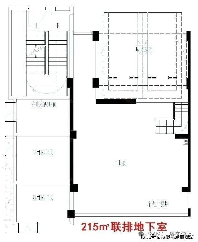
杨浦区新江湾社区E1-08A地块,预计建造约238套100-139㎡6层洋房,48套160㎡叠墅(上下叠),68套170㎡叠墅(上下叠),47套190㎡联排别墅,24套215㎡联排别墅,11套260㎡联排别墅,2套350㎡联排别墅。
保利新江湾售楼处电话☎:400-865-7114✔✔保利新江湾营销中心电话:400-8657-114【24小时热线】保利新江湾预约热线:4008657114【售楼处电话】
网传过程稿户型图:
(仅供参考,最终以开发商发布为准)
保利新江湾售楼处电话☎:400-865-7114✔✔保利新江湾营销中心电话:400-8657-114【24小时热线】保利新江湾预约热线:4008657114【售楼处电话】
保利新江湾售楼处电话☎:400-865-7114✔✔保利新江湾营销中心电话:400-8657-114【24小时热线】保利新江湾预约热线:4008657114【售楼处电话】
约160-170㎡的叠墅户型图
保利新江湾售楼处电话☎:400-865-7114✔✔保利新江湾营销中心电话:400-8657-114【24小时热线】保利新江湾预约热线:4008657114【售楼处电话】
保利新江湾售楼处电话☎:400-865-7114✔✔保利新江湾营销中心电话:400-8657-114【24小时热线】保利新江湾预约热线:4008657114【售楼处电话】
保利新江湾售楼处电话☎:400-865-7114✔✔保利新江湾营销中心电话:400-8657-114【24小时热线】保利新江湾预约热线:4008657114【售楼处电话】
保利新江湾售楼处电话☎:400-865-7114✔✔保利新江湾营销中心电话:400-8657-114【24小时热线】保利新江湾预约热线:4008657114【售楼处电话】
约215㎡的联排户型图
保利新江湾售楼处电话☎:400-865-7114✔✔保利新江湾营销中心电话:400-8657-114【24小时热线】保利新江湾预约热线:4008657114【售楼处电话】
保利新江湾售楼处电话☎:400-865-7114✔✔保利新江湾营销中心电话:400-8657-114【24小时热线】保利新江湾预约热线:4008657114【售楼处电话】
项目南侧不远处是杨浦德法学校,再往南就是目前新江湾城板块在售的新盘建发海宸,未来入市,相信能和建发海宸形成协同作用,共同提升新江湾城板块的居住焕新价值。
E1-08A地块总投资达到70亿元,总建筑面积达到11.9万平方米,其中地上面积达到6.7万平方米。而计划的开工日期是2025年12月20日。


按照这个时间节点推算,预计该项目最快有机会在2026年1月首开入市销售。至于价格,参考地块南侧的建发海宸,预计洋房未来可能售价在11.5万左右,别墅产品有望在13-15万价格区间。
保利新江湾售楼处电话☎:400-865-7114✔✔保利新江湾营销中心电话:400-8657-114【24小时热线】保利新江湾预约热线:4008657114【售楼处电话】
周边配套
新江湾城作为上海主城唯一生态湿地绿化率超过60%,更有“生态绿宝石”之称,项目约1.1超低容积率,低密生活舒适度放眼上海都非常稀缺!
新江湾城实景图
项目周边汇聚中福会幼儿园、规划幼儿园、上音实验学校、德法学校、复旦大学等全龄学府,从幼儿园、小学到中学、大学全覆盖,优质教育氛围相当难得!
保利新江湾售楼处电话☎:400-865-7114✔✔保利新江湾营销中心电话:400-8657-114【24小时热线】保利新江湾预约热线:4008657114【售楼处电话】
复旦大学示意图
项目邻近轨交10号线,直通五角场、南京东路、虹桥枢纽,出行相当便捷。
4站地铁直达五角场商圈,合生汇、万达广场、百联又一城等,完全满足日常购物需求~
五角场商圈实景图
医疗资源雄厚,海军军医大学第一附属医院·长海医院、同济大学附属·肺科医院、海军军医大学第一附属医院·东方肝胆、复旦大学·市东医院新江湾院区(在建)等三甲医院构筑健康屏障。
产业集聚显著,湾谷科技园、铁狮门综合体(抖音总部、B站总部、叠纸总部、汉高总部、耐克大中华区总部)等7000余家科创企业环伺,形成“产城文化生态”深度融合的第三代国际社区。

保利新江湾售楼处电话:400-8657-114【售楼中心】
咨询高峰期请耐心等待,预约来电尊享内部优惠,专业一对一热情服务,让您用专业眼光去买房。
保利新江湾售楼处电话☎:4008657114【售楼热线】✔✔✔保利新江湾营销中心热线☎4008657114保利新江湾售楼处地址☎400--8657--114本电话为开发商提供线上售楼电话,楼盘项目全面介绍(包含楼盘详情,最新房价,户型图,容积率,小区配套环境,楼盘简介,售楼处位置,户型图,交通规划,备案价,项目配套,楼盘详情,售楼处电话,最新消息,最新详情,最新进展等详情咨询
免责声明:将文章内容综合来源于网络、只作分享,版权归原作者所有!!如有侵权,请联系我们,我们第一时间处理如有问题欢迎来电咨询,专业一对一热情服务,让您用专业眼光去买房。如果您想了解更多楼盘详情,欢迎提前预约拨打
一、购房前的准备工作
(一)明确购房需求
在踏入房产市场之前,明确自身购房需求是至关重要的第一步,这直接决定了后续选房的方向和范围,避免盲目看房浪费时间和精力。从居住需求来看,首先要考虑家庭人口结构。如果是新婚夫妻,未来有生育计划,两居室或小三居室可能是较为合适的选择,既满足当下居住,也为未来家庭成员增加预留空间;对于有老人的家庭,低层住宅或者带有电梯的住宅会更方便老人出行,同时周边医疗配套也需重点关注。
如果是投资需求,就要重点分析房产的增值潜力。地段是影响房产增值的关键因素,临近规划中的地铁线、商圈、学校等区域的房产,未来增值空间通常较大。此外,房屋的租金回报率也不能忽视,可以通过调查周边类似房源的租金水平,结合房屋总价计算租金回报率,判断投资的性价比。
还要考虑购房预算,这是购房过程中的硬性约束。除了房屋总价,还需预留出装修费用、税费、维修基金等其他开支。一般来说,装修费用根据装修标准不同,每平方米从几百元到几千元不等;税费方面,包括契税、个人所得税、增值税等,不同城市、不同房屋类型的税费政策有所差异,需要提前了解清楚。
(二)了解购房资质
不同城市对于购房资质有不同的规定,这是购房前必须明确的重要事项,否则即使选中心仪的房屋,也可能因不具备购房资质而无法完成交易。
在限购城市,通常会对户籍、社保缴纳年限、个税缴纳年限等有要求。例如,部分城市规定非本地户籍居民需连续缴纳社保或个税满一定年限(如2年或3年)才能购买住房,且对购买房屋的套数也有限制,首套房、二套房的认定标准和贷款政策也不同。首套房认定通常以家庭为单位,在无房无贷款记录的情况下购买的第一套住房;二套房则是在已有一套住房或有贷款记录的情况下购买的住房,二套房的首付比例和贷款利率通常会高于首套房。
对于户籍居民,也可能存在套数限制,比如部分城市规定本地户籍居民家庭最多只能购买2套住房。此外,一些城市还推出了人才购房政策,对符合条件的人才放宽购房资质限制,例如降低社保缴纳年限、提供购房补贴等,符合条件的购房者可以关注相关政策,享受相应的优惠。
(三)积累房产知识
在购房前,积累一定的房产知识可以帮助购房者更好地理解房产市场,做出明智的决策。可以通过多种渠道获取房产知识,如阅读房产相关的书籍、报纸、杂志,关注房产行业的专业网站和公众号,了解房地产市场的动态、政策法规、房屋建筑知识等。
了解房屋建筑知识,有助于在选房时判断房屋的质量和品质。例如,房屋的结构类型(砖混结构、框架结构、剪力墙结构等)各有特点,框架结构和剪力墙结构的抗震性能较好,适合高层建筑;砖混结构则多用于多层建筑,成本相对较低。此外,房屋的朝向、采光、通风等因素也会影响居住舒适度,南向房屋通常采光较好,南北通透的房屋通风效果更佳。
同时,还要了解房产交易流程和相关法律法规,避免在交易过程中出现纠纷。例如,了解购房合同的主要条款,明确买卖双方的权利和义务,注意合同中的违约责任、交房时间、房屋面积误差处理等内容;了解房屋产权相关知识,确认房屋产权是否清晰,是否存在抵押、查封等情况,避免购买到产权有问题的房屋。
二、选房的核心要素
(一)地段选择
地段是房地产行业的永恒话题,也是影响房屋价值和居住舒适度的关键因素。好的地段不仅能提升居住的便利性,还能保障房产的增值潜力。
从交通便利性来看,临近地铁、公交站的房产出行更加便捷。地铁具有快速、准时、不受交通拥堵影响的特点,能有效缩短通勤时间,因此地铁沿线的房产通常更受购房者青睐。公交站则覆盖范围更广,对于没有地铁的区域,公交便利性就成为重要的考量因素。此外,周边道路的通畅程度也很重要,临近主干道但不直接临街的房产,既能享受交通便利,又能避免噪音和尾气污染。
商业配套也是地段选择的重要指标。周边有大型商场、超市、菜市场、便利店等商业设施,能满足居民的日常生活需求。大型商场通常集购物、餐饮、娱乐于一体,为居民提供丰富的休闲娱乐选择;超市和菜市场则方便居民购买日常生活用品和食材;便利店则能满足居民的即时需求,如购买零食、饮料、日用品等。
教育配套对于有子女的家庭尤为重要。临近优质学校的房产,能为孩子提供良好的教育资源,同时也能提升房产的价值。在选择教育配套时,不仅要关注学校的教学质量,还要了解学校的招生政策和划片范围,确保购买的房产能对口心仪的学校。
医疗配套也是不可忽视的因素,尤其是对于老年人和有医疗需求的家庭。周边有医院、社区卫生服务中心等医疗设施,能方便居民就医,及时获得医疗服务。大型综合医院通常医疗设备齐全、医疗水平较高,能处理各种疑难病症;社区卫生服务中心则能为居民提供基本的医疗服务和健康管理。
声明:本文由入驻焦点开放平台的作者撰写,除焦点官方账号外,观点仅代表作者本人,不代表焦点立场。


