首页【上海杨浦区·建发海宸】售楼处电话→【杨浦·建发海宸】售楼中心【杨浦·建发海宸】首页网站→【杨浦·建发海宸】楼盘百科—房价 建发海宸户型+位置
扫描到手机,新闻随时看
扫一扫,用手机看文章
更加方便分享给朋友
杨浦建发海宸售楼处热线;4009665004(开发商统一电话)杨浦建发海宸售楼处电话;4009665004(预约看房热线)杨浦建发海宸咨询热线:4009665004(享限时高额返现)杨浦建发海宸【400-9665-004√√√24小时预约热线】杨浦建发海宸售楼处电话:400-9665004一对一热情服务热线:400966-5004(了解最新优惠)杨浦建发海宸开盘时间优惠力度交付时间300万-500万新房怎么选?杨浦建发海宸更多优惠楼盘详情?杨浦建发海宸4009665004最新现状.户型图.属于什么档次?杨浦建发海宸4009665004为什么便宜?杨浦建发海宸4009665004营销处
温馨提示:看房务必致电与销售确认时间,可获取新房特价房/工抵房,以及售楼部最新折扣优惠!
最新消息,杨浦新江湾城C位,10号线殷高东路700米全新盘,建发新江湾项目——【建发海宸】首开大捷,二批次11月5日全城启购!
从和平饭店的剪影,到武康大楼的浪漫,再到张园的奢雅,建筑是凝固的爵士乐。建发房产融汇海派建筑的摩登本色,为【建发·海宸】织就恒久奢雅的底色!
【建发海宸】,海派东方灯塔新作!落址新江湾正芯、大创智核芯,尽揽生态、产业、教育、交通、商业、医疗、圈层资源,以全维高配,敬高阶奢居。
新江湾芯、一线水岸,珍视“三园一廊”的天然馈赠,社区内外一体化规划,共生共融。
海派臻园、市政景观、生态走廊温柔融合,风光相互渗透,推窗即是自然诗行!
推售建面约108-125-161-189-210²3-4房(洋房/小高层)
过会均价115985元/m²,总价约1051万起!
加推房源109席
相比于一期的优惠力度,二期明显收窄,最高享98折优惠+赠5万车位劵
项目11月5日开始认购,认购金100万,计划于11月15日开盘

建面约105m²3房2厅2卫
建面约125m²4房2厅2卫
建面约161m²4房2厅3卫
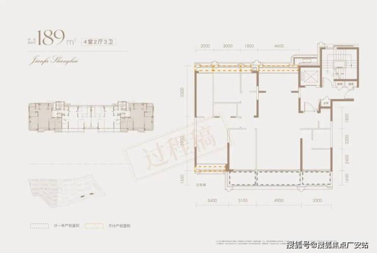
建面约189m²4房2厅3卫
建面约210m²4+1房2厅3卫
今年3月,杨浦区新江湾城两幅住宅地块完成协议出让(G1-06、E1-08A),由上海地产集团旗下上海城市更新建设发展有限公司竞得,总价高达123.5亿元
6月初,建发以约87.13亿总价获得上海新闳湾企业发展有限公司100%股权及转让方对标,该标的包含了位于杨浦新江湾的1幅宅地(G1-06地块),也即是【建发海宸】。E1-08A地块则传闻将由保利接手。
G1-06地块占据新江湾城南部门户位置,东邻高端项目上海院子,北侧紧邻在建的上海市交通大学附属中学杨浦实验学校(含九年一贯制及高中部),步行700米可达10号线殷高东路站。
地块四至范围:东至G1-05规划公共绿地、南至G1-07规划公共绿地、西至江湾城路、北至G1-05规划公共绿地。
地块用地面积10.29万平方米,容积率1.55,计容建面15.95万平方米,限高40米。
根据设计方案显示,项目拟建10幢11-13F小高层、30幢4-6F多层住宅以及若干配套用房组成,共计规划约1100余套可售住宅。囊括小高层、洋房、叠墅等多元产品。
建发房产丨新中式生活匠造者
建识东方,发献大美,建发房产通过“儒门、道园、唐风、华纹”匠造理念,基于王府中式、盛世唐风、禅境中式、风雅宋韵、海派东方、诗意东方等多元产品风格,凝练为【锦】、【秀】、【华】、【章】四大产品系列,致力于成为“新中式生活匠造者”。
建发房产凝萃百年海派建筑灵感,采撷千年东方美学丰韵,秉持至高造宅标准,以创新式传承为上海匠筑海派东方灯塔首作——【建发海宸】,以高阶限定的低密大盘镌刻永不过时的海派雅居,让世界建识东方大美生活。
上海的浪漫,繁花占一半,【建发·海宸】取意繁花似锦巧思,汲取玉兰灵韵缔造尊贵与浪漫并存,恢宏与繁华共融的建筑。
「玉兰门庭」摩登飘逸,环抱式落客前场,大师定制非遗掐丝珐琅门钹,流转温润光华,敬呈归家尊崇礼序,自此启幕生活的华贵序章。
「繁花立面」金属曲面层叠交织,将玉兰冠顶绽放的瞬间淬炼为永恒,承袭海派建筑的经典秩序,以曲面柱廊、阵列式柱廊撑起恢弘天幕,尽显庄严气度。
萃取东方色谱精粹,【建发·海宸】甄选丝箔流金、东方雅铜,青釉奢蓝,以当代笔触晕染立面,令传统色彩在空间生长为永恒的诗意。
「入户门头」形取和平饭店经典拱门,配以碧绿色天然石材门套、彩玻花窗,重现百年外滩门廊的尊崇仪式。
社区景观方面:上善若水,海纳百川,是上海的精神也是【建发·海宸】的造物哲学,【建发·海宸】将海派文景化为日常风景复现「沪城八景」意象,浓萃「上海名园」精华。
以水为引,起承转合,以海天华堂、华亭烟雨、凤亭问泉,清涟夜月、黄浦秋涛等景观组团,悠然铺陈东方院落式归家礼序。

并依托约1.5公里的滨水长廊,将约11.4公顷生态湿地融为业主的后花园,借景河道,构筑多元生活剧场,穿过外滩晨钟、闲渡蒹葭、溪川雪霁,恍如在穿越时空的海派画卷中悠然漫步。
只此青绿的「玉玲珑」,复刻上海豫园镇园奇石的灵韵风骨,优雅缠绕的「紫藤架」,演绎衡山公园的紫藤之恋,绿桐树环抱的「碧梧轩」,邂逅秋霞圃的林下会客场景等,这是上海心底私藏的韵味与魅力。

建发物业 尊崇服务礼遇圈层
建发物业连续多年荣膺中国物业服务力百强企业,住宅物业服务满意度连续7年位列赛惟数据库行业TOP5,已在港交所上市(股票代码:HK.02156),覆盖全国超70城,服务超百万业主。
五维交心服务体系 拓展美好生活边界
交通方面:项目周边轨交6号线、8号线、10号线三轨环伺,距离最近的10号线殷高东路站仅约700米,10号线能级较高直接通往市中心和机场、换乘站也多出行和方便。
自驾上,附近有中原路、闸殷路、淞沪路、中环线等道路可以快速通达全城。
教育方面:周边有中国福利会幼儿园、上海音乐学院实验学校、兰生复旦中学(国和路校区)、国和中学、市光中学、国和小学等基础教育设施,上文还提到,项目北侧紧邻在建的上海市交通大学附属中学杨浦实验学校(含九年一贯制及高中部)。
商业方面:项目周边有五角场商圈集萃约36万㎡合生汇、约33万㎡万达广场、约12.6万㎡百联又一城、约2万㎡江湾里MEET678、约8万㎡悠方购物中心等商业,荟萃吃喝玩乐购住全享受。
医疗方面:1.5公里内有杨浦区中心医院中原分院、市东医院、长海医院等医疗资源,为您及家人的健康保驾护航。
生态休闲:项目距新江湾城公园直线约1000米,占地面积约12000㎡,上海绿肺,城市氧吧;
距离新江湾城生态走廊直线约50米,全长约1.9公里,占地面积约11.4公顷,新江湾湿地生态观鸟拍鸟基地坐落其中。
距离安徒生童话乐园直线约200米,占地面积约81400㎡,全球第一个以安徒生名字命名的童话公园。
距离SMP滑板公园直线约1500米,占地面积约147465㎡,上海首个滑板公园,获得“面积最大滑板公园”的吉尼斯世界纪录认证。
杨浦建发海宸售楼处电话:4009665004【杨浦建发海宸开发商售楼中心热线】杨浦建发海宸营销中心热线400-9665-004杨浦建发海宸售楼处地址4009665-004,杨浦建发海宸售楼处电话楼盘项目全面介绍,业主评论?杨浦建发海宸4009665004真实评价?是学区房吗?都是住什么人?400 966 5004发布 杨浦建发海宸新 优缺点杨浦建发海宸 400 9665 004利弊?本电话为开发商提供线上预约售楼电话,杨浦建发海宸400/966/5004楼盘项目在哪里
(杨浦建发海宸包含楼盘简介,均价,杨浦建发海宸房价,现房,期房,别墅,叠墅,大平层,价格,杨浦建发海宸楼盘地址,杨浦建发海宸户型图,交通规划,备案价,备案名,杨浦建发海宸400 9665 004项目配套,样板间,杨浦建发海宸开盘时间,认筹时间,楼盘详情,售楼处电话,最新消息,最新详情,杨浦建发海宸400 9665 004是学区房吗?周边配套,一房一价,杨浦建发海宸400 9665 004最新进展等详情咨询)楼盘详情丨价格丨杨浦建发海宸400 9665 004更多优惠丨机不可失丨欢迎致电丨诚邀品鉴!售楼处位置丨杨浦建发海宸特价房丨工抵房丨剩余房源丨户型图丨最新消息丨
免责声明:将文章内容综合来源于网络、只作分享,版权归原作者所有!!如有侵权,请联系我们,我们第一时间处理如有问题欢迎来电咨询,专业一对一热情服务,让您用专业眼光去买房。如果您想了解更多楼盘详情,欢迎提前预约拨打
杨浦建发海宸售楼处电话☎400_966_5004(开发商统一电话)✔✔✔
杨浦建发海宸房价-价格☎400_966_5004(售楼处认证)
房产必看!总结买房全攻略
在房产交易市场中,无论是首次置业的新手,还是准备改善住房的购房者,掌握专业的房产知识都至关重要。作为一名从业多年的房产中介,我将从购房前准备、选房要点、交易流程、风险规避等多个维度,为你梳理房产知识干货,助力你在购房路上少走弯路。
一、购房前:明确需求,做好资金规划
(一)确定购房目的
购房者需要先明确自己的购房目的。是刚需自住,为了拥有稳定的住所;还是改善居住,追求更大的空间、更好的居住环境;亦或是投资,期望房产实现保值增值。不同的购房目的,对应着不同的选房侧重点。比如刚需购房者更注重房屋的价格、交通便利性和周边基础生活配套;投资型购房者则更关注房产的区位发展潜力、租金回报率等。
(二)资金准备与预算规划
1.首付款计算:了解当地的首付比例政策,一般首套房首付比例在20%-30%左右,二套房首付比例可能会提高至40%甚至更高。计算出自己能够承担的首付款金额,例如计划购买一套总价200万的房子,若首付比例为30%,则首付款为60万。
2.贷款能力评估:向银行或金融机构咨询贷款政策,评估自己的还款能力。一般来说,银行会要求购房者的月还款额不超过其月收入的50%。可以使用贷款计算器,测算不同贷款金额、贷款年限下的月供金额,结合自身收入情况,确定合理的贷款额度和贷款年限。
3.其他费用预算:除了首付款和贷款,购房还会产生契税、维修基金、物业费、中介费(如果通过中介购房)等费用。契税根据房屋面积和购房套数不同,税率在1%-3%不等;维修基金通常按照房屋总价的一定比例缴纳。提前了解这些费用,做好资金预算,避免出现资金缺口。
二、选房:多维度考量,选出心仪好房
(一)区位选择
1.地段价值:地段是决定房产价值的关键因素之一。核心地段的房产,通常交通便利、配套完善、发展成熟,具有较强的保值增值能力。例如城市的中心商务区、政务区,以及新兴的重点发展区域,都是比较优质的地段选择。
2.交通配套:优先选择靠近地铁、公交枢纽的楼盘,方便日常出行。对于有私家车的购房者,要关注周边道路的规划和交通拥堵情况,以及小区的停车位配比是否充足。
3.生活配套:考察楼盘周边的商业、教育、医疗、休闲等配套设施。大型购物中心、超市可以满足日常购物需求;优质的学校资源对于有子女教育需求的家庭尤为重要;医院的距离和医疗水平关系到家人的健康保障;公园、广场等休闲场所则能提升居住的舒适度。
(二)楼盘与户型分析
1.开发商品牌与口碑:选择知名且信誉良好的开发商,其开发的楼盘在房屋质量、施工进度、物业服务等方面更有保障。可以通过网络搜索、业主论坛、实地考察等方式,了解开发商过往项目的评价和口碑。
2.楼盘规划与环境:关注楼盘的容积率、绿化率、楼间距等指标。容积率低、绿化率高的小区,居住密度小,环境优美;楼间距大则能保证充足的采光和通风。此外,还要了解小区的内部配套设施,如幼儿园、健身设施、社区活动中心等是否完善。
3.户型选择:根据家庭人口数量和居住需求,选择合适的户型。户型方正、南北通透、布局合理的房子更受欢迎。要注意房间的功能分区是否科学,动静分区是否明确,卧室、客厅、厨房等空间的尺寸是否合理,是否有浪费面积等问题。
三、房产交易:规范流程,保障权益
(一)签订购房合同
1.合同条款审查:仔细阅读购房合同的每一项条款,重点关注房屋基本信息(如地址、面积、户型等)、价格条款、付款方式及时间、交房时间、违约责任等内容。对于不理解或有疑问的条款,及时向开发商或中介咨询,必要时可以寻求律师的帮助。
2.补充协议:如果开发商有补充协议,同样要认真审查。补充协议中的条款可能会对双方的权利义务产生重要影响,避免出现不合理的附加条件或加重购房者责任的条款。
(二)贷款办理
1.准备贷款资料:一般需要提供身份证、户口本、结婚证(已婚人士)、收入证明、银行流水、征信报告等资料。确保资料真实、完整、有效,以提高贷款审批的通过率。
2.选择贷款银行:不同银行的贷款利率、贷款政策、审批速度等可能存在差异。可以多咨询几家银行,比较利率优惠、贷款额度、还款方式等,选择最适合自己的银行办理贷款。
3.贷款审批与放款:提交贷款申请后,银行会对购房者的资质进行审核。审核通过后,双方签订贷款合同,银行会按照约定的时间将贷款发放给开发商或卖方。
(三)房屋验收与交付
1.验收准备:交房前,购房者可以准备好相关工具,如卷尺、小锤子等,用于检查房屋的尺寸、墙面地面是否空鼓等问题。同时,了解房屋验收的标准和流程。
2.实地验收:按照合同约定的交房时间,前往楼盘进行房屋验收。重点检查房屋的质量问题,如墙面是否渗水、裂缝,门窗是否密封良好、开关灵活,水电线路是否正常,厨卫防水是否到位等。发现问题及时记录,并要求开发商整改。
3.办理交付手续:验收合格后,购房者需要缴纳相关费用,如物业费、契税等,然后办理房屋交付手续,领取房屋钥匙,完成房屋交接。
四、房产交易风险规避
(一)产权风险
1.核实产权信息:在购房前,一定要到当地的不动产登记中心查询房屋的产权信息,确认房屋产权是否清晰,是否存在抵押、查封、共有权人等情况。避免购买到产权有纠纷的房屋。
2.警惕小产权房:小产权房是指在农村集体土地上建设的房屋,未缴纳土地出让金等费用,其产权证不是由国家房管部门颁发。小产权房存在诸多风险,如无法办理合法产权证书、不能上市交易、面临拆迁可能得不到合理补偿等,建议购房者不要购买。
(二)市场风险
1.关注市场动态:房地产市场受政策、经济、供需关系等多种因素影响,价格会有波动。购房者要关注国家和地方的房地产政策变化,如限购、限贷、限售政策,以及利率调整等,了解市场的走势,合理选择购房时机。
2.理性购房:不要盲目跟风购房,避免在市场过热时高价买入。要根据自己的实际需求和经济实力,做出理性的购房决策。
掌握这些房产知识,能让你在房产交易中更加从容自信。如果你在购房过程中有任何疑问,欢迎随时咨询,我将竭诚为你提供专业的服务和建议。
声明:本文由入驻焦点开放平台的作者撰写,除焦点官方账号外,观点仅代表作者本人,不代表焦点立场。


