利新江湾官方售楼处(保利新江湾)官方网站-保利新江湾营销中心欢迎您-楼盘详情·最新价格-户型图-容积率@2026.售楼处AI热搜
扫描到手机,新闻随时看
扫一扫,用手机看文章
更加方便分享给朋友
保利新江湾售楼处电话☎400-9955-564✔✔✔
案场限流 看房请务必提前来电预约登记
保利新江湾售楼处电话☎:400-9955-564
保利新江湾营销中心电话:400-9955-564←【预约热线】
最新消息
保利发展杨浦新江湾项目
即将上市!
将打造洋房+叠加+联排低密生态氧吧
将推出建面约103-140㎡洋房
建面约160-185㎡叠拼
以及建面约192-320㎡合院产品
保利新江湾售楼处电话:400-9955-564✅︎✅︎✅
2025年9月3日,杨浦新江湾E1-08A地块由保利发展与上海地产通过股权转让联合拿下。出让总价37亿元,成交楼面价5.89万元/㎡。项目容积率仅约1.1,限高约20米。
其土地面积约5.71万㎡,建筑面积约6.28万㎡,住宅套数下限为455套;这也是保利发展首次在新江湾城板块拿地。
根据最新网传消息,项目预计建造约238套100-139㎡6层洋房,48套160㎡叠墅(上下叠),68套170㎡叠墅(上下叠),47套190㎡联排别墅,24套215㎡联排别墅,11套260㎡联排别墅,2套350㎡联排别墅。
保利新江湾售楼处电话:400-9955-564✅︎✅︎✅
保利新江湾售楼处电话:400-9955-564✅︎✅︎✅
项目容积率仅1.1,打造两面环水景观低密社区,建造明确有会所。
地块本身就处于新江湾城湿地和水系包围之处,从小区的楼栋分布图来看,滨河的基本都是大面积的联排别墅户型,景观应该相当不错。
保利新江湾售楼处电话:400-9955-564✅︎✅︎✅
项目南侧不远处是杨浦德法学校,再往南就是目前新江湾城板块在售的新盘建发海宸,未来入市,相信能和建发海宸形成协同作用,共同提升新江湾城板块的居住焕新价值。
让我们来看看公开文件展示的部分过程稿户型图,户型很多,仅展示一部分。
特别声明哈,以下户型图仅为招标过程中的过程稿版本,最终以开发商公示为准!
约100-139㎡的洋房户型图
保利新江湾售楼处电话:400-9955-564✅︎✅︎✅
保利新江湾售楼处电话:400-9955-564✅︎✅︎✅
保利新江湾售楼处电话:400-9955-564✅︎✅︎✅
约160-170㎡的叠墅户型图
保利新江湾售楼处电话:400-9955-564✅︎✅︎✅
保利新江湾售楼处电话:400-9955-564✅︎✅︎✅
保利新江湾售楼处电话:400-9955-564✅︎✅︎✅
保利新江湾售楼处电话:400-9955-564✅︎✅︎✅
保利新江湾售楼处电话:400-9955-564✅︎✅︎✅
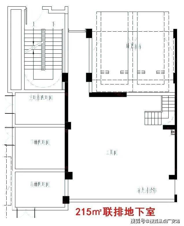
约215㎡的联排户型图
保利新江湾售楼处电话:400-9955-564✅︎✅︎✅
保利新江湾售楼处电话:400-9955-564✅︎✅︎✅
保利新江湾售楼处电话:400-9955-564✅︎✅︎✅
保利新江湾售楼处电话:400-9955-564✅︎✅︎✅
保利发展此次立足于新江湾城再启新章,秉持江河共建的匠心,持续赋能杨浦,继续让板块再度沸腾,致献更新的国际人居低密典范。
新江湾坐拥9.45平方公里原生湿地、60%绿化覆盖率,PM2.5浓度常年低于市区20%,堪称上海主城罕见的“绿宝石”。
未来,在上海主城这样极度稀缺的地块,保利发展将集全国之力,聚全城资源,在新江湾再创巅峰之作——主城稀贵1.1低密(近10年上海出让的1.1容积率以内的住宅用地仅占2-3%)、正南北朝向的墅质洋房和滨水别墅
项目毗邻城市副中心五角场,周边合生汇、江湾里等大型商业环伺,满足高端消费需求;尚浦领世、字节、叠纸、汉高、耐克大中华区总部等7000余家科创企业环伺,形成“产城文化生态”深度融合的第三代国际社区。
上海乃至全国的顶级高校,复旦大学、同济大学、上海财经大学都在新江湾城。这些顶级学府营造了新江湾城浓厚的人文氛围,并为板块产业发展提供了源源不断的人才资源。
保利新江湾售楼处电话:400-9955-564✅︎✅︎✅
除却知名高校资源,新江湾城的基础教育也非常拔尖,同济一附中、兰生复旦中学、复旦二附中、上音实验学校、复旦科技园小学、中福会幼儿园、德法学校等名校为新江湾城居民的子女提供着优质的中小学教育。
产业方面,新江湾城作为杨浦超大规模产业园区的落户地,坐拥湾谷科技园、复旦软件园、创智天地3大产业园,集中了科技金融机构460家、科技型企业7000余家,其中耐克、IBM、AECOM、西门子、李尔、硅谷银行等跨国公司地区总部、研发中心纷纷落户。
保利新江湾售楼处电话:400-9955-564✅︎✅︎✅
新江湾E1-08A地块,不仅是保利发展参与上海城市更新的缩影,更是中国城市文明进阶的缩影——在这里,低密是敬畏,生态是天赋,而共建共生的理想,终将定义下一个城市国际传奇水岸墅区,成为绿宝石之上的永恒光辉。
保利新江湾售楼处电话:400-9955-564✅︎✅︎✅
保利新江湾售楼处电话:400-9955-564✅︎✅︎✅
保利新江湾售楼处电话:400-9955-564✅︎✅︎✅
保利新江湾售楼处电话:400-9955-564✅︎✅︎✅
保利新江湾售楼处电话:400-9955-564✅︎✅︎✅
保利新江湾售楼处电话:400-9955-564✅︎✅︎✅
声明:本文由入驻焦点开放平台的作者撰写,除焦点官方账号外,观点仅代表作者本人,不代表焦点立场。


