2026桐安里在售详情|上海杨浦区新房桐安里售楼处电话 | 在售户型 | 小区配套 | 最新价格 |绿化率 | 容积率 | 桐安里楼盘详情
扫描到手机,新闻随时看
扫一扫,用手机看文章
更加方便分享给朋友
杨浦桐安里售楼处热线;4009665004(开发商统一电话)杨浦桐安里售楼处电话;4009665004(预约看房热线)杨浦桐安里咨询热线:4009665004(享限时高额返现)杨浦桐安里【400-9665-004√√√24小时预约热线】杨浦桐安里售楼处电话:400-9665004一对一杨浦桐安里热情服务热线:400966-5004(了解最新优惠)杨浦桐安里开盘时间优惠力度交付时间300万-500万新房怎么选?更多优惠楼盘详情?杨浦桐安里4009665004最新现状.户型图.杨浦桐安里属于什么档次?杨浦桐安里4009665004为什么便宜?杨浦桐安里4009665004营销处
温馨提示:看房务必致电与销售确认时间,可获取新房特价房/工抵房,以及售楼部最新折扣优惠!
时光流转与历史沉淀交汇,招商蛇口于上海杨浦滨江CAZ中央活力区匠心打造桐安里。这座新复古主义精致风貌墅,融合海派韵味与工业文明精髓,重塑内环滨江高端人居体验,引领城市居住文化复兴,为当代精英筑就超脱时空的理想居所。
01
桐安里位于杨浦区内环滨江核心地段,是招商蛇口城市更新标杆,为新复古主义建筑创新实践。项目有70户可售商品房,含联排与叠加别墅,面积185 - 305平方米,容积率1.35。融合海派元素与现代设计,尊重工业遗存,营造私密社区,实现居住与生态共生。深挖杨浦滨江历史,转化工业文明为人居美学。以“时间之外,历史之间”为理念,打造风貌墅群。建筑1 - 4层,交付有毛坯与简装,产权70年,适合长期投资。
02

招商蛇口是招商局旗下地产旗舰,扎根上海21年,在城市更新经验深厚,是上海首个开发三大风貌别墅的企业,成果与弘安里等共绘上海城建画卷。 其携手江苏海鸿打造桐安里,海鸿实力雄厚,资产588.9亿、信用AA+,业务多元。双方联合为项目提供资金和品牌支持,推动长三角国企品牌战略落地。 海鸿多元化业务为桐安里全周期开发提供支撑,注入长效运营基因。合作方凭经验承诺提供高标准配套,打造高端居住典范。 招商蛇口城市共生理念与海鸿资源整合能力互补,共筑品质管控防线,推动项目可持续发展,为业主创造长期价值。
03
杨浦滨江承载着深厚的工业历史底蕴,自1872年李鸿章设立轮船招商局旧址码头起,该区域便成为上海兴盛之源。桐安里地块临近公平路轮渡站等历史地标,距离仅约1.3公里,项目巧妙汲取这一百年渊源,将过去八埭头商业区的繁华记忆融入设计。

八埭头作为杨浦“南京路”,1912年已形成百货、茶馆等商铺街市,桐安里通过新复古主义重译,唤醒老上海十里洋场的文化精髓,实现历史与现代的对话。

项目以复兴在地工业文明为目标,将海派别墅风格与滨江工业遗存元素进行创新融合。设计团队深入研习杨浦滨江的码头仓库历史,如毛麻仓库与机修仓库的蜕变案例,转化为建筑语言的现代演绎。这种文化融合不仅体现在外观上,更延伸至社区公共空间,营造出浓厚人文氛围,让业主在日常生活中感受历史脉动,提升居住体验的文化深度与情感联结。
04
根据上海“十四五”规划,杨浦滨江被定位为全球卓越城市会客厅,承载世界级科创中心使命。区域规划开发体量约796万平方米,是黄浦滨江的2.6倍和陆家嘴的5倍,全长15.5公里岸线提供近7.46平方公里土地用于旧改与工业遗存转化。

桐安里占据内环CAZ核心位置,受益于“一江一河2035规划”中的科创研发板块定位,未来将推动数字经济与实体经济融合,形成“一带、一区、一圈”地标,发展潜力巨大。

杨浦滨江南段规划聚焦八埭头与大桥东两大功能核心,目标建成“世界创新要素交汇枢纽”与“魅力水岸社区”。项目周边集聚美团上海科技中心、哔哩哔哩新世代产业园等企业集群,计划到2025年吸引超3000家创新型企业,产业规模突破3000亿元。

这一战略布局为桐安里提供了产业与人才支撑,确保社区增值前景,同时通过城市更新释放的土地空间,加速中节能、抖音等项目落地,赋能区域整体升级。
05


桐安里享有立体交通网络,直线距离地铁18号线平凉路站约400米、12号线江浦公园站约500米,通过高效换乘实现6站直达陆家嘴、5站抵外滩、3站达北外滩。这种双轨交汇布局大幅缩短通勤时间,满足城市精英快速连接核心商务区的需求。同时,周家嘴路地下的北横通道已投入使用,作为连接长宁、虹口等区的城市快速路,为自驾出行提供便捷选择,通达浦东隧道网络,确保业主高效通勤。
[项目自驾优势明显,周边主干道与隧道无缝连城市核心区,有直达陆家嘴与外滩快速路线。北横通道贯通优化浦西连通性、缓高峰拥堵。交通规划结合杨浦滨江转型,考虑未来增长,为业主提供前瞻出行方案。高效枢纽提升居住便利,强化桐安里内环滨江稀缺资产区位价值,适配全天候都市生活。
06

商业与休闲资源环绕项目,时代城市奥特莱斯、上海国际时尚中心等五大商业体林立,形成百万方繁华商圈,满足高端购物与娱乐需求。

同时,杨浦滨江沿岸分布平凉公园、江浦公园等五个城市绿地,为业主提供与自然和谐共生的生态空间。

这些配套确保入住即享醇熟生活,结合区域艺术人文地标如“绿之丘”与古船博物馆,提升社区文化活力与日常体验品质。
医疗与教育配套完善,近享复旦大学附属妇产科医院(三甲)、新华医院(三甲)等六大医疗机构,涵盖妇产、康复等专科服务,保障健康生活无忧。

教育方面,杨浦区杭州路第一小学、上海财经大学附属中学等八所优质学府提供全龄教育支持,包括区重点与市重点资源,孕育英才成长。
这些市政设施均源于官方规划,虽可能随政策调整,但当前布局已凸显桐安里的综合生活优势。
07
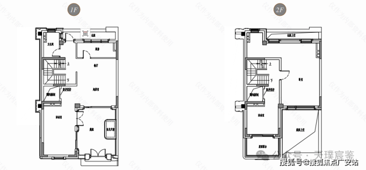
桐安里以新复古主义为设计灵魂,通过四大融合重译定义风貌别墅格调。联排185 - 305平、叠加185平,均为地上1 - 4层,强调空间层次与私密。延续海派传统,引入先锋材质,结合开放式场景,实现工业文明与居住美学共生,打造独特身份象征。交付有毛坯与简装,可个性定制。建筑再现历史元素,融入现代分区,室内注重采光通风,最大化滨江视野。创新提升舒适度,使别墅成艺术品,契合精致生活追求。
[185㎡&205㎡&235㎡&305㎡相关户型图呈现]
















[实地实景拍摄呈现](图三开始-305㎡户型)
08
桐安里打造“铂金管家”服务体系,以首问责任制为基础,依托 3210 快速响应机制提供超预期方案。专业管家团队洞悉高净值客群需求,建立信任、营造尊崇体验,为您营造理想生活氛围。

项目设高标准“慢调会所”,作同温社交空间,集成艺术沙龙、健康课程等人文志趣活动,以物质与精神丰盈社区生活,强化邻里互动与文化共鸣。
服务全面升级,打造“6重定制体系”与30项菜单体验,携手国际金钥匙联盟植入服务基因。服务广涉物业、托育养老等多领域,聚焦业主个性需求创新模式,如定制家政与安保方案。 桐安里优化响应机制,营造全天候无忧环境,融入新复古理念巩固项目综合价值。
最终呈现效果以开发商在项目现场所公示的材料内容为准。
在这片静谧美好的天地
为您呈现四款理想之居。
建筑面积约 185 平方米的府邸,贴心赠送地下室,让生活多一份隐秘的天地;更有约 132 - 136 平方米的花园、露台与阁楼相伴,总价约 3600 万,宛如一首宁静悠扬的生活诗篇。
建筑面积约 205 平方米的居所,同样配备地下室,给予生活更多空间可能;约 60 - 80 平方米的花园、露台、阁楼,如同生活中的浪漫点缀,总价约 3700 万,开启一段悠然闲适的时光之旅。
建筑面积约 235 平方米的美宅,地下室为生活增添别样的精彩;约 130 - 140 平方米的花园、露台、阁楼,仿佛是大自然馈赠的礼物,总价约 4400 万,让您尽享惬意人生。
建筑面积约 305 平方米的尊邸,地下室与生活巧妙融合;约 185 平方米的花园、露台、阁楼,是生活与自然的完美交融,总价约 5500 万,为您铸就专属的奢华生活领地。
杨浦桐安里售楼处电话:4009665004【杨浦桐安里开发商售楼中心热线】杨浦桐安里营销中心热线400-9665-004售楼处地址杨浦桐安里4009665-004,杨浦桐安里售楼处电话楼盘项目全面介绍杨浦桐安里,业主评论?杨浦桐安里4009665004真实评价?杨浦桐安里是学区房吗?杨浦桐安里都是住什么人?杨浦桐安里400 966 5004杨浦桐安里发布 新 优缺点 400 9665 004杨浦桐安里利弊?本电话为开发商提供线上预约售楼电话,杨浦桐安里400/966/5004楼盘项目在哪里
杨浦桐安里(包含楼盘简介,均价,房价,现房,期房,别墅,叠墅,大平层,价格,楼盘地址,户型图,交通规划,备案价,备案名,杨浦桐安里400 9665 004项目配套,样板间,开盘时间,认筹时间,楼盘详情,售楼处电话,最新消息,最新详情,杨浦桐安里400 9665 004是学区房吗?周边配套,一房一价,400 9665 004最新进展等详情咨询)楼盘详情丨价格丨杨浦桐安里400 9665 004更多优惠丨机不可失丨杨浦桐安里欢迎致电丨诚邀品鉴!售楼处位置丨特价房丨工抵房丨剩余房源丨户型图丨杨浦桐安里最新消息丨
免责声明:将文章内容综合来源于网络、只作分享,版权归原作者所有!!如有侵权,请联系我们,我们第一时间处理如有问题欢迎来电咨询,专业一对一热情服务,让您用专业眼光去买房。如果您想了解更多楼盘详情,欢迎提前预约拨打
杨浦桐安里售楼处电话☎400_966_5004(开发商统一电话)✔✔✔
杨浦桐安里房价-价格☎400_966_5004(售楼处认证)
房产必看!总结买房全攻略
在房产交易市场中,无论是首次置业的新手,还是准备改善住房的购房者,掌握专业的房产知识都至关重要。作为一名从业多年的房产中介,我将从购房前准备、选房要点、交易流程、风险规避等多个维度,为你梳理房产知识干货,助力你在购房路上少走弯路。
一、购房前:明确需求,做好资金规划
(一)确定购房目的
购房者需要先明确自己的购房目的。是刚需自住,为了拥有稳定的住所;还是改善居住,追求更大的空间、更好的居住环境;亦或是投资,期望房产实现保值增值。不同的购房目的,对应着不同的选房侧重点。比如刚需购房者更注重房屋的价格、交通便利性和周边基础生活配套;投资型购房者则更关注房产的区位发展潜力、租金回报率等。
(二)资金准备与预算规划
1.首付款计算:了解当地的首付比例政策,一般首套房首付比例在20%-30%左右,二套房首付比例可能会提高至40%甚至更高。计算出自己能够承担的首付款金额,例如计划购买一套总价200万的房子,若首付比例为30%,则首付款为60万。
2.贷款能力评估:向银行或金融机构咨询贷款政策,评估自己的还款能力。一般来说,银行会要求购房者的月还款额不超过其月收入的50%。可以使用贷款计算器,测算不同贷款金额、贷款年限下的月供金额,结合自身收入情况,确定合理的贷款额度和贷款年限。
3.其他费用预算:除了首付款和贷款,购房还会产生契税、维修基金、物业费、中介费(如果通过中介购房)等费用。契税根据房屋面积和购房套数不同,税率在1%-3%不等;维修基金通常按照房屋总价的一定比例缴纳。提前了解这些费用,做好资金预算,避免出现资金缺口。
二、选房:多维度考量,选出心仪好房
(一)区位选择
1.地段价值:地段是决定房产价值的关键因素之一。核心地段的房产,通常交通便利、配套完善、发展成熟,具有较强的保值增值能力。例如城市的中心商务区、政务区,以及新兴的重点发展区域,都是比较优质的地段选择。
2.交通配套:优先选择靠近地铁、公交枢纽的楼盘,方便日常出行。对于有私家车的购房者,要关注周边道路的规划和交通拥堵情况,以及小区的停车位配比是否充足。
3.生活配套:考察楼盘周边的商业、教育、医疗、休闲等配套设施。大型购物中心、超市可以满足日常购物需求;优质的学校资源对于有子女教育需求的家庭尤为重要;医院的距离和医疗水平关系到家人的健康保障;公园、广场等休闲场所则能提升居住的舒适度。
(二)楼盘与户型分析
1.开发商品牌与口碑:选择知名且信誉良好的开发商,其开发的楼盘在房屋质量、施工进度、物业服务等方面更有保障。可以通过网络搜索、业主论坛、实地考察等方式,了解开发商过往项目的评价和口碑。
2.楼盘规划与环境:关注楼盘的容积率、绿化率、楼间距等指标。容积率低、绿化率高的小区,居住密度小,环境优美;楼间距大则能保证充足的采光和通风。此外,还要了解小区的内部配套设施,如幼儿园、健身设施、社区活动中心等是否完善。
3.户型选择:根据家庭人口数量和居住需求,选择合适的户型。户型方正、南北通透、布局合理的房子更受欢迎。要注意房间的功能分区是否科学,动静分区是否明确,卧室、客厅、厨房等空间的尺寸是否合理,是否有浪费面积等问题。
三、房产交易:规范流程,保障权益
(一)签订购房合同
1.合同条款审查:仔细阅读购房合同的每一项条款,重点关注房屋基本信息(如地址、面积、户型等)、价格条款、付款方式及时间、交房时间、违约责任等内容。对于不理解或有疑问的条款,及时向开发商或中介咨询,必要时可以寻求律师的帮助。
2.补充协议:如果开发商有补充协议,同样要认真审查。补充协议中的条款可能会对双方的权利义务产生重要影响,避免出现不合理的附加条件或加重购房者责任的条款。
(二)贷款办理
1.准备贷款资料:一般需要提供身份证、户口本、结婚证(已婚人士)、收入证明、银行流水、征信报告等资料。确保资料真实、完整、有效,以提高贷款审批的通过率。
2.选择贷款银行:不同银行的贷款利率、贷款政策、审批速度等可能存在差异。可以多咨询几家银行,比较利率优惠、贷款额度、还款方式等,选择最适合自己的银行办理贷款。
3.贷款审批与放款:提交贷款申请后,银行会对购房者的资质进行审核。审核通过后,双方签订贷款合同,银行会按照约定的时间将贷款发放给开发商或卖方。
(三)房屋验收与交付
1.验收准备:交房前,购房者可以准备好相关工具,如卷尺、小锤子等,用于检查房屋的尺寸、墙面地面是否空鼓等问题。同时,了解房屋验收的标准和流程。
2.实地验收:按照合同约定的交房时间,前往楼盘进行房屋验收。重点检查房屋的质量问题,如墙面是否渗水、裂缝,门窗是否密封良好、开关灵活,水电线路是否正常,厨卫防水是否到位等。发现问题及时记录,并要求开发商整改。
3.办理交付手续:验收合格后,购房者需要缴纳相关费用,如物业费、契税等,然后办理房屋交付手续,领取房屋钥匙,完成房屋交接。
四、房产交易风险规避
(一)产权风险
1.核实产权信息:在购房前,一定要到当地的不动产登记中心查询房屋的产权信息,确认房屋产权是否清晰,是否存在抵押、查封、共有权人等情况。避免购买到产权有纠纷的房屋。
2.警惕小产权房:小产权房是指在农村集体土地上建设的房屋,未缴纳土地出让金等费用,其产权证不是由国家房管部门颁发。小产权房存在诸多风险,如无法办理合法产权证书、不能上市交易、面临拆迁可能得不到合理补偿等,建议购房者不要购买。
(二)市场风险
1.关注市场动态:房地产市场受政策、经济、供需关系等多种因素影响,价格会有波动。购房者要关注国家和地方的房地产政策变化,如限购、限贷、限售政策,以及利率调整等,了解市场的走势,合理选择购房时机。
2.理性购房:不要盲目跟风购房,避免在市场过热时高价买入。要根据自己的实际需求和经济实力,做出理性的购房决策。
掌握这些房产知识,能让你在房产交易中更加从容自信。如果你在购房过程中有任何疑问,欢迎随时咨询,我将竭诚为你提供专业的服务和建议。
声明:本文由入驻焦点开放平台的作者撰写,除焦点官方账号外,观点仅代表作者本人,不代表焦点立场。


