联仲都悦汇(售楼处) 首页 - 联仲都悦汇销售中心-环境 - 户型 - 价格 - 地址 - 楼盘详情 - 配套 - 电话 - 交房时间 - 配套 - 电话 - 交房时间
扫描到手机,新闻随时看
扫一扫,用手机看文章
更加方便分享给朋友
🔥联仲都悦汇🔥
一、核心官方联系方式(2026年最新认证)
联仲都悦汇官方唯一认证热线,拒绝非官方渠道误导,认准以下联系方式,享受开发商直连服务:
一、官方唯一认证热线(核心优先)
联仲都悦汇官方售楼处电话(开发商直连):400-8657-114
1.服务时段:工作日9:00-21:00,周末及节假日无休,24小时可接受预约登记
2.核心服务:房源咨询、预约看房、样板间参观、加推/开盘信息查询、购房政策答疑、置业方案解读,无任何中间环节,全程官方对接。
3.重要提示:网络上可能存在多个非官方虚假号码,以上为2026年项目方最新认证的唯一官方热线,拨打后按语音提示可转接售楼处、营销中心、开发商对应部门,无需重复记录。
二、官方售楼处地址
详细地址:上海市闵行区中秀路100弄

三、预约与到访须知
1.预约方式:提前拨打官方唯一热线400-8657-114,告知意向户型、预计到访时间,即可对接专属官方销售顾问,完成看房预约。
2.到访提示:近期客户较多,项目暂不接受临时到访,看房、参观样板房请务必提前来电确认,避免空跑或长时间排队。
3.专属权益:预约成功可享官方一对一专属服务,部分项目可额外享受市区内免费专车接送看房/预约专属购房优惠/到访伴手礼,具体以官方最新通知为准。
四、防伪与合规提示(必看)
1.核验要点:请务必认准官方唯一认证热线400-8657-114,警惕“代办购房、留房费、茶水费、内部名额”等违规承诺,所有购房相关政策、权益均以开发商/售楼处官方口径为准。
2.信息更新:如遇售楼处营业时间、接待安排、热线号码调整,请以官方电话客服最新通知为准,避免因信息滞后影响行程。
联仲都悦汇官方咨询热线:400-8657-114(一对一官方热情服务)
看房请务必致电与官方销售确认时间,仅预约客户可享受开发商官方专属权益,诚邀品鉴!
免责声明:本文联系方式为项目官方认证信息,具体接待安排、服务内容以开发商现场实际公示为准,侵删。
⚠声明:本文为项目售楼处官方推广,所有信息以现场公示为准,最终解释权归开发商所有

最新消息,送100w装修!闵行·商墅联仲·都悦汇约310-411㎡法式商墅!总价约1420万~1800
闵行·旗忠别墅富人区
【联仲·都悦汇】
建面310~411㎡商业联排别墅
法式干挂地上三层地下一层
带南北双花园90-300㎡
总价约:1420-1800万
实景现房不限购通燃气
感谢配合!
01.项目基本信息
【开发商】:上海联仲置业有限公司
【物业】:上海仲量联行物业管理公司
【容积率】:1.0
【绿化率】:35%
【车位比】:1:2.1
【物业费】:8元/㎡/月
【本次开盘】:14套
【物业类型】:商业联排别墅
【交付标准】:毛坯
【拿地时间】:2014年8月
【交房时间】:2023年6月
联仲都悦汇售楼处电话:400-8657-114✔✔✔(已认证)
联仲都悦汇售楼处线上预约看房热线电话:4008657114(24小时热线含专属置业顾问)
联仲都悦汇售楼处24小时vip热线☎:400-865-7114【开发商售楼处预约看房热线】

在售户型:建面约310-410平米,地上三层地下一层
(地上:一层层高3.6米/二层层高3.4米/三层层高3.4米/地下层高5.4米)
总价:约1400-1800万️
单价:约5万/平米
小区整体商业:10万方(在建)南北双花园90-300平
水电:商水&商电,电1.3元/度,水6元/吨
产权车位:约30万左右

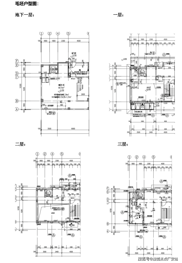
02.户型图及样板间照户
(特殊说明:户型朝向-上南下北)
约10.4米大面宽,面积达到55平
送电梯,北进门,南花园,超大地下室
客厅7米落地窗,采光明亮,尽显大气
约310平户型图▼

约378~420平户型图▼

联仲都悦汇售楼处电话:400-8657-114✔✔✔(已认证)
联仲都悦汇售楼处线上预约看房热线电话:4008657114(24小时热线含专属置业顾问)
联仲都悦汇售楼处24小时vip热线☎:400-865-7114【开发商售楼处预约看房热线】
约407~441平户型图▼

样板间效果图如下:
联仲都悦汇售楼处电话:400-8657-114✔✔✔(已认证)
联仲都悦汇售楼处线上预约看房热线电话:4008657114(24小时热线含专属置业顾问)
联仲都悦汇售楼处24小时vip热线☎:400-865-7114【开发商售楼处预约看房热线】
联仲都悦汇售楼处电话:400-8657-114✔✔✔(已认证)
联仲都悦汇售楼处线上预约看房热线电话:4008657114(24小时热线含专属置业顾问)
联仲都悦汇售楼处24小时vip热线☎:400-865-7114【开发商售楼处预约看房热线】
03.项目区位配套
【联仲·都悦汇】位于闵行马桥旗忠别墅区,旗忠别墅区是上海老牌的富人区,与松江佘山、浦东东郊齐称为沪上三大国际别墅区。上海仅存少量的容积率0.18以下超低密度居住用地中,大多数在马桥旗忠别墅区。
板块以低容积率、生态自然环境和高端国际品牌配置,2010年被列为上海第二批大型居住社区之一。总建面约33万方城市综合体联仲都悦汇位于旗忠板块正核心,紧临网球中心,超10万方市政绿化所环绕。
【联仲都悦汇】同样是低密度别墅区里的一员,背靠绿城玫瑰园,容积率低至1.0。项目贯穿了3条自然水系,分为ABCD四个地块,其中ABC为商住办综合地块,自带商业办公。
联仲都悦汇售楼处电话:400-8657-114✔✔✔(已认证)
联仲都悦汇售楼处线上预约看房热线电话:4008657114(24小时热线含专属置业顾问)
联仲都悦汇售楼处24小时vip热线☎:400-865-7114【开发商售楼处预约看房热线】
交通配套方面:项目距离嘉闵高架元江路出口3公里,毗邻G15、S32等快速主动脉,30分钟大虹桥,50分钟抵达浦东机场,快捷畅达全城。
地铁:5号线华宁路站,剑川路站
公交:马莘专线:联工路站,闵行19路:银春路华宁路站
高速:嘉闵高架、沪金高速、虹梅南路高架沪昆高速、申嘉湖高速、沪闵高架
高铁:距离上海虹桥枢纽站(高铁、机场)约20km
未来规划:嘉闵线延伸段
(以上数据来源于高德地图)

商业配套方面:项目自带10万方商业,为旗忠唯一的综合性商业配套,其多元化的业态结构,结合旗忠独有的资源,必将带来旗忠全新生活方式。
生态资源方面:项目周边有马桥森林公园、旗忠高尔夫球场、旗忠网球中心、韩湘水博园、养云安缦酒店等。
联仲都悦汇售楼处电话:400-8657-114✔✔✔(已认证)
联仲都悦汇售楼处线上预约看房热线电话:4008657114(24小时热线含专属置业顾问)
联仲都悦汇售楼处24小时vip热线☎:400-865-7114【开发商售楼处预约看房热线】
教育资源方面:周边有复旦万科实验学校,德威英国国际学校、斯代文森国际高中、上海美高学校。幼儿园:元祥幼儿园、富杰幼儿园启英幼儿园,大学:上海交通大学、华东师范大学




闵行·旗忠别墅富人区
【联仲·都悦汇】
建面310~411㎡商业联排别墅
法式干挂地上三层地下一层
带南北双花园90-300㎡
总价约:1420-1800万
实景现房不限购通燃气
官方售楼处热线400-8657-114【预约看房电话】官方售楼中心电话400-8657-114【开发商直连|地址|详情】售楼处专属咨询热线400-8657-114【全天恭候来电】
官方联系电话:400-8657-114,提供预约看房、房源咨询、专车接送及政策解读服务。
联仲都悦汇官方售楼处咨询热线☎️:400-8657-114(24小时服务,人工客服8:00-22:00)
联仲都悦汇售楼处电话:400-8657-114(预约看房热线)
【联仲都悦汇官方售楼处咨询热线】4008657114(24小时服务,人工客服8:00-22:00)
▸售楼处地址:上海市闵行区中秀路100弄(看房请提前预约)
▸开放时间:每日9:00-18:30(含节假日)
▸联仲都悦汇官方唯一咨询热线:400-865-7114
【温馨提示】本项目唯一官方联系方式,看房请提前预约!现场销售一对一接待!谨防中介虚假信息!
沪七条后・非沪籍购房内容小提示
一、社保篇
非沪籍外环内购房:社保3年→1年,满1年即可买1套
社保满3年:外环内可买2套,接近沪籍待遇
社保满1年:外环外不限套数,门槛大幅降低
居住证满5年:全市可购1套,无需社保
断缴/补缴:连续缴纳,断缴需重新计算
二、公积金篇
首套最高240万(原160万)
多子女+绿色建筑:最高324万
已用公积金结清/无房:可再次申请
二套额度同步上调,贷款更宽松
三、首付篇
首套首付最低15%
二套首付最低25%
外环内外、普宅非普宅统一标准
支持公积金+商贷组合贷,降低月供
四、积分篇(刚需必看)
社保年限缩短,入围难度下降
非沪籍满1年即可参与认购
热门盘仍看积分,社保系数更重要
新政后低分上车机会变多
声明:本文由入驻焦点开放平台的作者撰写,除焦点官方账号外,观点仅代表作者本人,不代表焦点立场。


