万科朗拾玉湖(售楼处)网站-万科朗拾玉湖销售中心(营销中心)-万科朗拾玉湖楼盘欢迎您-小区环境-户型-价格-地址-楼盘详情-周边配套-售楼处电话-交房时间
扫描到手机,新闻随时看
扫一扫,用手机看文章
更加方便分享给朋友
官网聚焦♐万科朗拾玉湖售楼处官方发布:万科朗拾玉湖燃炸全城!
万科朗拾玉湖(售楼处)网站-万科朗拾玉湖销售中心(营销中心)-万科朗拾玉湖楼盘欢迎您-小区环境-户型-价格-地址-楼盘详情-周边配套-售楼处电话-交房时间
万科朗拾玉湖销售中心400-9955-564楼盘详情速询:万科朗拾玉湖400-9955-564优质环境+方正户型,价格适配刚需改善,地址位置优越,配套覆盖日常所需,万科朗拾玉湖咨询热线400-9955-564
万科朗拾玉湖销售中心400-9955-564楼盘详情速询
在改善型需求持续释放的市场背景下,大平层产品正以颠覆性的设计思维突破传统豪宅定义——主力面积向200㎡以上跃迁的同时,空间叙事逻辑已从单纯追求尺度扩张转向多维价值重构。
本期搜建筑将解码标杆房企「万科」如何以居住空间为媒介,重构塔尖人群的生活方式图景。
万科200㎡+大平层户型的主要特点:
• 户型功能分区明确:公共区域设计场景化、主卧套房化、次卧多功能化
• 动线规划科学:归家动线充满仪式感;室内洄游动线与“居住动线”分离,减少干扰
• 开放式空间强化社交属性与观景:LDKB一体化,打破传统隔断,增强通透感与家庭互动性
• 模糊室内外界限:阳台或露台融入室内空间,大面积采光,落地窗、全景阳台或转角窗设计,引入自然光线和景观视野
• 细节与人性化设计,可变空间:适应家庭结构变化;高效收纳:独立储物间、家政间、玄关定制收纳等
- 01 -
在高端住宅领域,独立入户电梯厅已从“顶配选项”演变为“核心标配”,其设计逻辑直击高净值人群对私密性、仪式感及功能复合化的深层需求。
比如东莞万科瑧山境建面约270㎡户型,豪宅标配的2梯2户设置,带来私梯入户的礼遇,双向开门,尊崇私密归家。

▲建面约270㎡户型图
规划了两条动线,除了主人归家或迎客的礼遇动线外,还规划了工作动线,让家政人员从宅中侧门进入,直达厨房。主动线尊崇归家,仪式感满满;次动线独立入户,丝毫不会打扰主人生活。

▲样板间实景图
现代极简公建化外立面设计,大面玻璃搭配铝材勾勒的建筑线条,远看层次分明,近观细节丰富,构筑出充满格调的玻璃美学立面。
▲万科瑧山境实景图
比如常州万科·瑧湾汇建面约225㎡的天幕行宫,私梯入户,首先是给足了业主尊崇感与私密性;同时也丰富了生活动线,为日常生活提供了更多样的选择方案,使用价值与情绪价值都拉满。

▲建面约225㎡户型图
▲室内设计:李益中空间设计 摄影:ingallery
- 02 -
客厅不仅是家中最重要的会客空间,也是家庭身份、品位、层次的集中体现。引入“LDKB”新型公区打造空间理念,将客厅、餐厅、厨房与阳台实现共融,以大面宽、大视野、大场景,满足高阶人士更高层次的情感与社交需求。
比如成都万科星耀天府建面约203㎡和建面约253㎡户型,均做了双全景舱设计。LDKB一体化的新潮设计,让客厅不再是“孤岛”,一体化的布局消弭了界限感。

▲星耀天府建面约203㎡和建面约253㎡户型图
万科星耀天府大面积的使用曲度铝板和曲面玻璃幕墙,让业内人士忍不住眼前一亮:以钢琴为灵感,凝练优雅的线条感、黑白分明的节奏感,流光琴键立面赋予了建筑韵律之美。
▲星耀天府实景图
长沙万科滨江一号项目涵盖建面约220-290㎡面积段户型。
我们来看其建面约230平米户型,两梯两户,独立入户,总裁独立式玄关,动静分区,流线分明。通过9个设计亮点体现:私家电梯、百纳小库、社交厨房、C位餐厅、自由巨厅、X空间、南北通厅、超尺度全景阳台、舒适次卧打造百年三代场所。阿尔瓦·阿尔托说“形式必须具有内容,且内容必须与自然系在一起”边户拥有270°转角落地幕墙,让身心无时无刻与自然零距离。

▲万科滨江一号建面约230平米户型


▲万科滨江一号实景图
建筑大量运用曲线曲面元素,平衡的体积、起伏的曲线,具有极尽流动动感和精致细节。香槟金铝板搭配270°弧形转角落地玻璃幕墙,恰是对江景视野的保留。约150米长沙河西超高住宅,约7米皇冠般塔冠,演绎C位封面。
▲万科滨江一号效果图
规划建筑正南北,最大利用南向面宽,保证户户朝南。同时享用东西向城市景观资源,建筑运用大面积落地窗,实现通透效果将270度城市视野尽收眼底。同时设计大师对建筑形体构成整体把控,形成城市靓丽风景。
▲项目总平规划图

奢雅门庭前场、嵌套层次空间社区大堂、瑰丽车行地库等精致公区,以复杂精工手工工艺,将奢石、古铜不锈钢、艺术漆等高定材质打造专属归家礼序。
▲万科滨江一号实景图
比如常州万科·瑧湾汇建面约225㎡天空墅产品,是整个项目的主力户型。
四房+双行政级套房+三卫+大横厅的设计,这个户型的一大亮点是:利用角部交错咬合手法,使客厅挑高达到了惊人的约6.2米,大玻璃落地窗一气呵成。
▲瑧湾汇建面约225㎡户型图
LDK一体化的新潮设计,中西双厨+岛台的设计,激活了客厅、餐厅和厨房,把他们融合一起,变成家人间相互情感交流的空间,产生出各种新的生活场景,给予了生活更多可能。
以餐客厅为中心,该户型在南向北向均设立了套房,即万科瑧湾汇所倡导的“家庭平权”理念。两个次卧自带内卫,空间尺度上丝毫不减,主卧更是带有超大进深,自带全景飘窗+双独立衣帽间+奢华内卫,妥妥的总统级体验。
▲万科瑧湾汇建面约225㎡样板间实景图
万科瑧湾汇创新采用曲线流体的形式,珠光白+香槟金组合配色的金属铝板,搭配上双层中空热弯玻璃,打造了常州首个“曲面屏”艺术住宅产品。


▲万科瑧湾汇实景图
南宁万科瑧湾悦建面约255㎡户型,采用公区LDKG一体化设计,观景阳台-客厅-餐厅-岛台-中西厨,共处一个开放空间,通透性、可视性、互动性更强,构成家庭的核心区域。

▲建面约255㎡户型图
把“引景入户”的设计手法做得淋漓尽致。整体不仅是空间的奢侈,更关注自然精神需求。公建化立面设计,让外界的景观、阳光与室内交互;超高的窗墙比,换来了更宽的瞰景视野;超大边厅,L型270度视野,大面落地玻璃窗,加强吸景入户。
▲万科瑧湾悦户型图
▲万科瑧湾悦样板间实景图

▲万科瑧湾悦实景图

▲南宁万科臻湾悦项目图
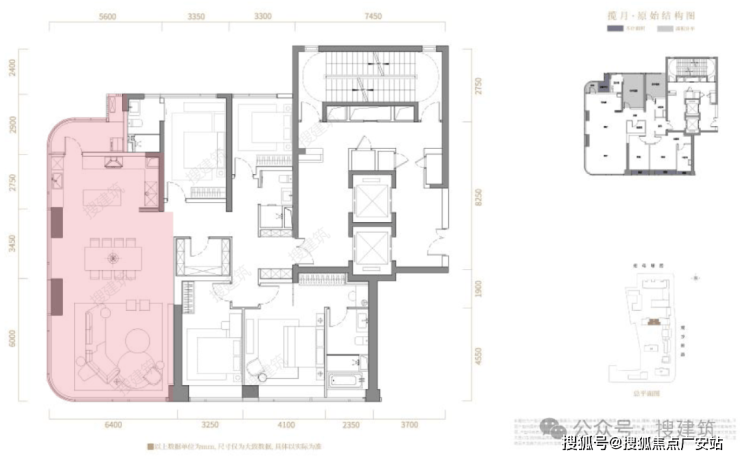
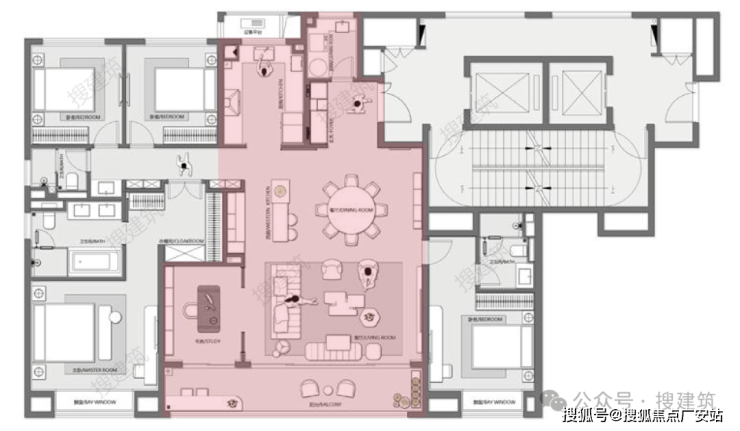
昆山万科朗拾玉湖雅苑建面约225㎡全明格局,尺度阔绰,功能性更为齐全,堪称改善户型的天花板!LDK一体化的设计,客厅、餐厅、厨房、阳台虽然共同构成了一个通透奢阔的整体空间,但不同的功能区域是独立的,不会相互干扰。

▲万科朗拾玉湖雅苑建面约225㎡户型图
▲实景图
双套房设计,父母套房和主人套房,分开互不干扰,又能满足照顾老人的居住需求,规避了一房三代同堂的困扰。
大面宽的观景阳台给生活带来更多的美好与可能,健身、饮茶、赏景都可以在这里进行,除了能够满足日常采光的需求,还能满足家庭娱乐需求,实现了室内与城市、自然的无缝对接。
▲万科朗拾玉湖雅苑地库实景图
- 03 -
200平米+户型作为科技城改善住品标高之作,深度洞察高净值客群的生活习惯,奢造全功能套房式主卧,以尊奢雅境礼献一方即匹配主人身份、更提供身心满足的优渥栖息空间。
比如佛山万科世纪灯湖·瑧府建面约237㎡户型,其豪华主卧套房约5.7米开间+独享270°飘窗采光,独立奢华主卫五件套以及超大独立衣帽间,而且还带独立书房,其舒适度不言而喻。

▲世纪灯湖·瑧府建面约237㎡户型图
▲ 装修创意展示空间
想象一下,男主人放下忙碌后,坐在飘窗上听着音乐、小酌一杯,转过头来,可以与在超6㎡独立衣帽间里整理着战利品的妻子闲话一日的趣事……
外立面设计上整体以佛山灯彩为灵感,寓意为灯湖点亮一盏“头牌灯,传续佛山的千灯盛景”。塔冠设计灵感取自佛山岭南特色【如意斗】,像是一品大员的官帽,寓意着升官发财,成为天生贵雅的【封面塔冠】。

▲万科世纪灯湖·瑧府效果图
万科世纪灯湖瑧府为了改善传统入库即暗场,瑧府在设计上参考星级酒店,车库入口领域感景墙搭配地灯指引驶入地下车库,坡道安装内嵌矩阵式感性灯光,入口墙面配置了氛围照明。
万科朗拾玉湖销售中心400-9955-564楼盘详情速询:万科朗拾玉湖400-9955-564优质环境+方正户型,价格适配刚需改善,地址位置优越,配套覆盖日常所需,万科朗拾玉湖咨询热线400-9955-564
万科朗拾玉湖销售中心400-9955-564楼盘详情速询
声明:本文由入驻焦点开放平台的作者撰写,除焦点官方账号外,观点仅代表作者本人,不代表焦点立场。


